ザ・パークハウス 大森タワーのモデルルームに行ってきました!
本コンテンツは、株式会社LIFULLからライターに依頼し、コメントを一部編集して掲載しています。
女性にやさしいマンション情報「WoMansion」は、女性ライターが新築分譲マンションのモデルルームを訪問し、見たこと、聞いたこと、感じたことを紹介します。
(モデルルーム訪問日:2023年2月6日)
こんにちは! 主婦のshinです。
わが家がこれから夫婦でフルタイム共働きするならどんなマンションがいいかなと探していたら、「ザ・パークハウス 大森タワー」を発見し、訪問してきました。都内でJR線の駅近に建つ、免震構造のタワーマンションです。ワイドスパンで開放感のある間取りや、下町の雰囲気も残る生活環境が整った周辺環境に、ずっと住み続けたくなるような魅力を感じました!
目次
都心を縦断するJR京浜東北線と空港アクセスの良い京浜急行線の2駅2路線が利用可能
「ザ・パークハウス 大森タワー」は京浜東北線「大森」駅まで徒歩3分の場所に誕生します。
京浜東北線は「東京」駅を挟んで埼玉・神奈川を結ぶ、どの方面へもアクセスの良い路線で「大森」駅から直通で「品川」駅6分、「川崎」駅8分、「横浜」駅21分。新幹線の乗り換え駅である「品川」駅をはじめ、京浜東北線沿線には乗り換え可能な路線が30以上あり「東京」駅まで18分、「渋谷」駅へ19分、「新宿」駅へも26分で到着します。

路線図。リニア中央新幹線の停車駅にもなる「品川」駅まで6分というアクセスは、これからさらに人気が出そう
マンションから徒歩9分の京浜急行線「大森海岸」駅からは「羽田空港第1・第2ターミナル」駅まで18分と、空港へのアクセスも良いです。
車での移動は大森海岸方面から、首都高1号線、首都高速湾岸線が利用しやすい立地。「大森」駅前からはバスも多く発着しています。さまざまな交通機関が利用できて、列車が遅延した際の代替手段としても心強いなと思いました。
わが家は昔、夫が都心勤務で私が横浜勤務という働き方をしていたことがあったのですが、「大森」駅の駅近マンションという選択肢があれば、お互いが通勤しやすくもっと時間に余裕を持てただろうなと思いました。夫婦で勤務地が違っていたり、実家への行きやすさや出張・旅行の際に負担がかからないなど、多方面へのアクセスが良いことで生活にゆとりを持てるという方は多いのではないでしょうか。
※表示分数は朝の通勤ラッシュ時(7:00~9:00)の所要時間で時間帯・運行状況により異なります。所要時間には、乗り換えに要する時間を加えています。
<物件概要>
所在地: 東京都大田区大森北1丁目11番9(地番)他3筆
交通:JR京浜東北線「大森」駅 (東口) 徒歩3分、京浜急行線「大森海岸」駅 (駅舎) 徒歩9分
総戸数:104戸
階数: 地上24階建て
引渡可能年月:2025年2月上旬(予定)
施工会社: 木内建設株式会社 東京本店
売主:三菱地所レジデンス株式会社、エヌ・ティ・ティ都市開発株式会社
豊富な種類の店舗と大規模な公園で充実した日々が過ごせる周辺環境
「ザ・パークハウス 大森タワー」は駅周辺の利便性を享受できる立地にあるため、マンション周辺で生活に必要な物が十分にそろいます。下町の雰囲気が残る商店街や便利な大型商業店舗などさまざまな顔を持つ周辺は歩いていて楽しかったです!

現地案内図。マンションの近くには線路の西側へ渡る道もあるので西口の店舗へも行きやすいです
なんといっても便利なのが「Luz大森」(徒歩1分、約20m)。マンションのすぐ向かいに位置するこの複合施設には大田区の区役所機能、図書館、薬局、100円ショップなどが入っています。わが家は洗剤やトイレットペーパーのストックに収納がかなり圧迫されているのですが、薬局が家の目の前にあれば都度買いに行くことができるので、ストック管理の手間も収納場所に悩むこともなくなってうらやましいです。
保育園や幼児教室、スポーツクラブ、眼科や歯科などのクリニックも入っていて、日常的に利用することが多くなりそう。マンションの向かいにこんなに便利な施設があるのは本当に心強い! 個人的には図書館があるのが大変気に入っていて、雨や暑さ寒さに左右されずに気軽に図書館を利用できるのはうれしいです。
スーパーマーケットは「西友大森店」(徒歩3分、約240m)、「アトレ大森」(徒歩3分、約180m)内の「東急ストア」、「イトーヨーカドー大森店」(徒歩7分、約490m)に加えて近くにも数店あります。価格や品ぞろえなどそれぞれに個性があり「電車で帰ってきたときに寄るのはここ」「冷凍食品はここが好き」「生鮮食品はここで」と使い分けられるのがいいなと思いました。私も夫もスーパーの人気商品などを調べて購入することが好きなので、家の近くで行ける店舗の種類が多いとテンションが上がります! 前述した3つのスーパーはどれも専門店が入っている大きな建物の中にあり、買い物ついでにほかの用事も済ませられるのもいいなと思いました。
外食するなら「大森銀座商店街Milpa」(徒歩2分、約110m)をはじめとした商店街が、にぎわっていていいなと思いました。老舗の和食店からチェーンのレストランなど飲食店の選択肢が豊富で、毎日違う物が食べられるなと思うくらいたくさんのお店が並んでいます。テイクアウトでも冷めないうちにマンションへ帰れる距離なので、さまざまな料理が楽しめそう。行きつけの店舗が増えていくのも楽しいです。

左上: 買い物、病院、図書館が一ケ所でできる「Luz大森」 右上:駅の改札を出てすぐに「アトレ大森」の入り口があります。駅から家までの動線上で買い物ができるので忙しい日々でも必要な物をさっと購入して帰れます 右下:「ロフト大森店」「フランフラン」など雑貨や「GU」などファッション、洋菓子店や喫茶もそろう「イトーヨーカドー大森店」 左下:商店街は「ランチは何にしようかな」と考えながら歩くだけで楽しかったです
大規模公園が徒歩圏内に複数あることもこのマンションのとても魅力的なポイントです。
1つ目は区立公園としては最大規模の総合公園「しながわ区民公園」(徒歩14分、約1,050m)。公園内には「しながわ水族館」を併設。訪れたことのある方も多いのではないでしょうか。広い敷地に、デイキャンプ場や桜の広場、人工湖「勝島の海」をぐるっと囲む散策路も設けられていて誰もが楽しめる公園です。子どもが喜びそうだなと思ったのは遊具がたくさんある「こどものあそび場」と、そこから小さなトンネルでつながる場所にあるプレイパーク「しながわこども冒険ひろば」。泥だらけになりながら、ときにはケガもしながら自由に遊べる場所は、子どもにとってかけがえのない経験とたくさんの学びを与えてくれそう。

左:「しながわ水族館」の前には売店やレストラン、持ってきたお弁当が食べられるテラス席もあります 右:多種多様な遊具があり夢中になって遊べる「こどものあそび場」
2つ目は大田区最大級の公園「平和の森公園」(徒歩15分、約1,150m)。思い思いに過ごせる広場はもちろん、本格的なフィールドアスレチックコースもあり体全体を使って遊ぶこともできます。「平和の森公園」の隣には、かつての大森海岸を再現した浜辺のある「大森ふるさとの浜辺公園」もあります。潮風に当たりながら砂浜を歩け、ここが東京であることを忘れてしまいそうなリゾート感のあるスポットです。
都内に住みながら徒歩圏にこれだけのアウトドア空間があるのはとても贅沢だなと思いました。マンションからすぐの場所にも遊具や水遊び場(夏季のみ)がある「入新井公園」(徒歩3分、約240m)をはじめ、明るく整備された公園が複数ありました。

左: 「大森ふるさとの浜辺公園」。訪問日は2月でまだ寒い季節でしたが日差しが暖かかったので、砂浜のベンチで休憩している方も多くて時間の流れがゆったりと感じられました 右:「平和の森公園」のフィールドアスレチックコース。ほかにも弓道場やテニスコートなどさまざまなスポーツ施設もあり、身体を動かしたくなります!
通学校の「入新井第一小学校」(徒歩5分、約380m)は改築中で、2024年度から新しい校舎へ移る予定。きれいな校舎に通わせることができるのは、親としてうれしいですね。マンションからも近く、車通りが気になりにくいルートで通うことができそうです。
もし、私立の学校に通わせるとしても電車で通える学校も多く、通学先の選択肢は広がります。学習塾や習い事の教室も駅周辺に多く見かけたので、子どもにあった学校や習い事を選べれば、子どもの力を最大限伸ばしてあげられそうだなと思いました。
街並みと調和した明るいデザイン×免震構造のタワーマンション
マンションは「大森」駅まで徒歩3分の表記になっていますが、歩いてみるともっと近く感じられました。マンションから駅への道はフラットで、ベビーカーでも困る場所はなさそうです。駅から建設地まで1ブロック越えるともうマンションのある区画になります。
本物件は24階建てのタワーマンションで手前の建物よりも背が高いので、完成すれば駅からマンションが見えるようになります。帰宅時に自分の家を見ながら帰れるのは個人的に嬉しいです。

ザ・パークハウス 大森タワーの外観(遠景)完成予想CG。駅の利用者や近くを通る人の印象に残りそうな外観!
建設地はエントランスのある南側と西側の一部が接道しています。周囲には建物がありますが、どの方角も中層階くらいからは抜けてきて、高層階はすっきりとした眺望を楽しむことができます。西向き・東向き低層階の、隣の建物が近い場所でも開口部まで6m以上空いていて通風がよさそう。南側にある「Luz大森」は12階建てですが、道路を挟み18~23mほど離れているので日当たりも良い住戸が多いでしょう。

左: 南西側から見た建設地。2方向に接道があるので開放的に感じました 右: エントランスができる南側の接道。人通りの多い通りから1本入るので、交通量は多くない印象です
建物や機械式駐車場はやや北に寄せてあり南側にゆとりを持たせた配棟。南側は歩道をセットバックしたりアプローチを設けたりと、完成したらゆとりのある面になります。車・バイク、自転車、歩行者それぞれ専用の出入り口がある歩車分離設計になっています。

敷地配置図イラスト。西側の接道している部分とアプローチ周辺には植栽が多く配置されていて、駅から歩いてきた際にマンション周辺で落ち着いた雰囲気を感じられそう
外観は柱が前面に出た、タワーの縦のラインが際立つデザイン。バルコニーの手すりが下からタイル、不透明、グラデーション、クリアと上に向かってだんだん透明になっていきます。低層階は街並みとの調和を意識しながら、高層階に向けてだんだんと空と馴染むようにこだわっているそうです。特に晴れた日は見上げると青空が映えてかっこいいだろうな思いました。

右:外観完成予想CG。直線が際立つデザインのマンションです! 左:エントランス完成予想CG。門柱やタイルなどのマテリアルにもこだわっていて、完成したらぜひ見てみたいです
エントランスや共用部はガラス張りを中心とし光を取り入れたクリアな雰囲気。庇からも光が差し込むよう一部空いている部分があり、明るいデザインが建物全体の高級感とマッチします。共用部のラウンジも光がたっぷりと入り、植栽の緑が目に入るのもリフレッシュできそう。

左:風除室完成予想CG。エントランス付近の透明感のある明るさに先進的な上品さを感じました 右:ラウンジ(集会室)完成予想CG。Wi-Fi完備のラウンジは1席ごとに区切られたカウンターもあるので、待ち合わせ時に利用するだけでなくここでテレワークもしたいです
構造は「免震構造」になっています。 「免震構造」は建物の基礎の部分に免震装置を入れるのですが、条件があったり費用がかさんだりするのでどのマンションでも採用できるわけではありません。しかし上層階でも家具の倒壊や物の落下被害を大幅に軽減することができます。見せていただいたシミュレーションでは、大きな地震でも家の中の物がほとんど倒れませんでした。子どもが家具の下敷きになってしまったらと不安になることがあるので、被災時に家の中が大きく混乱しないということは住まいを選ぶ大切な基準だなと思います。
ワイドスパンの間取りと暮らしやすい工夫が詰まった設備仕様
専有面積は、37.44m2~76.28m2、間取りは1LDKから3LDKまで9タイプあり、そのうちの8タイプが角住戸のプラン。一人暮らし、二人暮らしのご夫婦、子育てファミリーまで幅広い世帯が住むマンションになりそうです。特に一番多いのが2LDKの住戸なので、利便性重視の共働きご夫婦や、お子さんが独立され、部屋数が必要ない夫婦お二人も選びやすいプランだと思いました。どのタイプも開口部が6m以上(3LDKは10m超)となっていて、明るく広々と感じられるようになっているのが魅力的。すべての住戸の玄関脇に戸別宅配ボックスが設置され、大手3社からの宅配はここへ配達でき、施錠もされます。

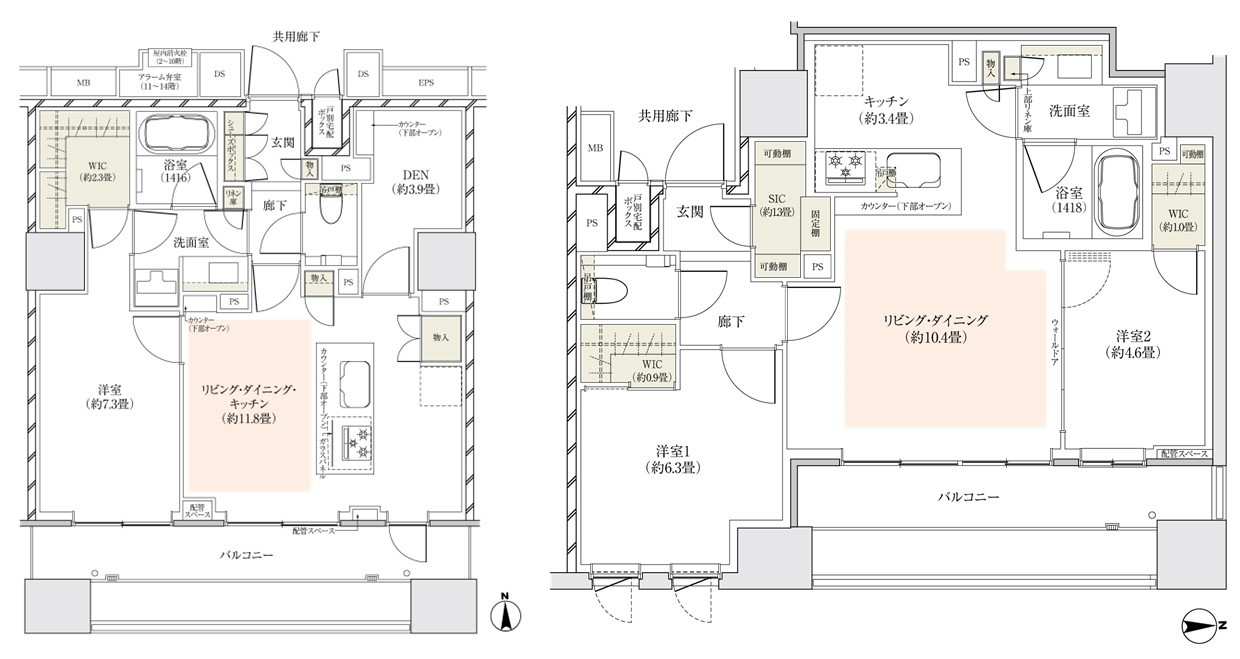
左:Cタイプ、1LDK+DEN+WIC、55.47m2の間取り図。アイランドキッチンや、廊下からも洋室からも洗面室へ行ける2way動線など回遊動線が生活しやすそうです。大きなウォークインクローゼットや書斎(DEN)も素敵 右:Dタイプ、2LDK+SIC+2WIC、61.02m2の間取り図。来客が多い方はリビングに入った際にキッチンがぱっと目に入らないこの間取りが便利そうだなと思いました。正方形に近いリビングダイニングは、家具レイアウトの自由度も高くて家具選びが楽しくなりそう
モデルルームはIタイプ、3LDK+FS+WIC+SIC+パントリー、76.28m2。ワイドスパンですべての居室に南向きの窓があります。リビングはコーナーサッシで日当たりがよく部屋全体が明るい印象。
キッチンはコの字になるようにカウンターが設置されていたり、通気用の窓があるなど使い勝手がとても良いのが気に入りました! コの字になっているおかげで収納棚が多く、キッチン横に設けられたパントリーも大容量なのですっきりと片付いたキッチンにできそう。リビングにも大きめのフリーストレージがあり、掃除用具などをたっぷり入れられます。廊下とリビングの動線上にあるので、利用頻度が高い物を収納したいです。モデルルームで実際の住戸を見ることで「あの家具をここに」「この収納は趣味の用具を入れよう」など具体的な生活を想像できました。

右上:Iタイプの間取り図。すべての居室がバルコニーでつながっているプラン。広いバルコニーに出て過ごすのも楽しそう! 左上:リビングダイニング。すっきり見える開放感のあるコーナーサッシがいい感じです。バルコニーにある柱も上品な質感で、窓から見える雰囲気を壊しません 左下:キッチンの収納がとにかくたっぷり。下部の収納は角のデッドスペースになりそうな部分や、足元部分まで収納スペースになっているのでぜひチェックしてみてほしいです
家具配置やインテリアも参考になりました。子ども部屋の、ドアから入った際に死角を作る家具配置はびっくりしました! 私はなるべく部屋が広く見えるようにと家具を決めることが多いのですが、狭く区切って落ち着く空間を作るという発想が素敵だなと思いました。モデルルームではぜひインテリアもチェックしてみてほしいです。

左:リビング横の洋室は、有償オプションの壁面収納とデスクがかっこよかったです。上部の梁にも木目が張ってあり、部屋になじんでいます 右:子ども部屋は手前に有償オプションの本棚を置いて区切ることで隠れ家のような空間にしていました。本棚裏にちょっとしたスペースがあり、子どもだけの秘密基地になりそう
設備仕様はリビングの床暖房、キッチンには食器洗い乾燥機、ディスポーザ、浴室のミストサウナ、トイレはローシルエット式で手洗いカウンターもあります。
私は以前から「ザ・パークハウス」シリーズの設備が使いやすそうでとても好きです。収納が豊富なキッチン、洗面化粧台の鏡裏の吊り下げ収納、コンセント付きのフリーストレージやパントリーはフラットな床でキャスター付きの収納棚も出し入れ可能。クローゼットのネクタイかけはネクタイだけでなくてアクセサリーをかけたりと、何かと重宝しそうです。

左上:キッチン吊戸棚。まな板置きの下部は通気ができるようになっているので、さっと拭いて収納しても清潔を保ててうれしい仕様 左下:三面鏡裏には吊り下げバー付き。バーやかけた物を扉で隠せるようになっていて、歯ブラシやシェーバーをかけておくのにぴったり。隠す部分に深さがあるので下から見えにくく見た目がすっきり 中:パントリーはキッチンの天井高と同じ2200㎜の高さまで収納可能。写真の収納棚は有償オプションなので、私だったら自分で好きな高さ・深さの収納棚を探して入れたいです 右:クローゼットはダボ穴がたくさんあるのでハンガーパイプの位置が自由に変えられます。ハンガーを掛けるだけでなく長い物が倒れないように押さえる役割や、フックをかけて小物をかけておくなど収納の使い方が広がります
【価格とまとめ】生活利便性と居住快適性を両立した「ザ・パークハウス 大森タワー」
第1期の販売価格は1LDK、37.44m2の間取りが5,688万円から、2LDK、62.32m2は 9,318万円から、3LDK、71.14m2が 11,540万円からとなっています。
「京浜東北線の駅近タワーマンション」という利便性の良さに惹かれてモデルルームを訪れました。交通利便の良い駅近マンションは、通勤時間を短縮したぶん時間を有意義につかえて、帰宅時に暗い道を通ることがなく、帰宅が遅くなることが多い方や電車通学をする子どもがいるファミリーにとってもメリットが大きいです。将来的に住み替えを考えている方も、JR京浜東北線「大森」駅徒歩3分の立地は資産性が期待できると思いました。
マンション全体の明るく洗練された雰囲気は、下町の雰囲気が残る大森エリアに馴染むトーンでありながら品格があり、年月を重ねてもあこがれを感じさせるデザインです。「免震構造」であることや、間取りは角住戸率87%で全タイプワイドスパン、隅々まで考えつくされた設備仕様など、購入時だけでなく「住み続ける」目線を重視していると感じました。
商業施設が集まる駅の近くでありながら、近隣には子どもが思いっきり遊べて大人もリフレッシュできる大規模な公園も多数。生活環境が整っているので、さまざまなライフスタイルの方が快適に暮らせそう。
利便性・居住性・周辺環境、どれも魅力的なマンションです。まずはオンラインでの個別相談会で話を聞いてみてはいかがでしょうか。
※掲載の情報は見学時点の情報です。(モデルルーム訪問日:2023年2月6日)
本コンテンツは、株式会社LIFULLからライターに依頼し、コメントを一部編集して掲載しています。
最新の詳細情報は、LIFULL HOME’S をご確認ください。

同じ東京都大田区のマンション「WoMansion」
東京都のマンション「WoMansion」
公開日: / 更新日: