大宮スカイ&スクエア ザ・タワーの建設現地に行ってきました!
本コンテンツは、株式会社LIFULLからライターに依頼し、コメントを一部編集して掲載しています。
女性にやさしいマンション情報「WoMansion」は、女性ライターが新築分譲マンションのモデルルームを訪問し、見たこと、聞いたこと、感じたことを紹介します。今回は番外編。モデルルームオープン前のマンションの現地周辺を見学してきました!
(現地訪問日:2022年3月19日)
こんにちは! 2人の子育て真っ最中のchiyuです。
今回は埼玉県さいたま市大宮区にある「大宮スカイ&スクエア ザ・タワー」の建設現場を見てきました! 大宮初の住・商複合再開発タワーレジデンスとして注目度が高く、さいたま市在住の私は、このプロジェクトが進むのをとても楽しみにしていました。モデルルーム案内会に先立って、周辺環境をぐるりと散策してきました。
目次
複数路線が利用できる埼玉のターミナル「大宮」駅
「大宮」駅から徒歩5分の位置にある「大宮スカイ&スクエア ザ・タワー」。
複数の路線が利用できるため、都心のさまざまな所へ乗り換えなしでアクセスできます。JR埼京線、JR湘南新宿ライン、JR上野東京ラインを利用して「赤羽」駅まで15分、JR上野東京ラインを利用して「上野」駅まで26分、「東京」駅まで33分、JR湘南新宿ラインを利用して「池袋」駅まで26分、「新宿」駅まで32分。
これらの場所までいずれも30分程度で移動できます。JR京浜東北線、JR埼京線は始発駅なので、朝の混雑時でも並べば座って通勤・通学ができます。
さらに、「大宮」駅は新幹線の停車駅でもあります。東北・秋田新幹線や北陸新幹線、上越新幹線、山形新幹線につながっているので、東北・北陸へのアクセスが便利です。
また、羽田空港行きのリムジンバスが運行しており、旅行や出張のときに移動の選択肢が増えます。「大宮」駅西口から「羽田空港」までは、1日11本、「羽田空港」から「大宮」駅までは1日14本、平均所要時間65分~110分で行くことができます。

「大宮」駅から30分程度で都心の主要な駅にアクセスできます
※掲載の所要時間は日中平時のもので、時間帯により異なります。乗り換え・待ち時間は含みません。
<物件概要>
所在地:埼玉県さいたま市大宮区桜木町2丁目902番(地番)
交通:JR「大宮」駅 徒歩5分東武アーバンパークライン「大宮」駅 徒歩5分、埼玉新都市交通伊奈線(ニューシャトル)「大宮」駅 徒歩5分
総戸数:総戸数522戸(一般販売対象戸数398戸)他に店舗・事務所区画23戸
階数:地上28階建て、地下2階建て
入居時期:2024年8月上旬(予定)
施工会社:前田建設工業株式会社
売主:日鉄興和不動産株式会社、三井不動産レジデンシャル株式会社、丸紅都市開発株式会社
再開発が進む「大宮」駅周辺
「大宮」駅周辺では、いくつもの大規模再開発が進行中です。
見学時、特に印象的だった大宮区のシンボル的な高層ビルといえば「大宮」駅西口にある「大宮ソニックシティ」。31階建ての主にオフィスが入るビルと、コンサートができるホール、さらにホテルからなる高層ビルです。
「大宮」駅西口では、この「大宮ソニックシティ」北側の「大宮駅西口第三地区」をA、B、C、D、Eブロックに分け、順番に再開発が行われる予定。このBブロックに位置し、先陣を切ってスタートするのが、「大宮スカイ&スクエア ザ・タワー」と商業施設を含む街区「大宮サクラスクエア」の再開発です。
「大宮サクラスクエア」は、地上13階建てのA棟、地上28階地下2階のタワーレジデンスと商業施設からなるB棟、道路の新設を予定しています。合計敷地面積は約8,200m2あり、このプロジェクトだけでも大規模な再開発となります。

左:店舗施設とマンションのフロア概念図。マンション側の1階~3階にも店舗が入る予定になっています 右:再開発予想CG
このプロジェクトの後には、A、Dブロックの再開発「大宮駅西口第3-A・D地区第一種市街地再開発」も控えています。
2025年竣工予定のこのプロジェクトは、「大宮スカイ&スクエア ザ・タワー」と隣接した敷地から国道17号線とも接した場所に位置し、商・働・住の一体開発が行われます。歩道空間に店舗が並ぶ「まちなかガレリア」と、イベント広場「まちなかプレイス」が整備される予定。こちらにも約230戸のマンションが建設されるので、「大宮スカイ&スクエア ザ・タワー」とともに大きなマンションが2棟建つことになります。
現地見学時にはCとEの再開発内容は明かされていないため、「大宮第三地区」全体としてどのように街が変化していくのか楽しみです。
東口では、エリア初の再開発複合施設「大宮門街」が2022年4月以降に順次オープン予定。1~6階は、ショップやサービス、レストランのフロア、4~9階はコンサートなどができる「CIVIC HALL」の「RaiBoC Hall(レイボックホール、市民会館おおみや)」が入居し、10~18階はオフィスフロアになります。
「大宮」駅の西口・東口とも再開発が始まっていて、どんどん街並みが整備されていきます。「大宮スカイ&スクエア ザ・タワー」は、まさにその再開発されている場所に立つマンション。周辺のめざましい変化を感じながら暮らせるでしょう。

外観(遠景)完成予想CG
「大宮」駅から徒歩5分の便利な立地
「大宮スカイ&スクエア ザ・タワー」は、「大宮ソニックシティ」の北側に位置します。
公式ホームページに載っていた推奨ルートを通って現地に向かいました。「大宮」駅西口を出てペデストリアンデッキを北に向かって歩き、「大宮アルシェ」前の階段を降ります。 デッキを降りてからはフラットで広い歩道がつづいており、信号が1つあるのみ。快適に歩くことができました。こちらが最短の道のりです。

現地案内図を見ても、駅から近いことがよくわかります
駅から「そごう大宮店」、「大宮ソニックシティ」へとつながるペデストリアンデッキを通るルートも歩いてみました。
こちらは信号がないのでノンストップで「大宮ソニックシティ」横の公園「鐘塚公園」まで出ることができます。「鐘塚公園」まで出れば信号のない道を渡って北側がすぐマンションですので、私はさほど遠回りをしたという印象は受けませんでした。「そごう大宮店」や「ビックカメラ大宮西口そごう店」で買い物をしたいときや、気分を変えたいときなどはこちらを利用するといいでしょう。

左:「大宮」駅を出ると広いペデストリアンデッキがあり、「大宮ソニックシティ」方面までつながっています 右:ペデストリアンデッキを降りてすぐのマンションに向かう道。広く歩きやすい歩道があります
大型商業施設とエンターテインメント施設を日常使いできる恵まれた立地
再開発も楽しみですが、すでに「大宮」駅周辺には、いくつもの大型商業施設が林立しています。エキナカで買い物ができる「エキュート大宮」(徒歩5分、約360m)をはじめ、「ルミネ大宮1・2」(徒歩5分、約360m)、「そごう大宮店」(徒歩4分、約320m)、「大宮アルシェ」(徒歩4分、約300m)、「大宮西口DOMショッピングセンター」(徒歩3分、約210m)、「ビックカメラ大宮西口そごう店」(徒歩5分、約340m)、「大宮タカシマヤ」(徒歩8分、約640m)など、買い物に困ることはないでしょう。

大宮スカイ&スクエア ザ・タワーの現地航空写真
さらに、駅からの帰り道に買い物をするなら、スーパーは「大宮西口DOMショッピングセンター」内にある「ダイエー大宮店」(徒歩3分、約210m)か、「そごう大宮店」内にある「ザ・ガーデン自由が丘 大宮店」(徒歩4分、約320m)が便利です。前述の「大宮サクラスクエア」にも株式会社マルエツが運営する食品スーパーマーケットが入る予定ですので、こちらを利用することもできます。行くところが多すぎて、どこに行くか頭を悩ませてしまうくらい充実しています!
私が個人的におすすめしたいのは「ホームズさいたま中央店」内にある「角上魚類 ホームズさいたま中央店」(約990m、徒歩13分)。自転車か車があった方が行きやすいですが、新鮮な魚介類が安く手に入ると人気のスーパーです。寿司店に食べに行くより安価でおいしい魚が食べられるので、魚を食べたくなったらぜひ行ってみてほしいです。

駅から「大宮アルシェ」方面を見たところ。反対側に「そごう大宮店」と「ビックカメラ大宮西口そごう店」があります
マンションの周辺にはあまり大きい公園はありませんが、「大宮公園」(約1,850m)は何度でも足を運びたくなる公園です。マンション建設地から自転車で「大宮公園」に向かいましたが、表記の距離ほど遠くは感じませんでした。
見学時は満開の桜をみることができませんでしたが、満開になると露店が立ち並び、大勢の人が花見に訪れます。
花見ができる広場の隣には、遊具がある公園と無料で入園できる「大宮公園小動物園」があり、子どもも楽しめる公園です。
そして「大宮公園」にはサッカーチーム大宮アルディージャの本拠地「NACK5スタジアム大宮」もあります。サッカーに興味のある子どもがいたら、いつでもプロの試合を生で観戦できることで、いい刺激になりそうですね。
「大宮公園」の隣には歴史のある神社「氷川神社」(約1,440m)があります。「さいたま新都心」から「氷川神社」につづく「氷川参道」(約1,180m)は、緑が多く歩行者専用の歩道もあるので散歩しやすく、気候がいい季節は参道を歩いているだけでさわやかな気分になれます。

左:「大宮公園」の遊具広場。いろいろな遊具がある広い公園です 中:遊具広場の隣にある無料の「小動物園」。小さい子ならここだけでも満足して帰れそう 右:氷川参道
子どもをちょっと遊ばせたいというときに利用できそうな近所の公園は、「大宮ソニックシティ」にある「鐘塚公園」(約140m、徒歩2分)。遊具などはないので、少し走りたいときや外に出たいときに利用する公園になるでしょう。

左:マンションから1番近い「大宮ソニックシティ」横の「鐘塚公園」 右:マンションから住宅街に歩いていくとある「桜成公園」にはすべり台、鉄棒、ブランコに砂場もあるので、散歩がてらこちらの公園まで行けばいろんな遊びができそうです
「大宮」駅周辺は、遊びや教育、エンターテインメント施設も充実。鉄道好きにはたまらない「鉄道博物館」(約1,650m)や建て替えが終了してきれいになった「大宮図書館」(約1,450m)、プラネタリウムを楽しめる「さいたま市宇宙劇場」(約190m)、コンサートやイベントが開催される「大宮ソニックシティ」(約140m)、「さいたまスーパーアリーナ」(約2,000m)など、休日も楽しくすごせる施設が近くに多数あります。
指定校は「市立桜木小学校」(約710m、徒歩9分)と「市立桜木中学校」(約420m、徒歩6分)です。
中学校受験を検討する方も一定数いるエリアかと思いますが、交通アクセスが良く、私立を入れればかなりの数の中学校から選択できます。私が個人的に注目しているのが、国際的な視野で探求し続ける「真の学力の育成」を掲げている中高一貫の人気校、「さいたま市立大宮国際中等教育学校」。大宮駅西口からスクールバスが出ているので、もし合格できたら、通学がしやすいというメリットがあります。
さらに「あづま進学教室大宮本部教室」「早稲田アカデミー大宮校」「日能研大宮校」「SAPIX大宮校」など多くの塾が駅のまわりに集まっています。進学塾以外の塾もあるので、「授業の補助として塾に通わせたい」というニーズにマッチした塾も探しやすそうです。
街の防災拠点としての役割も果たす免震構造タワーマンション
マンションはエントランスが1階にあり、住居は4階から28階となります。総戸数は522戸で一般に分譲されるのは398戸、1LDK~3LDKで広さ40.72m2~123.1m2、単身の方からファミリーまで検討できるマンションです。
共用施設は、4階にコミュニティスペースに活用できる「ワーキングラウンジ」と、個室で集中して仕事ができる「ワーキングブース」、会議にも利用できる「カンファレンスルーム」ができる予定。ほかにも16階にはパーティーができる「マルチスタジオ1・2」、4階には「ゲストスイート1・2」、屋上庭園の「スカイラウンジ」があります。
また、防災備蓄倉庫や帰宅困難者の一時滞在スペースを確保しており、街の防災拠点としての役割も担っています。

左:4階にあるグランドロビーの完成予想CG。来客があった場合にここに座って応対することができます 右:1階のウェルカムラウンジ完成予想CG。曲線が美しく、目で見ても楽しめる空間です
現地と完成予想CGや間取り図から推測すると、住戸は南向きと北向きが中心になるのではないかと思います。南向きの住戸は、向かいが「大宮サクラスクエア」にある3階建ての商業施設、そのうしろに「大宮ソニックシティ」が立っています。道路から見た感じではそこまで圧迫感があるようには感じませんでした。

左:建設現地。駅から近い道路沿いの南側が商業施設になる予定です 右:北側から見た現地
駅からエントランスに向かう東側の道は細い一方通行の道路で、いくつかお店が並んでいます。この東側とマンションや住居、店舗が並ぶ北側は前述した再開発予定地CとEの場所にあたるので、どのように開発されていくかは見学した時点ではわかりません。先に購入することに不安を感じるかもしれませんが、今後の変化が楽しみだなと私は思いました。
購入する層は限られそうですが、私はやはり1番広くてプレミア感のある最上階住戸が気になります! 窓が多く眺望も抜けていそうなので、実際の部屋を1度見てみたいと思いました。

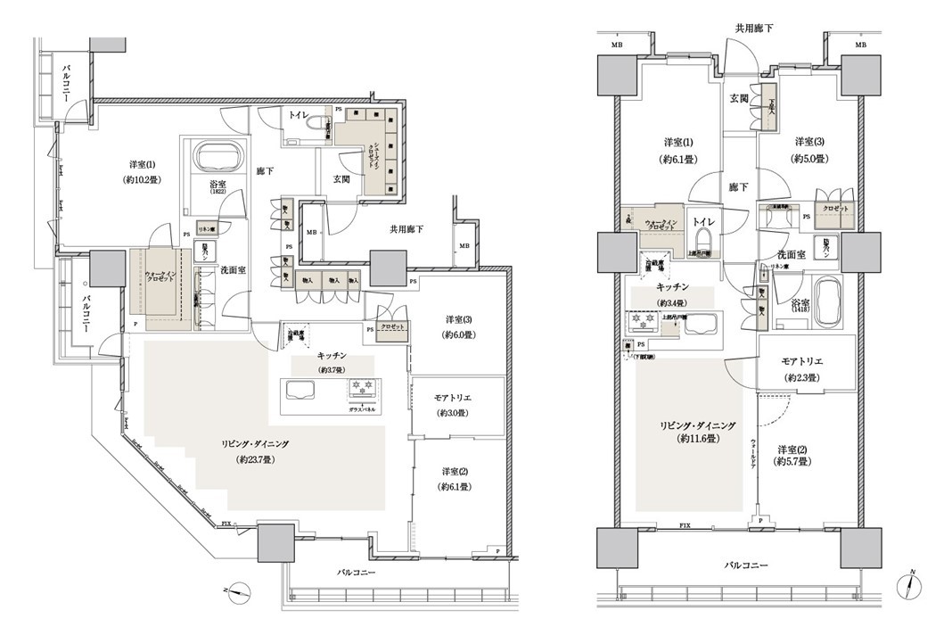
左:123.17m2、3LDK+WIC+モアトリエ+SICの西向き最上階120Mtタイプ住戸。約23畳の大空間と大開口で実際の空間以上の広さを感じそう。モアトリエはワーキングスペースとして利用したらほどよいこもり感が得られそうな空間です 右:73.18m2、3LDK+モアトリエ+WICの南向き70Jタイプ。リビング横の洋室(2)はウォールドアになっており、広いリビングダイニングとしても使える可変性のある間取り
「大宮」駅西口の再開発計画のまず初めに建つマンションが、この「大宮スカイ&スクエア ザ・タワー」です。駅から徒歩5分の立地に、522戸もの大規模マンションができるというだけでも注目度が高いと思われます。
街中にありながら、少し足をのばせば緑を感じることができる「大宮公園」にも行ける立地。塾も多くあり、子育てをしている世帯にも住みやすい場所です。
また、複数路線が利用でき、JR京浜東北線とJR埼京線は始発であることから、都内へ通勤している方も検討の対象に入るでしょう。
都内への利便性だけでなく、1LDK~3LDKという間取りの豊富さがあるため、単身者からファミリーまで検討したくなるマンションだと思いました。
これだけ便利な立地にあるタワーマンションなので価格が気になりますが、大宮エリアでの注目プロジェクトなだけに、人気が出そうな予感。
モデルルームの案内会が開始しています! 私もぜひ見学に行きたいと思っています!
※掲載の情報は見学時点の情報です。(現地訪問日:2022年3月19日)
本コンテンツは、株式会社LIFULLからライターに依頼し、コメントを一部編集して掲載しています。
公開日: / 更新日: