新築一戸建て 新築デザイナーズ分譲住宅全3棟 注文建築仕様の建物 勾配天井LDK ららぽーと至近 都筑区佐江戸町
- 価格
- 4,497.5万円~4,697.5万円
- 所在地
- 神奈川県横浜市都筑区佐江戸町
- 交通
- 横浜市営地下鉄グリーンライン「川和町」駅 徒歩20分JR横浜線「鴨居」駅 徒歩21分東急田園都市線「市が尾」駅 バス23分「貝の坂」バス停 徒歩6分
乗り換え案内
- 土地面積
- 107.95m2~132.64m2
- 建物面積
- 90.08m2
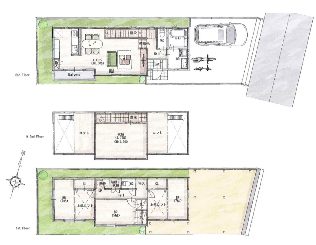
- 間取り
- 3LDK
勾配天井LDKや中2階大空間収納!注文建築のような暮らしやすさと工夫された間取り!
0037-618-30789
無料
魅力1 スムージングハウスでは当日の現地見学も可能です!お気軽にご連絡ください。
魅力2 スムージングハウスでは当日の現地見学も可能です!お気軽にご連絡ください。
魅力3 スムージングハウスでは当日の現地見学も可能です!お気軽にご連絡ください。
0037-618-30789
無料
間取り図
0037-618-30789
無料
内観・室内
間取り・内観のこだわりポイント
- LDK15帖以上
- ロフト付き
- ワイドバルコニー
- 南面バルコニー
- 全室2面採光
- 全室フローリング
- 3階建て
0037-618-30789
無料
設備・仕様
設備・仕様のこだわりポイント
- キッチン
-
- カウンターキッチン
- 食器洗い乾燥機
- 浄水器・活水器
- ガスコンロ
- 収納
-
- 床下収納
- ウォークインクローゼット
- パントリー
- 全居室収納
- その他設備
-
- 都市ガス
- シャワー付洗面化粧台
- 温水洗浄便座
- 浴室乾燥機
- 浴室暖房
- トイレ2ヶ所以上
- 節水型トイレ
- 床暖房
- 複層ガラス採用(二重サッシ・防犯サッシ等)
- スマートキー
- 省エネ給湯器
- TVモニタ付インターホン
0037-618-30789
無料
外観・分譲地
外観・分譲地のこだわりポイント
- 駐車場あり
- 地盤調査済
- 隣家との間隔が広い
0037-618-30789
無料
周辺環境・地図
-
【買い物】
ららぽーと横浜 (1000m)
約270店舗が集う大型ショッピングモールで、ファッション・グル...
-
【買い物】
オーケー川和町店 (540m)
生鮮品の鮮度と価格のバランスに定評があり、店内ベーカリーの焼き...
-
【買い物】
まいばすけっと横浜青砥町店 (1100m)
青砥町の住宅街に位置し、惣菜・野菜・日用品まで手頃な価格で揃う...
-
【買い物】
まいばすけっと横浜白山2丁目店 (2010m)
横浜市緑区白山にあるイオングループの小型スーパーで、朝7時から...
-
【学校】
横浜市立都田西小学校 (1400m)
豊かな自然環境と地域の温かい支えの中で、子どもたちの自主性と思...
-
【学校】
横浜市立都田中学校 (2100m)
地域とのつながりを大切にしながら、生徒の自主性と協調性を育む教...
-
案内図
-
交通図
周辺環境のこだわりポイント
- スーパー 800m以内
- 複数路線
0037-618-30789
無料
物件概要
| 所在地 | 神奈川県横浜市都筑区佐江戸町 | ||
|---|---|---|---|
| 交通 |
横浜市営地下鉄グリーンライン「川和町」駅 徒歩20分 JR横浜線「鴨居」駅 徒歩21分 東急田園都市線「市が尾」駅 バス23分「貝の坂」バス停 徒歩6分 |
||
| 販売価格 | 4,497.5万円~4,697.5万円 | 最多価格帯 | - |
| 建物面積 | 90.08m2 | 土地面積 | 107.95m2~132.64m2 |
| 間取り | 3LDK | 建物構造 | 木造3階建 |
| 販売スケジュール | 販売中 | ||
| 販売戸数 / 総戸数 | 3戸 / 3戸 | ||
| 完成予定日 | 2026年3月 | 引き渡し可能年月 | 即引渡可 |
| 駐車場 | 1台 ~ 2台 | 道路の幅員 | 3.5m |
| 用途地域 | 工業地域 | 都市計画 | 市街化区域 |
| 地目 | 宅地 | 国土法 | - |
| 土地の権利 | 所有権 | 借地権の種類・期間 | - |
| 主たる設備の概要 | 公営水道、本下水、都市ガス | 建築確認番号 | 完成済みのため省略 |
| 施工会社 | - | 機構融資 | - |
| 売主 | 取引態様 | (株)スムージングハウス 仲介 | |
| 備考 |
☆☆スムージングハウスでは当日の現地見学も可能です!お気軽に『0120-75-3232』までお問い合わせください!☆☆ ■スムージングハウスの各種無料サービス (1)ライフプランシュミレーション 最もご好評頂いているサービス。 生涯のお金の計算書を無料で作成させていただきます! 住宅費と教育費を払いながらも65歳時点で老後資金を2500万円以上の確保できるプランをご提案! (2)物件調査 近隣への聞き込みで、過去の災害や事件、トラブルは勿論のこと、教育環境等も調査し、ご契約前にご報告いたします。 (3)その他、6種のサービスを無料で利用できます。 |
||
| 情報更新日 | 2026/05/03 | 次回更新予定日 | 2026/05/17 |
| 取引条件有効期限 | 2026/12/31 | ||
住宅性能・販売概要・権利のこだわりポイント
- 所有権
- 瑕疵担保付き
- 即入居可
0037-618-30789
無料
取扱い不動産会社
スタッフからのコメント
- 「不動産売買を、もっとスムーズに。もっと安心に。」
- 物件提案だけでなく、資金計画やライフプラン、ときには将来の売却や住み替えまで、一歩先を見据えたご提案をお約束します。
これからマイホームをご検討されるすべてのご家族に、“スムーズなお取り引き”をお届けできるよう、全力でサポートいたします。
売りたい物件を売るのではなく、お客様のニーズにあった提案をさせていただき、満足していただけるよう、培ってきた経験を生かし、一生の思い出に残る住宅探しのお手伝いをさせていただきますので是非とも私共にお任せください!
本田 裕輝
株式会社スムージングハウスの会社情報
お電話でのお問合せは「LIFULL HOME'S(ライフルホームズ)を見て」とお伝えください
(株)スムージングハウス
0037-618-30789
無料
- ※携帯電話はご利用いただけます
- ※光IP電話、及びIP電話をご利用のお客様はTEL:0120-75-3232へご連絡ください
- ※携帯電話からお問合せいただいた方には、ショートメッセージ(SMS)またはLINE通知メッセージによるお問合せ内容に関する通知をお届けする場合があり、お客様の電話番号は株式会社LIFULLで一定期間保管されます
- ※株式会社LIFULLの個人情報の取扱い方針に同意のうえ、お電話ください
| 会社名 |
株式会社スムージングハウス |
|---|---|
| 免許番号 | 神奈川県知事 (1) 第 32856 号 |
| 所在地 | 神奈川県横浜市港北区新横浜3丁目12-1 ドレッセ新横浜 1階 |
| 所属団体 |
(公社)全日本不動産協会神奈川県本部 |
この物件にお問合せする
実際に物件・周辺環境を見て検討したい!
近隣建物や接道の状況など資料で分からない部分も一目瞭然。 まずはWEBで事前予約、スムーズに見学しましょう
ご予約無しに直接ご来場された場合、担当者不在であったり、
他のお客様のご案内の都合上、お待たせしてしまうことがございます。
不動産会社に電話で相談したい!
(株)スムージングハウス
0037-618-30789
無料
電話でのお問合せは「LIFULL HOME'S(ライフルホームズ)を見て」とお伝えください
- ※携帯電話はご利用いただけます
- ※光IP電話、及びIP電話をご利用のお客様はTEL:0120-75-3232へご連絡ください
- ※携帯電話からお問合せいただいた方には、ショートメッセージ(SMS)またはLINE通知メッセージによるお問合せ内容に関する通知をお届けする場合があり、お客様の電話番号は株式会社LIFULLで一定期間保管されます
- ※株式会社LIFULLの個人情報の取扱い方針に同意のうえ、お電話ください
LIFULL HOME'Sは物件鮮度No.1を目指していきます 物件情報に誤りがある場合はコチラからご連絡ください
- 【物件番号】
- 1708590-0000078
- ※完成後1年未満で未入居の物件を「新築」と表示しております。
- ※完成予想図やCG合成画像は、門塀・植栽・庭・外観等、実際とは多少異なる場合があります。
物件を再検索する
横浜市の人気エリアから新築一戸建てを探す














