新築一戸建て 車2台分、おしゃれなスケルトン・リビング階段【FーSTYLE東浦和】(第55期東浦和)
この物件は未完成のため、掲載写真(外観、内観、設備等)には、施工例が含まれている場合があります。物件詳細については、掲載の不動産会社宛にお問合せください。
■カースペース2台分(車種による)と駐輪スペース確保。■玄関には人気のシューズクローク1.25帖分の広さ。■リビングダイニングの天井高さ2.6mで開放感のある設計。■全居室6帖以上。
●リビング階段は、おしゃれなスケルトン階段を採用。リビングは天井高と合わせて広がりが生まれます。
●子育てグリーン住宅支援事業補助金対象物件(予算・期限あり)●長期優良住宅認定住宅、ZEH水準の断熱性、耐震等級最高値「3」など、安心と充実の建物スペック。
0037-618-76384
無料
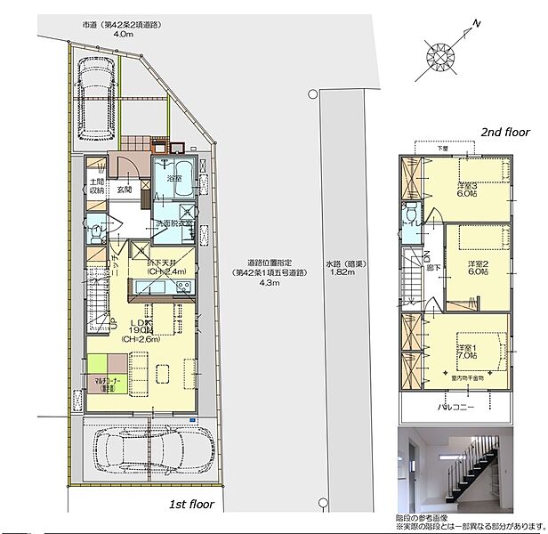
間取り図
0037-618-76384
無料
内観・室内
間取り・内観のこだわりポイント
- LDK15帖以上
- 全居室6帖以上
- バリアフリー
- ワイドバルコニー
- 南面バルコニー
- 全室フローリング
- 天井高2.5m以上
0037-618-76384
無料
設備・仕様
設備・仕様のこだわりポイント
- キッチン
-
- カウンターキッチン
- 食器洗い乾燥機
- 浄水器・活水器
- ガスコンロ
- 収納
-
- 床下収納
- シューズクローク
- 全居室収納
- その他設備
-
- 都市ガス
- シャワー付洗面化粧台
- 温水洗浄便座
- 浴室乾燥機
- 浴室暖房
- トイレ2ヶ所以上
- 節水型トイレ
- 複層ガラス採用(二重サッシ・防犯サッシ等)
- 省エネ給湯器
- 宅配ボックス
0037-618-76384
無料
外観・分譲地
外観・分譲地のこだわりポイント
- 駐車場あり
- 低層住宅地
- 地盤調査済
- 角地
- 整形地
0037-618-76384
無料
周辺環境・地図
周辺情報
※半径4kmを超えると、周辺情報のアイコンは表示されません。
- ※不動産会社が入力した情報を基に物件の位置を表示しています。
- ※詳しくは不動産会社までお問合せください。
- ※地図上に表示される各種アイコンなどの情報は、おおよその所在地を表すものであり、物件・施設などの地点を保証するものではありません。
- ※地図の表示領域が広域になると周辺のお店・施設は表示できなくなります。
- ※地図、航空写真情報および地形ならびに周辺のお店・施設は、必ずしも現況を表すものではありません。
- ※物件から周辺のお店・施設までの距離は、利用が想定される道路を通行した場合の距離です。なお、必ずしも最短距離を保証するものではありません。
周辺環境のこだわりポイント
- 小学校 800m以内
- 中学校 800m以内
0037-618-76384
無料
物件概要
| 所在地 | 埼玉県さいたま市緑区大字大牧1344-3 | ||
|---|---|---|---|
| 交通 |
JR武蔵野線「東浦和」駅 徒歩17分 |
||
| 販売価格 | 4,780万円 | 最多価格帯 | - |
| 建物面積 | 89.42m2 | 土地面積 | 103.13m2 |
| 間取り | 3LDK | 建物構造 | 木造2階建 |
| 販売スケジュール | 先着順受付中 | ||
| 販売戸数 / 総戸数 | 1戸 / 1戸 | ||
| 完成予定日 | 2026年2月下旬 | 引き渡し可能年月 | 2026年3月中旬 |
| 駐車場 | 2台 | 道路の幅員 | 北西側4.0m公道、北東側4.3m私道 |
| 用途地域 | 第一種低層住居専用地域 | 都市計画 | 市街化区域 |
| 地目 | 宅地 | 国土法 | - |
| 土地の権利 | 所有権 | 借地権の種類・期間 | - |
| 主たる設備の概要 | 電気、公営水道、公共下水・都市ガス | 建築確認番号 | 第SJK-KX255406360 号 |
| 施工会社 | (株)藤島建設 | 機構融資 | - |
| 売主 | 株式会社 藤島住宅 [埼玉県知事(15)第003577号] | 取引態様 | 株式会社藤島住宅(売主) |
| モデルルーム情報 | 他完成済み物件をモデルハウスとしてご案内いたします。 | ||
| 備考 |
◎現地、内見可能です。お気軽にお問い合わせください。事前のご予約をお勧めいたします。 ◎住宅ローンなど資金計画についてもお気軽にご相談ください。提携銀行を含め幅広い金融機関から最適の住宅ローンのシミュレーションを作成いたします。 ◎昭和35年の創業以来、さいたま市や川口市など埼玉県南エリアにおいて地域に密着し、 お客様との「住まいの心・ふれあい」を大切に、優れた技術力ときめ細やかなサービスで、 安心・安全・快適な質の高い住まいを10,000棟以上供給してまいりました。 ◎設計・施工・販売・アフターサービスの自社一貫体制で安心。 |
||
| 情報更新日 | 2026/01/20 | 次回更新予定日 | 2026/02/03 |
| 取引条件有効期限 | - | ||
住宅性能・販売概要・権利のこだわりポイント
- 所有権
- 瑕疵担保付き
- 仲介手数料不要
- 売主・代理
- 耐震・制震・免震構造
- 長期優良住宅
- 設計住宅性能評価書
- フラット35・S適合証明書
- 建設住宅性能評価書(新築時)
0037-618-76384
無料
取扱い不動産会社
株式会社藤島住宅 武蔵浦和支店の会社情報
お電話でのお問合せは「LIFULL HOME'S(ライフルホームズ)を見て」とお伝えください
株式会社 藤島住宅 武蔵浦和支店
0037-618-76384
無料
- ※携帯電話はご利用いただけます
- ※光IP電話、及びIP電話をご利用のお客様はTEL:048-866-7111へご連絡ください
- ※携帯電話からお問合せいただいた方には、ショートメッセージ(SMS)またはLINE通知メッセージによるお問合せ内容に関する通知をお届けする場合があり、お客様の電話番号は株式会社LIFULLで一定期間保管されます
- ※株式会社LIFULLの個人情報の取扱い方針に同意のうえ、お電話ください
| 会社名 |
株式会社藤島住宅 武蔵浦和支店 |
|---|---|
| 免許番号 | 埼玉県知事 (15) 第 3577 号 |
| 所在地 | 埼玉県さいたま市南区別所7-6-8-102 |
| 所属団体 |
(公社)埼玉県宅地建物取引業協会 |
この物件にお問合せする
実際に物件・周辺環境を見て検討したい!
近隣建物や接道の状況など資料で分からない部分も一目瞭然。 まずはWEBで事前予約、スムーズに見学しましょう
ご予約無しに直接ご来場された場合、担当者不在であったり、
他のお客様のご案内の都合上、お待たせしてしまうことがございます。
不動産会社に電話で相談したい!
株式会社 藤島住宅 武蔵浦和支店
0037-618-76384
無料
電話でのお問合せは「LIFULL HOME'S(ライフルホームズ)を見て」とお伝えください
- ※携帯電話はご利用いただけます
- ※光IP電話、及びIP電話をご利用のお客様はTEL:048-866-7111へご連絡ください
- ※携帯電話からお問合せいただいた方には、ショートメッセージ(SMS)またはLINE通知メッセージによるお問合せ内容に関する通知をお届けする場合があり、お客様の電話番号は株式会社LIFULLで一定期間保管されます
- ※株式会社LIFULLの個人情報の取扱い方針に同意のうえ、お電話ください
LIFULL HOME'Sは物件鮮度No.1を目指していきます 物件情報に誤りがある場合はコチラからご連絡ください
- 【物件番号】
- 1708575-0000004
- ※完成後1年未満で未入居の物件を「新築」と表示しております。
- ※完成予想図やCG合成画像は、門塀・植栽・庭・外観等、実際とは多少異なる場合があります。






