新築一戸建て 【新生活応援プレゼント対象物件】Cradle garden 瑞浪市学園台 第2期 全5邸
- 価格
- 1,690~1,990万円
- 所在地
- 岐阜県瑞浪市学園台
- 交通
- JR中央本線「瑞浪」駅 バス11分「学園台」バス停徒歩2分 徒歩35分
乗り換え案内
- 土地面積
- 229.68m2~230.29m2
- 建物面積
- 94.77m2~100.44m2
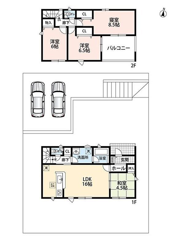
- 間取り
- 3LDK+S~4LDK+S
■選べる家具家電プレゼント対象物件!
■頭金0円で住宅ローン可能!
■家具家電、車、引越代など他借入もおまとめ可能!
■即日案内可能!
・住宅性能評価取得!耐震等級3(最高等級)!
・並列駐車2台可能!前道6mで駐車ラクラク!
・スーパー 徒歩15分!
・コンビニ 徒歩13分!
■掲載されていない物件情報も多数有!地域密着の担当スタッフにお気軽にご相談下さい!
■当社の営業スタッフは住宅ローンアドバイザーの資格があり、お客様に合わせた資金計画をご提案致します!ご安心下さい!
0037-618-48937
無料
魅力1 ~人生100年時代に長く、安全・快適・健康に暮らしていただくために~
■耐震+制震の家、QUIE(クワイエ)。
当社の住宅は建築基準法で定められた壁量の1.5倍に達する十分な性能を誇っています。また、当社では自主基準として全戸の基礎の主筋に16mm鉄筋を採用しています。
地震の揺れに耐える「耐震性能」と、揺れを抑えて住宅へのダメージを軽減する「制震性能」を兼ね備えた建売住宅ブランド「QUIE」 。ふたつの備えで、お客様の家を守ります。
■住宅性能表示制度の4分野6項目において最高等級を取得!
国土交通大臣に登録を行った、第三者機関の登録住宅性能評価機関に所属する評価員がチェックを行い、耐震等級など4分野6項目において最高等級取得しておりますので、安心です。
魅力2 ~「好立地」「高品質」な家を「好価格」でお届けするために~
■家族が笑顔になれる家
飯田グループは、年間約46000戸以上の家を提供しています。分譲住宅日本一だからこそできる「好立地」「高品質」な家を「好価格」でお届けしています。
住宅の規格化を進め、全国で建てる木材の一部を自社工場で一括して製造することで資材調達コストの削減、必要な木材を工場であらかじめ加工する、徹底した品質管理など、いい家をリーズナブルに提供できるのはスケールメリットを最大限に活かしているからです。
■信頼のアフターサービス
住宅をお引渡ししてからも、お客様の快適な住まいを維持するために、ご購入いただいた後も安心のアフターサービスを実施いたします。
魅力3 ~東海(岐阜・愛知・三重)関西エリアを中心に展開しております~
■納得のいくお家探し
経験豊かなスタッフが購入から売却、相続のご相談まで一貫してお手伝いいたします。また、親切丁寧にお客様のライフスタイルなどをお伺いしたうえで、お客様に合ったお家をご提案させていただきます。
■グループで幅広く展開
東海エリアを中心に関西などに店舗を展開しております。
各エリアから常に情報収集を行っておりますので、物件の最新情報をいち早くお届けできます。取引社数、顧客数も多く、売却にも強みがあります。
■住宅ローンに強い
住宅ローンが不安、他借入をおまとめしたいなど、お悩みがある方はお気軽にご相談ください。
当社の住宅ローンアドバイザーが全力でサポートさせていただきます。
0037-618-48937
無料
間取り図
-
Cradle garden 瑞浪市学園台 第2期 全5邸 間取り 3LDK+S~4LDK+S 価格 1690万円 建物面積 94.77m2~100.44m2 土地面積 229.68m2~230.29m2 -
1号地 間取り 4LDK+S 価格 1890万円 建物面積 96.79m2 土地面積 229.68m2 -
2号地 間取り 4LDK+S 価格 1690万円 建物面積 95.58m2 土地面積 230.19m2 -
4号地 間取り 4LDK+S 価格 1990万円 建物面積 100.44m2 土地面積 230.29m2 -
5号地 間取り 3LDK+S 価格 1890万円 建物面積 98.01m2 土地面積 229.94m2
0037-618-48937
無料
内観・室内
間取り・内観のこだわりポイント
- LDK15帖以上
- 4LDK以上
- 全居室6帖以上
- 和室
- 屋上・ルーフバルコニー
- ワイドバルコニー
- 南面バルコニー
- 全室2面採光
0037-618-48937
無料
設備・仕様
-
バルコニー
奥行きが広く、洗濯物をゆったりと干せる十...
-
洗面台・洗面所
鏡の両サイドは、必要なものを取出しやすく...
-
トイレ
汚れてもサッとひと拭きでお手入れ簡単、エ...
-
浴室暖房換気乾燥機
サイドブロー機能で、乾燥効率アップです。...
-
浴室暖房換気乾燥機リモコン
見やすいボタン配置で換気・暖房・乾燥・涼...
-
給湯器リモコン
温度調整機能はもちろん、見やすいボタン配...
-
ビルトインコンロ
フラットな構造で清掃性が高く、過熱防止セ...
-
浄水器内臓ハンドシャワー付シンク
広々とした凸型シンクに洗剤ポケットを標準...
-
TVモニター付インターホン
手放し通話ができ、送話表示灯で送話・受話...
設備・仕様のこだわりポイント
- キッチン
-
- IHコンロ
- カウンターキッチン
- 浄水器・活水器
- 収納
-
- 床下収納
- ウォークインクローゼット
- パントリー
- 全居室収納
- その他設備
-
- オール電化
- シャワー付洗面化粧台
- 温水洗浄便座
- 浴室乾燥機
- 浴室1.6×1.8m以上
- 浴室暖房
- トイレ2ヶ所以上
- 節水型トイレ
- 複層ガラス採用(二重サッシ・防犯サッシ等)
- スマートキー
- 省エネ給湯器
- TVモニタ付インターホン
- 外断熱
0037-618-48937
無料
外観・分譲地
外観・分譲地のこだわりポイント
- 駐車場あり
- 低層住宅地
- 地盤調査済
- 角地
- 整形地
- 前面道路6m以上
- 隣家との間隔が広い
- 平坦地
- 高台
0037-618-48937
無料
周辺環境・地図
0037-618-48937
無料
物件概要
| 所在地 | 岐阜県瑞浪市学園台 | ||
|---|---|---|---|
| 交通 |
JR中央本線「瑞浪」駅 バス11分「学園台」バス停徒歩2分 徒歩35分 |
||
| 販売価格 | 1,690~1,990万円 | 最多価格帯 | - |
| 建物面積 | 94.77m2~100.44m2 | 土地面積 | 229.68m2~230.29m2 |
| 間取り | 3LDK+S~4LDK+S | 建物構造 | 木造2階建 |
| 販売スケジュール | 先着順受付中/販売中 | ||
| 販売戸数 / 総戸数 | 5戸 / 5戸 | ||
| 完成予定日 | 2025年8月 | 引き渡し可能年月 | 即引渡可 |
| 駐車場 | 2台 | 道路の幅員 | 北側6m、東側6m、西側6m |
| 用途地域 | 第一種低層住居専用地域 | 都市計画 | 市街化区域 |
| 地目 | 宅地 | 国土法 | - |
| 土地の権利 | 所有権 | 借地権の種類・期間 | - |
| 主たる設備の概要 | 公営水道、本下水、オール電化 | 建築確認番号 | 完成済みのため省略 |
| 施工会社 | - | 機構融資 | 機構融資利用可 |
| 売主 | 取引態様 | (株)おうち情報館(仲介) | |
| イベント情報 |
|
||
| 備考 |
■無料送迎サービス実施中! 車の運転をするのが大変なお客様に無料送迎サービスを実施しております。 ご希望の方はお気軽にお申し付け下さい。 ごゆっくり物件をご見学頂けます。 (支払例) 価格1,690万円、頭金0円、借入額1,690万円 年利0.800%(変動金利)、返済期間40年 毎月返済額41,153円、ボーナス時加算額0円 ■頭金0円で住宅ローン借入可能! 住宅購入にかかる諸費用・引っ越し費用・家具家電費用等も借入可能! 住宅ローンがご不安な方は、当社の住宅ローンアドバイザーが親身・親切をモットーにご提案致します。ぜひお気軽にお電話下さい。 ※紹介金融機関多数有! ■オプション工事の特別割引有!! ご成約頂いたお客様のみオプション工事を特別割引にてご案内しております。 詳細は営業スタッフまでお問合せ下さい。 |
||
| 情報更新日 | 2026/02/24 | 次回更新予定日 | 2026/03/07 |
| 取引条件有効期限 | 2026/10/12 | ||
住宅性能・販売概要・権利のこだわりポイント
- 所有権
- 瑕疵担保付き
- 耐震・制震・免震構造
- 設計住宅性能評価書
- フラット35・S適合証明書
- 建設住宅性能評価書(新築時)
- 即入居可
- 耐震・制震・免震構造
- 耐震等級3
0037-618-48937
無料
現地・イベント情報
オープンハウス、ローン相談会(事前に必ずお問い合わせください)
| 開催日時 |
2025年09月25日〜2026年09月25日
|
|---|---|
| 開催場所 | 岐阜県瑞浪市学園台 |
| 交通 |
JR中央本線「瑞浪」駅 バス11分学園台 徒歩2分 |
日程/公開中 時間/10:00~21:00 ※当社による直接実施ではございませんので必ず事前にご連絡下さい。 ■当社では、安心安全にご来店、ご見学して頂けるよう以下の対策を実施しております。 ・スタッフのマスク着用、手洗い、うがいを実施させて頂いております。 ・アルコール除菌スプレーを、ご用意させて頂いております。 ・ご来店時には、他のお客様から、なるべく席を離して対応させて頂いております。 ・物件のご見学後には、手指の消毒をお願いさせて頂いております。 ・適度に換気させて頂いております。
取扱い不動産会社
スタッフからのコメント
- おうち情報館は東海全域の不動産を取り扱っております
- 私たちは、納得していただけることを理念として、お客様の住まいへの想いを叶えるお手伝いをさせていただいております。
人生のうちに何度も経験することのないマイホームの購入。
皆様、購入を考える上で不動産に関わるさまざまなことを調べておられると思います。
お家探しの場所、お家の詳細、お金のこと、住宅ローンのこと、これからのこと。
経験豊かなスタッフがお客様のわからない事や不安に思っていることを解決すべく、全力でサポートさせていただきます!
どんな小さな事でも大丈夫です。お気軽にご相談下さい。
お客様の良きパートナーになれるよう、誠心誠意尽力させていただきます。
廣瀬 瑞華
株式会社おうち情報館の会社情報
お電話でのお問合せは「LIFULL HOME'S(ライフルホームズ)を見て」とお伝えください
おうち情報館
0037-618-48937
無料
- ※携帯電話はご利用いただけます
- ※光IP電話、及びIP電話をご利用のお客様はTEL:0120-855-825へご連絡ください
- ※携帯電話からお問合せいただいた方には、ショートメッセージ(SMS)またはLINE通知メッセージによるお問合せ内容に関する通知をお届けする場合があり、お客様の電話番号は株式会社LIFULLで一定期間保管されます
- ※株式会社LIFULLの個人情報の取扱い方針に同意のうえ、お電話ください
| 会社名 |
株式会社おうち情報館 |
|---|---|
| 免許番号 | 岐阜県知事 (1) 第 5254 号 |
| 所在地 | 岐阜県岐阜市本郷町1丁目25-10 |
| 所属団体 |
(公社)全日本不動産協会岐阜県本部 |
この物件にお問合せする
実際に物件・周辺環境を見て検討したい!
近隣建物や接道の状況など資料で分からない部分も一目瞭然。 まずはWEBで事前予約、スムーズに見学しましょう
ご予約無しに直接ご来場された場合、担当者不在であったり、
他のお客様のご案内の都合上、お待たせしてしまうことがございます。
不動産会社に電話で相談したい!
おうち情報館
0037-618-48937
無料
電話でのお問合せは「LIFULL HOME'S(ライフルホームズ)を見て」とお伝えください
- ※携帯電話はご利用いただけます
- ※光IP電話、及びIP電話をご利用のお客様はTEL:0120-855-825へご連絡ください
- ※携帯電話からお問合せいただいた方には、ショートメッセージ(SMS)またはLINE通知メッセージによるお問合せ内容に関する通知をお届けする場合があり、お客様の電話番号は株式会社LIFULLで一定期間保管されます
- ※株式会社LIFULLの個人情報の取扱い方針に同意のうえ、お電話ください
LIFULL HOME'Sは物件鮮度No.1を目指していきます 物件情報に誤りがある場合はコチラからご連絡ください
- 【物件番号】
- 1708500-0000188
- ※完成後1年未満で未入居の物件を「新築」と表示しております。
- ※完成予想図やCG合成画像は、門塀・植栽・庭・外観等、実際とは多少異なる場合があります。
物件を再検索する
岐阜県の人気エリアから新築一戸建てを探す














