一戸建て 大津市雄琴 第25期 新築一戸建て
■頭金0円ローン可能!■ホームズに掲載してない物件もご相談下さい!■近畿圏トップクラスの新築取扱件数!■年間取引件数600件以上!
お家探しはTV・CMでお馴染みの住まいるプラス1にお任せ下さい!住宅ローン提携銀行多数!最優遇金利0.595%~!オプション工事最大40%OFF!火災保険最大20%OFF!光熱費削減キャンペーン実施!
住宅ローン相談無料!今お持ちのローンを最大500万円まで住宅ローンと一本化が可能!住宅ローンアドバイザー有資格者等多数在籍!「住まい選びのプロフェッショナル」住まいるプラス1に是非ご相談ください!
0037-618-61435
無料
魅力1 Cradle garden~家族のために必要な安心や住宅性能はゆずらない!
―クレイドルガーデンシリーズのこだわり―◆すべては、マイホームを手に入れたいという夢を一人でも多くの方に叶えていただくために、品質へのこだわりとコストへの挑戦をしつづけて家づくりをしてきました。◆一級建築士事務所として培った、建築技術に加え、徹底した施工管理により、安心してお住まいいただける住宅をご提供しております。◆メンテナンスにも健康にも配慮して住む人の視点に立った工夫がアーネストワンの家には盛り込まれています。◆お引き渡し後も、安心して住宅にお住まい頂くために、専門のコールセンターを設けております。
魅力2 災害に耐える強い家を目指して...安心安全な住まいづくりが大切な家族を守ります。
―クレイドルガーデンシリーズのおすすめ構造ポイント― ◆木造軸組工法の場合、木材同士を組み合わせたうえで、その接合部を補強金物で止めます。耐震金物は接合部を強固にし、地震の揺れなどで金物が外れる事を防止しています。 ◆地盤の強さを調べる調査法の1つで、近年では戸建て住宅等の地盤調査の方式として最も広く普及しているスウェーデン式地盤試験を採用。安心して暮らせる家づくりの為には欠かせない工程ですね♪ ◆木造軸組工法は柱で建物を支えている為、壁を抜いて間取りを変えたり壁に大きな窓を作ることも比較的容易にできます。特にリフォームで間取りを変えたり、増築も簡単にできます。
魅力3 日々の生活を豊かに...快適な暮らしをサポートする充実した設備が満載です。
―クレイドルガーデンシリーズのおすすめ設備ポイント― ◆一日の疲れを癒す広々とした浴室。足をのばしてゆったりと湯船につかれますよ。窓付きで湿気対策もバッチリです♪ ◆キッチンのシンクはステンレス製。水や熱、さびに強く汚れやにおいもつきにくい素材なので長く清潔に保つことができます! ◆白を基調とした清潔感のあるシャンプードレッサー。フラットな鏡は掃除がしやすく毎日清潔!◆24時間換気システムで室内の空気をしっかり循環!
0037-618-61435
無料
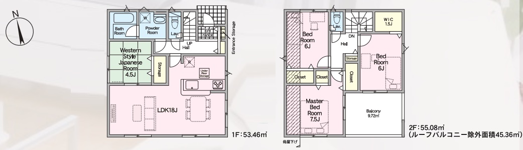
間取り図
-
1号地 間取り 4LDK 価格 2780万円 建物面積 108.54m2 土地面積 126.49m2 -
1号地 間取り 4LDK 価格 2780万円 建物面積 108.54m2 土地面積 126.49m2 -
1号地 間取り 4LDK 価格 2780万円 建物面積 108.54m2 土地面積 126.49m2 -
1号地 間取り 4LDK 価格 2780万円 建物面積 108.54m2 土地面積 126.49m2 -
1号地 間取り 4LDK 価格 2780万円 建物面積 108.54m2 土地面積 126.49m2 -
1号地 間取り 4LDK 価格 2780万円 建物面積 108.54m2 土地面積 126.49m2 -
1号地 間取り 4LDK 価格 2780万円 建物面積 108.54m2 土地面積 126.49m2
0037-618-61435
無料
内観・室内
0037-618-61435
無料
設備・仕様
-
浴室暖房乾燥機
四季を通して快適なバスライフをお手伝いす...
-
浴室暖房乾燥機リモコン
浴室暖房乾燥機リモコン!浴室暖房・衣類乾...
-
給湯器リモコン(浴室側)
省エネタイプの給湯器でお湯はり・追い炊き...
-
給湯器リモコン(LDK側)
ボタン一つでお風呂のお湯はり・追い炊き可...
-
カラーモニターインターホン
声だけでなく来訪者の姿や顔がモニターで確...
-
キッチンシンク
蛇口の先端に浄水器を内蔵しています!原水...
-
キッチン水栓
浄水器を内蔵!炊飯時、お茶を作る時に安心...
-
コンロ
ダブル高火力Siセンサー付きコンロ!3口...
-
レンジフード
汚れにくいスロットフィルタでお手入れラク...
設備・仕様のこだわりポイント
- その他設備
-
- 都市ガス
0037-618-61435
無料
外観・分譲地
外観・分譲地のこだわりポイント
- 駐車場あり
0037-618-61435
無料
周辺環境・地図
周辺情報
※半径4kmを超えると、周辺情報のアイコンは表示されません。
- ※不動産会社が入力した情報を基に物件の位置を表示しています。
- ※詳しくは不動産会社までお問合せください。
- ※地図上に表示される各種アイコンなどの情報は、おおよその所在地を表すものであり、物件・施設などの地点を保証するものではありません。
- ※地図の表示領域が広域になると周辺のお店・施設は表示できなくなります。
- ※地図、航空写真情報および地形ならびに周辺のお店・施設は、必ずしも現況を表すものではありません。
- ※物件から周辺のお店・施設までの距離は、利用が想定される道路を通行した場合の距離です。なお、必ずしも最短距離を保証するものではありません。
0037-618-61435
無料
物件概要
| 所在地 | 滋賀県大津市雄琴5丁目 | ||
|---|---|---|---|
| 交通 |
JR湖西線「おごと温泉」駅 徒歩13分 JR湖西線「堅田」駅 徒歩45分 JR湖西線「比叡山坂本」駅 徒歩51分 |
||
| 販売価格 | 2780万円 | 最多価格帯 | - |
| 建物面積 | 108.54m2~108.54m2 | 土地面積 | 126.49m2~126.49m2 |
| 間取り | 4LDK | 建物構造 | 木造 地上2階建て |
| 販売スケジュール | - | ||
| 販売戸数 / 総戸数 | 3戸 / 3戸 | ||
| 完成予定日 | 完成済み | 引き渡し可能年月 | 即日可 |
| 駐車場 | 1台 | 道路の幅員 | 北側6.0m公道 |
| 用途地域 | 第一種住居 | 都市計画 | 市街化区域 |
| 地目 | 宅地 | 国土法 | 届出不要 |
| 土地の権利 | 所有権 | 借地権の種類・期間 | - |
| 主たる設備の概要 | 水道:公営 排水:公共下水 ガス:都市ガス 電気:有 | 建築確認番号 | 完成済み |
| 施工会社 | - | 機構融資 | - |
| 売主 | 売主 | 取引態様 | 株式会社ハウジングプラザ 滋賀店(仲介) |
| 備考 | - | ||
| 情報更新日 | 2026/05/22 | 次回更新予定日 | 2026/06/05 |
| 取引条件有効期限 | 2026/06/05 | ||
住宅性能・販売概要・権利のこだわりポイント
- 所有権
0037-618-61435
無料
取扱い不動産会社
住まいるプラス1 株式会社ハウジングプラザ 滋賀店の会社情報
お電話でのお問合せは「LIFULL HOME'S(ライフルホームズ)を見て」とお伝えください
株式会社ハウジングプラザ 滋賀店
0037-618-61435
無料
- ※携帯電話はご利用いただけます
- ※光IP電話、及びIP電話をご利用のお客様はTEL:077-599-1777へご連絡ください
- ※携帯電話からお問合せいただいた方には、ショートメッセージ(SMS)またはLINE通知メッセージによるお問合せ内容に関する通知をお届けする場合があり、お客様の電話番号は株式会社LIFULLで一定期間保管されます
- ※株式会社LIFULLの個人情報の取扱い方針に同意のうえ、お電話ください
| 会社名 |
住まいるプラス1 株式会社ハウジングプラザ 滋賀店 |
|---|---|
| 免許番号 | 国土交通大臣 (1) 第 10394 号 |
| 所在地 | 滋賀県草津市若竹町5-5 |
| 所属団体 |
(公社)全日本不動産協会 |
この物件にお問合せする
実際に物件・周辺環境を見て検討したい!
近隣建物や接道の状況など資料で分からない部分も一目瞭然。 まずはWEBで事前予約、スムーズに見学しましょう
ご予約無しに直接ご来場された場合、担当者不在であったり、
他のお客様のご案内の都合上、お待たせしてしまうことがございます。
不動産会社に電話で相談したい!
株式会社ハウジングプラザ 滋賀店
0037-618-61435
無料
電話でのお問合せは「LIFULL HOME'S(ライフルホームズ)を見て」とお伝えください
- ※携帯電話はご利用いただけます
- ※光IP電話、及びIP電話をご利用のお客様はTEL:077-599-1777へご連絡ください
- ※携帯電話からお問合せいただいた方には、ショートメッセージ(SMS)またはLINE通知メッセージによるお問合せ内容に関する通知をお届けする場合があり、お客様の電話番号は株式会社LIFULLで一定期間保管されます
- ※株式会社LIFULLの個人情報の取扱い方針に同意のうえ、お電話ください
LIFULL HOME'Sは物件鮮度No.1を目指していきます 物件情報に誤りがある場合はコチラからご連絡ください
- 【物件番号】
- 1708479-0000535
- ※完成後1年未満で未入居の物件を「新築」と表示しております。
- ※完成予想図やCG合成画像は、門塀・植栽・庭・外観等、実際とは多少異なる場合があります。
物件を再検索する
滋賀県の人気エリアから新築一戸建てを探す















