新築一戸建て 【飯田グループ物件】川越市下小坂 全5棟 ※敷地62坪超え 省エネBELLS リーブルガーデン
- 価格
- 2780万円~3280万円
- 所在地
- 埼玉県川越市大字下小坂
- 交通
- 東武東上線「若葉」駅 バス26分「下小坂」バス停 徒歩1分東武東上線「川越」駅 バス29分「下小坂」バス停 徒歩1分東武東上線「鶴ヶ島」駅 車3.6km
乗り換え案内
- 土地面積
- 205.6m2~214.45m2
- 建物面積
- 101.02m2~111.78m2
- 間取り
- 4LDK・4LDK+S(納戸)
【本日見学可】敷地62坪超え!省エネBELLS 長期優良住宅
□スーパーまで徒歩16分・コンビニまで徒歩6分
毎日のお買い物に便利!
□小学校まで徒歩25分・中学校まで徒歩30分
お子さまの通学も安心の距離です!
■雨の日でも安心の浴室乾燥機付き!
■カースペース並列2台分!
■安心・安全のおすみつき!
当物件は「設計」「建設」の【住宅性能評価】において
耐震最高等級を全棟取得!
0037-618-75422
無料
魅力1 ~家族みんながうれしい!便利な設備の揃った邸宅♪~
【浴室換気乾燥機】
雨の日や冬場のお洗濯に嬉しい装備。
洗濯物を乾かすだけでなく、入浴後に換気機能で湿気を排出できるためカビの防止にもなります。
【ZEH住宅】
ZEH住宅とは、生活で使った分のエネルギーを自分でつくったエネルギーで賄える住宅のこと。
地球にやさしいだけでなく、光熱費を抑えることもできます!
【浄水器】
カートリッジタイプの浄水器。
浄水、原水はワンプッシュで切り替えができ、見やすい大きな表示窓もあります。ノズルはシャワーヘッドになっておりお掃除も楽々です。
魅力2 ~周辺に買い物施設が充実!便利なエリアです~
【買い物】
上州屋川越店:徒歩41分(3224m)
マミーマート東坂戸店:徒歩16分(1267m)
ヤオコー川越霞ケ関店:徒歩49分(3850m)
ヤオコー川越山田店:徒歩41分(3275m)
ファミリーマート坂戸中小坂南店:徒歩6分(450m)
セブンイレブン坂戸中小坂店:徒歩17分(1352m)
セイジョー五味ヶ谷店:徒歩37分(2956m)
マツモトキヨシ霞ケ関店:徒歩43分(3412m)
ウェルパーク川越山田店:徒歩39分(3053m)
【学校】
川越市立名細小学校:徒歩25分(2000m)
川越市立名細中学校:徒歩30分(2400m)
【公園】
雁見緑地:徒歩28分(2212m)
魅力3 【ホームトレードセンター】による一括サポート!お気軽にお問い合わせください!
☆ホームトレードセンターは日本一の分譲実績を誇る飯田グループホールディングス株式会社唯一の不動産販売専門会社です。
専門知識の高い販売専門のプロがアフターケアまでしっかりとサポート致します!
マイホーム探しや住宅購入、お住まいの住み替えご相談ください♪
当社買い取り保証サービスもご好評いただいております。もちろん住宅ローンのシミュレーション、資金計画等も承っております。
0037-618-75422
無料
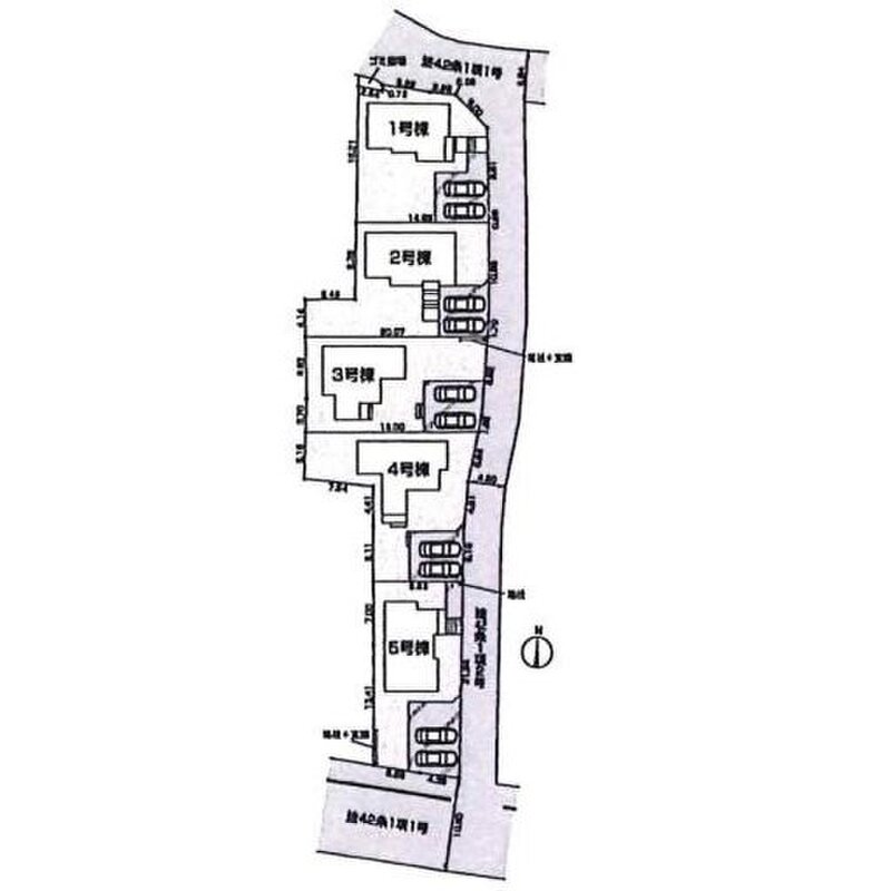
間取り図
0037-618-75422
無料
内観・室内
間取り・内観のこだわりポイント
- LDK15帖以上
- 4LDK以上
- バリアフリー
- ワイドバルコニー
- 南面バルコニー
- 全室フローリング
0037-618-75422
無料
設備・仕様
-
【オートバス】
自動でお風呂の準備が整うため準備時間の短...
-
【耐震】
新耐震の震度6~7の揺れを想定した実験で...
-
【長期優良住宅】
長期優良住宅とは、設備や広さなどの条件を...
-
【システムキッチン】
見栄えもよくお手入れもスムーズに出来ます...
-
【人感センサー付きライト】
人を感知するとパッと明るく点灯します。自...
-
【カースペース2台】
カースペース2台分ございますので、家族分...
-
日本の風土に調和する伝統的な「木造軸組工...
常に呼吸し、気候の変化に合わせて微妙に伸...
-
安心を支える「鉄筋入りコンクリートベタ基...
ベタ基礎は地面全体を基礎で覆うため、建物...
-
見えない部分で耐震・耐久性を高める「耐震...
基礎・土台・柱など接合部ごとに適材適所な...
設備・仕様のこだわりポイント
- キッチン
-
- カウンターキッチン
- 浄水器・活水器
- 収納
-
- 床下収納
- ウォークインクローゼット
- シューズクローク
- パントリー
- 全居室収納
- その他設備
-
- シャワー付洗面化粧台
- 温水洗浄便座
- 浴室乾燥機
- トイレ2ヶ所以上
- 節水型トイレ
- 複層ガラス採用(二重サッシ・防犯サッシ等)
- 省エネ給湯器
- TVモニタ付インターホン
省エネ性能
- エネルギー消費性能:★★★(削減率20%達成)
- 断熱性能:5段階/7段階 ※「省エネ性能ラベル」は特定の住戸の性能を示し、全ての住戸の性能を示していない場合があります。
0037-618-75422
無料
外観・分譲地
外観・分譲地のこだわりポイント
- 駐車場あり
- 地盤調査済
- 角地
- 南道路
- 前面道路6m以上
0037-618-75422
無料
周辺環境・地図
周辺環境のこだわりポイント
- 複数路線
- 最寄り駅が始発駅
0037-618-75422
無料
物件概要
| 所在地 | 埼玉県川越市大字下小坂 | ||
|---|---|---|---|
| 交通 |
東武東上線「若葉」駅 バス26分「下小坂」バス停 徒歩1分 東武東上線「川越」駅 バス29分「下小坂」バス停 徒歩1分 東武東上線「鶴ヶ島」駅 車3.6km |
||
| 販売価格 | 2780万円~3280万円 | 最多価格帯 | - |
| 建物面積 | 101.02m2~111.78m2 | 土地面積 | 205.6m2~214.45m2 |
| 間取り | 4LDK・4LDK+S(納戸) | 建物構造 | 木造2階建(軸組工法) |
| 販売スケジュール | 販売中 | ||
| 販売戸数 / 総戸数 | 4戸 / 5戸 | ||
| 完成予定日 | 2026年4月 | 引き渡し可能年月 | 即入居可 |
| 駐車場 | 2台 | 道路の幅員 | 道路幅:4.2m~10.5m、アスファルト舗装(他備考欄に記載) |
| 用途地域 | 指定なし | 都市計画 | 市街化調整区域 |
| 地目 | 宅地 | 国土法 | - |
| 土地の権利 | 所有権 | 借地権の種類・期間 | - |
| 主たる設備の概要 | 公営水道、浄化槽、東京電力、個別LPG | 建築確認番号 | 第25UDI1W建11028号 |
| 施工会社 | 飯田グループホールディングス 一建設株式会社 | 機構融資 | - |
| 売主 | 取引態様 | <仲介>飯田グループホールディングス ホームトレードセンター(株)川越営業所 | |
| 備考 |
【私道負担・道路】 南 10.5m 公道、東 4.2m 公道、 北 5.77m 公道 【その他制限事項】 景観法による規制有、日影制限有、農地法 宅地造成等工事規制区域 【イベント情報】 ◎貴重なお時間の中で、ご希望の情報をご案内致します! お客様のご都合に合わせて「知りたい情報だけ」という短時間のご案内も可能です。 事前にお申し付けください。 ◎見学の際はお客様のご希望に合わせて3コース設けております。 当日はデジカメやスマホでの写真撮影ももちろん可能です。ご自宅でのご検討の際にお役立てください。 1)さくっと現地見学コース(所要時間:30分) お忙しいお客様向けです。物件のご案内(主に間取り)のみさせていただきます。 2)じっくり見学コース(所要時間:1時間) 物件の雰囲気だけではなく、設備などもしっかり確認されたいお客様向けです。 間取りに加え、システムキッチンなど気になる設備もしっかりご案内いたします。 3)納得見学コース(所要時間:2時間) 「見学予約」の際は、上記希望の番号をご入力ください。 「お電話やメール」の際も、番号をお伝えいただけると、ご案内がスムーズです。 ◎物件の間取り、設備に加え、周辺環境もご案内いたします。 現時点では、小学校、スーパー、図書館などご家族でご利用されることが予想される施設を車で回る予定です。「こんな施設があったら見学したい!」というようなご希望があればぜひご連絡ください。 ◎初めての住宅購入で、何から始めればいいか分からない! そんなお客様に、経験豊富なスタッフがわかりやすく丁寧にご案内致します! 小さなお子様連れでもゆったりと見学いただけますので、まずはお気軽にお問い合わせください。 ◎案内員が常駐しておりませんので、見学の際は必ず事前にお問い合わせいただけますと幸いです。 |
||
| 情報更新日 | 2026/05/16 | 次回更新予定日 | 2026/05/30 |
| 取引条件有効期限 | 2027/01/19 | ||
住宅性能・販売概要・権利のこだわりポイント
- 所有権
- 瑕疵担保付き
- 耐震・制震・免震構造
- 長期優良住宅
- 設計住宅性能評価書
- フラット35・S適合証明書
- 即入居可
0037-618-75422
無料
取扱い不動産会社
スタッフからのコメント
- テレビCMでおなじみ【飯田グループHD販売専門スタッフ】
- お客様のお家探しを全力でサポートいたします!若さを武器にレスポンスやフットワークは軽く、一生懸命に頑張ります。お客様のご要望に全力でご対応いたしますのでよろしくお願いいたします!
【この物件について】
全5棟の開発分譲地!各棟異なる、採光、生活動線、収納力を考慮した個性豊かな魅力溢れるプラン。きっとお好みの間取りに出会えます!全棟カースペース並列2台分完備!ぜひ一度現地にてご覧ください!
【得意エリア】
東武東上線、JR川越線、西武線
篠原 護
飯田グループホールディングス ホームトレードセンター株式会社 川越営業所の会社情報
お電話でのお問合せは「LIFULL HOME'S(ライフルホームズ)を見て」とお伝えください
飯田グループホールディングス ホームトレードセンター(株)川越営業所
0037-618-75422
無料
- ※携帯電話はご利用いただけます
- ※光IP電話、及びIP電話をご利用のお客様はTEL:049-298-8280へご連絡ください
- ※携帯電話からお問合せいただいた方には、ショートメッセージ(SMS)またはLINE通知メッセージによるお問合せ内容に関する通知をお届けする場合があり、お客様の電話番号は株式会社LIFULLで一定期間保管されます
- ※株式会社LIFULLの個人情報の取扱い方針に同意のうえ、お電話ください
| 会社名 |
飯田グループホールディングス ホームトレードセンター株式会社 川越営業所 |
|---|---|
| 免許番号 | 国土交通大臣 (3) 第 8044 号 |
| 所在地 | 埼玉県川越市鯨井新田6-1 第3今泉ビル1階 |
| 所属団体 |
(公社)埼玉県宅地建物取引業協会 |
この物件にお問合せする
実際に物件・周辺環境を見て検討したい!
近隣建物や接道の状況など資料で分からない部分も一目瞭然。 まずはWEBで事前予約、スムーズに見学しましょう
ご予約無しに直接ご来場された場合、担当者不在であったり、
他のお客様のご案内の都合上、お待たせしてしまうことがございます。
不動産会社に電話で相談したい!
飯田グループホールディングス ホームトレードセンター(株)川越営業所
0037-618-75422
無料
電話でのお問合せは「LIFULL HOME'S(ライフルホームズ)を見て」とお伝えください
- ※携帯電話はご利用いただけます
- ※光IP電話、及びIP電話をご利用のお客様はTEL:049-298-8280へご連絡ください
- ※携帯電話からお問合せいただいた方には、ショートメッセージ(SMS)またはLINE通知メッセージによるお問合せ内容に関する通知をお届けする場合があり、お客様の電話番号は株式会社LIFULLで一定期間保管されます
- ※株式会社LIFULLの個人情報の取扱い方針に同意のうえ、お電話ください
LIFULL HOME'Sは物件鮮度No.1を目指していきます 物件情報に誤りがある場合はコチラからご連絡ください
- 【物件番号】
- 1708444-0000274
- ※完成後1年未満で未入居の物件を「新築」と表示しております。
- ※完成予想図やCG合成画像は、門塀・植栽・庭・外観等、実際とは多少異なる場合があります。
物件を再検索する
埼玉県の人気エリアから新築一戸建てを探す
- 熊谷市
- 川口市
- 行田市
- 秩父市
- 所沢市
- 飯能市
- 加須市
- 本庄市
- 東松山市
- 春日部市
- 狭山市
- 羽生市
- 鴻巣市
- 深谷市
- 上尾市
- 草加市
- 越谷市
- 蕨市
- 戸田市
- 入間市
- 朝霞市
- 志木市
- 和光市
- 新座市
- 桶川市
- 久喜市
- 北本市
- 八潮市
- 富士見市
- 三郷市
- 蓮田市
- 坂戸市
- 幸手市
- 鶴ヶ島市
- 日高市
- 吉川市
- ふじみ野市
- 白岡市
- 北足立郡伊奈町
- 入間郡三芳町
- 入間郡毛呂山町
- 入間郡越生町
- 比企郡滑川町
- 比企郡嵐山町
- 比企郡小川町
- 比企郡川島町
- 比企郡吉見町
- 比企郡鳩山町
- 比企郡ときがわ町
- 秩父郡横瀬町
- 秩父郡皆野町
- 秩父郡小鹿野町
- 児玉郡美里町
- 児玉郡神川町
- 児玉郡上里町
- 大里郡寄居町
- 南埼玉郡宮代町
- 北葛飾郡杉戸町
- 北葛飾郡松伏町
川越市の詳細町域から新築一戸建てを探す
- 大字安比奈新田
- 旭町
- 大字天沼新田
- 新宿町
- 石原町
- 稲荷町
- 大字今福
- 上戸新町
- 大字大袋
- 大字大袋新田
- 大字小ケ谷
- 大字笠幡
- 霞ケ関北
- 霞ケ関東
- 上野田町
- 大字上松原
- 大字鴨田
- 岸町
- 喜多町
- 大字木野目
- 大字鯨井
- 熊野町
- 広栄町
- 小仙波町
- 大字小堤
- 寿町
- 大字小中居
- 大字小室
- 志多町
- 清水町
- 大字下小坂
- 大字下広谷
- 神明町
- 大字菅間
- 大字砂
- 大字砂久保
- 砂新田
- 大字砂新田
- 諏訪町
- 仙波町
- 田町
- 大字寺尾
- 大字寺山
- 大字並木
- 野田町
- 氷川町
- 大字藤間
- 藤原町
- 的場
- 大字的場
- 南台
- 大字山田
- 大字吉田
- 大字上新河岸
- 日東町
- 豊田町
- 今成
- かすみ野
- 南大塚
- むさし野
- 大塚新町
- かし野台
- 大塚
- むさし野南
- 中台
- 中台元町
- 豊田本














