一戸建て 守山区森孝3期
- 価格
- 3850万円(税込)・3990万円(税込)
- 所在地
- 愛知県名古屋市守山区森孝一丁目1415-4
- 交通
- 名鉄瀬戸線「大森・金城学院前」駅 徒歩23分~23分
乗り換え案内
- 土地面積
- 97.23m2(29.41坪)・114.18m2(34.53坪)
- 建物面積
- 97.81m2(29.58坪)・106.28m2(31.14坪)
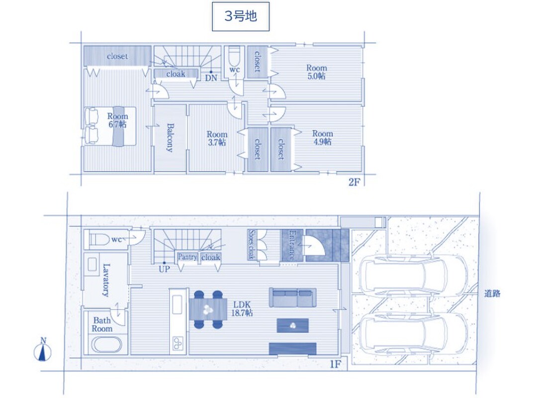
- 間取り
- 3LDK
完成内覧会開催中!
小学校、買い物徒歩圏内にあります!
事前予約にて平日のご案内も承っております!
0037-618-86103
無料
魅力1 完成内覧会開催中!
弊社スタッフにてご案内いたします!
まずはご希望の日時をお知らせください!
魅力2 店舗にて、資金計画や住まいに関するご相談を承ります!
・物件のご説明、ご案内
・住宅ローン審査お手続き
・火災保険のお見積りからお申込み
・新築住宅、中古住宅、売土地のご紹介からご案内
・リフォーム業者のご紹介
・引越業者やホームセキュリティのご紹介
・空き地や空き家の有効活用に関するご相談
・不動産相続に関するご相談
あらゆるご相談の窓口として、お気軽にご来店くださいませ!
魅力3 資料請求&ご来店予約でプレゼント実施中!
※ご見学・ご来店予約の上、アンケートにご記入いただいた方に、スターバックスカード2000円分プレゼント実施中!
(無くなり次第終了となります。1家族様につき1枚、1回限り)
※弊社独自のキャンペーンとなります。弊社ホームページ内に対象物件を掲載しております。是非チェックしてみてください!
0037-618-86103
無料
間取り図
0037-618-86103
無料
内観・室内
0037-618-86103
無料
設備・仕様
設備・仕様のこだわりポイント
- キッチン
-
- 食器洗い乾燥機
- 浄水器・活水器
- その他設備
-
- 都市ガス
- 温水洗浄便座
- 浴室乾燥機
省エネ性能
- エネルギー消費性能:★★★★(削減率30%達成)
- 断熱性能:5段階/7段階
- 目安光熱費:約18.5〜19万円/年 ※「省エネ性能ラベル」は特定の住戸の性能を示し、全ての住戸の性能を示していない場合があります。
0037-618-86103
無料
外観・分譲地
外観・分譲地のこだわりポイント
- 駐車場あり
0037-618-86103
無料
周辺環境・地図
周辺環境のこだわりポイント
- スーパー 800m以内
- 小学校 800m以内
- 公園 400m以内
0037-618-86103
無料
物件概要
| 所在地 | 愛知県名古屋市守山区森孝一丁目1415-4 | ||
|---|---|---|---|
| 交通 |
名鉄瀬戸線「大森・金城学院前」駅 徒歩23分~23分 |
||
| 販売価格 | 3850万円(税込)・3990万円(税込) | 最多価格帯 | - |
| 建物面積 | 97.81m2(29.58坪)・106.28m2(31.14坪) | 土地面積 | 97.23m2(29.41坪)・114.18m2(34.53坪) |
| 間取り | 3LDK | 建物構造 | 木造2階建て |
| 販売スケジュール | 販売中 | ||
| 販売戸数 / 総戸数 | 1戸 / 3戸 | ||
| 完成予定日 | 完成済み | 引き渡し可能年月 | 相談 |
| 駐車場 | 2台 | 道路の幅員 | 北側幅員約2.0m、東側幅員約4.0m(セットバック:北側1.0m) |
| 用途地域 | 第一種住居地域 | 都市計画 | 市街化区域 |
| 地目 | 宅地 | 国土法 | 届出不要 |
| 土地の権利 | 所有権 | 借地権の種類・期間 | - |
| 主たる設備の概要 | 電気、公営水道、本下水、都市ガス | 建築確認番号 | 確認サービス第K125-0420-54599号ほか |
| 施工会社 | (株)AVANTIA | 機構融資 | - |
| 売主 | (株)AVANTIA [国土交通大臣免許(6)第5803号 ] | 取引態様 | 仲介 / 株式会社アークレスト |
| 備考 |
※図面と現況が異なる場合は、現況を優先とします。 ※販売価格には、仲介手数料や登記手続き費用等の諸費用は含まれておりませんので、別途申し受けます。 ※1号地:敷地面積にはセットバック部分13.51m2を含みます。 建物面積にはインナーバルコニー4.69m2を含みます。 ※1号棟、3号棟売約済み |
||
| 情報更新日 | 2026/05/05 | 次回更新予定日 | 2026/05/19 |
| 取引条件有効期限 | 2026/05/31 | ||
住宅性能・販売概要・権利のこだわりポイント
- 所有権
- 瑕疵担保付き
- 長期優良住宅
0037-618-86103
無料
取扱い不動産会社
株式会社アークレストの会社情報
お電話でのお問合せは「LIFULL HOME'S(ライフルホームズ)を見て」とお伝えください
株式会社アークレスト
0037-618-86103
無料
- ※携帯電話はご利用いただけます
- ※光IP電話、及びIP電話をご利用のお客様はTEL:0120-070-331へご連絡ください
- ※携帯電話からお問合せいただいた方には、ショートメッセージ(SMS)またはLINE通知メッセージによるお問合せ内容に関する通知をお届けする場合があり、お客様の電話番号は株式会社LIFULLで一定期間保管されます
- ※株式会社LIFULLの個人情報の取扱い方針に同意のうえ、お電話ください
| 会社名 |
株式会社アークレスト |
|---|---|
| 免許番号 | 愛知県知事 (3) 第 22706 号 |
| 所在地 | 愛知県名古屋市守山区小幡南二丁目18番14号 榊原ビル1階 |
| 所属団体 |
(公社)愛知県宅地建物取引業協会 |
この物件にお問合せする
実際に物件・周辺環境を見て検討したい!
近隣建物や接道の状況など資料で分からない部分も一目瞭然。 まずはWEBで事前予約、スムーズに見学しましょう
ご予約無しに直接ご来場された場合、担当者不在であったり、
他のお客様のご案内の都合上、お待たせしてしまうことがございます。
不動産会社に電話で相談したい!
株式会社アークレスト
0037-618-86103
無料
電話でのお問合せは「LIFULL HOME'S(ライフルホームズ)を見て」とお伝えください
- ※携帯電話はご利用いただけます
- ※光IP電話、及びIP電話をご利用のお客様はTEL:0120-070-331へご連絡ください
- ※携帯電話からお問合せいただいた方には、ショートメッセージ(SMS)またはLINE通知メッセージによるお問合せ内容に関する通知をお届けする場合があり、お客様の電話番号は株式会社LIFULLで一定期間保管されます
- ※株式会社LIFULLの個人情報の取扱い方針に同意のうえ、お電話ください
LIFULL HOME'Sは物件鮮度No.1を目指していきます 物件情報に誤りがある場合はコチラからご連絡ください
- 【物件番号】
- 1708336-0000055
- ※完成後1年未満で未入居の物件を「新築」と表示しております。
- ※完成予想図やCG合成画像は、門塀・植栽・庭・外観等、実際とは多少異なる場合があります。
物件を再検索する
名古屋市の人気エリアから新築一戸建てを探す












