新築一戸建て 【白山市徳丸町A棟】ZEH仕様の高断熱・太陽光パネル5.64kw搭載の新築一戸建て
この物件は未完成のため、掲載写真(外観、内観、設備等)には、施工例が含まれている場合があります。物件詳細については、掲載の不動産会社宛にお問合せください。
月々支払額 66,539円~!IRいしかわ鉄道「松任駅」徒歩約18分
■ZEH仕様の高断熱で夏は涼しく・冬は暖かく年中快適!
■光熱費高騰の今だからこそ!太陽光標準装備で月々の光熱費を抑える家!
■各居室収納の他、階段下収納とキッチン収納完備で収納力も抜群!
■土地、建物、太陽光、外構、省エネエアコンが全てコミコミでこの価格!
■通勤・通学・買い物の利便性が高い充実の周辺環境
・アピタ松任店 徒歩約7分
・東明小学校 徒歩約14分
0037-618-24123
無料
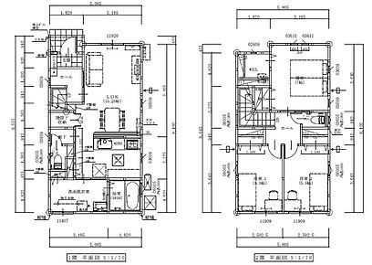
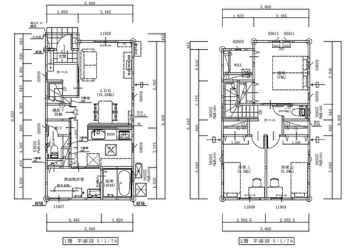
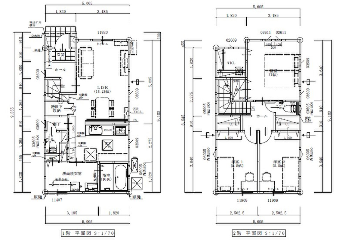
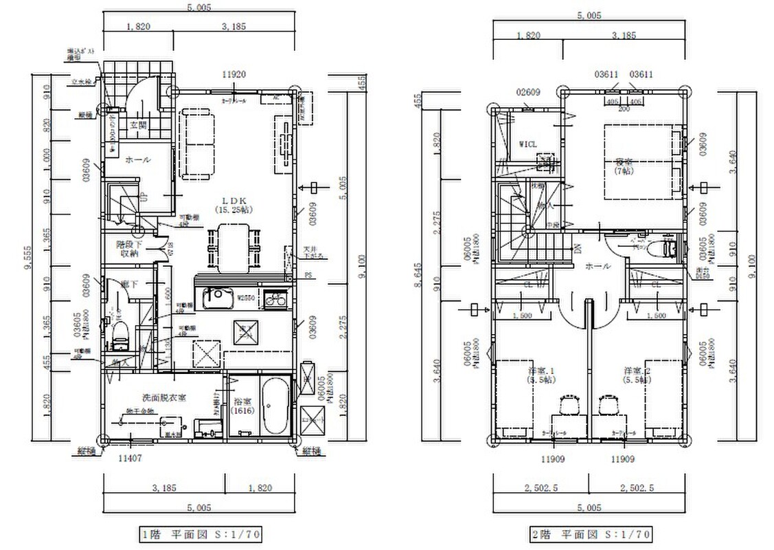
間取り図
0037-618-24123
無料
内観・室内
間取り・内観のこだわりポイント
- LDK15帖以上
- 全室2面採光
- 全室フローリング
0037-618-24123
無料
設備・仕様
設備・仕様のこだわりポイント
- キッチン
-
- IHコンロ
- カウンターキッチン
- 食器洗い乾燥機
- 収納
-
- 床下収納
- ウォークインクローゼット
- パントリー
- 全居室収納
- その他設備
-
- オール電化
- マイホーム発電システム
- シャワー付洗面化粧台
- 温水洗浄便座
- 浴室乾燥機
- 浴室暖房
- トイレ2ヶ所以上
- 節水型トイレ
- 複層ガラス採用(二重サッシ・防犯サッシ等)
- 省エネ給湯器
- TVモニタ付インターホン
0037-618-24123
無料
外観・分譲地
外観・分譲地のこだわりポイント
- 駐車場あり
- 地盤調査済
- 整形地
0037-618-24123
無料
周辺環境・地図
周辺情報
※半径4kmを超えると、周辺情報のアイコンは表示されません。
- ※不動産会社が入力した情報を基に物件の位置を表示しています。
- ※詳しくは不動産会社までお問合せください。
- ※地図上に表示される各種アイコンなどの情報は、おおよその所在地を表すものであり、物件・施設などの地点を保証するものではありません。
- ※地図の表示領域が広域になると周辺のお店・施設は表示できなくなります。
- ※地図、航空写真情報および地形ならびに周辺のお店・施設は、必ずしも現況を表すものではありません。
- ※物件から周辺のお店・施設までの距離は、利用が想定される道路を通行した場合の距離です。なお、必ずしも最短距離を保証するものではありません。
-
【買い物】
アピタ松任店 (500m 徒歩約7分)
生活するのに必要な不可欠なスーパーが近くにあるのは便利ですね!
-
【買い物】
ファミリーマート白山三浦町店 (450m 徒歩約6分)
夜遅くでも何か欲しいものができたらすぐに買い物できます!
-
【買い物】
クスリのアオキ石同新町店 (450m 徒歩約6分)
処方箋から薬品まで多種多様な商品が揃ったドラッグストアが近くに...
-
【学校】
東明小学校 (1100m 徒歩約14分)
楽しく元気に登校できる距離なので通学が楽しくなりますね♪
-
【学校】
松任中学校 (550m 徒歩約7分)
お友達との登下校も楽しくできます!
-
【その他】
わかみや保育所 (1000m 徒歩約13分)
送り迎えも楽々!子育てと仕事が両立ができる距離で負担が少ない♪
周辺環境のこだわりポイント
- スーパー 800m以内
0037-618-24123
無料
物件概要
| 所在地 | 石川県白山市徳丸町657番1 | ||
|---|---|---|---|
| 交通 |
IRいしかわ鉄道「松任」駅 徒歩18分 車で約1.4km |
||
| 販売価格 | 2980万円 | 最多価格帯 | - |
| 建物面積 | 89.42m2(27.04坪) | 土地面積 | 126.18m2(38.16坪) |
| 間取り | 3LDK | 建物構造 | 木造2階建 |
| 販売スケジュール | 販売中 | ||
| 販売戸数 / 総戸数 | 1戸 / 1戸 | ||
| 完成予定日 | 2026年5月下旬 | 引き渡し可能年月 | 2026年6月下旬 |
| 駐車場 | 2台 | 道路の幅員 | 北西側4.0m |
| 用途地域 | 第一種住居地域 | 都市計画 | 市街化区域 |
| 地目 | 宅地 | 国土法 | - |
| 土地の権利 | 所有権 | 借地権の種類・期間 | - |
| 主たる設備の概要 | 電気・公営水道 | 建築確認番号 | 白山市第25121010号 |
| 施工会社 | ハイエスト事業グループ株式会社 | 機構融資 | - |
| 売主 | 取引態様 | リーズナブルホーム(売主) | |
| 備考 | - | ||
| 情報更新日 | 2026/04/28 | 次回更新予定日 | 随時 |
| 取引条件有効期限 | 2026/03/31 | ||
住宅性能・販売概要・権利のこだわりポイント
- 所有権
- 瑕疵担保付き
- 仲介手数料不要
- 売主・代理
- フラット35・S適合証明書
0037-618-24123
無料
取扱い不動産会社
ハイエスト事業グループ株式会社 金沢の会社情報
お電話でのお問合せは「LIFULL HOME'S(ライフルホームズ)を見て」とお伝えください
リーズナブルホーム金沢店
0037-618-24123
無料
- ※携帯電話はご利用いただけます
- ※光IP電話、及びIP電話をご利用のお客様はTEL:0120-198-506へご連絡ください
- ※携帯電話からお問合せいただいた方には、ショートメッセージ(SMS)またはLINE通知メッセージによるお問合せ内容に関する通知をお届けする場合があり、お客様の電話番号は株式会社LIFULLで一定期間保管されます
- ※株式会社LIFULLの個人情報の取扱い方針に同意のうえ、お電話ください
| 会社名 |
ハイエスト事業グループ株式会社 金沢 |
|---|---|
| 免許番号 | 国土交通大臣 (2) 第 9164 号 |
| 所在地 | 石川県金沢市金沢市八日市5-426 |
| 所属団体 |
北陸不動産公正取引協議会 |
この物件にお問合せする
実際に物件・周辺環境を見て検討したい!
近隣建物や接道の状況など資料で分からない部分も一目瞭然。 まずはWEBで事前予約、スムーズに見学しましょう
ご予約無しに直接ご来場された場合、担当者不在であったり、
他のお客様のご案内の都合上、お待たせしてしまうことがございます。
不動産会社に電話で相談したい!
リーズナブルホーム金沢店
0037-618-24123
無料
電話でのお問合せは「LIFULL HOME'S(ライフルホームズ)を見て」とお伝えください
- ※携帯電話はご利用いただけます
- ※光IP電話、及びIP電話をご利用のお客様はTEL:0120-198-506へご連絡ください
- ※携帯電話からお問合せいただいた方には、ショートメッセージ(SMS)またはLINE通知メッセージによるお問合せ内容に関する通知をお届けする場合があり、お客様の電話番号は株式会社LIFULLで一定期間保管されます
- ※株式会社LIFULLの個人情報の取扱い方針に同意のうえ、お電話ください
LIFULL HOME'Sは物件鮮度No.1を目指していきます 物件情報に誤りがある場合はコチラからご連絡ください
- 【物件番号】
- 1708210-0000080
- ※完成後1年未満で未入居の物件を「新築」と表示しております。
- ※完成予想図やCG合成画像は、門塀・植栽・庭・外観等、実際とは多少異なる場合があります。






