新築一戸建て 【白山市千代野西7丁目】ZEH仕様の高断熱・太陽光パネル4.92kw搭載の新築一戸建て
- 価格
- 2,920万円
- 所在地
-
石川県白山市千代野西7丁目3番14
地図を見る
- 交通
- IRいしかわ鉄道「西松任」駅 車約5分北陸鉄道バス「千代野西八丁目」 徒歩5分
- 土地面積
- 125.35m2(37.91坪)
- 建物面積
- 87.35m2(26.41坪)
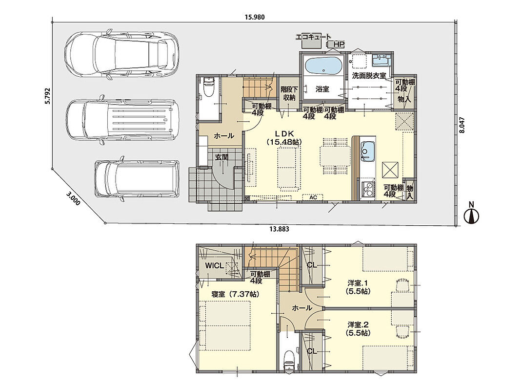
- 間取り
- 3LDK
この物件は未完成のため、掲載写真(外観、内観、設備等)には、施工例が含まれている場合があります。物件詳細については、掲載の不動産会社宛にお問合せください。
月々65,199円~!「西松任駅」車約5分、バス「千代野西八丁目」徒歩約5分!千代野小学校まで徒歩約12分!
■ZEH仕様の高断熱で夏は涼しく・冬は暖かく年中快適!
■電気代高騰の今だからこそ!太陽光標準装備で節約!
■人気のキッチン物入、階段下収納、洗面脱衣室物入等で豊富な収納スペース!
■家事ラク導線の3LDK
■土地・建物・太陽光・外構・省エネエアコンが全てコミコミ価格!
■利便性が高い充実の周辺環境
・ゲンキー千代野中店 車約3分
・千代野保育所 徒歩約8分
0037-618-47148
無料
間取り図
0037-618-47148
無料
内観・室内
間取り・内観のこだわりポイント
- LDK15帖以上
- 全室2面採光
- 全室フローリング
0037-618-47148
無料
設備・仕様
設備・仕様のこだわりポイント
- キッチン
-
- IHコンロ
- カウンターキッチン
- 食器洗い乾燥機
- 収納
-
- 床下収納
- ウォークインクローゼット
- パントリー
- 全居室収納
- その他設備
-
- オール電化
- マイホーム発電システム
- シャワー付洗面化粧台
- 温水洗浄便座
- 浴室乾燥機
- 浴室暖房
- トイレ2ヶ所以上
- 節水型トイレ
- 複層ガラス採用(二重サッシ・防犯サッシ等)
- 省エネ給湯器
- TVモニタ付インターホン
0037-618-47148
無料
外観・分譲地
外観・分譲地のこだわりポイント
- 駐車場あり
- 低層住宅地
- 地盤調査済
- 角地
- 南道路
- 整形地
- 前面道路6m以上
0037-618-47148
無料
周辺環境・地図
周辺情報
※半径4kmを超えると、周辺情報のアイコンは表示されません。
- ※不動産会社が入力した情報を基に物件の位置を表示しています。
- ※詳しくは不動産会社までお問合せください。
- ※地図上に表示される各種アイコンなどの情報は、おおよその所在地を表すものであり、物件・施設などの地点を保証するものではありません。
- ※地図の表示領域が広域になると周辺のお店・施設は表示できなくなります。
- ※地図、航空写真情報および地形ならびに周辺のお店・施設は、必ずしも現況を表すものではありません。
- ※物件から周辺のお店・施設までの距離は、利用が想定される道路を通行した場合の距離です。なお、必ずしも最短距離を保証するものではありません。
-
【買い物】
ファーマーズAコープ北安田店 (1200m 徒歩約15分、車約3分)
車で約3分!生活するのに必要な不可欠なスーパーが近くにあるのは...
-
【買い物】
ファミリーマート千代野ニュータウン店 (1100m 徒歩約14分、車約4分)
車で約4分!夜遅くでも何か欲しいものができたらすぐに買い物でき...
-
【買い物】
ゲンキー千代野中店 (1000m 徒歩約13分、車約3分)
車で約3分!処方箋から薬品まで多種多様な便利なドラッグストア!
-
【その他】
千代野保育所 (600m 徒歩約8分)
送り迎えも楽々!子育てと仕事が両立できます!
-
【学校】
千代野小学校 (900m 徒歩約12分)
通いやすい距離でお子さんの通学も安心ですね。
-
【買い物】
北星中学校 (1600m 徒歩約20分)
友達との通学を十分に楽しめる距離ですね!
周辺環境のこだわりポイント
- 公園 400m以内
0037-618-47148
無料
物件概要
| 所在地 | 石川県白山市千代野西7丁目3番14 | ||
|---|---|---|---|
| 交通 |
IRいしかわ鉄道「西松任」駅 車約5分 北陸鉄道バス「千代野西八丁目」 徒歩5分 |
||
| 販売価格 | 2,920万円 | 最多価格帯 | - |
| 建物面積 | 87.35m2(26.41坪) | 土地面積 | 125.35m2(37.91坪) |
| 間取り | 3LDK | 建物構造 | 木造2階建 |
| 販売スケジュール | 販売中 | ||
| 販売戸数 / 総戸数 | 1戸 / 1戸 | ||
| 完成予定日 | 2026年1月下旬 | 引き渡し可能年月 | 2026年2月 |
| 駐車場 | 3台 | 道路の幅員 | 西側6.0m、南側6.0m |
| 用途地域 | 第一種低層住居専用地域 | 都市計画 | 市街化区域 |
| 地目 | 宅地 | 国土法 | - |
| 土地の権利 | 所有権 | 借地権の種類・期間 | - |
| 主たる設備の概要 | 電気、公営水道 | 建築確認番号 | 白山市第25120520号 |
| 施工会社 | ハイエスト事業グループ株式会社 | 機構融資 | - |
| 売主 | 取引態様 | リーズナブルホーム(売主) | |
| 備考 | - | ||
| 情報更新日 | 2025/12/24 | 次回更新予定日 | 随時 |
| 取引条件有効期限 | 2026/03/31 | ||
住宅性能・販売概要・権利のこだわりポイント
- 所有権
- 瑕疵担保付き
- 仲介手数料不要
- 売主・代理
- フラット35・S適合証明書
0037-618-47148
無料
取扱い不動産会社
ハイエスト事業グループ株式会社 金沢の会社情報
お電話でのお問合せは「LIFULL HOME'S(ライフルホームズ)を見て」とお伝えください
リーズナブルホーム金沢店
0037-618-47148
無料
- ※携帯電話はご利用いただけます
- ※光IP電話、及びIP電話をご利用のお客様はTEL:0120-198-506へご連絡ください
- ※携帯電話からお問合せいただいた方には、ショートメッセージ(SMS)またはLINE通知メッセージによるお問合せ内容に関する通知をお届けする場合があり、お客様の電話番号は株式会社LIFULLで一定期間保管されます
- ※株式会社LIFULLの個人情報の取扱い方針に同意のうえ、お電話ください
| 会社名 |
ハイエスト事業グループ株式会社 金沢 |
|---|---|
| 免許番号 | 国土交通大臣 (2) 第 9164 号 |
| 所在地 | 石川県金沢市金沢市八日市5-426 |
| 所属団体 |
北陸不動産公正取引協議会 |
この物件にお問合せする
実際に物件・周辺環境を見て検討したい!
近隣建物や接道の状況など資料で分からない部分も一目瞭然。 まずはWEBで事前予約、スムーズに見学しましょう
ご予約無しに直接ご来場された場合、担当者不在であったり、
他のお客様のご案内の都合上、お待たせしてしまうことがございます。
不動産会社に電話で相談したい!
リーズナブルホーム金沢店
0037-618-47148
無料
電話でのお問合せは「LIFULL HOME'S(ライフルホームズ)を見て」とお伝えください
- ※携帯電話はご利用いただけます
- ※光IP電話、及びIP電話をご利用のお客様はTEL:0120-198-506へご連絡ください
- ※携帯電話からお問合せいただいた方には、ショートメッセージ(SMS)またはLINE通知メッセージによるお問合せ内容に関する通知をお届けする場合があり、お客様の電話番号は株式会社LIFULLで一定期間保管されます
- ※株式会社LIFULLの個人情報の取扱い方針に同意のうえ、お電話ください
LIFULL HOME'Sは物件鮮度No.1を目指していきます 物件情報に誤りがある場合はコチラからご連絡ください
- 【物件番号】
- 1708210-0000076
- ※完成後1年未満で未入居の物件を「新築」と表示しております。
- ※完成予想図やCG合成画像は、門塀・植栽・庭・外観等、実際とは多少異なる場合があります。






