不動産・住宅情報サイトLIFULL HOME'S>一戸建て>新築一戸建て>九州・沖縄>熊本県>熊本市>東区>東海学園前駅>クレイドルガーデン東区戸島第8 新築戸建

一戸建て クレイドルガーデン東区戸島第8 新築戸建

【即日見学可能】現地完成済みですので即日見学可能です♪周辺物件とともにご紹介させていただきますのでお気軽にお問い合わせください♪(2025年12月撮影)
【現地外観写真】現地完成済みですので即日見学可能です♪周辺物件とともにご紹介させていただきますのでお気軽にお問い合わせください!
【現地外観写真】現地完成済みですので即日見学可能です♪周辺物件とともにご紹介させていただきますのでお気軽にお問い合わせください!
【断熱玄関ドア】断熱性能にとって開口部の玄関はとても大事です。雨にぬれずに郵便物をとることができるポスト、テレビカメラ付きのインターホンがあります。
外観
外観
外観
外観
玄関
【玄関】明るい玄関。大容量の収納スペースは大家族でもらくらく収納可能です。
居間・リビング
【リビング】キッチンと一体になったリビングはひろびろとしたくつろぎ空間を実現しています。
居間・リビング
【リビング】キッチンと一体になったリビングはひろびろとしたくつろぎ空間を実現しています。
キッチン
【キッチン】お子さまや家族と距離感近く料理が可能な対面式のシステムキッチンです。IHの3つ口コンロでお料理のレパートリーが増えそうです。
キッチン
【キッチン】お子さまや家族と距離感近く料理が可能な対面式のシステムキッチンです。IHの3つ口コンロでお料理のレパートリーが増えそうです。
風呂
【浴室】1坪タイプのお風呂。浴室暖房換気乾燥機付きで、雨の日の洗濯や冬の入浴を快適に過ごせます。
【学校】 熊本市立託麻東小学校 (徒歩1846m)
【学校】 熊本市立二岡中学校 (徒歩2237m)
【買い物】 ローソン 熊本戸島二丁目店 (徒歩1130m)
【買い物】 マックスバリュ新戸島店 (徒歩1953m)
【買い物】 アタックス 戸島店 (徒歩2648m)
【買い物】 ドラッグストアモリ戸島店 (徒歩2357m)

  • ※不動産会社が入力した情報を基に物件の位置を表示しています。
  • ※詳しくは不動産会社までお問合せください。

閉じる

◇予約見学でQUOカード最大2万円分進呈♪/見るだけOK、無理な営業はいたしません/今ならエアコン3台設置/この物件、買い方次第で総額が大きく変わります
【駐車4台並列】【託麻東小・二岡中】【オール電化】
住宅ローンに自信あり!購入にあたっての丁寧な説明と、専門スタッフによるしっかり安心サポートが好評いただいております。しっかりサポート致しますので、お話ししにくいことなどもお聞かせください♪<秘密厳守>

内観・室内

外観・分譲地

外観・分譲地のこだわりポイント

  • 駐車場あり

周辺環境・地図

周辺情報

※半径4kmを超えると、周辺情報のアイコンは表示されません。

  • ※不動産会社が入力した情報を基に物件の位置を表示しています。
  • ※詳しくは不動産会社までお問合せください。
  • ※地図上に表示される各種アイコンなどの情報は、おおよその所在地を表すものであり、物件・施設などの地点を保証するものではありません。
  • ※地図の表示領域が広域になると周辺のお店・施設は表示できなくなります。
  • ※地図、航空写真情報および地形ならびに周辺のお店・施設は、必ずしも現況を表すものではありません。
  • ※物件から周辺のお店・施設までの距離は、利用が想定される道路を通行した場合の距離です。なお、必ずしも最短距離を保証するものではありません。

物件概要

不動産用語

所在地 熊本県熊本市東区戸島7丁目
交通 JR豊肥本線「東海学園前」駅 長嶺小学校前からバス乗車15分 徒歩38分
販売価格 2688万円

熊本市東区の価格相場ページ

最多価格帯 -
建物面積 99.22m2 土地面積 205.13m2
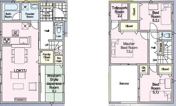
間取り 4LDK 建物構造 木造 地上2階建て
販売スケジュール -
販売戸数 / 総戸数 1戸 / 1戸
完成予定日 完成済み 引き渡し可能年月 即日可
駐車場 4台 道路の幅員 南東側4.9m公道
用途地域 第一種中高層住居専用 都市計画 市街化調整区域
地目 宅地 国土法 届出不要
土地の権利 所有権 借地権の種類・期間 -
主たる設備の概要 水道:公営 排水:公共下水 ガス:その他 電気:有 建築確認番号 完成済み
施工会社 - 機構融資 -
売主 株式会社アーネストワン [国土交通大臣(5)第6157号] 取引態様 有限会社ジパング(仲介)
備考 クレイドルガーデンシリーズは、株式会社アーネストワンが分譲する新築分譲住宅のブランド名です。 低価格なのに徹底的にこだわった品質を実現。入念な地盤調査を行ってからの基礎工事施行。オリジナルの耐震パネルや金物を使い、耐震性に優れた住宅を建築、全棟住宅性能評価書を取得、6項目で最上等級を取得しています。
情報更新日 2026/02/04 次回更新予定日 2026/02/13
取引条件有効期限 2026/02/13

住宅性能・販売概要・権利のこだわりポイント

  • 所有権

取扱い不動産会社

ZIPANGinc. (有)ジパングの会社情報

お電話でのお問合せは「LIFULL HOME'S(ライフルホームズ)を見て」とお伝えください

有限会社ジパング

0037-618-60999 無料

  • ※携帯電話はご利用いただけます
  • ※光IP電話、及びIP電話をご利用のお客様はTEL:096-284-1089へご連絡ください
  • ※携帯電話からお問合せいただいた方には、ショートメッセージ(SMS)またはLINE通知メッセージによるお問合せ内容に関する通知をお届けする場合があり、お客様の電話番号は株式会社LIFULLで一定期間保管されます
  • ※株式会社LIFULLの個人情報の取扱い方針に同意のうえ、お電話ください
会社名

ZIPANGinc. (有)ジパング

免許番号 国土交通大臣 (1) 第 10188 号
所在地 熊本県熊本市東区昭和町1-30
所属団体

(一社)九州不動産公正取引協議会
(公社)全日本不動産協会熊本県本部

この物件にお問合せする

資料を取り寄せてじっくり検討したい!

物件に関する様々な資料がお手元に届きます。 WEBには載せきれない詳細な図面や事前情報が得られる機会も!

実際に物件・周辺環境を見て検討したい!

近隣建物接道の状況など資料で分からない部分も一目瞭然。 まずはWEBで事前予約、スムーズに見学しましょう

ご予約無しに直接ご来場された場合、担当者不在であったり、
他のお客様のご案内の都合上、お待たせしてしまうことがございます。

不動産会社に電話で相談したい!

有限会社ジパング

0037-618-60999 無料

電話でのお問合せは「LIFULL HOME'S(ライフルホームズ)を見て」とお伝えください

  • ※携帯電話はご利用いただけます
  • ※光IP電話、及びIP電話をご利用のお客様はTEL:096-284-1089へご連絡ください
  • ※携帯電話からお問合せいただいた方には、ショートメッセージ(SMS)またはLINE通知メッセージによるお問合せ内容に関する通知をお届けする場合があり、お客様の電話番号は株式会社LIFULLで一定期間保管されます
  • ※株式会社LIFULLの個人情報の取扱い方針に同意のうえ、お電話ください

LIFULL HOME'Sは物件鮮度No.1を目指していきます  物件情報に誤りがある場合はコチラからご連絡ください

【物件番号】
1707976-0000562
  • ※完成後1年未満で未入居の物件を「新築」と表示しております。
  • ※完成予想図やCG合成画像は、門塀・植栽・庭・外観等、実際とは多少異なる場合があります。

条件を削除すると新着お知らせメールの
配信が停止されますがよろしいですか?