新築一戸建て 【ネクストの家】早良区原八丁目
- 価格
- 4698万円~5398万円
- 所在地
- 福岡県福岡市早良区原8丁目
- 交通
- 福岡市地下鉄七隈線「賀茂」駅 徒歩17分福岡市地下鉄七隈線「次郎丸」駅 徒歩17分福岡市地下鉄七隈線「野芥」駅 徒歩22分
乗り換え案内
- 土地面積
- 99.44m2~122.98m2(約30.08坪~37.20坪)
- 建物面積
- 77.72m2~96.88m2(約23.51坪~29.30坪)
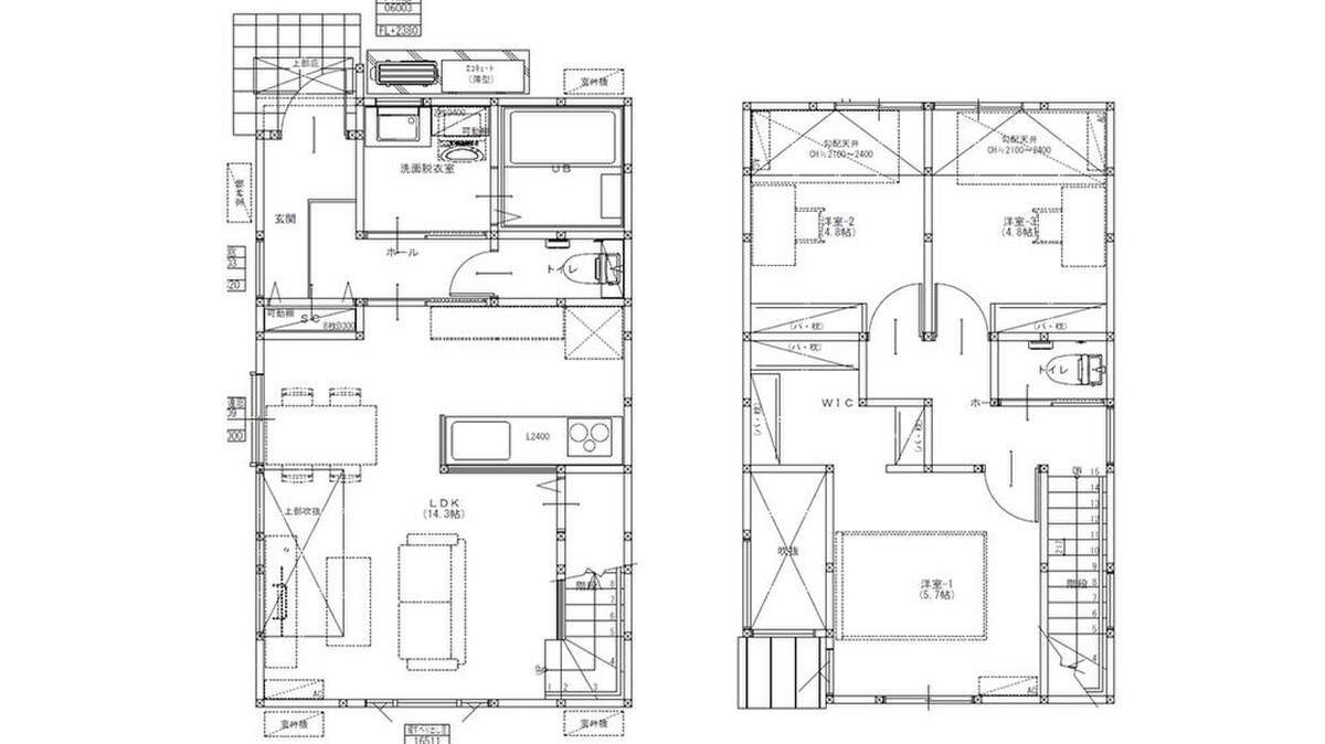
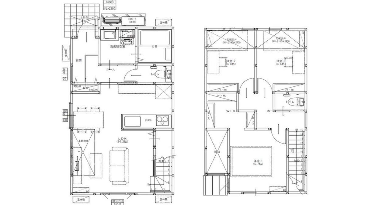
- 間取り
- 3LDK・4LDK
この物件は未完成のため、掲載写真(外観、内観、設備等)には、施工例が含まれている場合があります。物件詳細については、掲載の不動産会社宛にお問合せください。
長期優良吹付断熱の家 「イオン原店」まで徒歩10分!WIC付き新築戸建て
■BELS/省エネ基準適合認定書あり。
■プライベートな時間を快適に過ごせる、高気密高断熱住宅です。
■回遊動線や吹抜けなど、異なる魅力を備えたこだわりの全5区画!
■リビング階段仕様につき、ご家族とコミュニケーションをとりやすい設計。
■浴室乾燥機・温水洗浄便座など、暮らしに役立つ設備あり。
■WIC付きで、ご家族の衣類や生活雑貨をすっきりと収納可能です。
■第一種低層住居専用地域内に位置しています。
■周辺環境
・サニー星の原店 徒歩9分
・福岡市立原西小学校 徒歩8分
0037-618-88722
無料
魅力1 ◇全5区画!高気密高断熱×オール電化仕様の新築戸建◇ 第一種低層住居専用地域内。
【早良区原八丁目】
・お買い物施設や、幼保施設・小学校が徒歩10分圏内に揃い、子育て環境が充実しています。
・街並みと調和する、落ち着きのある外観デザイン。
【4号地】
・約14.3帖のLDKは、一部上部吹抜け仕様につき、開放感があります。リビング階段が採用され、ご家族と顔をあわせてコミュニケーションをとりやすい設計です。
・約5.7帖の洋室に、大容量のWIC付き!シーズンオフの衣類や家電、季節飾りなどを収納でき、住空間を有効にご活用いただけます。
魅力2 ◇吹抜け×リビング階段仕様◇ ご家族の気配を感じられる住まい設計。WIC付き◎
【5号地】
・シックな色合いでまとめられた外観が街並みに映える住まい。木目調の玄関ドアがアクセントを添えています。
・約15.3帖のLDKには吹抜けが採用され、開放感があります。複数の窓があり、心地よい陽光と風が巡る空間です。
・対面式のキッチンが採用され、調理中もご家族やご友人との会話が弾みます。
・洗面室には室内物干しとカウンターが備わっています。「洗う・干す・たたむ」がスムーズに完結する、機能的な動線設計です。
魅力3 ◇充実の子育て環境◇ スーパーなどの買物施設、幼保施設・小学校が徒歩10分圏内!
【サニー星の原店まで約684m】
徒歩9分。生鮮食品や日用品の取り扱いがあるスーパーです。HP上で、デジタルチラシを確認することができます。営業時間8:00~23:00(※一部除外あり)。
【イオン原店まで約758m 】
徒歩10分。スーパー、ドラッグストア、ファッション、家電量販店などのテナントが入るショッピングセンターです。/営業時間9:00~22:00(※一部除外あり)。
【学校法人松愛学園 ありた幼稚園まで約440m】
徒歩6分。毎日の送迎の負担が少ない距離です。1963年に創立された伝統ある幼稚園で、オペレッタや英語、音楽、体育など、さまざまな体験ができます。
0037-618-88722
無料
間取り図
0037-618-88722
無料
内観・室内
間取り・内観のこだわりポイント
- LDK15帖以上
- 4LDK以上
- 吹き抜け
- 和室
0037-618-88722
無料
設備・仕様
設備・仕様のこだわりポイント
- キッチン
-
- IHコンロ
- 収納
-
- ウォークインクローゼット
- シューズクローク
- パントリー
- 全居室収納
- その他設備
-
- オール電化
- シャワー付洗面化粧台
- 温水洗浄便座
- 浴室乾燥機
- トイレ2ヶ所以上
- 省エネ給湯器
- TVモニタ付インターホン
0037-618-88722
無料
外観・分譲地
外観・分譲地のこだわりポイント
- 駐車場あり
- 低層住宅地
- 角地
- 敷地延長・変形地
- 平坦地
0037-618-88722
無料
周辺環境・地図
-
【買い物】
サニー星の原店 (約684m 徒歩9分)
生鮮食品や日用品の取り扱いがあるスーパーです。HP上で、デジタ...
-
【買い物】
イオン原店 (約758m 徒歩10分)
スーパー、ドラッグストア、ファッション、家電量販店などのテナン...
-
【学校】
社会福祉法人白ゆり会 アン・シャーリーこども園 (約369m 徒歩5分)
生後3ヶ月から就学前までの園児が受け入れ対象です。「つよく・た...
-
【学校】
学校法人松愛学園 ありた幼稚園 (約440m 徒歩6分)
毎日の送迎の負担が少ない距離です。1963年に創立された伝統あ...
-
【学校】
福岡市立西福岡中学校 (約1062m 徒歩14分)
毎日の通学時間は、友達とのコミュニケーションを育む大切なひと時...
周辺環境のこだわりポイント
- スーパー 800m以内
- 小学校 800m以内
- 保育園・幼稚園 400m以内
0037-618-88722
無料
物件概要
| 所在地 | 福岡県福岡市早良区原8丁目 | ||
|---|---|---|---|
| 交通 |
福岡市地下鉄七隈線「賀茂」駅 徒歩17分 福岡市地下鉄七隈線「次郎丸」駅 徒歩17分 福岡市地下鉄七隈線「野芥」駅 徒歩22分 |
||
| 販売価格 | 4698万円~5398万円 | 最多価格帯 | - |
| 建物面積 | 77.72m2~96.88m2(約23.51坪~29.30坪) | 土地面積 | 99.44m2~122.98m2(約30.08坪~37.20坪) |
| 間取り | 3LDK・4LDK | 建物構造 | 木造2階建(軸組工法) |
| 販売スケジュール | 販売中 | ||
| 販売戸数 / 総戸数 | 4戸 / 5戸 | ||
| 完成予定日 | 2026年6月 | 引き渡し可能年月 | 相談 |
| 駐車場 | 1台 ~ 2台(車種による) | 道路の幅員 | 4.3m~5.7m |
| 用途地域 | 第一種低層住居専用地域 | 都市計画 | - |
| 地目 | 宅地 | 国土法 | - |
| 土地の権利 | 所有権 | 借地権の種類・期間 | - |
| 主たる設備の概要 | 公営水道、本下水、九州電力、オール電化 | 建築確認番号 | 第R07確認建築福住セ本01093号他 |
| 施工会社 | 株式会社AVANTIA | 機構融資 | - |
| 売主 | 株式会社 AVANTIA [国土交通大臣(6)第5803号] | 取引態様 | アバンティア不動産(一般媒介) |
| 備考 | 景観法による規制有、航空法による規制有、高さ最高限度有、日影制限有、建築基準法第22条区域、屋外広告物条例 | ||
| 情報更新日 | 2026/05/01 | 次回更新予定日 | 随時 |
| 取引条件有効期限 | 2026/05/31 | ||
住宅性能・販売概要・権利のこだわりポイント
- 所有権
0037-618-88722
無料
取扱い不動産会社
株式会社アバンティア不動産 福岡営業所の会社情報
お電話でのお問合せは「LIFULL HOME'S(ライフルホームズ)を見て」とお伝えください
アバンティア不動産
0037-618-88722
無料
- ※携帯電話はご利用いただけます
- ※光IP電話、及びIP電話をご利用のお客様はTEL:0120-343-403へご連絡ください
- ※携帯電話からお問合せいただいた方には、ショートメッセージ(SMS)またはLINE通知メッセージによるお問合せ内容に関する通知をお届けする場合があり、お客様の電話番号は株式会社LIFULLで一定期間保管されます
- ※株式会社LIFULLの個人情報の取扱い方針に同意のうえ、お電話ください
| 会社名 |
株式会社アバンティア不動産 福岡営業所 |
|---|---|
| 免許番号 | 国土交通大臣 (1) 第 10901 号 |
| 所在地 | 福岡県福岡市城南区長尾4丁目18-9 |
| 所属団体 |
東海不動産公正取引協議会 |
この物件にお問合せする
不動産会社に電話で相談したい!
アバンティア不動産
0037-618-88722
無料
電話でのお問合せは「LIFULL HOME'S(ライフルホームズ)を見て」とお伝えください
- ※携帯電話はご利用いただけます
- ※光IP電話、及びIP電話をご利用のお客様はTEL:0120-343-403へご連絡ください
- ※携帯電話からお問合せいただいた方には、ショートメッセージ(SMS)またはLINE通知メッセージによるお問合せ内容に関する通知をお届けする場合があり、お客様の電話番号は株式会社LIFULLで一定期間保管されます
- ※株式会社LIFULLの個人情報の取扱い方針に同意のうえ、お電話ください
LIFULL HOME'Sは物件鮮度No.1を目指していきます 物件情報に誤りがある場合はコチラからご連絡ください
- 【物件番号】
- 1707957-0000125
- ※完成後1年未満で未入居の物件を「新築」と表示しております。
- ※完成予想図やCG合成画像は、門塀・植栽・庭・外観等、実際とは多少異なる場合があります。















