新築一戸建て こだわりの詰まった設備で、ゆったり空間を楽しむ
この物件は未完成のため、掲載写真(外観、内観、設備等)には、施工例が含まれている場合があります。物件詳細については、掲載の不動産会社宛にお問合せください。
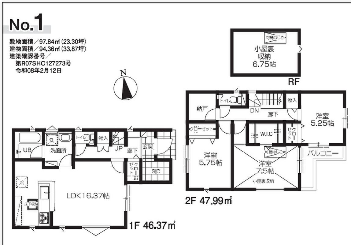
【ワールド住建オススメ物件】■屋根裏収納6帖以上 ■LDK3面採光 ■広々WIC ■全サッシ網戸付き ■ベタ基礎 ■2駅3路線利用可能 ■所沢市立中央小学校:徒歩約11分
■所沢市立美原中学校:徒歩約33分 ■ファミリーマート所沢ニュータウン店:徒歩約3分 ■西友所沢ニュータウン店:徒歩約6分 ■富士見公園:徒歩約4分 ■所沢中新井郵便局:徒歩約6分
■the market Place所沢北原店:徒歩約16分 ■中新井保育園:徒歩約6分
0037-618-53374
無料
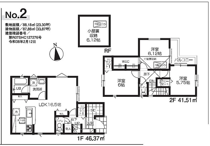
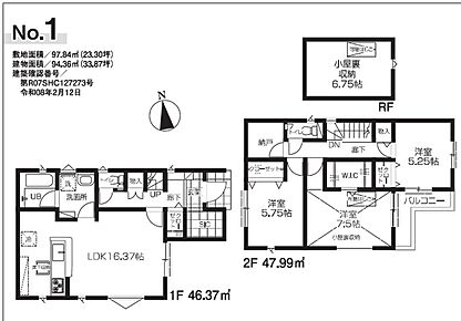
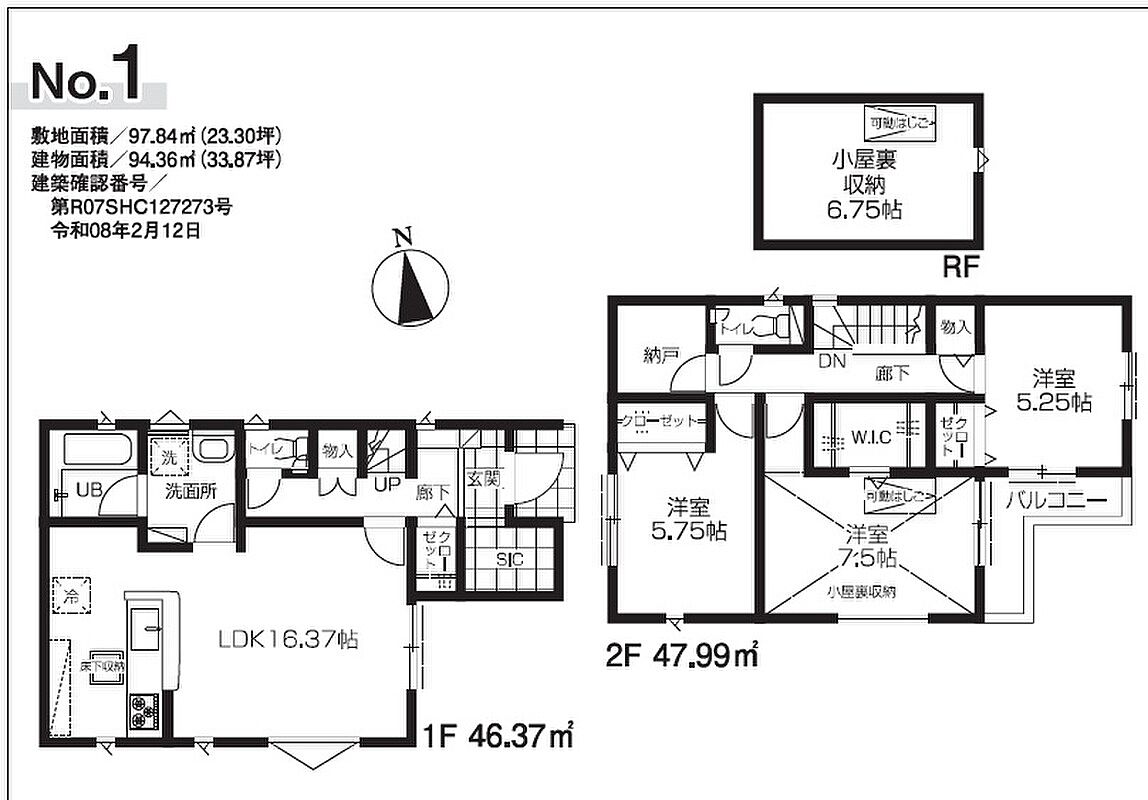
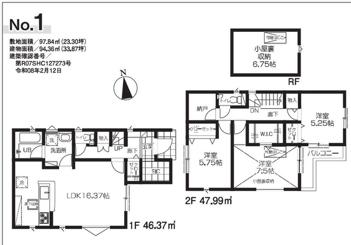
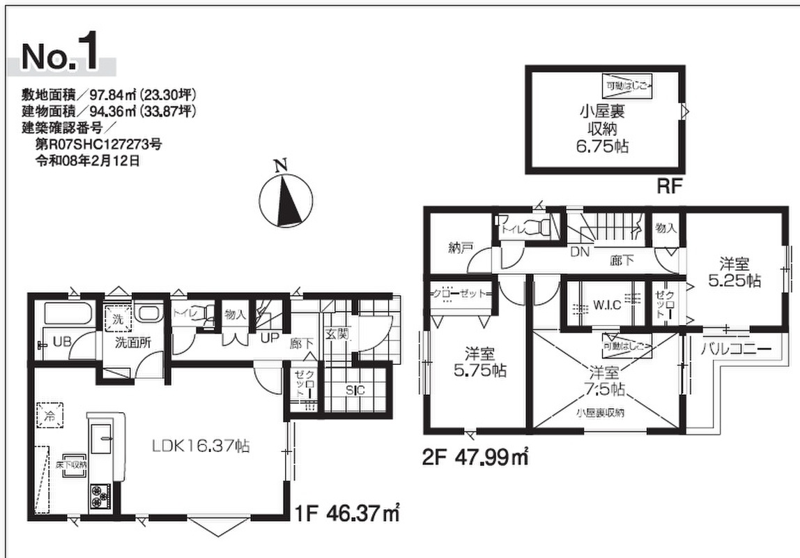
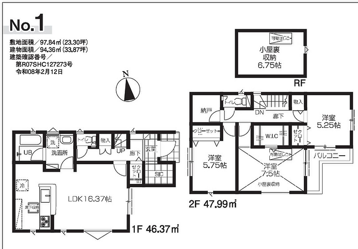
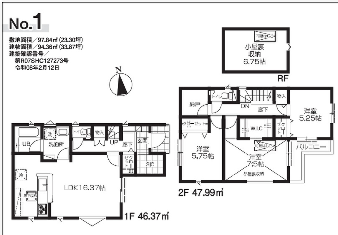
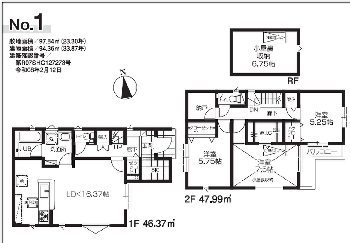
間取り図
-
1号棟 間取り 3LDK+屋根裏収納 価格 3680万円 建物面積 94.36m2 土地面積 97.84m2 -
2号棟 間取り 3LDK+屋根裏収納 価格 3580万円 建物面積 87.88m2 土地面積 88.18m2 -
1号棟 間取り 3LDK+屋根裏収納 価格 3680万円 建物面積 94.36m2 土地面積 97.84m2 -
2号棟 間取り 3LDK+屋根裏収納 価格 3580万円 建物面積 87.88m2 土地面積 88.18m2 -
1号棟 間取り 3LDK+屋根裏収納 価格 3680万円 建物面積 94.36m2 土地面積 97.84m2 -
2号棟 間取り 3LDK+屋根裏収納 価格 3580万円 建物面積 87.88m2 土地面積 88.18m2 -
1号棟 間取り 3LDK+屋根裏収納 価格 3680万円 建物面積 94.36m2 土地面積 97.84m2 -
2号棟 間取り 3LDK+屋根裏収納 価格 3580万円 建物面積 87.88m2 土地面積 88.18m2 -
1号棟 間取り 3LDK+屋根裏収納 価格 3680万円 建物面積 94.36m2 土地面積 97.84m2
0037-618-53374
無料
内観・室内
間取り・内観のこだわりポイント
- LDK15帖以上
- 全室2面採光
- 全室フローリング
0037-618-53374
無料
設備・仕様
設備・仕様のこだわりポイント
- キッチン
-
- カウンターキッチン
- 食器洗い乾燥機
- ガスコンロ
- 収納
-
- 床下収納
- ウォークインクローゼット
- 屋根裏収納
- シューズクローク
- 全居室収納
- その他設備
-
- 都市ガス
- シャワー付洗面化粧台
- 温水洗浄便座
- 浴室乾燥機
- 浴室暖房
- トイレ2ヶ所以上
- 複層ガラス採用(二重サッシ・防犯サッシ等)
- スマートキー
- TVモニタ付インターホン
0037-618-53374
無料
外観・分譲地
外観・分譲地のこだわりポイント
- 駐車場あり
- 低層住宅地
- 前面道路6m以上
- 平坦地
0037-618-53374
無料
周辺環境・地図
周辺情報
※半径4kmを超えると、周辺情報のアイコンは表示されません。
- ※不動産会社が入力した情報を基に物件の位置を表示しています。
- ※詳しくは不動産会社までお問合せください。
- ※地図上に表示される各種アイコンなどの情報は、おおよその所在地を表すものであり、物件・施設などの地点を保証するものではありません。
- ※地図の表示領域が広域になると周辺のお店・施設は表示できなくなります。
- ※地図、航空写真情報および地形ならびに周辺のお店・施設は、必ずしも現況を表すものではありません。
- ※物件から周辺のお店・施設までの距離は、利用が想定される道路を通行した場合の距離です。なお、必ずしも最短距離を保証するものではありません。
周辺環境のこだわりポイント
- コンビニ 400m以内
- 公園 400m以内
- 複数路線
0037-618-53374
無料
物件概要
| 所在地 | 埼玉県所沢市中新井5-1064-33、238 | ||
|---|---|---|---|
| 交通 |
西武池袋線「所沢」駅 バス15分「ニュータウン中央」停 徒歩2分~3分 西武新宿線「所沢」駅 バス15分「ニュータウン中央」停 徒歩2分~3分 西武新宿線「新所沢」駅 バス8分 徒歩2分~3分 |
||
| 販売価格 | 3,580万円~3,680万円 | 最多価格帯 | - |
| 建物面積 | 87.88m2(26.58坪)~94.36m2(28.54坪) | 土地面積 | 88.18m2(26.67坪)~97.84m2(29.60坪) |
| 間取り | 3LDK+屋根裏収納 | 建物構造 | 木造2階建 |
| 販売スケジュール | 販売中 | ||
| 販売戸数 / 総戸数 | 2戸 / 2戸 | ||
| 完成予定日 | 2026年6月下旬頃 | 引き渡し可能年月 | 2026年7月下旬頃 |
| 駐車場 | 1台 | 道路の幅員 | 東側:約8.9m公道 / 西側:約4m公道 |
| 用途地域 | 第一種低層住居専用地域 / 第一種中高層住居専用地域 | 都市計画 | 市街化区域 |
| 地目 | 宅地 | 国土法 | - |
| 土地の権利 | 所有権 | 借地権の種類・期間 | - |
| 主たる設備の概要 | 公営水道・本下水・都市ガス | 建築確認番号 | 第R07SHC127273号/第R07SHC127276号 |
| 施工会社 | - | 機構融資 | - |
| 売主 | 取引態様 | 株式会社ワールド住建(仲介) | |
| 備考 |
※写真は完成予想パースおよび同事業者施工物件です。同仕様の仕上がりとなりますので、あらかじめご了承ください。 【お問合せ】 ・お電話はこちらから 0037-618-00104 お電話の際に「ライフルホームズを見て」とお伝えしていただくとスムーズです ・資料請求は下記の青いボタンから↓↓↓ ■本物件に関することだけではなく、不動産を購入する上での様々な疑問や不安にもお答えいたします! ・補助金ってどういう種類があるの?どうやってもらえるの? ・住宅ローンって、なに? ・マンションと戸建ての違いと、それぞれのメリットは? また、疑問だけではなく他社でお断りされてしまったお家のお悩みも解決のお手伝いをさせていただきます! ■事前予約制の内覧会を実施しております♪ ・毎日10:00~18:00のお好きなお時間で内覧のご案内をいたしております! ・「サクッと30分くらいで見たい」「じっくり1時間くらい」「周辺環境も含めて2時間以上」などお客様のご都合に合わせてのご案内が可能です!気になる棟のみや、いくつかの棟を見比べてみたいなどぜひご要望をお聞かせください。 ・子育て経験スタッフもおりますので、お子さまのいらっしゃるお客様も気兼ねなくご参加いただけます。 ■お客様のご要望に合わせたスタッフが対応いたします! ・なんでも答えられるベテランのスタッフ ・子育て経験者の目線でアドバイスが欲しい ・女性がいい などご希望をお聞かせください♪ その他のことでも、お気軽にご連絡くださいませ。 ご来店特典や、ワールド住建ならではの豪華なご成約特典などもご用意しております。ぜひ、お待ちしております♪ |
||
| 情報更新日 | 2026/04/20 | 次回更新予定日 | 随時 |
| 取引条件有効期限 | 2026/05/04 | ||
住宅性能・販売概要・権利のこだわりポイント
- 所有権
- 瑕疵担保付き
- 設計住宅性能評価書
- 建設住宅性能評価書(新築時)
0037-618-53374
無料
取扱い不動産会社
株式会社ワールド住建の会社情報
お電話でのお問合せは「LIFULL HOME'S(ライフルホームズ)を見て」とお伝えください
株式会社ワールド住建
0037-618-53374
無料
- ※携帯電話はご利用いただけます
- ※光IP電話、及びIP電話をご利用のお客様はTEL:0429467544へご連絡ください
- ※携帯電話からお問合せいただいた方には、ショートメッセージ(SMS)またはLINE通知メッセージによるお問合せ内容に関する通知をお届けする場合があり、お客様の電話番号は株式会社LIFULLで一定期間保管されます
- ※株式会社LIFULLの個人情報の取扱い方針に同意のうえ、お電話ください
| 会社名 |
株式会社ワールド住建 |
|---|---|
| 免許番号 | 埼玉県知事 (2) 第 24092 号 |
| 所在地 | 埼玉県入間市宮寺2661-28 |
| 所属団体 |
(公社)首都圏不動産公正取引協議会 |
この物件にお問合せする
実際に物件・周辺環境を見て検討したい!
近隣建物や接道の状況など資料で分からない部分も一目瞭然。 まずはWEBで事前予約、スムーズに見学しましょう
ご予約無しに直接ご来場された場合、担当者不在であったり、
他のお客様のご案内の都合上、お待たせしてしまうことがございます。
不動産会社に電話で相談したい!
株式会社ワールド住建
0037-618-53374
無料
電話でのお問合せは「LIFULL HOME'S(ライフルホームズ)を見て」とお伝えください
- ※携帯電話はご利用いただけます
- ※光IP電話、及びIP電話をご利用のお客様はTEL:0429467544へご連絡ください
- ※携帯電話からお問合せいただいた方には、ショートメッセージ(SMS)またはLINE通知メッセージによるお問合せ内容に関する通知をお届けする場合があり、お客様の電話番号は株式会社LIFULLで一定期間保管されます
- ※株式会社LIFULLの個人情報の取扱い方針に同意のうえ、お電話ください
LIFULL HOME'Sは物件鮮度No.1を目指していきます 物件情報に誤りがある場合はコチラからご連絡ください
- 【物件番号】
- 1707765-0000046
- ※完成後1年未満で未入居の物件を「新築」と表示しております。
- ※完成予想図やCG合成画像は、門塀・植栽・庭・外観等、実際とは多少異なる場合があります。
物件を再検索する
埼玉県の人気エリアから新築一戸建てを探す
- 川越市
- 熊谷市
- 川口市
- 行田市
- 秩父市
- 飯能市
- 加須市
- 本庄市
- 東松山市
- 春日部市
- 狭山市
- 羽生市
- 鴻巣市
- 深谷市
- 上尾市
- 草加市
- 越谷市
- 蕨市
- 戸田市
- 入間市
- 朝霞市
- 志木市
- 和光市
- 新座市
- 桶川市
- 久喜市
- 北本市
- 八潮市
- 富士見市
- 三郷市
- 蓮田市
- 坂戸市
- 幸手市
- 鶴ヶ島市
- 日高市
- 吉川市
- ふじみ野市
- 白岡市
- 北足立郡伊奈町
- 入間郡三芳町
- 入間郡毛呂山町
- 入間郡越生町
- 比企郡滑川町
- 比企郡嵐山町
- 比企郡小川町
- 比企郡川島町
- 比企郡吉見町
- 比企郡鳩山町
- 比企郡ときがわ町
- 秩父郡横瀬町
- 秩父郡長瀞町
- 児玉郡美里町
- 児玉郡神川町
- 児玉郡上里町
- 大里郡寄居町
- 南埼玉郡宮代町
- 北葛飾郡杉戸町
- 北葛飾郡松伏町






