新築一戸建て グローイングスクエアあざみ野グランデ
予告広告この広告は予告広告です。販売を開始するまでは、契約または予約(仮予約を含む)のお申込みには
一切応じられませんのでご了承ください。
価格または販売方法が未定の場合は、新規分譲広告にて確定情報をお知らせします。
12/6~ モデルハウス事前案内会開催/来場予約受付中
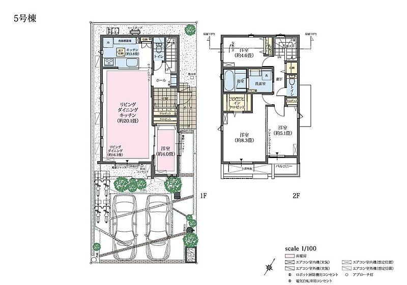
リビングダイニング平均約19.8畳・4LDK
人気の東急田園都市線「あざみ野」「江田」駅へマルチアクセス
慶応幼稚園徒歩圏・全5邸誕生
■長期優良住宅・ZEH・太陽光発電・全邸4LDK・2台駐車
■東急田園都市線「あざみ野」駅
■あざみ野第二小3分、慶應義塾横浜初等部11分
■第一種低層住居エリアの閑静な住宅街、全邸4LDK対応
■光熱費の大幅削減、全邸「太陽光発電システム」搭載
■耐久性・耐震性に優れ、税制・金利優遇が受けられる「長期優良住宅」
■高耐震×制震性を備えた6面体構造の「ハイブリッドキューブ工法」
0037-618-89574
無料
間取り図
0037-618-89574
無料
内観・室内
間取り・内観のこだわりポイント
- LDK15帖以上
- 4LDK以上
- バリアフリー
- 屋上・ルーフバルコニー
- 南面バルコニー
- 全室フローリング
0037-618-89574
無料
設備・仕様
-
太陽光発電システム
環境とエコに貢献できる太陽光パネルを全棟...
-
エコワン
エコワンはガスと電気を組み合わせたハイブ...
-
Low-e複層ガラスサッシ(アルゴンガ...
空気の代わりにアルゴンガスを封入したLo...
-
ビルトイン食器洗い乾燥機
シンクの下に収納するビルトイン食器洗浄乾...
-
TES温水式床暖房
「ふく射熱」で足下から室内全体を均一に暖...
-
省エネ性能ラベル
※販売対象の内の一部の住戸(5号棟)のラ...
-
防犯カメラ
人感センサー、LEDライトを内蔵した防犯...
-
ハイブリッドキューブ工法
制振性能をもつ壁倍率5倍の制振ダンパー耐...
-
長期優良住宅
環境負荷の軽減や良質な社会資産として継承...
設備・仕様のこだわりポイント
- キッチン
-
- カウンターキッチン
- 食器洗い乾燥機
- 浄水器・活水器
- ガスコンロ
- 収納
-
- 床下収納
- ウォークインクローゼット
- 屋根裏収納
- シューズクローク
- パントリー
- 全居室収納
- その他設備
-
- 都市ガス
- マイホーム発電システム
- スマートハウス
- シャワー付洗面化粧台
- 温水洗浄便座
- 浴室乾燥機
- 浴室暖房
- トイレ2ヶ所以上
- 節水型トイレ
- 床暖房
- ブロードバンド
- 複層ガラス採用(二重サッシ・防犯サッシ等)
- スマートキー
- 省エネ給湯器
- 電動シャッター
- TVモニタ付インターホン
- ホームセキュリティ対応
- 宅配ボックス
- EV充電設備
- ホームセキュリティ対応
- 東急セキュリティ
- マイホーム発電システム
- 太陽光パネル搭載(東京ガス:イグニチュアソーラー)
0037-618-89574
無料
外観・分譲地
外観・分譲地のこだわりポイント
- 駐車場あり
- 低層住宅地
- 地盤調査済
- 角地
- 南道路
- 敷地延長・変形地
- 整形地
- 前面道路6m以上
- 隣家との間隔が広い
- 平坦地
- 高台
0037-618-89574
無料
周辺環境・地図
周辺情報
※半径4kmを超えると、周辺情報のアイコンは表示されません。
- ※不動産会社が入力した情報を基に物件の位置を表示しています。
- ※詳しくは不動産会社までお問合せください。
- ※地図上に表示される各種アイコンなどの情報は、おおよその所在地を表すものであり、物件・施設などの地点を保証するものではありません。
- ※地図の表示領域が広域になると周辺のお店・施設は表示できなくなります。
- ※地図、航空写真情報および地形ならびに周辺のお店・施設は、必ずしも現況を表すものではありません。
- ※物件から周辺のお店・施設までの距離は、利用が想定される道路を通行した場合の距離です。なお、必ずしも最短距離を保証するものではありません。
周辺環境のこだわりポイント
- コンビニ 400m以内
- 小学校 800m以内
- 複数路線
- 最寄り駅が始発駅
0037-618-89574
無料
物件概要
※販売戸数または販売区画数は未定です。物件の取引内容及び取引条件は、本販売期以降の総販売戸数・本販売期以降の総販売区画数を基に表示しています。確定情報については本広告時に明示します
| 所在地 | 神奈川県横浜市青葉区大場町 | ||
|---|---|---|---|
| 交通 |
東急田園都市線「あざみ野」駅 徒歩2~3分の「みすずが丘公園」バス停より乗車10分 徒歩2分~3分 東急田園都市線「江田」駅 徒歩17分 |
||
| 販売価格 | 価格未定 | 予定最多価格帯 | 未定 |
| 建物面積 | 97.30m2(約29.43坪)~100.19m2(約30.30坪) | 土地面積 | 131.52m2(約39.78坪)~132.62m2(約40.11坪) |
| 間取り | 4LDK | 建物構造 | 木造2階建て、軸組(在来)工法、スレート葺 |
| 販売スケジュール | 2025年12月上旬 | ||
| 販売戸数 / 総戸数 | 未定 / 5戸 | 本販売期以降の総販売戸数 | 5戸 |
| 完成予定日 | 2025年10月竣工 | 引き渡し可能年月 | 2026年1月予定 |
| 駐車場 | 2台 | 道路の幅員 | 東側:6.00m(公道)・南側:5.50m(公道)アスファルト舗装 |
| 用途地域 | 第一種低層住居専用地域 | 都市計画 | - |
| 地目 | 宅地 | 国土法 | - |
| 土地の権利 | 所有権 | 借地権の種類・期間 | - |
| 主たる設備の概要 | 東京電力、都市ガス、公営水道、公共下水道 | 建築確認番号 | 第24UDI1T建04504号(令和7年2月3日)他 |
| 施工会社 | 株式会社 細田工務店 | 機構融資 | - |
| 売主 | 株式会社 細田工務店 [国土交通大臣(16) 第483号] | 取引態様 | 株式会社 長谷工アーベスト(販売代理) |
| 備考 | - | ||
| 情報更新日 | 2025/12/04 | 次回更新予定日 | 2025/12/11 |
| 取引条件有効期限 | - | ||
住宅性能・販売概要・権利のこだわりポイント
- 所有権
- 瑕疵担保付き
- 仲介手数料不要
- 売主・代理
- 耐震・制震・免震構造
- 長期優良住宅
- 設計住宅性能評価書
- フラット35・S適合証明書
- 建設住宅性能評価書(新築時)
- 耐震・制震・免震構造
- 建設性能評価 耐震等級3×制振装置
0037-618-89574
無料
取扱い不動産会社
株式会社細田工務店 の会社情報
お電話でのお問合せは「LIFULL HOME'S(ライフルホームズ)を見て」とお伝えください
現地インフォメーションデスク
0037-618-89574
無料
- ※携帯電話はご利用いただけます
- ※光IP電話、及びIP電話をご利用のお客様はTEL:0120-385-005へご連絡ください
- ※携帯電話からお問合せいただいた方には、ショートメッセージ(SMS)またはLINE通知メッセージによるお問合せ内容に関する通知をお届けする場合があり、お客様の電話番号は株式会社LIFULLで一定期間保管されます
- ※株式会社LIFULLの個人情報の取扱い方針に同意のうえ、お電話ください
| 会社名 |
株式会社細田工務店 |
|---|---|
| 免許番号 | 建設大臣 (16) 第 483 号 |
| 所在地 | 東京都杉並区阿佐谷南3-35-21 |
| 所属団体 |
(公社)首都圏不動産公正取引協議会 |
この物件にお問合せする
実際に物件・周辺環境を見て検討したい!
近隣建物や接道の状況など資料で分からない部分も一目瞭然。 まずはWEBで事前予約、スムーズに見学しましょう
ご予約無しに直接ご来場された場合、担当者不在であったり、
他のお客様のご案内の都合上、お待たせしてしまうことがございます。
不動産会社に電話で相談したい!
現地インフォメーションデスク
0037-618-89574
無料
電話でのお問合せは「LIFULL HOME'S(ライフルホームズ)を見て」とお伝えください
- ※携帯電話はご利用いただけます
- ※光IP電話、及びIP電話をご利用のお客様はTEL:0120-385-005へご連絡ください
- ※携帯電話からお問合せいただいた方には、ショートメッセージ(SMS)またはLINE通知メッセージによるお問合せ内容に関する通知をお届けする場合があり、お客様の電話番号は株式会社LIFULLで一定期間保管されます
- ※株式会社LIFULLの個人情報の取扱い方針に同意のうえ、お電話ください
LIFULL HOME'Sは物件鮮度No.1を目指していきます 物件情報に誤りがある場合はコチラからご連絡ください
- 【物件番号】
- 1707536-0000082
- ※完成後1年未満で未入居の物件を「新築」と表示しております。
- ※完成予想図やCG合成画像は、門塀・植栽・庭・外観等、実際とは多少異なる場合があります。
物件を再検索する
横浜市の人気エリアから新築一戸建てを探す






