新築一戸建て 【橋本不動産】総28区画の新規分譲地~近江八幡駅徒歩11分【土田町分譲地】
新生活応援キャンペーン!大商談会開催中!
全棟耐震等級3に加えて制振装置、ZEH、長期優良住宅。太陽光、蓄電池(対象物件のみ)搭載!
JR「近江八幡」駅すぐの大変便利な立地!生活に必要な日々のお買物やショッピング、クリニックや医療・金融機関もすぐそばに揃う利便性と豊かな自然の調和が嬉しい、多世代にわたって住み継げる街です。
0037-633-67526
無料
魅力1 しぜん豊かで静かな街並み
魅力2 スタッフなしで見学できる「セルフ内見システム」を導入!!
魅力3 当社は売主ですので仲介手数料は頂きません
0037-633-67526
無料
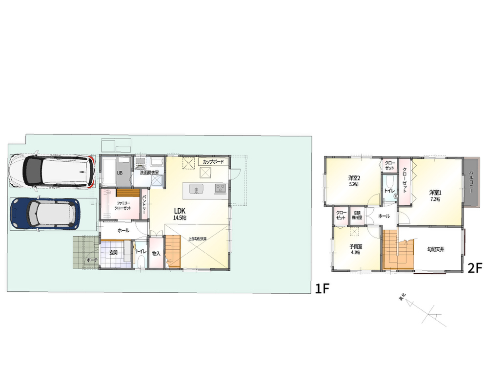
間取り図
-
5号地【蓄電池搭載物件】 間取り 3LDK 価格 5330万円 建物面積 106.18m2 土地面積 178.28m2 -
7号地 間取り 4LDK 価格 5870万円 建物面積 112.96m2 土地面積 185.63m2 -
15号地 間取り 3LDK 価格 4710万円 建物面積 88.11m2 土地面積 150.48m2 -
16号地 間取り 3LDK 価格 4680万円 建物面積 86.55m2 土地面積 150.47m2 -
20号地 間取り 3SLDK+ 小屋裏収納(固定階段付) 価格 4852万円 建物面積 131.71m2(車庫含22.81m2) 土地面積 164.00m2 -
28号地 間取り 4LDK 価格 5510万円 建物面積 97.92m2 土地面積 184.27m2
0037-633-67526
無料
内観・室内
間取り・内観のこだわりポイント
- LDK15帖以上
- 4LDK以上
- 吹き抜け
- 和室
0037-633-67526
無料
設備・仕様
設備・仕様のこだわりポイント
- キッチン
-
- IHコンロ
- 食器洗い乾燥機
- 収納
-
- 屋根裏収納
- シューズクローク
- その他設備
-
- オール電化
- スマートハウス
- 浴室乾燥機
- 浴室暖房
- 複層ガラス採用(二重サッシ・防犯サッシ等)
- TVモニタ付インターホン
0037-633-67526
無料
外観・分譲地
-
5号地【GX志向型住宅/ZEH+/W断熱/蓄電池/全館空調】
ご見学可能です♪GX志向型住宅/ZEH+/W断熱/蓄電池7.4...
-
7号地【GX志向型住宅/ZEH+/W断熱/蓄電池/全館空調】
建築計画中です。GX志向型住宅/ZEH+/W断熱/蓄電池7.4...
-
15号地【ZEH+/W断熱/蓄電池/全館空調】
建築中です。ZEH+/W断熱/蓄電池7.4kW搭載/全館空調w...
-
16号地【ZEH+/W断熱/蓄電池/全館空調】
建築中です。ZEH+/W断熱/蓄電池7.4kW搭載/全館空調w...
-
20号地
ご見学可能です♪
-
28号地【ZEH+/W断熱/蓄電池/全館空調】
建築中です。ZEH+/W断熱/蓄電池7.4kW搭載/全館空調w...
外観・分譲地のこだわりポイント
- 庭が広い
- 駐車場あり
- 総戸数・総区画数が10以上〜30未満
- 角地
- 南道路
0037-633-67526
無料
周辺環境・地図
周辺情報
※半径4kmを超えると、周辺情報のアイコンは表示されません。
- ※不動産会社が入力した情報を基に物件の位置を表示しています。
- ※詳しくは不動産会社までお問合せください。
- ※地図上に表示される各種アイコンなどの情報は、おおよその所在地を表すものであり、物件・施設などの地点を保証するものではありません。
- ※地図の表示領域が広域になると周辺のお店・施設は表示できなくなります。
- ※地図、航空写真情報および地形ならびに周辺のお店・施設は、必ずしも現況を表すものではありません。
- ※物件から周辺のお店・施設までの距離は、利用が想定される道路を通行した場合の距離です。なお、必ずしも最短距離を保証するものではありません。
周辺環境のこだわりポイント
- スーパー 800m以内
- 小学校 800m以内
- 総合病院 800m以内
- 複数路線
0037-633-67526
無料
物件概要
| 所在地 | 滋賀県近江八幡市土田町 | ||
|---|---|---|---|
| 交通 |
JR東海道・山陽本線「近江八幡」駅 徒歩11分 |
||
| 販売価格 | 4,680~5,870万円 | 最多価格帯 | - |
| 建物面積 | 86.55m2(26.18坪)~131.71m2(39.84坪)車庫含22.81m2(6.9坪) | 土地面積 | 150.47m2(45.51坪)~185.63m2(56.15坪) |
| 間取り | 3LDK、4LDK | 建物構造 | 木造2階建 |
| 販売スケジュール | 先着順受付中 | ||
| 販売戸数 / 総戸数 | 6戸 / 28戸 | ||
| 完成予定日 | 5号地2025年11月、20号地2024年10月 | 引き渡し可能年月 | 即引渡可 |
| 駐車場 | - | 道路の幅員 | 6m |
| 用途地域 | 第一種中高層住居専用地域 | 都市計画 | 市街化区域 |
| 地目 | 宅地 | 国土法 | - |
| 土地の権利 | 所有権 | 借地権の種類・期間 | - |
| 主たる設備の概要 | 電気、公営水道 | 建築確認番号 | 7号地:第R06確更建築滋建住01977号他 |
| 施工会社 | - | 機構融資 | - |
| 売主 | 取引態様 | 売主/橋本不動産株式会社 | |
| 備考 | - | ||
| 情報更新日 | 2026/05/14 | 次回更新予定日 | 2026/05/28 |
| 取引条件有効期限 | 2030/01/31 | ||
住宅性能・販売概要・権利のこだわりポイント
- 所有権
- 瑕疵担保付き
- 仲介手数料不要
- 売主・代理
- 耐震・制震・免震構造
- 長期優良住宅
- 即入居可
0037-633-67526
無料
取扱い不動産会社
橋本不動産株式会社の会社情報
お電話でのお問合せは「LIFULL HOME'S(ライフルホームズ)を見て」とお伝えください
橋本不動産株式会社
0037-633-67526
無料
- ※携帯電話はご利用いただけます
- ※光IP電話、及びIP電話をご利用のお客様はTEL:077-514-0300へご連絡ください
- ※携帯電話からお問合せいただいた方には、ショートメッセージ(SMS)またはLINE通知メッセージによるお問合せ内容に関する通知をお届けする場合があり、お客様の電話番号は株式会社LIFULLで一定期間保管されます
- ※株式会社LIFULLの個人情報の取扱い方針に同意のうえ、お電話ください
| 会社名 |
橋本不動産株式会社 |
|---|---|
| 免許番号 | 国土交通大臣 (4) 第 8062 号 |
| 所在地 | 滋賀県守山市梅田町15-9 |
| 所属団体 |
(公社)全国宅地建物取引業保証協会 |
この物件にお問合せする
実際に物件・周辺環境を見て検討したい!
近隣建物や接道の状況など資料で分からない部分も一目瞭然。 まずはWEBで事前予約、スムーズに見学しましょう
ご予約無しに直接ご来場された場合、担当者不在であったり、
他のお客様のご案内の都合上、お待たせしてしまうことがございます。
不動産会社に電話で相談したい!
橋本不動産株式会社
0037-633-67526
無料
電話でのお問合せは「LIFULL HOME'S(ライフルホームズ)を見て」とお伝えください
- ※携帯電話はご利用いただけます
- ※光IP電話、及びIP電話をご利用のお客様はTEL:077-514-0300へご連絡ください
- ※携帯電話からお問合せいただいた方には、ショートメッセージ(SMS)またはLINE通知メッセージによるお問合せ内容に関する通知をお届けする場合があり、お客様の電話番号は株式会社LIFULLで一定期間保管されます
- ※株式会社LIFULLの個人情報の取扱い方針に同意のうえ、お電話ください
LIFULL HOME'Sは物件鮮度No.1を目指していきます 物件情報に誤りがある場合はコチラからご連絡ください
- 【物件番号】
- 1707178-0000086
- ※完成後1年未満で未入居の物件を「新築」と表示しております。
- ※完成予想図やCG合成画像は、門塀・植栽・庭・外観等、実際とは多少異なる場合があります。








