新築一戸建て 【ナカオホーム】刈谷市野田町建売(No.A)
- 価格
- 4650万円
- 所在地
-
愛知県刈谷市野田町筒林1-42、1-94
地図を見る
- 交通
- JR東海道本線「野田新町」駅 車1.2kmJR東海道本線「東刈谷」駅 車2.1kmかりまるバス「野田町新上納」 徒歩5分
- 土地面積
- 101.48m2
- 建物面積
- 93.37m2
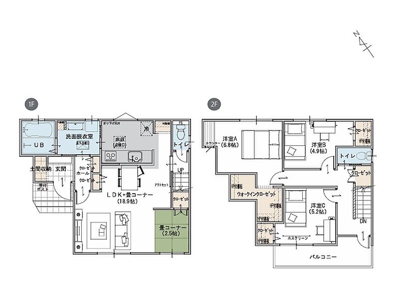
- 間取り
- 3LDK+畳コーナー
【南面LDKの高性能住宅】子育てに最適化された、効率的で柔軟な住まい
【周辺環境】 ●子育て世代にピッタリな環境 1. 幼稚園・小学校へのアクセス良好 2. 森前公園まで徒歩5分。お外でのびのびと遊べます! 3.ピアゴ東刈谷店まで徒歩10分!毎日の買い物もラクラク。
【コンセプト】 ●効率と快適さを追求したプラン 1. 家族の気配を感じる18.9帖のリビング!畳コーナー付(No.A) 2. 1日中明るさを保てる南向きのリビング空間(No.A)
0037-618-80431
無料
魅力1 南面LDKの高性能住宅
【効率と快適さを追求したプラン】
■No.A
1. 家族の気配を感じるリビング、ほっと一息つける畳コーナーのゆとり
2. 時短に繋がる土間・キッチン・洗面のスマート収納設計
3. WICは洗濯動線やモノの出し入れを考えた設計に
■No.B
1. 南向きの日当たりのよいリビング!
2.コンパクトな間取りでムダを極限までカット!
└ 水回りを集約した効率的な家事動線
※No.Bはご好評につき完売となりました。
魅力2 子育て世代にピッタリな住環境!
1. 幼稚園・小学校へのアクセス◎
2. 森前公園まで徒歩5分。お外でのびのびと遊べます!
3. JR東海道本線「野田新町」駅へ自転車5分
4.国道23号線「野田」ICまで車2分
魅力3 高品質+充実したアフターサポートで安心の暮らし
■高品質な家づくり
JapanHousingQualityAward 、全国の住宅会社が製造品質を競う建物部門で最優秀賞を受賞。第三者機関の監査を導入し、高品質な家づくりを実現しています。
■充実したアフターサポート
高品質な住宅だから実現できた、充実のアフターサポート。業界トップクラスの建物保証期間をはじめ、建てたあとも、暮らしを支えるサービスを提供し、安心とロマンをお届けします。
0037-618-80431
無料
間取り図
0037-618-80431
無料
内観・室内
間取り・内観のこだわりポイント
- LDK15帖以上
- 南面バルコニー
- 全室フローリング
0037-618-80431
無料
設備・仕様
設備・仕様のこだわりポイント
- キッチン
-
- カウンターキッチン
- 食器洗い乾燥機
- 浄水器・活水器
- ガスコンロ
- 収納
-
- 床下収納
- ウォークインクローゼット
- シューズクローク
- パントリー
- 全居室収納
- その他設備
-
- 都市ガス
- シャワー付洗面化粧台
- 温水洗浄便座
- 浴室乾燥機
- 浴室暖房
- トイレ2ヶ所以上
- 複層ガラス採用(二重サッシ・防犯サッシ等)
- TVモニタ付インターホン
- 宅配ボックス
0037-618-80431
無料
外観・分譲地
外観・分譲地のこだわりポイント
- 駐車場あり
- 低層住宅地
- 地盤調査済
- 角地
- 南道路
- 前面道路6m以上
0037-618-80431
無料
周辺環境・地図
周辺情報
※半径4kmを超えると、周辺情報のアイコンは表示されません。
- ※不動産会社が入力した情報を基に物件の位置を表示しています。
- ※詳しくは不動産会社までお問合せください。
- ※地図上に表示される各種アイコンなどの情報は、おおよその所在地を表すものであり、物件・施設などの地点を保証するものではありません。
- ※地図の表示領域が広域になると周辺のお店・施設は表示できなくなります。
- ※地図、航空写真情報および地形ならびに周辺のお店・施設は、必ずしも現況を表すものではありません。
- ※物件から周辺のお店・施設までの距離は、利用が想定される道路を通行した場合の距離です。なお、必ずしも最短距離を保証するものではありません。
周辺環境のこだわりポイント
- スーパー 800m以内
- 小学校 800m以内
- 公園 400m以内
- 中学校 800m以内
0037-618-80431
無料
物件概要
| 所在地 | 愛知県刈谷市野田町筒林1-42、1-94 | ||
|---|---|---|---|
| 交通 |
JR東海道本線「野田新町」駅 車1.2km JR東海道本線「東刈谷」駅 車2.1km かりまるバス「野田町新上納」 徒歩5分 |
||
| 販売価格 | 4650万円 | 最多価格帯 | - |
| 建物面積 | 93.37m2 | 土地面積 | 101.48m2 |
| 間取り | 3LDK+畳コーナー | 建物構造 | 木造2階建て(2×4工法) |
| 販売スケジュール | 先着順受付中 | ||
| 販売戸数 / 総戸数 | 1戸 / 2戸 | ||
| 完成予定日 | 未定 | 引き渡し可能年月 | 相談 |
| 駐車場 | 2台 | 道路の幅員 | 道路幅:西側幅員6.0m、南側幅員5.4m、アスファルト舗装 |
| 用途地域 | 第一種低層住居専用地域 | 都市計画 | 市街化区域 |
| 地目 | 宅地 | 国土法 | - |
| 土地の権利 | 所有権 | 借地権の種類・期間 | - |
| 主たる設備の概要 | 上下水道、中部電力、都市ガス | 建築確認番号 | 第 R07確認建築CI東海A02213 号 |
| 施工会社 | 中尾建設工業株式会社 | 機構融資 | - |
| 売主 | 中尾建設工業株式会社 [愛知県知事(11)第012108号] | 取引態様 | 売主/中尾建設工業株式会社 |
| 備考 |
【ご来場特典】 □QUOカード2000円分プレゼント □抽選3組!Refaシャンプーリンスセットプレゼント ※事前アンケート回答必須になります 【ご成約特典】 □最大50万円分の家電プレゼント □モデルハウス展示家具プレゼント ※物件により特典内容が異なります |
||
| 情報更新日 | 2026/05/11 | 次回更新予定日 | 2026/05/25 |
| 取引条件有効期限 | 2027/03/31 | ||
住宅性能・販売概要・権利のこだわりポイント
- 所有権
- 瑕疵担保付き
- 仲介手数料不要
- 売主・代理
- 耐震・制震・免震構造
- 長期優良住宅
0037-618-80431
無料
取扱い不動産会社
スタッフからのコメント
- 平日でも相談・見学OK!!お気軽にお問い合わせください!
- ピアゴ徒歩10分、3駅利用可能な利便性の高い野田町エリア。
南向きのリビングにはたっぷりと陽光が差し込み、ご家族が自然と集まる明るい住まいです。
生活利便と快適性のバランスが良く、子育て世代にもおすすめしたい一邸です。
平日でも相談・見学OK!!お気軽にお問い合わせください!
本間 裕貴
中尾建設工業株式会社の会社情報
お電話でのお問合せは「LIFULL HOME'S(ライフルホームズ)を見て」とお伝えください
中尾建設工業株式会社
0037-618-80431
無料
- ※携帯電話はご利用いただけます
- ※光IP電話、及びIP電話をご利用のお客様はTEL:0120-105-322へご連絡ください
- ※携帯電話からお問合せいただいた方には、ショートメッセージ(SMS)またはLINE通知メッセージによるお問合せ内容に関する通知をお届けする場合があり、お客様の電話番号は株式会社LIFULLで一定期間保管されます
- ※株式会社LIFULLの個人情報の取扱い方針に同意のうえ、お電話ください
| 会社名 |
中尾建設工業株式会社 |
|---|---|
| 免許番号 | 愛知県知事 (11) 第 12108 号 |
| 所在地 | 愛知県安城市安城町社口堂75 |
| 所属団体 |
(公社)愛知県宅地建物取引業協会 |
この物件にお問合せする
実際に物件・周辺環境を見て検討したい!
近隣建物や接道の状況など資料で分からない部分も一目瞭然。 まずはWEBで事前予約、スムーズに見学しましょう
ご予約無しに直接ご来場された場合、担当者不在であったり、
他のお客様のご案内の都合上、お待たせしてしまうことがございます。
不動産会社に電話で相談したい!
中尾建設工業株式会社
0037-618-80431
無料
電話でのお問合せは「LIFULL HOME'S(ライフルホームズ)を見て」とお伝えください
- ※携帯電話はご利用いただけます
- ※光IP電話、及びIP電話をご利用のお客様はTEL:0120-105-322へご連絡ください
- ※携帯電話からお問合せいただいた方には、ショートメッセージ(SMS)またはLINE通知メッセージによるお問合せ内容に関する通知をお届けする場合があり、お客様の電話番号は株式会社LIFULLで一定期間保管されます
- ※株式会社LIFULLの個人情報の取扱い方針に同意のうえ、お電話ください
LIFULL HOME'Sは物件鮮度No.1を目指していきます 物件情報に誤りがある場合はコチラからご連絡ください
- 【物件番号】
- 1707082-0000288
- ※完成後1年未満で未入居の物件を「新築」と表示しております。
- ※完成予想図やCG合成画像は、門塀・植栽・庭・外観等、実際とは多少異なる場合があります。
物件を再検索する
愛知県の人気エリアから新築一戸建てを探す














