新築一戸建て 【ナカオホーム】刈谷市東境町建売
- 価格
- 4480万円
- 所在地
-
愛知県刈谷市東境町住吉78-5
地図を見る
- 交通
- 名鉄名古屋本線「富士松」駅 車3.2km(自転車13分)名鉄名古屋本線「一ツ木」駅 車3.9km(自転車16分)かりまる「北部市民センター」 徒歩2分
- 土地面積
- 114.29m2(34.57坪)
- 建物面積
- 94.51m2(28.53坪)
- 間取り
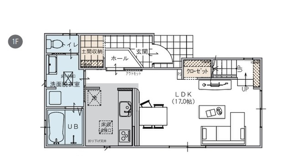
- 3LDK
タイパ・コスパ・スペパに妥協なし!【家事が減り、家族の時間が増える家】スカイバルコニー×3LDKで限られた敷地でありながら、最高の贅沢な暮らしが叶います
国道1号線北の刈谷市物件。国道1号線、国道155号線が近く、豊田方面、みよし方面、豊明方面へ車での移動がしやすいエリア。
【家族に嬉しい価格と間取り】・4480万円/スカイバルコニー付きのマイホーム 。プライベート空間でBBQや家庭菜園を満喫 。
0037-618-94355
無料
魅力1 =SkyFit=屋上庭園のある暮らし
13.1帖の屋上庭園。お子様の遊び場やドックラン、家庭菜園などとして…使い道は趣味の数だけ広がります♪
洗濯物をたっぷり干せるのはもちろん、布団もふっくら。
太陽の恵みを感じられる南向きの広々バルコニー。
魅力2 充実した収納で、ファミリー世帯に嬉しい設計
余裕のある玄関ホールに大容量土間収納でいつでもきれいな玄関。その他、階段の収納、ウォークインクローゼットなど大きな収納はもちろん、適材適所に収納が置かれているため、片付けもしやすくスッキリ整えることができます。
魅力3 【新登場】 スカイバルコニー×3LDKで叶える理想の暮らし
タイパ・コスパ・スペパに優れた住まい
■3LDKスカイバルコニー付きのマイホーム
L プライベート空間でBBQや家庭菜園を満喫
■諸費用が約150万円に抑えられる(一般的には200万円ほど)
■カーテン・照明付きのコミコミ価格
■安心の保証制度と全国No.1の品質
0037-618-94355
無料
間取り図
0037-618-94355
無料
内観・室内
-
LDK※完成イメージパース
ゲストに自慢したくなる、こだわりのデザイン!天井に高低差がある...
-
LDK※完成イメージパース
南向きの掃き出し窓からは暖かい光が差し込みます。収納はオープン...
-
キッチン※施工例
お子様の遊び相手をしたり、ちょっとしたお手伝いをお願いしたり、...
-
階段ライブラリ※完成イメージパース
通り過ぎる場所から、立ち止まる場所へ。1m2もムダにしない空間...
-
主寝室※完成イメージパース
大容量ウォークインクローゼット付き主寝室。バルコニーに面した天...
-
洋室A/B(2室共通部屋)※完成イメージパース
ライフスタイルの変化に合わせて、いつでも間取りをカスタマイズで...
間取り・内観のこだわりポイント
- LDK15帖以上
- 屋上・ルーフバルコニー
- ワイドバルコニー
- 南面バルコニー
- 全室フローリング
0037-618-94355
無料
設備・仕様
設備・仕様のこだわりポイント
- キッチン
-
- カウンターキッチン
- 食器洗い乾燥機
- 浄水器・活水器
- ガスコンロ
- 収納
-
- 床下収納
- ウォークインクローゼット
- シューズクローク
- 全居室収納
- その他設備
-
- 都市ガス
- シャワー付洗面化粧台
- 温水洗浄便座
- 浴室乾燥機
- 浴室1.6×1.8m以上
- 浴室暖房
- トイレ2ヶ所以上
- 節水型トイレ
- 複層ガラス採用(二重サッシ・防犯サッシ等)
- TVモニタ付インターホン
- 宅配ボックス
0037-618-94355
無料
外観・分譲地
外観・分譲地のこだわりポイント
- 駐車場あり
- 低層住宅地
- 地盤調査済
0037-618-94355
無料
周辺環境・地図
周辺情報
※半径4kmを超えると、周辺情報のアイコンは表示されません。
- ※不動産会社が入力した情報を基に物件の位置を表示しています。
- ※詳しくは不動産会社までお問合せください。
- ※地図上に表示される各種アイコンなどの情報は、おおよその所在地を表すものであり、物件・施設などの地点を保証するものではありません。
- ※地図の表示領域が広域になると周辺のお店・施設は表示できなくなります。
- ※地図、航空写真情報および地形ならびに周辺のお店・施設は、必ずしも現況を表すものではありません。
- ※物件から周辺のお店・施設までの距離は、利用が想定される道路を通行した場合の距離です。なお、必ずしも最短距離を保証するものではありません。
周辺環境のこだわりポイント
- 小学校 800m以内
0037-618-94355
無料
物件概要
| 所在地 | 愛知県刈谷市東境町住吉78-5 | ||
|---|---|---|---|
| 交通 |
名鉄名古屋本線「富士松」駅 車3.2km(自転車13分) 名鉄名古屋本線「一ツ木」駅 車3.9km(自転車16分) かりまる「北部市民センター」 徒歩2分 |
||
| 販売価格 | 4480万円 | 最多価格帯 | - |
| 建物面積 | 94.51m2(28.53坪) | 土地面積 | 114.29m2(34.57坪) |
| 間取り | 3LDK | 建物構造 | 木造2階建て(2×4工法) |
| 販売スケジュール | 先着順受付中 | ||
| 販売戸数 / 総戸数 | 1戸 / 1戸 | ||
| 完成予定日 | 未定 | 引き渡し可能年月 | 相談 |
| 駐車場 | 2台 | 道路の幅員 | 道路幅:アスファルト舗装、東幅員4.0m |
| 用途地域 | 第一種低層住居専用地域 | 都市計画 | 市街化区域 |
| 地目 | 宅地 | 国土法 | - |
| 土地の権利 | 所有権 | 借地権の種類・期間 | - |
| 主たる設備の概要 | 上下水道、中部電力、都市ガス | 建築確認番号 | 第 R07確認建築CI東海A01961 |
| 施工会社 | - | 機構融資 | - |
| 売主 | 中尾建設工業株式会社 [愛知県知事(11)第012108号] | 取引態様 | 売主/中尾建設工業株式会社 |
| 備考 |
\GW限定イベント開催!/ GOLDEN WEEK 住まいフェア □新着物件を特別に初公開!! □住宅価格今後どうなる?無料資金相談会も同時開催! 【ご来場特典】 ・こども縁日開催(お菓子・おもちゃゲット!) ・大人も楽しめる抽選イベントあり ・QUOカード2,000円分プレゼント ※事前アンケート回答必須になります 【ご成約特典】 ・最大50万円分の家電プレゼント ・モデルハウス展示家具プレゼント ※物件により特典内容が異なります |
||
| 情報更新日 | 2026/04/25 | 次回更新予定日 | 2026/05/09 |
| 取引条件有効期限 | 2027/03/31 | ||
住宅性能・販売概要・権利のこだわりポイント
- 所有権
- 瑕疵担保付き
- 仲介手数料不要
- 売主・代理
- 耐震・制震・免震構造
- 長期優良住宅
0037-618-94355
無料
取扱い不動産会社
スタッフからのコメント
- 平日でも相談・見学OK!!お気軽にお問い合わせください!
- 国道1号線北の刈谷市物件。国道1号線、国道155号線が近く車での移動がしやすい利便性の高い立地とゆとりの並列2台の駐車スペース+サイクルスペースが魅力。ご家族皆様の生活を快適にする環境が整っています!
中村 顕士
中尾建設工業株式会社の会社情報
お電話でのお問合せは「LIFULL HOME'S(ライフルホームズ)を見て」とお伝えください
中尾建設工業株式会社
0037-618-94355
無料
- ※携帯電話はご利用いただけます
- ※光IP電話、及びIP電話をご利用のお客様はTEL:0120-105-322へご連絡ください
- ※携帯電話からお問合せいただいた方には、ショートメッセージ(SMS)またはLINE通知メッセージによるお問合せ内容に関する通知をお届けする場合があり、お客様の電話番号は株式会社LIFULLで一定期間保管されます
- ※株式会社LIFULLの個人情報の取扱い方針に同意のうえ、お電話ください
| 会社名 |
中尾建設工業株式会社 |
|---|---|
| 免許番号 | 愛知県知事 (11) 第 12108 号 |
| 所在地 | 愛知県安城市安城町社口堂75 |
| 所属団体 |
(公社)愛知県宅地建物取引業協会 |
この物件にお問合せする
実際に物件・周辺環境を見て検討したい!
近隣建物や接道の状況など資料で分からない部分も一目瞭然。 まずはWEBで事前予約、スムーズに見学しましょう
ご予約無しに直接ご来場された場合、担当者不在であったり、
他のお客様のご案内の都合上、お待たせしてしまうことがございます。
不動産会社に電話で相談したい!
中尾建設工業株式会社
0037-618-94355
無料
電話でのお問合せは「LIFULL HOME'S(ライフルホームズ)を見て」とお伝えください
- ※携帯電話はご利用いただけます
- ※光IP電話、及びIP電話をご利用のお客様はTEL:0120-105-322へご連絡ください
- ※携帯電話からお問合せいただいた方には、ショートメッセージ(SMS)またはLINE通知メッセージによるお問合せ内容に関する通知をお届けする場合があり、お客様の電話番号は株式会社LIFULLで一定期間保管されます
- ※株式会社LIFULLの個人情報の取扱い方針に同意のうえ、お電話ください
LIFULL HOME'Sは物件鮮度No.1を目指していきます 物件情報に誤りがある場合はコチラからご連絡ください
- 【物件番号】
- 1707082-0000280
- ※完成後1年未満で未入居の物件を「新築」と表示しております。
- ※完成予想図やCG合成画像は、門塀・植栽・庭・外観等、実際とは多少異なる場合があります。
物件を再検索する
愛知県の人気エリアから新築一戸建てを探す








