新築一戸建て 建築家プロデュースのモデルハウス分譲■藤沢市亀井野■
- 価格
- 7680万円
- 所在地
- 神奈川県藤沢市亀井野
- 交通
- 小田急江ノ島線「六会日大前」駅 徒歩7分小田急江ノ島線「湘南台」駅 徒歩20分相鉄いずみ野線「湘南台」駅 徒歩23分
乗り換え案内
- 土地面積
- 130.44m2
- 建物面積
- 104.27m2
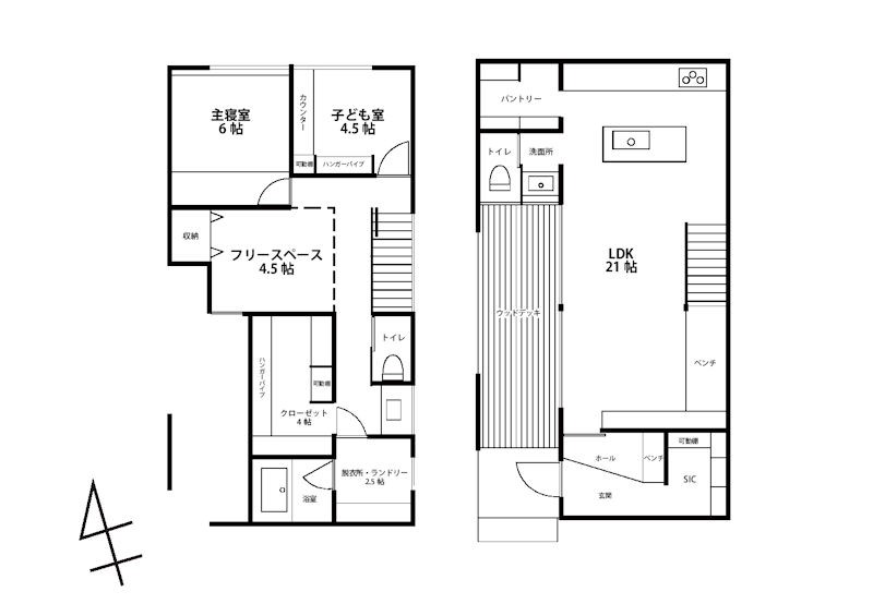
- 間取り
- 3LDK
■物件の当日予約・当日見学できます◎どうぞお気軽にご連絡ください!
■エムイーPLUS町田はご相談だけでもOKです♪気になることは何でもお尋ねください!
■2025年ではグループ成約数2271件の実績 2003年創業 現在7事業18店舗
0037-618-10461
無料
魅力1 ■住宅ローンに強いエムイーPLUS町田!
エムイー PLUS町田ではこれまで多く取引を重ねてきました。その為金融機関からの信頼が厚く、購入を検討されているお客様のローン審査をより低い金利で、より通し易くすることが可能です。当社には経験と知識豊富なアドバイザーが多数在籍しております。お客様一人一人に合わせたご提案をさせいただきます!
魅力2 ■お子様連れのご家族様も安心の接客スペース
キッズ用の椅子・ベビーベッド・授乳室完備しております。おもちゃがいっぱいのキッズルームも完備!
家族みんなが住まう家選びですから、どうぞご家族みなさまで、お越しください♪
魅力3 ■エムイーPLUS町田の魅力♪
物件の当日予約・当日見学ができます!
ご自宅や駅、ご指定いただいた場所に無料でお迎えに参りますのでお気軽にお問い合わせください♪
0037-618-10461
無料
間取り図
0037-618-10461
無料
内観・室内
間取り・内観のこだわりポイント
- LDK15帖以上
- 全室フローリング
0037-618-10461
無料
設備・仕様
設備・仕様のこだわりポイント
- 収納
-
- シューズクローク
- パントリー
- その他設備
-
- 都市ガス
- トイレ2ヶ所以上
0037-618-10461
無料
外観・分譲地
外観・分譲地のこだわりポイント
- 駐車場あり
- 低層住宅地
0037-618-10461
無料
周辺環境・地図
周辺環境のこだわりポイント
- 小学校 800m以内
- 中学校 800m以内
- 複数路線
0037-618-10461
無料
物件概要
| 所在地 | 神奈川県藤沢市亀井野 | ||
|---|---|---|---|
| 交通 |
小田急江ノ島線「六会日大前」駅 徒歩7分 小田急江ノ島線「湘南台」駅 徒歩20分 相鉄いずみ野線「湘南台」駅 徒歩23分 |
||
| 販売価格 | 7680万円 | 最多価格帯 | - |
| 建物面積 | 104.27m2 | 土地面積 | 130.44m2 |
| 間取り | 3LDK | 建物構造 | 木造 2階建 |
| 販売スケジュール | 先着順受付中/販売中 | ||
| 販売戸数 / 総戸数 | 1戸 / 1戸 | ||
| 完成予定日 | 2026年03月 | 引き渡し可能年月 | 即入居可 |
| 駐車場 | 1台 | 道路の幅員 | :南西4.5m |
| 用途地域 | 第一種低層住居専用地域 | 都市計画 | 市街化区域 |
| 地目 | 宅地 | 国土法 | 届出不要 |
| 土地の権利 | 所有権 | 借地権の種類・期間 | - |
| 主たる設備の概要 | 都市ガス/公営水道/下水 | 建築確認番号 | 完成済のため省略 |
| 施工会社 | - | 機構融資 | - |
| 売主 | - | 取引態様 | エムイーPLUS町田株式会社/仲介 |
| イベント情報 |
|
||
| 備考 |
首都圏18店舗にて展開する ME Group ♪ 2025年ではグループ成約数2271件の実績のME Groupで 東京・神奈川の成約が多いエムイーPLUS町田です♪ 成約数も多く「取り扱い物件数」「住宅ローン金利優遇」に自信があります♪ お客様に最良なご提案をさせていただきます。 ◆住宅ローンアドバイザーによる相談会実施中◆ カードローンなどの借入のある方、永住権のない方、転職間もない方、 自己資金を抑えたい方、他社様で住宅ローンを断れてしまった方などなど まずはお気軽にご連絡くださいませ♪ ◆無料送迎お任せください◆ ご自宅や駅、ご指定いただいた場所に無料でお迎えに参ります。 小さなお子様も乗れるようにチャイルドシートもご準備致します。 問い合わせ時に「その他のご要望」からお知らせください。 ◆ご自宅を売却して住み替えのお客様へ◆ 弊社はお客様が安心できるように簡易インスペクション(無料)を 行って正確な査定価格をお出し致します。 AIによる査定書やスムーズに売却できるよう手順をパンフレットでご説明します。 売却も購入もどちらも一貫してできるエムイーPLUS町田にご依頼ください。 ◆ぜひお子様と一緒にご来店ください♪ 無料ガチャガチャコインプレゼント おもちゃいっぱい!大画面でyoutubeが見れるキッズルーム完備 キッズ用の椅子・ベビーベッド・授乳室完備! 無料のお子様ドリンク・無料おむつ完備! ご案内時は、チャイルドシートも完備! まだまだあります、エムイーPLUS町田のプラスのおもてなし! 物件の当日予約・当日見学できます! 首都圏に広がるME Group/マイホーム購入に特化した不動産コンサルタント会社。 それしかできません。でもそれが『とにかく得意』です。 『接道』一方 南西4.5m公道 『法令上の制限』その他制限事項:22条区域 現況モデルハウスとして使用中 設備:都市ガス 公営水道 下水 駐車場1台 小学校徒歩10分以内 中学校徒歩10分以内 システムキッチン 対面キッチン パントリー(食器・食品の収納庫) 脱衣所 トイレ2ヶ所 2階建 玄関ホール LDK15畳以上 LDK18畳以上 LDK20畳以上 室内洗濯機置き場 フローリング 全室フローリング リビング階段 収納 シューズインクローク |
||
| 情報更新日 | 2026/05/22 | 次回更新予定日 | 2026/06/04 |
| 取引条件有効期限 | 2026/05/24 | ||
住宅性能・販売概要・権利のこだわりポイント
- 所有権
- 即入居可
0037-618-10461
無料
現地・イベント情報
◇◆◇ご希望の場所まで「無料送迎」・「ナイト見学会」実施中!◇◆◇
| 開催日時 |
2025年12月01日〜2026年05月31日
|
|---|---|
| 開催場所 | 神奈川県藤沢市亀井野 |
| 交通 |
小田急江ノ島線「六会日大前」駅 徒歩7分 |
□見学はしたいけど、忙しくて・・・見に行く時間がない・・・ □気になる物件の夜の環境も見てみたい! □車がない、電車での移動は大変・・・ □運転に自信がないので、自分で運転していくのは少し不安・・・ □小さな子供がいて、見にいくのが大変・・・
取扱い不動産会社
スタッフからのコメント
- 暮らしと住まいに価値をPLUSする
- 首都圏に広がるME Group/マイホーム購入に特化した不動産コンサルタント会社。それしかできません。でもそれが『とにかく得意』です。
仲上公賀
エムイーPLUS町田株式会社の会社情報
お電話でのお問合せは「LIFULL HOME'S(ライフルホームズ)を見て」とお伝えください
エムイーPLUS町田株式会社
0037-618-10461
無料
- ※携帯電話はご利用いただけます
- ※光IP電話、及びIP電話をご利用のお客様はTEL:0120-008-442へご連絡ください
- ※携帯電話からお問合せいただいた方には、ショートメッセージ(SMS)またはLINE通知メッセージによるお問合せ内容に関する通知をお届けする場合があり、お客様の電話番号は株式会社LIFULLで一定期間保管されます
- ※株式会社LIFULLの個人情報の取扱い方針に同意のうえ、お電話ください
| 会社名 |
エムイーPLUS町田株式会社 |
|---|---|
| 免許番号 | 東京都知事 (3) 第 98324 号 |
| 所在地 | 東京都町田市旭町1-4-1 |
| 所属団体 |
(公社)全日本不動産協会東京都本部 |
この物件にお問合せする
実際に物件・周辺環境を見て検討したい!
近隣建物や接道の状況など資料で分からない部分も一目瞭然。 まずはWEBで事前予約、スムーズに見学しましょう
ご予約無しに直接ご来場された場合、担当者不在であったり、
他のお客様のご案内の都合上、お待たせしてしまうことがございます。
不動産会社に電話で相談したい!
エムイーPLUS町田株式会社
0037-618-10461
無料
電話でのお問合せは「LIFULL HOME'S(ライフルホームズ)を見て」とお伝えください
- ※携帯電話はご利用いただけます
- ※光IP電話、及びIP電話をご利用のお客様はTEL:0120-008-442へご連絡ください
- ※携帯電話からお問合せいただいた方には、ショートメッセージ(SMS)またはLINE通知メッセージによるお問合せ内容に関する通知をお届けする場合があり、お客様の電話番号は株式会社LIFULLで一定期間保管されます
- ※株式会社LIFULLの個人情報の取扱い方針に同意のうえ、お電話ください
LIFULL HOME'Sは物件鮮度No.1を目指していきます 物件情報に誤りがある場合はコチラからご連絡ください
- 【物件番号】
- 1707039-0008002
- ※完成後1年未満で未入居の物件を「新築」と表示しております。
- ※完成予想図やCG合成画像は、門塀・植栽・庭・外観等、実際とは多少異なる場合があります。
物件を再検索する
神奈川県の人気エリアから新築一戸建てを探す














