新築一戸建て LDKに省エネエアコン完備!太陽光発電蓄電池付き!■町田市下小山田町■
- 価格
- 3280万円~3780万円
- 所在地
- 東京都町田市下小山田町
- 交通
- 小田急多摩線「唐木田」駅 バス乗車8分、山の端バス停下車 徒歩1分小田急小田原線「町田」駅 バス乗車20分、山の端バス停下車 徒歩1分JR横浜線「淵野辺」駅
乗り換え案内
- 土地面積
- 128.64m2~134.15m2
- 建物面積
- 98.12m2~103.51m2
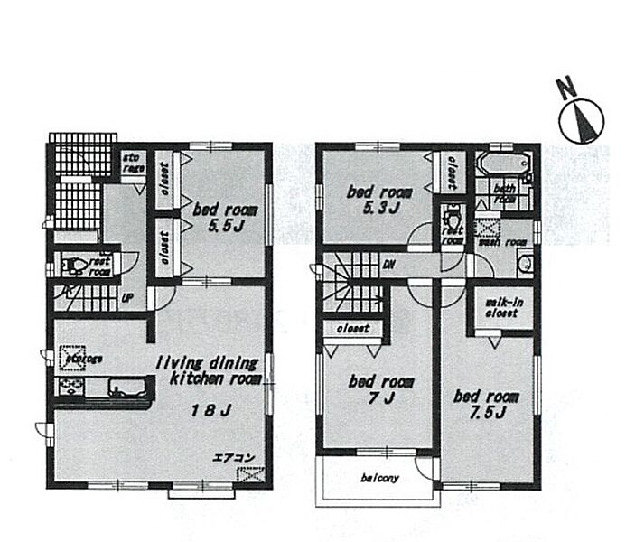
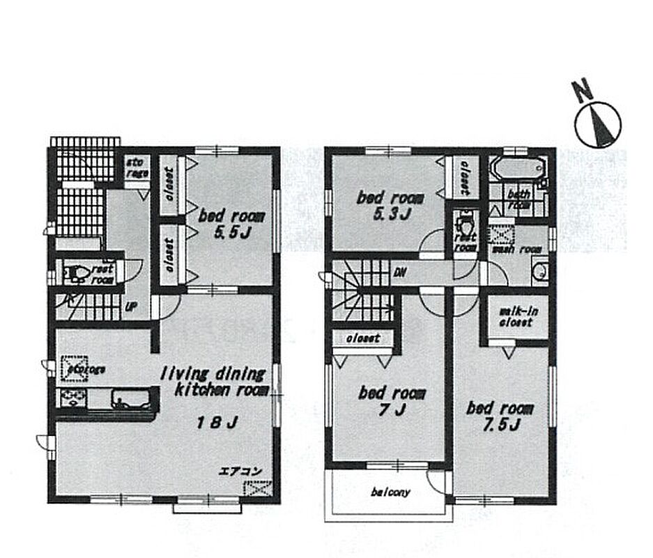
- 間取り
- 4LDK
■物件の当日予約・当日見学できます◎どうぞお気軽にご連絡ください!
■エムイーPLUS町田はご相談だけでもOKです♪気になることは何でもお尋ねください!
■2024年グループ成約2416件の実績
0037-618-76685
無料
魅力1 ■住宅ローンに強いエムイーPLUS町田!
エムイー PLUS町田ではこれまで多く取引を重ねてきました。その為金融機関からの信頼が厚く、購入を検討されているお客様のローン審査をより低い金利で、より通し易くすることが可能です。当社には経験と知識豊富なアドバイザーが多数在籍しております。お客様一人一人に合わせたご提案をさせいただきます!
魅力2 ■お子様連れのご家族様も安心の接客スペース
キッズ用の椅子・ベビーベッド・授乳室完備しております。おもちゃがいっぱいのキッズルームも完備!
家族みんなが住まう家選びですから、どうぞご家族みなさまで、お越しください♪
魅力3 ■エムイーPLUS町田の魅力♪
物件の当日予約・当日見学ができます!
ご自宅や駅、ご指定いただいた場所に無料でお迎えに参りますのでお気軽にお問い合わせください♪
0037-618-76685
無料
間取り図
-
11号棟 間取り 4LDK 価格 3430万円 建物面積 102.46m2 土地面積 128.64m2 -
12号棟 間取り 4LDK 価格 3480万円 建物面積 101.02m2 土地面積 131.69m2 -
1号棟 間取り 4LDK 価格 3780万円 建物面積 103.51m2 土地面積 130.65m2 -
3号棟 間取り 4LDK 価格 3680万円 建物面積 103.28m2 土地面積 129.14m2 -
6号棟 間取り 4LDK 価格 3280万円 建物面積 98.12m2 土地面積 134.15m2 -
7号棟 間取り 4LDK 価格 3580万円 建物面積 103.09m2 土地面積 129.29m2 -
8号棟 間取り 4LDK 価格 3480万円 建物面積 103.08m2 土地面積 129.24m2 -
10号棟 間取り 4LDK 価格 3480万円 建物面積 102.16m2 土地面積 129.58m2
0037-618-76685
無料
内観・室内
間取り・内観のこだわりポイント
- LDK15帖以上
- 4LDK以上
- 南面バルコニー
- 全室2面採光
- 全室フローリング
0037-618-76685
無料
設備・仕様
設備・仕様のこだわりポイント
- キッチン
-
- カウンターキッチン
- 食器洗い乾燥機
- 浄水器・活水器
- 収納
-
- 床下収納
- ウォークインクローゼット
- シューズクローク
- 全居室収納
- その他設備
-
- オール電化
- シャワー付洗面化粧台
- 温水洗浄便座
- 浴室乾燥機
- トイレ2ヶ所以上
- 複層ガラス採用(二重サッシ・防犯サッシ等)
- 省エネ給湯器
- TVモニタ付インターホン
- EV充電設備
0037-618-76685
無料
外観・分譲地
外観・分譲地のこだわりポイント
- 駐車場あり
- 低層住宅地
- 総戸数・総区画数が10以上〜30未満
- 角地
- 南道路
0037-618-76685
無料
周辺環境・地図
周辺環境のこだわりポイント
- 複数路線
0037-618-76685
無料
物件概要
| 所在地 | 東京都町田市下小山田町 | ||
|---|---|---|---|
| 交通 |
小田急多摩線「唐木田」駅 バス乗車8分、山の端バス停下車 徒歩1分 小田急小田原線「町田」駅 バス乗車20分、山の端バス停下車 徒歩1分 JR横浜線「淵野辺」駅 |
||
| 販売価格 | 3280万円~3780万円 | 最多価格帯 | 3600万円台1戸 3400万円台4戸 3700万円台1戸 3500万円台1戸 3200万円台1戸 他 |
| 建物面積 | 98.12m2~103.51m2 | 土地面積 | 128.64m2~134.15m2 |
| 間取り | 4LDK | 建物構造 | 木造 2階建 |
| 販売スケジュール | 先着順受付中/販売中 | ||
| 販売戸数 / 総戸数 | 1戸 / 13戸 | ||
| 完成予定日 | 2026年01月、2025年10月 | 引き渡し可能年月 | 2026年01月下旬、即入居可 |
| 駐車場 | 1台 | 道路の幅員 | 8号棟:北5m /6号棟:北8.4m 南5m /7号棟:北5m 西6.2m /1号棟:北8.4m 西6.2m 南5m /3号棟:北8.4m 南5m /11号棟:北5m …他 |
| 用途地域 | 第一種低層住居専用地域 | 都市計画 | - |
| 地目 | 宅地 | 国土法 | 届出不要 |
| 土地の権利 | 所有権 | 借地権の種類・期間 | - |
| 主たる設備の概要 | 公営水道/下水 | 建築確認番号 | 第R06SHC124445号 |
| 施工会社 | - | 機構融資 | - |
| 売主 | - | 取引態様 | エムイーPLUS町田株式会社/仲介 |
| イベント情報 |
|
||
| 備考 |
首都圏14店舗にて展開する ME Group ♪ 2024年グループ成約2416件の実績のME Groupで 東京・神奈川の成約が多いエムイーPLUS町田です♪ 成約数も多く「取り扱い物件数」「住宅ローン金利優遇」に自信があります♪ お客様に最良なご提案をさせていただきます。 ◆住宅ローンアドバイザーによる相談会実施中◆ カードローンなどの借入のある方、永住権のない方、転職間もない方、 自己資金を抑えたい方、他社様で住宅ローンを断れてしまった方などなど まずはお気軽にご連絡くださいませ♪ ◆無料送迎お任せください◆ ご自宅や駅、ご指定いただいた場所に無料でお迎えに参ります。 小さなお子様も乗れるようにチャイルドシートもご準備致します。 問い合わせ時に「その他のご要望」からお知らせください。 ◆ご自宅を売却して住み替えのお客様へ◆ 弊社はお客様が安心できるように簡易インスペクション(無料)を 行って正確な査定価格をお出し致します。 AIによる査定書やスムーズに売却できるよう手順をパンフレットでご説明します。 売却も購入もどちらも一貫してできるエムイーPLUS町田にご依頼ください。 ◆ぜひお子様と一緒にご来店ください♪ 無料ガチャガチャコインプレゼント おもちゃいっぱい!大画面でyoutubeが見れるキッズルーム完備 キッズ用の椅子・ベビーベッド・授乳室完備! 無料のお子様ドリンク・無料おむつ完備! ご案内時は、チャイルドシートも完備! まだまだあります、エムイーPLUS町田のプラスのおもてなし! 物件の当日予約・当日見学できます! 首都圏に広がるME Group/マイホーム購入に特化した不動産コンサルタント会社。 それしかできません。でもそれが『とにかく得意』です。 『接道』三方 北8.4m公道 西6.2m公道南5m公道 『法令上の制限』その他制限事項:第一種高度地区 設備:公営水道 下水 設計住宅性能評価付 省エネルギー対策 耐震構造 外壁サイディング 建設住宅性能評価書(新築時) 瑕疵保険(国交省指定)保証付 フラット35・S適合証明書 BELS/省エネ基準適合認定書あり EV車充電設備 駐車場1台 緑豊かな住宅地 角地 開発分譲地内 南側道路面す システムキッチン カウンタキッチン 対面キッチン 食器洗い機付き 浄水器 浴室乾燥機 ウォシュレット トイレ2ヶ所 浴室に窓 室内洗濯物干し バルコニー 南面バルコニー 2階建 LDK15畳以上 LDK18畳以上 照明器具付き 各室照明器具付き 太陽光発電システム 省エネ給湯器 全室南向き 全室フローリング オール電化 床下収納 下駄箱 全居室収納 シャンプドレッサー付き フラット35Sに対応 モニタ付きインターフォン 複層ガラス エアコン 24時間換気… 24時間換気… 24時間換気… 24時間換気システム |
||
| 情報更新日 | 2025/11/24 | 次回更新予定日 | 2025/12/08 |
| 取引条件有効期限 | 2025/11/27 | ||
住宅性能・販売概要・権利のこだわりポイント
- 所有権
- 瑕疵担保付き
- 設計住宅性能評価書
- フラット35・S適合証明書
- 建設住宅性能評価書(新築時)
- 即入居可
0037-618-76685
無料
現地・イベント情報
◇◆◇ご希望の場所まで「無料送迎」・「ナイト見学会」実施中!◇◆◇
| 開催日時 |
2025年09月01日〜2025年11月30日
|
|---|---|
| 開催場所 | 東京都町田市下小山田町 |
| 交通 |
小田急多摩線「唐木田」駅 バス乗車8分、山の端バス停下車 徒歩1分 |
□見学はしたいけど、忙しくて・・・見に行く時間がない・・・ □気になる物件の夜の環境も見てみたい! □車がない、電車での移動は大変・・・ □運転に自信がないので、自分で運転していくのは少し不安・・・ □小さな子供がいて、見にいくのが大変・・・
取扱い不動産会社
スタッフからのコメント
- 暮らしと住まいに価値をPLUSする
- 首都圏に広がるME Group/マイホーム購入に特化した不動産コンサルタント会社。それしかできません。でもそれが『とにかく得意』です。
甲斐健太
エムイーPLUS町田株式会社の会社情報
お電話でのお問合せは「LIFULL HOME'S(ライフルホームズ)を見て」とお伝えください
エムイーPLUS町田株式会社
0037-618-76685
無料
- ※携帯電話はご利用いただけます
- ※光IP電話、及びIP電話をご利用のお客様はTEL:0120-008-442へご連絡ください
- ※携帯電話からお問合せいただいた方には、ショートメッセージ(SMS)またはLINE通知メッセージによるお問合せ内容に関する通知をお届けする場合があり、お客様の電話番号は株式会社LIFULLで一定期間保管されます
- ※株式会社LIFULLの個人情報の取扱い方針に同意のうえ、お電話ください
| 会社名 |
エムイーPLUS町田株式会社 |
|---|---|
| 免許番号 | 東京都知事 (3) 第 98324 号 |
| 所在地 | 東京都町田市旭町1-4-1 |
| 所属団体 |
(公社)全日本不動産協会東京都本部 |
この物件にお問合せする
実際に物件・周辺環境を見て検討したい!
近隣建物や接道の状況など資料で分からない部分も一目瞭然。 まずはWEBで事前予約、スムーズに見学しましょう
ご予約無しに直接ご来場された場合、担当者不在であったり、
他のお客様のご案内の都合上、お待たせしてしまうことがございます。
不動産会社に電話で相談したい!
エムイーPLUS町田株式会社
0037-618-76685
無料
電話でのお問合せは「LIFULL HOME'S(ライフルホームズ)を見て」とお伝えください
- ※携帯電話はご利用いただけます
- ※光IP電話、及びIP電話をご利用のお客様はTEL:0120-008-442へご連絡ください
- ※携帯電話からお問合せいただいた方には、ショートメッセージ(SMS)またはLINE通知メッセージによるお問合せ内容に関する通知をお届けする場合があり、お客様の電話番号は株式会社LIFULLで一定期間保管されます
- ※株式会社LIFULLの個人情報の取扱い方針に同意のうえ、お電話ください
LIFULL HOME'Sは物件鮮度No.1を目指していきます 物件情報に誤りがある場合はコチラからご連絡ください
- 【物件番号】
- 1707039-0007261
- ※完成後1年未満で未入居の物件を「新築」と表示しております。
- ※完成予想図やCG合成画像は、門塀・植栽・庭・外観等、実際とは多少異なる場合があります。
物件を再検索する
東京都の人気エリアから新築一戸建てを探す














