新築一戸建て 【AVANTIA アバンティア】春日井市東野町7期
この物件は未完成のため、掲載写真(外観、内観、設備等)には、施工例が含まれている場合があります。物件詳細については、掲載の不動産会社宛にお問合せください。
■長期優良住宅■南西角地■3SLDK・4LDK■書斎・納戸・スタディカウンター■並列駐車2台可能■東野小学校まで徒歩6分■JR「神領」駅まで自転車11分■徒歩10分圏内に買物施設充実
【設備・保証】■エコジョーズ■食洗機■浴室暖房乾燥機■照明■EVコンセント■地盤20年間保証■建物30年延長保証■住宅設備機器あんしんの10年保証■24時間365日緊急対応サービス
0037-618-69592
無料
魅力1 南西角地に接する3棟/3SLDK・4LDK
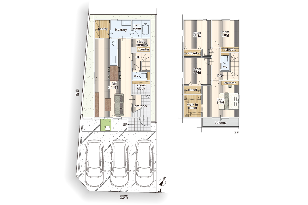
□1号地
・玄関にクローゼット
・18.2帖LDK+CL+PT
・ゆとりある洗面所
・3帖の書斎
□2号地
・シューズクローク
・18.3帖LDK+CL+カウンター
・室内干し可能な広々洗面所
・納戸あり
□3号地
・シューズクローク
・17帖LDK+スタディスペース
・広々パントリー
・4.5帖~7.7帖洋室が4部屋
●標準設備●
照明/エコジョーズ/IoT
電気式浴室暖房乾燥機/宅配ボックス
EVコンセント/スマートキー/食洗器 他
魅力2 【周辺環境】交通・教育施設・公園
JR中央本線「神領」駅 自転車11分(2580~2600m)
かすがいシティバス「落合公園」停 徒歩3~4分(240~260m)
名鉄バス「東野町」停 徒歩7分(520~540m)
東野小学校 徒歩6分(450~470m)
松原中学校 徒歩18分(1410~1430m)
ひがしの幼稚園 徒歩1分(60~80m)
松原保育園 徒歩10分(750~770m)
さくらがおかすくすく保育園 徒歩13分(980~1000m)
中島公園 徒歩2分(100~120m)
北島公園 徒歩5分(370~390m)
魅力3 【周辺環境】買物施設・金融機関・病院
ローソン(東野町五丁目店) 徒歩3分(180~200m)
ツルハドラッグ(東野店) 徒歩5分(370~390m)
DCMカーマ(春日井店) 徒歩7分(480~500m)
業務スーパー(春日井店) 徒歩8分(570~590m)
トップワン(春日井店) 徒歩9分(660~680m)
春日井東野郵便局 徒歩7分(540~560m)
大垣共立銀行(東野支店) 徒歩7分(540~560m)
もちづき内科クリニック 徒歩5分(350~370m)
岩田歯科医院 徒歩5分(360~380m)
0037-618-69592
無料
間取り図
0037-618-69592
無料
内観・室内
間取り・内観のこだわりポイント
- LDK15帖以上
- 4LDK以上
- 南面バルコニー
- 全室2面採光
- 全室フローリング
0037-618-69592
無料
設備・仕様
設備・仕様のこだわりポイント
- キッチン
-
- カウンターキッチン
- 食器洗い乾燥機
- 浄水器・活水器
- ガスコンロ
- 収納
-
- ウォークインクローゼット
- シューズクローク
- パントリー
- 全居室収納
- その他設備
-
- 都市ガス
- マイホーム発電システム
- シャワー付洗面化粧台
- 温水洗浄便座
- 浴室乾燥機
- 浴室暖房
- トイレ2ヶ所以上
- 複層ガラス採用(二重サッシ・防犯サッシ等)
- スマートキー
- 省エネ給湯器
- 電動シャッター
- TVモニタ付インターホン
- 宅配ボックス
- EV充電設備
- マイホーム発電システム
- 太陽光発電
省エネ性能
- エネルギー消費性能:★★★★★★(削減率50%達成)
- 断熱性能:5段階/7段階
- 目安光熱費:約13.7〜14.2万円/年 ※「省エネ性能ラベル」は特定の住戸の性能を示し、全ての住戸の性能を示していない場合があります。
0037-618-69592
無料
外観・分譲地
外観・分譲地のこだわりポイント
- 駐車場あり
- 地盤調査済
- 角地
- 南道路
- 前面道路6m以上
0037-618-69592
無料
周辺環境・地図
周辺情報
※半径4kmを超えると、周辺情報のアイコンは表示されません。
- ※不動産会社が入力した情報を基に物件の位置を表示しています。
- ※詳しくは不動産会社までお問合せください。
- ※地図上に表示される各種アイコンなどの情報は、おおよその所在地を表すものであり、物件・施設などの地点を保証するものではありません。
- ※地図の表示領域が広域になると周辺のお店・施設は表示できなくなります。
- ※地図、航空写真情報および地形ならびに周辺のお店・施設は、必ずしも現況を表すものではありません。
- ※物件から周辺のお店・施設までの距離は、利用が想定される道路を通行した場合の距離です。なお、必ずしも最短距離を保証するものではありません。
-
【学校】
松原中学校 (1410m~1430m 徒歩18分)
「命:学校は命を尊び、心身を鍛えるところ」、「心:学校は豊かな...
-
【その他】
ひがしの幼稚園 (60m~80m 徒歩1分)
保育時間:8時半~14時(15時~18時は預かり保育)
-
【その他】
松原保育園 (750m~770m 徒歩10分)
定員:247名、対象年齢:生後6か月から、開所時間:平日7時3...
-
【買い物】
トップワン(春日井店) (660m~680m 徒歩9分)
営業時間09:00~21:00
-
【金融機関】
春日井東野郵便局 (540m~560 徒歩7分)
郵便窓口09:00~17:00、駐車場4台
-
【病院・役所】
かめざわクリニック (910m~930m 徒歩12分)
周辺環境のこだわりポイント
- スーパー 800m以内
- コンビニ 400m以内
- 小学校 800m以内
- 公園 400m以内
- 保育園・幼稚園 400m以内
0037-618-69592
無料
物件概要
| 所在地 | 愛知県春日井市東野町6丁目13番7、13番23、13番24 | ||
|---|---|---|---|
| 交通 |
JR中央本線「神領」駅 徒歩33分 自転車11分 かすがいシティバス「落会公園」停 徒歩3分~4分 |
||
| 販売価格 | 3,990~4,390万円 | 最多価格帯 | - |
| 建物面積 | 98.14m2~104.36m2 | 土地面積 | 116.32m2~125.84m2 |
| 間取り | 3SLDK・4LDK | 建物構造 | 木造2階建 |
| 販売スケジュール | 先着順受付中/販売中 | ||
| 販売戸数 / 総戸数 | 3戸 / 3戸 | ||
| 完成予定日 | 2026年10月上旬予定 | 引き渡し可能年月 | 相談 |
| 駐車場 | 2台 ~ 3台 | 道路の幅員 | 南側幅員約4.0m、西側幅員約6.0mの公道に接する |
| 用途地域 | 第一種中高層住居専用地域 | 都市計画 | 市街化区域 |
| 地目 | 宅地 | 国土法 | - |
| 土地の権利 | 所有権 | 借地権の種類・期間 | - |
| 主たる設備の概要 | 公営水道、都市ガス、中部電力、公共下水 | 建築確認番号 | 確認サービス第KS126-0420-52596号 |
| 施工会社 | 株式会社AVANTIA | 機構融資 | - |
| 売主 | 株式会社AVANTIA | 取引態様 | 株式会社アバンティア不動産/仲介 |
| イベント情報 |
|
||
| 備考 |
【その他制限】 特定都市河川浸水被害対策法 景観条例 都市再生特別措置法 宅地造成及び特定盛土等規制法 |
||
| 情報更新日 | 2026/05/16 | 次回更新予定日 | 2026/05/30 |
| 取引条件有効期限 | 2026/05/31 | ||
住宅性能・販売概要・権利のこだわりポイント
- 所有権
- 瑕疵担保付き
- 耐震・制震・免震構造
- 長期優良住宅
- 設計住宅性能評価書
- 耐震・制震・免震構造
- 耐震等級3
0037-618-69592
無料
現地・イベント情報
【アバンティアクラブ会員募集中!】ご入会のお客様に、1000円分のギフトカードプレゼント!
参加特典
ご入会のお客様に、1000円分のギフトカードプレゼント!
ご入会のお客様に、1000円分のギフトカードプレゼント! 他のサービスとの併用はできません。 ご家族様1組につき、新規加入1回限りの特典となります。既にご加入頂いている方は対象外となります。 ギフトカードの受け渡しは直接手渡しとさせていただきます、郵送での受け渡しはお受けできません。
| 開催日時 |
2025年01月01日〜2026年12月31日
|
|---|---|
| 開催場所 | 愛知県名古屋市中川区中島新町三丁目201番地の1 |
| 交通 |
名古屋臨海高速あおなみ線「中島」駅 徒歩9分 |
【アバンティアクラブ会員募集中!】アバンティアクラブとは、物件の詳しい情報や、今後の最新情報・住まいに役立つイベント情報提供をいち早くお届けする会員組織です。
取扱い不動産会社
スタッフからのコメント
- いつでも現地案内致します!お気軽にお問合せくださいませ!
- 南西角地を含む3SLDK・4LDKの全3棟!
個々に特徴のある機能的な住宅を分譲中です。
お気軽にお問い合わせください!
本田 卓也
株式会社アバンティア不動産 中川営業所の会社情報
お電話でのお問合せは「LIFULL HOME'S(ライフルホームズ)を見て」とお伝えください
アバンティア不動産
0037-618-69592
無料
- ※携帯電話はご利用いただけます
- ※光IP電話、及びIP電話をご利用のお客様はTEL:052-361-0034へご連絡ください
- ※携帯電話からお問合せいただいた方には、ショートメッセージ(SMS)またはLINE通知メッセージによるお問合せ内容に関する通知をお届けする場合があり、お客様の電話番号は株式会社LIFULLで一定期間保管されます
- ※株式会社LIFULLの個人情報の取扱い方針に同意のうえ、お電話ください
| 会社名 |
株式会社アバンティア不動産 中川営業所 |
|---|---|
| 免許番号 | 国土交通大臣 (6) 第 5803 号 |
| 所在地 | 愛知県名古屋市中川区中島新町三丁目201番地の1 |
| 所属団体 |
東海不動産公正取引協議会 |
この物件にお問合せする
実際に物件・周辺環境を見て検討したい!
近隣建物や接道の状況など資料で分からない部分も一目瞭然。 まずはWEBで事前予約、スムーズに見学しましょう
ご予約無しに直接ご来場された場合、担当者不在であったり、
他のお客様のご案内の都合上、お待たせしてしまうことがございます。
不動産会社に電話で相談したい!
アバンティア不動産
0037-618-69592
無料
電話でのお問合せは「LIFULL HOME'S(ライフルホームズ)を見て」とお伝えください
- ※携帯電話はご利用いただけます
- ※光IP電話、及びIP電話をご利用のお客様はTEL:052-361-0034へご連絡ください
- ※携帯電話からお問合せいただいた方には、ショートメッセージ(SMS)またはLINE通知メッセージによるお問合せ内容に関する通知をお届けする場合があり、お客様の電話番号は株式会社LIFULLで一定期間保管されます
- ※株式会社LIFULLの個人情報の取扱い方針に同意のうえ、お電話ください
LIFULL HOME'Sは物件鮮度No.1を目指していきます 物件情報に誤りがある場合はコチラからご連絡ください
- 【物件番号】
- 1706926-0000367
- ※完成後1年未満で未入居の物件を「新築」と表示しております。
- ※完成予想図やCG合成画像は、門塀・植栽・庭・外観等、実際とは多少異なる場合があります。
物件を再検索する
愛知県の人気エリアから新築一戸建てを探す








