新築一戸建て 【AVANTIA アバンティア】中川区丹後町3期
この物件は未完成のため、掲載写真(外観、内観、設備等)には、施工例が含まれている場合があります。物件詳細については、掲載の不動産会社宛にお問合せください。
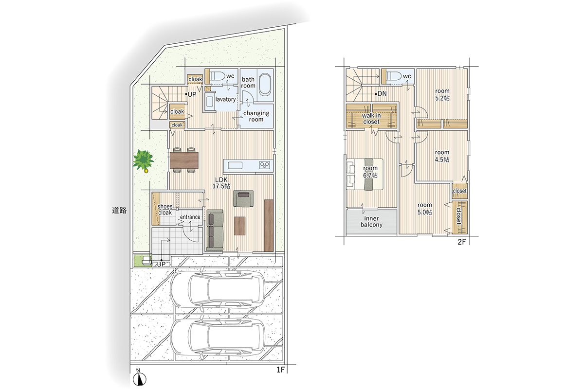
■長期優良住宅■4LDK・4SLDK■各所に収納あり■LDK17帖超え■名港線「日比野」駅まで徒歩15~16分■小中学校徒歩10圏内
■八幡小学校 徒歩7分(500~530m)■八幡中学校 徒歩4分(290~320m)■中野保育園 徒歩3分(240~270m)■ファミリーマート 徒歩5分(350~380m)■マックスバリュ 徒歩9分
【設備・保証】■エコジョーズ■食洗機■浴室暖房乾燥機■照明■EVコンセント■地盤20年間保証■建物30年延長保証■住宅設備機器あんしんの10年保証■24時間365日緊急対応サービス
0037-618-62083
無料
魅力1 3区画分譲中◇それぞれが特徴をもった家
□1号地
・ウォークスルー型のSCL
・17.5帖LDK+クローゼット付き
・洗面所と脱衣室が別となっています
・南向きインナーバルコニー
□2号地
・幅広シューズクローク
・玄関入ってすぐ階段がございます
・17.5LDKに隣接する3帖のタタミコーナー
・可動棚付きカウンターキッチン
□3号地
・広々土間収納
・18.2帖LDK+クローゼット+カウンタースペース
・キッチン横パントリー
・キッチンから洗面所への動線がスムーズ
●標準設備●
照明/エコジョーズ/IoT
電気式浴室暖房乾燥機/宅配ボックス
EVコンセント/スマートキー/食洗器 他
魅力2 【周辺環境】交通・教育施設・公園
地下鉄名港線「日比野」駅 徒歩15~16分(1200~1230m)
名古屋市営バス「牛立町」停 徒歩3分(200~230m)
八幡小学校 徒歩7分(500~530m)
八幡中学校 徒歩4分(290~320m)
中野保育園 徒歩3~4分(240~270m)
中川保育園 徒歩10分(750~780m)
清涼保育園 徒歩11分(850~880m)
牛立公園 徒歩2~3分(160~190m)
荒越北公園 徒歩4分(270~300m)
荒越公園 徒歩6分(450~480m)
魅力3 【周辺環境】買物施設・金融機関・病院
ファミリーマート(神郷町一丁目店) 徒歩5分(350~380m)
マックスバリュ(篠原橋東店) 徒歩9分(650~680m)
サンドラッグ(篠原橋東店) 徒歩9分(650~680m)
スギ薬局(野立橋店) 徒歩10分(700~730m)
ザ・ビッグエクスプレス(五女子店) 徒歩15分(1100~1130m)
名古屋中野本町郵便局 徒歩8分(550~580m)
松井医院 徒歩7分(500~530m)
村瀬医院 徒歩10分(800~830m)
名古屋銀行(八熊支店) 徒歩15~16分(1200~1230m)
0037-618-62083
無料
間取り図
0037-618-62083
無料
内観・室内
間取り・内観のこだわりポイント
- LDK15帖以上
- 4LDK以上
- 南面バルコニー
- 全室2面採光
- 全室フローリング
0037-618-62083
無料
設備・仕様
設備・仕様のこだわりポイント
- キッチン
-
- カウンターキッチン
- 食器洗い乾燥機
- 浄水器・活水器
- ガスコンロ
- 収納
-
- ウォークインクローゼット
- シューズクローク
- パントリー
- 全居室収納
- その他設備
-
- 都市ガス
- マイホーム発電システム
- シャワー付洗面化粧台
- 温水洗浄便座
- 浴室乾燥機
- 浴室暖房
- トイレ2ヶ所以上
- 複層ガラス採用(二重サッシ・防犯サッシ等)
- スマートキー
- 省エネ給湯器
- 電動シャッター
- TVモニタ付インターホン
- 宅配ボックス
- EV充電設備
- マイホーム発電システム
- 太陽光発電
0037-618-62083
無料
外観・分譲地
外観・分譲地のこだわりポイント
- 駐車場あり
- 地盤調査済
- 角地
0037-618-62083
無料
周辺環境・地図
周辺情報
※半径4kmを超えると、周辺情報のアイコンは表示されません。
- ※不動産会社が入力した情報を基に物件の位置を表示しています。
- ※詳しくは不動産会社までお問合せください。
- ※地図上に表示される各種アイコンなどの情報は、おおよその所在地を表すものであり、物件・施設などの地点を保証するものではありません。
- ※地図の表示領域が広域になると周辺のお店・施設は表示できなくなります。
- ※地図、航空写真情報および地形ならびに周辺のお店・施設は、必ずしも現況を表すものではありません。
- ※物件から周辺のお店・施設までの距離は、利用が想定される道路を通行した場合の距離です。なお、必ずしも最短距離を保証するものではありません。
-
【学校】
八幡小学校 (500m~530m 徒歩7分)
教育目標「高め合いながら、よりよい生き方を実践できる子」
-
【学校】
八幡中学校 (290m~320m 徒歩4分)
校訓「礼儀正しく、協力し合い、責任を果たす」
-
【その他】
中野保育園 (240m~270m 徒歩3分~4分)
入園対象:産休明けより就学前、定員140名、保育短時間:08:...
-
【買い物】
マックスバリュ(篠原橋東店) (650m~680m 徒歩9分)
24時間営業、駐車場240台
-
【金融機関】
名古屋中野本町郵便局 (550m~580m 徒歩7分~8分)
郵便窓口09:00~17:00、駐車場2台
-
【病院・役所】
村瀬医院 (800m~830m 徒歩10分~11分)
診療科目:内科、小児科 駐車場12台
周辺環境のこだわりポイント
- スーパー 800m以内
- コンビニ 400m以内
- 小学校 800m以内
- 公園 400m以内
- 中学校 800m以内
- 保育園・幼稚園 400m以内
- 複数路線
0037-618-62083
無料
物件概要
| 所在地 | 愛知県名古屋市中川区丹後町1丁目22番より分筆 | ||
|---|---|---|---|
| 交通 |
名古屋市営名港線「日比野」駅 徒歩15分~16分 JR東海道本線「尾頭橋」駅 徒歩23分 市営バス「牛立町」停 徒歩3分 |
||
| 販売価格 | 4,690万円~4,990万円 | 最多価格帯 | - |
| 建物面積 | 98.14m2~107.66m2 | 土地面積 | 118.20m2~136.12m2 |
| 間取り | 4LDK・4SLDK | 建物構造 | 木造2階建 |
| 販売スケジュール | 先着順受付中/販売中 | ||
| 販売戸数 / 総戸数 | 3戸 / 3戸 | ||
| 完成予定日 | 2026年8月下旬予定 | 引き渡し可能年月 | 相談 |
| 駐車場 | 2台 ~ 3台 | 道路の幅員 | 北側幅員約5.4m、西側幅員約5.4mの公道に接する |
| 用途地域 | 第一種住居地域 | 都市計画 | 市街化区域 |
| 地目 | 宅地 | 国土法 | - |
| 土地の権利 | 所有権 | 借地権の種類・期間 | - |
| 主たる設備の概要 | 公営水道、都市ガス、中部電力、公共下水 | 建築確認番号 | 確認サービス第KS126-0420-52106号他 |
| 施工会社 | 株式会社AVANTIA | 機構融資 | - |
| 売主 | 株式会社AVANTIA | 取引態様 | 株式会社アバンティア不動産/仲介 |
| イベント情報 |
|
||
| 備考 |
【その他制限】 準防火地域、31m高度地区、都市再生特別措置法 宅造法、都市機能誘導区域外、景観法 居住誘導区域内、農地法、 緑化地域、津波災害警戒区域内 【アバンティアクラブ会員募集中!】 ご入会のお客様に、1,000円分のギフトカードプレゼント! 詳しくは弊社ホームページをご確認ください 《注意事項》 他のサービスとの併用はできません。 ご家族様1組につき、新規加入1回限りの特典となります。既にご加入頂いている方は対象外となります。 ギフトカードの受け渡しは直接手渡しとさせていただきます、郵送での受け渡しはお受けできません。 |
||
| 情報更新日 | 2026/05/16 | 次回更新予定日 | 2026/05/30 |
| 取引条件有効期限 | 2026/05/31 | ||
住宅性能・販売概要・権利のこだわりポイント
- 所有権
- 瑕疵担保付き
- 耐震・制震・免震構造
- 長期優良住宅
- 設計住宅性能評価書
- 耐震・制震・免震構造
- 耐震等級3
0037-618-62083
無料
現地・イベント情報
【アバンティアクラブ会員募集中!】ご入会のお客様に、1000円分のギフトカードプレゼント!
参加特典
ご入会のお客様に、1000円分のギフトカードプレゼント!
ご入会のお客様に、1000円分のギフトカードプレゼント! 他のサービスとの併用はできません。 ご家族様1組につき、新規加入1回限りの特典となります。既にご加入頂いている方は対象外となります。 ギフトカードの受け渡しは直接手渡しとさせていただきます、郵送での受け渡しはお受けできません。
| 開催日時 |
2025年01月01日〜2026年12月31日
|
|---|---|
| 開催場所 | 愛知県名古屋市中川区中島新町三丁目201番地の1 |
| 交通 |
名古屋臨海高速あおなみ線「中島」駅 徒歩9分 |
【アバンティアクラブ会員募集中!】アバンティアクラブとは、物件の詳しい情報や、今後の最新情報・住まいに役立つイベント情報提供をいち早くお届けする会員組織です。
取扱い不動産会社
スタッフからのコメント
- お気軽にお問い合わせください!
- 全3区画。小中学校徒歩10分圏内。4LDK・4SLDKそれぞれ異なる間取りとなっております!物件についてはもちろん、資金についてもお気軽にお問い合わせください!
瀧 敬太
株式会社アバンティア不動産 中川営業所の会社情報
お電話でのお問合せは「LIFULL HOME'S(ライフルホームズ)を見て」とお伝えください
アバンティア不動産 中川営業所
0037-618-62083
無料
- ※携帯電話はご利用いただけます
- ※光IP電話、及びIP電話をご利用のお客様はTEL:052-361-0034へご連絡ください
- ※携帯電話からお問合せいただいた方には、ショートメッセージ(SMS)またはLINE通知メッセージによるお問合せ内容に関する通知をお届けする場合があり、お客様の電話番号は株式会社LIFULLで一定期間保管されます
- ※株式会社LIFULLの個人情報の取扱い方針に同意のうえ、お電話ください
| 会社名 |
株式会社アバンティア不動産 中川営業所 |
|---|---|
| 免許番号 | 国土交通大臣 (6) 第 5803 号 |
| 所在地 | 愛知県名古屋市中川区中島新町三丁目201番地の1 |
| 所属団体 |
東海不動産公正取引協議会 |
この物件にお問合せする
実際に物件・周辺環境を見て検討したい!
近隣建物や接道の状況など資料で分からない部分も一目瞭然。 まずはWEBで事前予約、スムーズに見学しましょう
ご予約無しに直接ご来場された場合、担当者不在であったり、
他のお客様のご案内の都合上、お待たせしてしまうことがございます。
不動産会社に電話で相談したい!
アバンティア不動産 中川営業所
0037-618-62083
無料
電話でのお問合せは「LIFULL HOME'S(ライフルホームズ)を見て」とお伝えください
- ※携帯電話はご利用いただけます
- ※光IP電話、及びIP電話をご利用のお客様はTEL:052-361-0034へご連絡ください
- ※携帯電話からお問合せいただいた方には、ショートメッセージ(SMS)またはLINE通知メッセージによるお問合せ内容に関する通知をお届けする場合があり、お客様の電話番号は株式会社LIFULLで一定期間保管されます
- ※株式会社LIFULLの個人情報の取扱い方針に同意のうえ、お電話ください
LIFULL HOME'Sは物件鮮度No.1を目指していきます 物件情報に誤りがある場合はコチラからご連絡ください
- 【物件番号】
- 1706926-0000365
- ※完成後1年未満で未入居の物件を「新築」と表示しております。
- ※完成予想図やCG合成画像は、門塀・植栽・庭・外観等、実際とは多少異なる場合があります。
物件を再検索する
名古屋市の人気エリアから新築一戸建てを探す








