新築一戸建て 【AVANTIA アバンティア】春日井市高山町7期
この物件は未完成のため、掲載写真(外観、内観、設備等)には、施工例が含まれている場合があります。物件詳細については、掲載の不動産会社宛にお問合せください。
■全6棟■長期優良住宅■3SLDK・4LDK■並列駐車2台可能■カウンタースペース・フリースペース有り■SCLやFCLなど随所に収納スペースを設けました
■名鉄バス「高山口」停まで徒歩4分(260~290m)
【設備・保証】■エコジョーズ■食洗機■浴室暖房乾燥機■照明■EVコンセント■地盤20年間保証■建物30年延長保証■住宅設備機器あんしんの10年保証■24時間365日緊急対応サービス
0037-618-92984
無料
魅力1 北側に接する全6棟/3SLDK/4LDK
朝宮公園徒歩3分 ランニングなども楽しめる
大きな公園が近いところが魅力です
一年を通して快適に暮らせる性能と、家族の暮らしに長く寄り添うシンプルな住まい。
\ZEH水準対応の省エネ住宅/
これからの基準に対応した住まいです。
断熱性・省エネ性に配慮した設計に加え、太陽光発電システムを標準搭載。
光熱費を抑えながら、快適な暮らしを叶えます。
【住まいのポイント】
・ZEH水準対応
・太陽光発電システム搭載
・住宅性能表示制度 最大5項目で最高等級
・建築物省エネルギー性能表示制度「BELS」取得
性能・デザイン・価格のバランスを大切にした、“ちょうどいい”をカタチにした住まいです。
魅力2 【周辺環境】交通・教育施設・公園
名鉄バス「高山口」停 徒歩4分(260~290m)
名鉄小牧線「春日井」駅 自転車8分~9分(2000~2030m)
春日井小学校 徒歩20分(1540~1570m)
西部中学校 徒歩16分~17分(1280~1310m)
天使みつばち保育園 徒歩9分(680~710m)
三ツ星幼稚園 徒歩13分(1000~1030m)
前並保育園 徒歩14分(1050~1080m)
朝宮公園 徒歩3分(180~210m)
高山公園 徒歩3分(200~230m)
魅力3 【周辺環境】買物施設・金融機関・病院
セブンイレブン(春日井高山町店) 徒歩5分(370~400m)
ゲンキー(高山店) 徒歩5分~6分(400~430m)
V・drug(春日井朝宮店) 徒歩8分(610~640m)
DCMカーマ(春日井西店) 徒歩8~9分(640~670m)
アオキスーパー(朝宮店) 徒歩11分(850~870m)
春日井宮町郵便局 徒歩10分(770~800m)
東春信用金庫(朝宮支店) 徒歩5分(340~370m)
神谷歯科 徒歩4分(270~300m)
東春病院 徒歩9~10分(720~750m)
やまだ内科クリニック 徒歩11~12分(860~890m)
0037-618-92984
無料
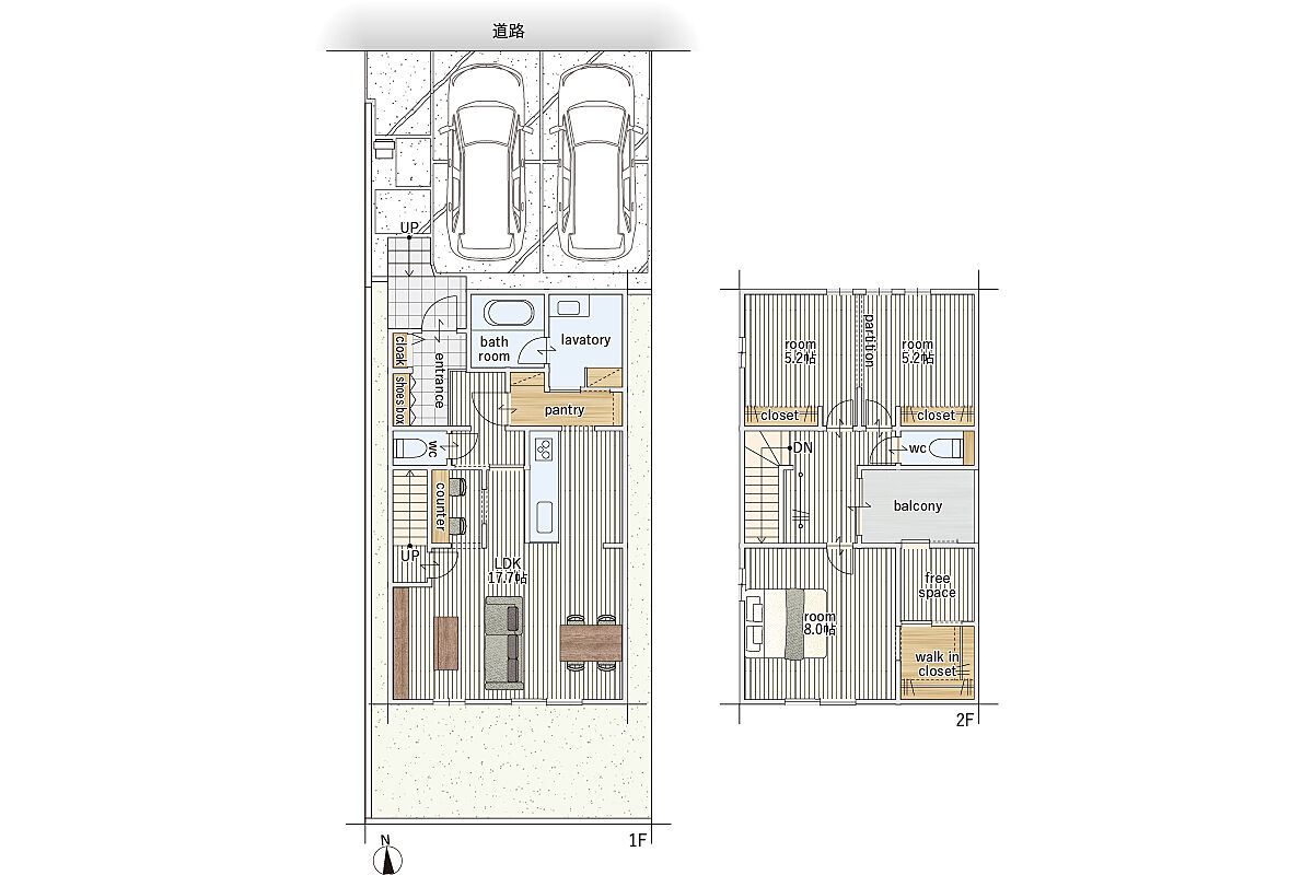
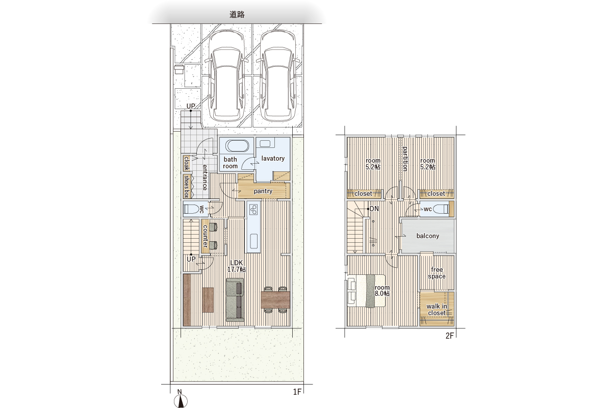
間取り図
-
1号地 間取り 4LDK 価格 3790万円 建物面積 103.11m2 土地面積 111.99m2 -
2号地 間取り 4LDK 価格 3790万円 建物面積 102.28m2 土地面積 112.10m2 -
3号地 間取り 4LDK 価格 4090万円 建物面積 103.11m2 土地面積 113.52m2 -
4号地 間取り 3SLDK 価格 4090万円 建物面積 99.18m2 土地面積 113.53m2 -
5号地 間取り 3SLDK 価格 4290万円 建物面積 97.73m2 土地面積 119.94m2 -
6号地 間取り 4LDK 価格 4290万円 建物面積 99.38m2 土地面積 119.93m2
0037-618-92984
無料
内観・室内
-
CGパース/5号地内観イメージ
キッチンと洗面室をつなぐパントリースペース。可動棚でしまう場所...
-
CGパース/5号地内観イメージ
17.7帖のLDKにカウンタースペースを設けました。集中して作...
-
CGパース/5号地内観イメージ
主寝室に隣接するフリースペースを設置しました。寝室は、眠る時以...
-
CGパース/6号地内観イメージ
家族との会話を楽しみながらお料理ができる対面キッチン(食洗機付...
-
CGパース/6号地内観イメージ
散らかりやすいリビングに幅広のクローゼットを配置。生活用品はも...
-
CGパース/6号地内観イメージ
壁一面にクローゼットを備えているので、服が多くても安心です。
間取り・内観のこだわりポイント
- LDK15帖以上
- 4LDK以上
- 南面バルコニー
- 全室フローリング
0037-618-92984
無料
設備・仕様
設備・仕様のこだわりポイント
- キッチン
-
- カウンターキッチン
- 食器洗い乾燥機
- 浄水器・活水器
- ガスコンロ
- 収納
-
- ウォークインクローゼット
- シューズクローク
- パントリー
- 全居室収納
- その他設備
-
- 都市ガス
- マイホーム発電システム
- シャワー付洗面化粧台
- 温水洗浄便座
- 浴室乾燥機
- 浴室暖房
- トイレ2ヶ所以上
- 複層ガラス採用(二重サッシ・防犯サッシ等)
- スマートキー
- 省エネ給湯器
- 電動シャッター
- TVモニタ付インターホン
- 宅配ボックス
- EV充電設備
- マイホーム発電システム
- 太陽光発電
省エネ性能
- エネルギー消費性能:★★★★★★(削減率50%達成)
- 断熱性能:5段階/7段階
- 目安光熱費:約13.6〜14.2万円/年 ※「省エネ性能ラベル」は特定の住戸の性能を示し、全ての住戸の性能を示していない場合があります。
0037-618-92984
無料
外観・分譲地
外観・分譲地のこだわりポイント
- 駐車場あり
- 地盤調査済
- 前面道路6m以上
0037-618-92984
無料
周辺環境・地図
周辺情報
※半径4kmを超えると、周辺情報のアイコンは表示されません。
- ※不動産会社が入力した情報を基に物件の位置を表示しています。
- ※詳しくは不動産会社までお問合せください。
- ※地図上に表示される各種アイコンなどの情報は、おおよその所在地を表すものであり、物件・施設などの地点を保証するものではありません。
- ※地図の表示領域が広域になると周辺のお店・施設は表示できなくなります。
- ※地図、航空写真情報および地形ならびに周辺のお店・施設は、必ずしも現況を表すものではありません。
- ※物件から周辺のお店・施設までの距離は、利用が想定される道路を通行した場合の距離です。なお、必ずしも最短距離を保証するものではありません。
-
【学校】
春日井小学校 (1540~1570m 徒歩20分)
児童数約702名(2025年)
-
【学校】
西部中学校 (1280~1310m 徒歩16分~17分)
生徒数約840名(2025年)
-
【その他】
三ツ星幼稚園 (1000~1030m 徒歩13分)
対象年齢:3歳~5歳、定員:420名
-
【買い物】
アオキスーパー(朝宮店) (660~690m 徒歩9分)
営業時間10:00~20:00、日曜日のみ09:00~20:0...
-
【買い物】
V・drug(春日井朝宮店) (1090~1120m 徒歩14分)
営業時間09:30~21:00、調剤薬局09:30~19:30...
-
【病院・役所】
東春病院 (720~750m 徒歩9分~10分)
周辺環境のこだわりポイント
- スーパー 800m以内
- コンビニ 400m以内
- 公園 400m以内
0037-618-92984
無料
物件概要
| 所在地 | 愛知県春日井市高山町2丁目21番3~21番24 | ||
|---|---|---|---|
| 交通 |
名鉄小牧線「春日井」駅 徒歩25分~26分 名鉄バス「高山口」停 徒歩4分 |
||
| 販売価格 | 3,790万円~4,290万円 | 最多価格帯 | - |
| 建物面積 | 97.73m2~103.11m2 | 土地面積 | 111.99m2~119.94m2 |
| 間取り | 3SLDK・4LDK | 建物構造 | 木造2階建 |
| 販売スケジュール | 先着順受付中 | ||
| 販売戸数 / 総戸数 | 6戸 / 6戸 | ||
| 完成予定日 | 2026年8月上旬予定、2026年11月上旬予定 | 引き渡し可能年月 | 相談 |
| 駐車場 | 2台 | 道路の幅員 | 北側幅員約6.0mの公道に接する |
| 用途地域 | 第一種中高層住居専用地域 | 都市計画 | 市街化区域 |
| 地目 | 宅地 | 国土法 | - |
| 土地の権利 | 所有権 | 借地権の種類・期間 | - |
| 主たる設備の概要 | 公営水道、都市ガス、中部電力、公共下水 | 建築確認番号 | 確認サービス第KS126-0420-55441号他 |
| 施工会社 | 株式会社AVANTIA | 機構融資 | - |
| 売主 | 株式会社AVANTIA | 取引態様 | 株式会社アバンティア不動産/仲介 |
| キャンペーン・イベント情報 |
|
||
| 備考 |
【その他制限】 都市機能誘導区域外、居住誘導区域内、航空法 【アバンティアクラブ会員募集中!】 ご入会のお客様に、1,000円分のギフトカードプレゼント! 詳しくは弊社ホームページをご確認ください 《注意事項》 他のサービスとの併用はできません。 ご家族様1組につき、新規加入1回限りの特典となります。既にご加入頂いている方は対象外となります。 ギフトカードの受け渡しは直接手渡しとさせていただきます、郵送での受け渡しはお受けできません。 |
||
| 情報更新日 | 2026/05/25 | 次回更新予定日 | 2026/06/05 |
| 取引条件有効期限 | 2026/05/31 | ||
住宅性能・販売概要・権利のこだわりポイント
- 所有権
- 瑕疵担保付き
- 間取り変更可能
- 耐震・制震・免震構造
- 長期優良住宅
- 設計住宅性能評価書
- 耐震・制震・免震構造
- 耐震等級3
0037-618-92984
無料
キャンペーン・イベント情報
【アバンティアクラブ会員募集中!】ご入会のお客様に、1000円分のギフトカードプレゼント!
参加特典
ご入会のお客様に、1000円分のギフトカードプレゼント!
ご入会のお客様に、1000円分のギフトカードプレゼント! 他のサービスとの併用はできません。 ご家族様1組につき、新規加入1回限りの特典となります。既にご加入頂いている方は対象外となります。 ギフトカードの受け渡しは直接手渡しとさせていただきます、郵送での受け渡しはお受けできません。
| 開催日時 |
2025年01月01日〜2026年12月31日
|
|---|---|
| 開催場所 | 愛知県名古屋市中川区中島新町三丁目201番地の1 |
| 交通 |
名古屋臨海高速あおなみ線「中島」駅 徒歩9分 |
【アバンティアクラブ会員募集中!】アバンティアクラブとは、物件の詳しい情報や、今後の最新情報・住まいに役立つイベント情報提供をいち早くお届けする会員組織です。
取扱い不動産会社
スタッフからのコメント
- お気軽にお問い合わせください!
- ~閑静な住宅街で子育て環境も整った立地~
3SLDK・4LDKの6棟を分譲中!
随時お問合せ受付中です。お気軽にご連絡ください♪
本田 卓也
株式会社アバンティア不動産 中川営業所の会社情報
お電話でのお問合せは「LIFULL HOME'S(ライフルホームズ)を見て」とお伝えください
アバンティア不動産 中川営業所
0037-618-92984
無料
- ※携帯電話はご利用いただけます
- ※光IP電話、及びIP電話をご利用のお客様はTEL:052-361-0034へご連絡ください
- ※携帯電話からお問合せいただいた方には、ショートメッセージ(SMS)またはLINE通知メッセージによるお問合せ内容に関する通知をお届けする場合があり、お客様の電話番号は株式会社LIFULLで一定期間保管されます
- ※株式会社LIFULLの個人情報の取扱い方針に同意のうえ、お電話ください
| 会社名 |
株式会社アバンティア不動産 中川営業所 |
|---|---|
| 免許番号 | 国土交通大臣 (6) 第 5803 号 |
| 所在地 | 愛知県名古屋市中川区中島新町三丁目201番地の1 |
| 所属団体 |
東海不動産公正取引協議会 |
この物件にお問合せする
実際に物件・周辺環境を見て検討したい!
近隣建物や接道の状況など資料で分からない部分も一目瞭然。 まずはWEBで事前予約、スムーズに見学しましょう
ご予約無しに直接ご来場された場合、担当者不在であったり、
他のお客様のご案内の都合上、お待たせしてしまうことがございます。
不動産会社に電話で相談したい!
アバンティア不動産 中川営業所
0037-618-92984
無料
電話でのお問合せは「LIFULL HOME'S(ライフルホームズ)を見て」とお伝えください
- ※携帯電話はご利用いただけます
- ※光IP電話、及びIP電話をご利用のお客様はTEL:052-361-0034へご連絡ください
- ※携帯電話からお問合せいただいた方には、ショートメッセージ(SMS)またはLINE通知メッセージによるお問合せ内容に関する通知をお届けする場合があり、お客様の電話番号は株式会社LIFULLで一定期間保管されます
- ※株式会社LIFULLの個人情報の取扱い方針に同意のうえ、お電話ください
LIFULL HOME'Sは物件鮮度No.1を目指していきます 物件情報に誤りがある場合はコチラからご連絡ください
- 【物件番号】
- 1706926-0000363
- ※完成後1年未満で未入居の物件を「新築」と表示しております。
- ※完成予想図やCG合成画像は、門塀・植栽・庭・外観等、実際とは多少異なる場合があります。
物件を再検索する
愛知県の人気エリアから新築一戸建てを探す








