新築一戸建て 【AVANTIA アバンティア】中村区下中村町1期
この物件は未完成のため、掲載写真(外観、内観、設備等)には、施工例が含まれている場合があります。物件詳細については、掲載の不動産会社宛にお問合せください。
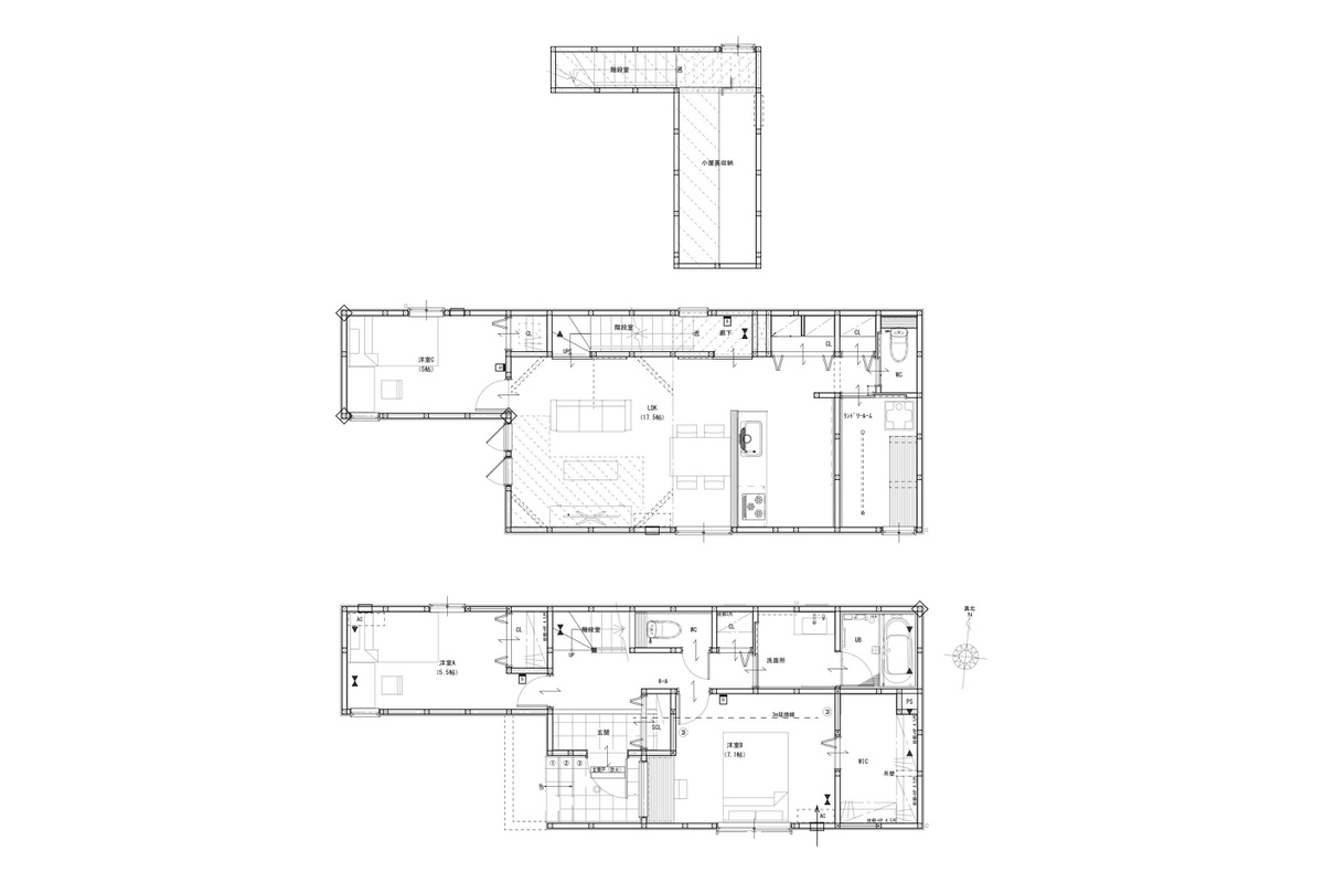
【限定1棟/3SLDK】■2階にリビング■小屋裏収納■東山線「中村日赤」駅まで徒歩13分!■小学校徒歩5分圏内■スーパー等買物施設充実
【周辺施設】■日吉小学校 徒歩5分■豊国中学校 徒歩12分■日吉保育園 徒歩5分■ナフコトミダ 徒歩6分■スギ薬局 徒歩7分■ピアゴ 徒歩12分■中村郵便局 徒歩4分■日吉公園 徒歩7分
【設備・保証】■エコジョーズ■食洗機■浴室暖房乾燥機■照明■EVコンセント■IoT搭載■地盤20年間保証■建物30年延長保証■住宅設備機器あんしんの10年保証■24時間365日緊急対応サービス
0037-618-96102
無料
魅力1 西向きの限定1棟/敷地面積25.9坪/3LDK+S
\建物ポイント/
・駐車場1台
・シューズクローク
・1階に洋室2部屋WIC・カウンター付き
・陽当り良好な2階リビング(17.5帖)
・キッチンの奥にはランドリールーム
・便利な小屋裏収納
ご購入を検討中の方、AVANTIAの建物を見てみたい方、
注文住宅の参考にしたい方などお気軽にご見学ください!
見学前にまずは資料を確認したい方には、AVANTIAのすべてが分かる
カタログと物件資料一式をお送りします!
皆さまの見学予約・お申込みをお待ちしております。
魅力2 【周辺環境】交通・教育施設・公園
市バス「大宮町」停 徒歩3分(240m)
地下鉄東山線「中村公園」駅 徒歩13分(1000m)
地下鉄桜通線「太閤通」駅 徒歩14分(1100m)
日吉小学校 徒歩5分(350m)
豊国中学校 徒歩12分(930m)
日吉保育園 徒歩5分(390m)
太閤幼稚園 徒歩7分(510m)
ふたつばし保育園 徒歩7分(530m)
日吉公園 徒歩7分(560m)
押木田公園 徒歩9分(680m)
日吉二ツ橋公園 徒歩9分(690m)
魅力3 【周辺環境】買物施設・金融機関・病院
セブンイレブン(名古屋名西通1丁目店) 徒歩3分(180m)
ナフコトミダ(千成店) 徒歩6分(420m)
スギ薬局(太閤通店) 徒歩7分(500m)
V・drug(黄金店) 徒歩9分(700m)
DCM(名古屋黄金店) 徒歩11分(850m)
中村郵便局 徒歩4分(260m)
ゆうちょ銀行(中村店) 徒歩4分(260m)
大菅病院 徒歩5分(380m)
いしはら総合歯科 徒歩6分(440m)
0037-618-96102
無料
内観・室内
間取り・内観のこだわりポイント
- LDK15帖以上
- 全室フローリング
0037-618-96102
無料
設備・仕様
設備・仕様のこだわりポイント
- キッチン
-
- カウンターキッチン
- 食器洗い乾燥機
- 浄水器・活水器
- ガスコンロ
- 収納
-
- ウォークインクローゼット
- 屋根裏収納
- シューズクローク
- 全居室収納
- その他設備
-
- 都市ガス
- マイホーム発電システム
- シャワー付洗面化粧台
- 温水洗浄便座
- 浴室乾燥機
- 浴室暖房
- トイレ2ヶ所以上
- 複層ガラス採用(二重サッシ・防犯サッシ等)
- スマートキー
- 省エネ給湯器
- 電動シャッター
- TVモニタ付インターホン
- 宅配ボックス
- EV充電設備
- マイホーム発電システム
- 太陽光発電
省エネ性能
- エネルギー消費性能:★★★★★★(削減率50%達成)
- 断熱性能:5段階/7段階
- 目安光熱費:約13.5万円/年 ※「省エネ性能ラベル」は特定の住戸の性能を示し、全ての住戸の性能を示していない場合があります。
0037-618-96102
無料
外観・分譲地
外観・分譲地のこだわりポイント
- 駐車場あり
- 地盤調査済
0037-618-96102
無料
周辺環境・地図
周辺情報
※半径4kmを超えると、周辺情報のアイコンは表示されません。
- ※不動産会社が入力した情報を基に物件の位置を表示しています。
- ※詳しくは不動産会社までお問合せください。
- ※地図上に表示される各種アイコンなどの情報は、おおよその所在地を表すものであり、物件・施設などの地点を保証するものではありません。
- ※地図の表示領域が広域になると周辺のお店・施設は表示できなくなります。
- ※地図、航空写真情報および地形ならびに周辺のお店・施設は、必ずしも現況を表すものではありません。
- ※物件から周辺のお店・施設までの距離は、利用が想定される道路を通行した場合の距離です。なお、必ずしも最短距離を保証するものではありません。
-
【学校】
日吉小学校 (350m 徒歩5分)
児童数309名(2025年度) 教育目標「仲良く 正しく たく...
-
【学校】
豊国中学校 (930m 徒歩12分)
教育目標「自覚と責任をもって、未来社会に生きる望ましい人間を育...
-
【その他】
日吉保育園 (390m 徒歩5分)
保育対象年齢:生後6ヶ月~小学校就学前、保育標準時間07:00...
-
【買い物】
ナフコトミダ(千成店) (420m 徒歩6分)
営業時間09:30~20:00、日曜日09:00~20:00、...
-
【買い物】
DCM(名古屋黄金店) (850m 徒歩11分)
営業時間10:00~20:00 ペットショップ10:00~19...
-
【金融機関】
中村郵便局 (260m 徒歩4分)
郵便窓口09:00~19:00 駐車場:24台
周辺環境のこだわりポイント
- スーパー 800m以内
- コンビニ 400m以内
- 小学校 800m以内
- 総合病院 800m以内
- 保育園・幼稚園 400m以内
- 複数路線
0037-618-96102
無料
物件概要
| 所在地 | 愛知県名古屋市中村区下中村町一丁目2番1、2番2 | ||
|---|---|---|---|
| 交通 |
名古屋市営東山線「中村公園」駅 徒歩13分 名古屋市営桜通線「太閤通」駅 徒歩14分 |
||
| 販売価格 | 3,790万円 | 最多価格帯 | - |
| 建物面積 | 100.27m2(30.33坪) | 土地面積 | 85.76m2(25.94坪) |
| 間取り | 3SLDK | 建物構造 | 木造2階建 |
| 販売スケジュール | 先着順受付中 | ||
| 販売戸数 / 総戸数 | 1戸 / 1戸 | ||
| 完成予定日 | 2026年8月中旬予定 | 引き渡し可能年月 | 相談 |
| 駐車場 | 1台 | 道路の幅員 | 西側幅員約5.45mの公道に接する |
| 用途地域 | 第二種中高層住居専用地域・近隣商業地域 | 都市計画 | 市街化区域 |
| 地目 | 宅地 | 国土法 | - |
| 土地の権利 | 所有権 | 借地権の種類・期間 | - |
| 主たる設備の概要 | 公営水道、都市ガス、中部電力、公共下水 | 建築確認番号 | 確認サービス第KS126-0420-51747号 |
| 施工会社 | 株式会社AVANTIA | 機構融資 | - |
| 売主 | 株式会社AVANTIA [国土交通大臣(6)第005803号] | 取引態様 | 株式会社アバンティア不動産/仲介 |
| イベント情報 |
|
||
| 備考 |
【その他制限】 20m、45m高度地区 都市再生特別措置法 緑化地域 景観法 【アバンティアクラブ会員募集中!】 ご入会のお客様に、1,000円分のギフトカードプレゼント! 詳しくは弊社ホームページをご確認ください 《注意事項》 他のサービスとの併用はできません。 ご家族様1組につき、新規加入1回限りの特典となります。既にご加入頂いている方は対象外となります。 ギフトカードの受け渡しは直接手渡しとさせていただきます、郵送での受け渡しはお受けできません。 |
||
| 情報更新日 | 2026/05/16 | 次回更新予定日 | 2026/05/30 |
| 取引条件有効期限 | 2026/05/31 | ||
住宅性能・販売概要・権利のこだわりポイント
- 所有権
- 瑕疵担保付き
- 耐震・制震・免震構造
- 長期優良住宅
- 設計住宅性能評価書
- 耐震・制震・免震構造
- 耐震等級3
0037-618-96102
無料
現地・イベント情報
【アバンティアクラブ会員募集中!】ご入会のお客様に、1000円分のギフトカードプレゼント!
参加特典
ご入会のお客様に、1000円分のギフトカードプレゼント!
ご入会のお客様に、1000円分のギフトカードプレゼント! 他のサービスとの併用はできません。 ご家族様1組につき、新規加入1回限りの特典となります。既にご加入頂いている方は対象外となります。 ギフトカードの受け渡しは直接手渡しとさせていただきます、郵送での受け渡しはお受けできません。
| 開催日時 |
2025年01月01日〜2026年12月31日
|
|---|---|
| 開催場所 | 愛知県名古屋市中川区中島新町三丁目201番地の1 |
| 交通 |
名古屋臨海高速あおなみ線「中島」駅 徒歩9分 |
【アバンティアクラブ会員募集中!】アバンティアクラブとは、物件の詳しい情報や、今後の最新情報・住まいに役立つイベント情報提供をいち早くお届けする会員組織です。
取扱い不動産会社
スタッフからのコメント
- いつでも現地案内致します!お気軽にお問合せくださいませ!
- スーパーや病院も生活圏内にあり過ごしやすい住環境
物件についてはもちろん、資金についてもお気軽にお問い合わせください。
水谷 真理
株式会社アバンティア不動産 中川営業所の会社情報
お電話でのお問合せは「LIFULL HOME'S(ライフルホームズ)を見て」とお伝えください
株式会社アバンティア不動産 中川営業所
0037-618-96102
無料
- ※携帯電話はご利用いただけます
- ※光IP電話、及びIP電話をご利用のお客様はTEL:052-361-0034へご連絡ください
- ※携帯電話からお問合せいただいた方には、ショートメッセージ(SMS)またはLINE通知メッセージによるお問合せ内容に関する通知をお届けする場合があり、お客様の電話番号は株式会社LIFULLで一定期間保管されます
- ※株式会社LIFULLの個人情報の取扱い方針に同意のうえ、お電話ください
| 会社名 |
株式会社アバンティア不動産 中川営業所 |
|---|---|
| 免許番号 | 国土交通大臣 (6) 第 5803 号 |
| 所在地 | 愛知県名古屋市中川区中島新町三丁目201番地の1 |
| 所属団体 |
東海不動産公正取引協議会 |
この物件にお問合せする
実際に物件・周辺環境を見て検討したい!
近隣建物や接道の状況など資料で分からない部分も一目瞭然。 まずはWEBで事前予約、スムーズに見学しましょう
ご予約無しに直接ご来場された場合、担当者不在であったり、
他のお客様のご案内の都合上、お待たせしてしまうことがございます。
不動産会社に電話で相談したい!
株式会社アバンティア不動産 中川営業所
0037-618-96102
無料
電話でのお問合せは「LIFULL HOME'S(ライフルホームズ)を見て」とお伝えください
- ※携帯電話はご利用いただけます
- ※光IP電話、及びIP電話をご利用のお客様はTEL:052-361-0034へご連絡ください
- ※携帯電話からお問合せいただいた方には、ショートメッセージ(SMS)またはLINE通知メッセージによるお問合せ内容に関する通知をお届けする場合があり、お客様の電話番号は株式会社LIFULLで一定期間保管されます
- ※株式会社LIFULLの個人情報の取扱い方針に同意のうえ、お電話ください
LIFULL HOME'Sは物件鮮度No.1を目指していきます 物件情報に誤りがある場合はコチラからご連絡ください
- 【物件番号】
- 1706926-0000323
- ※完成後1年未満で未入居の物件を「新築」と表示しております。
- ※完成予想図やCG合成画像は、門塀・植栽・庭・外観等、実際とは多少異なる場合があります。
物件を再検索する
名古屋市の人気エリアから新築一戸建てを探す








