新築一戸建て 【AVANTIA アバンティア 新築戸建】名東区 極楽
この物件は未完成のため、掲載写真(外観、内観、設備等)には、施工例が含まれている場合があります。物件詳細については、掲載の不動産会社宛にお問合せください。
□東山線「本郷」駅 自転車10分
□長期優良住宅×ZEH
□シューズクローゼット、パントリー等収納豊富な住まい
・名古屋市バス「極楽東」停 徒歩5分
・極楽小学校 徒歩9分
・高針台中学校 徒歩10分
・わかばコスモ極楽園 徒歩7分
・猪高緑地 徒歩3分
・極楽フランテ 徒歩7分
・業務スーパー 名東極楽店 徒歩7分
・マックスバリュ 長久手店 徒歩10分
・フィールクオリテ 名東高針店 徒歩15分
0037-618-61249
無料
魅力1 ●○●【限定2邸】太陽光搭載×ZEH×長期優良住宅のデザイナーズハウス●○●
・東山線「本郷」駅 自転車10分
【1号地】
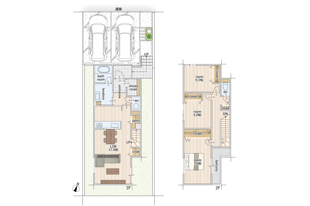
L字框のゆとりある玄関
キッチンから洗面所のアクセス◎
リビングクローゼット
突然の雨にも安心なインナーバルコニー
納戸
2階に4部屋
3台駐車可
【2号地】
広々パントリー
奥行のあるシューズクローゼット
家族が緩やかに繋がるリビング階段
【家のさまざまな住宅設備(モノ)がインターネットと繋がるIoT住宅】
例えば外出先から玄関の施錠を確認したり、インターホンの対応ができたり、
シャッターを閉めることができる新しい住まいの形です。
魅力2 ●○●1号地:収納豊富●○●
魅力3 ●○●閑静な住宅街!お買い物施設や病院が多数、暮らしやすい環境です●○●
・極楽小学校 徒歩9分
・高針台中学校 徒歩10分
・わかばコスモ極楽園 徒歩7分
・猪高緑地 徒歩3分
・極楽フランテ 徒歩5分
・業務スーパー 名東極楽店 徒歩7分
・マックスバリュ 長久手店 徒歩10分
・フィールクオリテ 名東高針店 徒歩15分
0037-618-61249
無料
間取り図
0037-618-61249
無料
内観・室内
間取り・内観のこだわりポイント
- LDK15帖以上
- 4LDK以上
- 南面バルコニー
- 全室フローリング
0037-618-61249
無料
設備・仕様
-
省エネ性能が高く長寿命「LED照明」
LED照明の寿命は一般電球に比べて寿命が...
-
この先の必需品「EVコンセント」
EVコンセントも標準装備です。
抜け止め...
-
リロック機能付き「玄関ドア」
ボタンを押してワンタッチで施解錠。 安心...
-
通風量アップ!夏も快適「クリアネット網戸...
細かい網目で防虫性をアップ。眺望性と通気...
-
堅固な家を作る「ベタ基礎」
ベタ基礎は建築基準法で定められたものより...
-
換気率を高める「基礎パッキング工法」
土台と基礎の間にパッキンを敷き込んで換気...
-
高性能グラスウール採用「断熱材」
高性能グラスウール24K採用で冬は暖かく...
-
「Low-E複層ガラス(断熱タイプ)+ア...
窓の室内側に、断熱性・防露性に優れた『樹...
-
耐食性や断熱・熱反射性に優れた「屋根材」
金属であることから高い耐水性、防火性が強...
設備・仕様のこだわりポイント
- キッチン
-
- カウンターキッチン
- 食器洗い乾燥機
- 浄水器・活水器
- ガスコンロ
- 収納
-
- ウォークインクローゼット
- シューズクローク
- パントリー
- 全居室収納
- その他設備
-
- 都市ガス
- マイホーム発電システム
- シャワー付洗面化粧台
- 温水洗浄便座
- 浴室乾燥機
- 浴室暖房
- トイレ2ヶ所以上
- スマートキー
- 省エネ給湯器
- 電動シャッター
- TVモニタ付インターホン
- 宅配ボックス
- EV充電設備
省エネ性能
- エネルギー消費性能:★★★★★★(削減率50%達成)
- 断熱性能:5段階/7段階
- 目安光熱費:約14〜14.2万円/年 ※「省エネ性能ラベル」は特定の住戸の性能を示し、全ての住戸の性能を示していない場合があります。
0037-618-61249
無料
外観・分譲地
外観・分譲地のこだわりポイント
- 駐車場あり
- 低層住宅地
- 敷地延長・変形地
0037-618-61249
無料
周辺環境・地図
周辺情報
※半径4kmを超えると、周辺情報のアイコンは表示されません。
- ※不動産会社が入力した情報を基に物件の位置を表示しています。
- ※詳しくは不動産会社までお問合せください。
- ※地図上に表示される各種アイコンなどの情報は、おおよその所在地を表すものであり、物件・施設などの地点を保証するものではありません。
- ※地図の表示領域が広域になると周辺のお店・施設は表示できなくなります。
- ※地図、航空写真情報および地形ならびに周辺のお店・施設は、必ずしも現況を表すものではありません。
- ※物件から周辺のお店・施設までの距離は、利用が想定される道路を通行した場合の距離です。なお、必ずしも最短距離を保証するものではありません。
周辺環境のこだわりポイント
- スーパー 800m以内
- コンビニ 400m以内
- 小学校 800m以内
- 公園 400m以内
- 中学校 800m以内
0037-618-61249
無料
物件概要
| 所在地 | 愛知県名古屋市名東区極楽二丁目(1)215番2(2)215番3 | ||
|---|---|---|---|
| 交通 |
名古屋市営東山線「本郷」駅 徒歩30分 自転車10分 市バス「極楽東」停 徒歩5分 |
||
| 販売価格 | 4690万円・4990万円 | 最多価格帯 | - |
| 建物面積 | 92.68m2~109.51m2(インナーバルコニー1.65m2を含む) | 土地面積 | 126.00m2~161.51m2(路地状部分54.0m2を含む) |
| 間取り | 3LDK・4LDK+S | 建物構造 | 木造2階建(在来工法) |
| 販売スケジュール | 販売中 | ||
| 販売戸数 / 総戸数 | 2戸 / 2戸 | ||
| 完成予定日 | 2026年8月下旬 | 引き渡し可能年月 | 相談 |
| 駐車場 | - | 道路の幅員 | 私道負担なし、北側幅員約6.5mの公道に接する |
| 用途地域 | 第一種低層住居専用地域 | 都市計画 | 市街化区域 |
| 地目 | 畑 | 国土法 | - |
| 土地の権利 | 所有権 | 借地権の種類・期間 | - |
| 主たる設備の概要 | 中部電力、公営水道、本下水、都市ガス | 建築確認番号 | (1)確認サービス第KS126-0420-53276号(2)確認サービス第KS126-0420-53277号 |
| 施工会社 | 株式会社AVANTIA | 機構融資 | - |
| 売主 | 株式会社AVANTIA [国土交通大臣(6)第5803号] | 取引態様 | 株式会社アバンティア不動産(一般仲介) |
| イベント情報 |
|
||
| 備考 | 宅地造成及び特定盛土等規制法、都市再生特別措置法、都市機能誘導区域外、居住誘導区域内、10m高度地区、壁面後退1.0m、農地法 | ||
| 情報更新日 | 2026/05/15 | 次回更新予定日 | 2026/05/29 |
| 取引条件有効期限 | 2026/05/31 | ||
住宅性能・販売概要・権利のこだわりポイント
- 所有権
- 瑕疵担保付き
- 耐震・制震・免震構造
- 長期優良住宅
- 設計住宅性能評価書
- 耐震・制震・免震構造
- 制震ダンパー (MAMORY)
0037-618-61249
無料
現地・イベント情報
【アバンティアクラブ会員募集中!】ご入会のお客様に、1、000円分のアマゾンギフトカードプレゼント!
参加特典
ご入会のお客様に千円分のアマゾンギフトカードプレゼント!
ご入会のお客様に、1、000円分のアマゾンギフトカードプレゼント! 他のサービスとの併用はできません。 ご家族様1組につき、新規加入1回限りの特典となります。既にご加入頂いている方は対象外となります。 アマゾンギフトカードの受け渡しは直接手渡しとさせていただきます、郵送での受け渡しはお受けできません。
| 開催日時 |
2025年12月21日〜2026年12月31日
|
|---|---|
| 開催場所 | 愛知県長久手市井堀113番地 |
| 交通 |
名古屋市営東山線「藤が丘」駅 徒歩18分 |
【アバンティアクラブ会員募集中!】アバンティアクラブとは、物件の詳しい情報や、今後の最新情報・住まいに役立つイベント情報提供をいち早くお届けする会員組織です。
取扱い不動産会社
スタッフからのコメント
- お気軽にお問合せくださいませ!
- 極楽小、高針台中 徒歩10分圏内!
太陽光システム搭載!
納戸やパントリーなど収納力を備えた住まい。
自然豊かな猪高緑地近くの閑静な住宅地です。
お気軽にお問合せください。
渡邊 晃志
株式会社アバンティア不動産 長久手営業所の会社情報
お電話でのお問合せは「LIFULL HOME'S(ライフルホームズ)を見て」とお伝えください
株式会社アバンティア不動産 長久手営業所
0037-618-61249
無料
- ※携帯電話はご利用いただけます
- ※光IP電話、及びIP電話をご利用のお客様はTEL:0561-61-5534へご連絡ください
- ※携帯電話からお問合せいただいた方には、ショートメッセージ(SMS)またはLINE通知メッセージによるお問合せ内容に関する通知をお届けする場合があり、お客様の電話番号は株式会社LIFULLで一定期間保管されます
- ※株式会社LIFULLの個人情報の取扱い方針に同意のうえ、お電話ください
| 会社名 |
株式会社アバンティア不動産 長久手営業所 |
|---|---|
| 免許番号 | 国土交通大臣 (1) 第 10419 号 |
| 所在地 | 愛知県長久手市井堀113番地 |
| 所属団体 |
東海不動産公正取引協議会 |
この物件にお問合せする
実際に物件・周辺環境を見て検討したい!
近隣建物や接道の状況など資料で分からない部分も一目瞭然。 まずはWEBで事前予約、スムーズに見学しましょう
ご予約無しに直接ご来場された場合、担当者不在であったり、
他のお客様のご案内の都合上、お待たせしてしまうことがございます。
不動産会社に電話で相談したい!
株式会社アバンティア不動産 長久手営業所
0037-618-61249
無料
電話でのお問合せは「LIFULL HOME'S(ライフルホームズ)を見て」とお伝えください
- ※携帯電話はご利用いただけます
- ※光IP電話、及びIP電話をご利用のお客様はTEL:0561-61-5534へご連絡ください
- ※携帯電話からお問合せいただいた方には、ショートメッセージ(SMS)またはLINE通知メッセージによるお問合せ内容に関する通知をお届けする場合があり、お客様の電話番号は株式会社LIFULLで一定期間保管されます
- ※株式会社LIFULLの個人情報の取扱い方針に同意のうえ、お電話ください
LIFULL HOME'Sは物件鮮度No.1を目指していきます 物件情報に誤りがある場合はコチラからご連絡ください
- 【物件番号】
- 1706923-0000225
- ※完成後1年未満で未入居の物件を「新築」と表示しております。
- ※完成予想図やCG合成画像は、門塀・植栽・庭・外観等、実際とは多少異なる場合があります。
物件を再検索する
名古屋市の人気エリアから新築一戸建てを探す














