新築一戸建て 【AVANTIA アバンティア】緑区 細口
この物件は未完成のため、掲載写真(外観、内観、設備等)には、施工例が含まれている場合があります。物件詳細については、掲載の不動産会社宛にお問合せください。
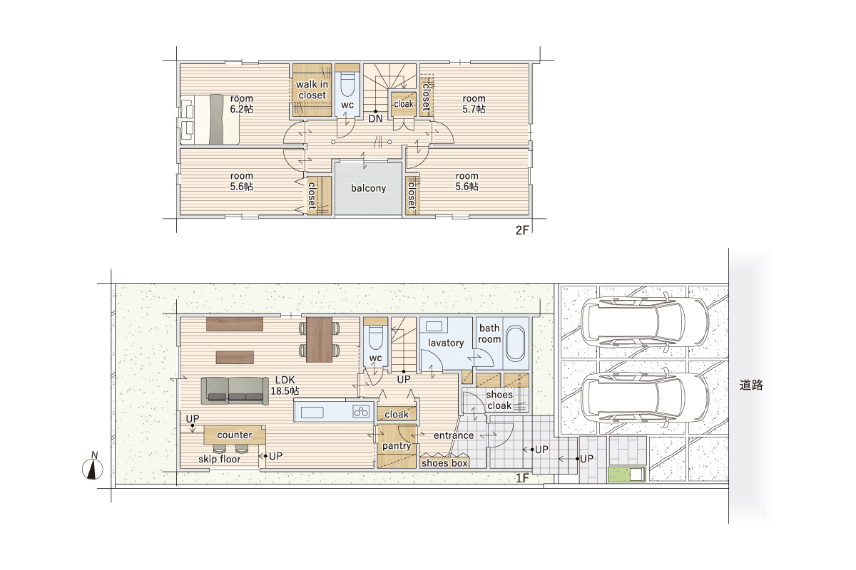
LDK18帖以上・大型ウォークイン完備・2WAYパントリー・4LDK
■おすすめポイント■
・買い物帰りに嬉しい玄関からパントリーを通ってキッチンへ出られる間取り
・LDKカウンタースペースはワークスペースやちょっとした作業スペースに
■周辺環境■
・名古屋市営地下鉄桜通線「徳重」駅 徒歩23分
・鳴海東部小学校 徒歩9分
・扇台中学校 徒歩19分
・しんほそぐち保育園 徒歩7~8分
・V・drug(緑鳴丘店) 徒歩4分
・コノミヤ(滝ノ水店) 徒歩10~11分
・細口西公園 徒歩2分
0037-618-18754
無料
間取り図
0037-618-18754
無料
内観・室内
間取り・内観のこだわりポイント
- LDK15帖以上
- 4LDK以上
- 南面バルコニー
- 全室2面採光
- 全室フローリング
0037-618-18754
無料
設備・仕様
-
リロック機能付き「玄関ドア」
ボタンを押してワンタッチで施解錠。 安心...
-
使い勝手の良い「システムキッチン」
横幅2,550ミリのワイドタイプのシステ...
-
この先の必需品「EVコンセント」
EVコンセントも標準装備です。
抜け止め...
-
ダブル保温構造「サーモバスS」
ダブルの保温構造で、4時間後の温度低下は...
-
冬でも足が冷えない「キレイサーモフロア」
浴室の床本体の上に、断熱層+水はけのよい...
-
高性能グラスウール採用「断熱材」
高性能グラスウール24K採用で冬は暖かく...
-
水で汚れを洗い流す外壁材「サイディング」
外壁に付着した汚れを雨水で繰り返し落とせ...
-
「Low-E複層ガラス(断熱タイプ)+ア...
窓の室内側に、断熱性・防露性に優れた『樹...
-
繰り返す地震に強い制震ダンパー「MAMO...
制震ダンパーは、建物に加わる地震のエネル...
設備・仕様のこだわりポイント
- キッチン
-
- カウンターキッチン
- 食器洗い乾燥機
- 浄水器・活水器
- ガスコンロ
- 収納
-
- ウォークインクローゼット
- シューズクローク
- パントリー
- 全居室収納
- その他設備
-
- 都市ガス
- シャワー付洗面化粧台
- 温水洗浄便座
- 浴室乾燥機
- 浴室1.6×1.8m以上
- 浴室暖房
- トイレ2ヶ所以上
- 節水型トイレ
- 複層ガラス採用(二重サッシ・防犯サッシ等)
- スマートキー
- 省エネ給湯器
- 電動シャッター
- TVモニタ付インターホン
- 宅配ボックス
- EV充電設備
省エネ性能
- エネルギー消費性能:★★★(削減率20%達成)
- 断熱性能:5段階/7段階
- 目安光熱費:約17.5〜18.2万円/年 ※「省エネ性能ラベル」は特定の住戸の性能を示し、全ての住戸の性能を示していない場合があります。
0037-618-18754
無料
外観・分譲地
外観・分譲地のこだわりポイント
- 駐車場あり
- 低層住宅地
- 地盤調査済
- 角地
- 前面道路6m以上
0037-618-18754
無料
周辺環境・地図
周辺情報
※半径4kmを超えると、周辺情報のアイコンは表示されません。
- ※不動産会社が入力した情報を基に物件の位置を表示しています。
- ※詳しくは不動産会社までお問合せください。
- ※地図上に表示される各種アイコンなどの情報は、おおよその所在地を表すものであり、物件・施設などの地点を保証するものではありません。
- ※地図の表示領域が広域になると周辺のお店・施設は表示できなくなります。
- ※地図、航空写真情報および地形ならびに周辺のお店・施設は、必ずしも現況を表すものではありません。
- ※物件から周辺のお店・施設までの距離は、利用が想定される道路を通行した場合の距離です。なお、必ずしも最短距離を保証するものではありません。
周辺環境のこだわりポイント
- スーパー 800m以内
- 小学校 800m以内
- 公園 400m以内
0037-618-18754
無料
物件概要
| 所在地 | 愛知県名古屋市緑区細口一丁目(1)504番1(2)504番2(3)504番3 | ||
|---|---|---|---|
| 交通 |
名古屋市営桜通線「徳重」駅 徒歩23分 名古屋市営バス「鍋山」停 徒歩4分 |
||
| 販売価格 | 4,890万円・5,090万円 | 最多価格帯 | - |
| 建物面積 | 96.30m2~107.25m2(建物面積にはポーチ部分(1)0.08m2(3)0.23m2を含む。) | 土地面積 | 133.21m2~164.40m2 |
| 間取り | 3LDK・4LDK | 建物構造 | 木造2階建 |
| 販売スケジュール | 先着順受付中/販売中 | ||
| 販売戸数 / 総戸数 | 3戸 / 3戸 | ||
| 完成予定日 | 2026年8月上旬建物完成予定(2026年8月下旬外構完成予定) | 引き渡し可能年月 | 2026年8月下旬予定 |
| 駐車場 | - | 道路の幅員 | 東側幅員約6.0m、北東側幅員約6.0mの公道に接する |
| 用途地域 | 第一種低層住居専用地域 | 都市計画 | 市街化区域 |
| 地目 | 宅地 | 国土法 | - |
| 土地の権利 | 所有権 | 借地権の種類・期間 | - |
| 主たる設備の概要 | 中部電力、都市ガス、公営水道、公共下水 | 建築確認番号 | 確認サービス第KS126-0420-(1)53641号(2)53642号(3)53648号 |
| 施工会社 | 株式会社AVANTIA | 機構融資 | - |
| 売主 | 株式会社AVANTIA 売主 [国土交通大臣(6)第5803号] | 取引態様 | 一般仲介 |
| 備考 |
その他法令制限等:10m高度地区、宅造法、砂防法、都市再生特別措置法、都市機能誘導区域外、居住誘導区域内、建築基準法第22条区域、景観法、緑化地域。 ※建物面積にはポーチ部分(1)0.08m2(3)0.23m2を含む。 ※定休日(火・水曜日)は下記携帯番号までお気軽にお問い合わせください。 【 塩野:070-1440-9860 】 |
||
| 情報更新日 | 2026/05/15 | 次回更新予定日 | 随時 |
| 取引条件有効期限 | 2026/05/31 | ||
住宅性能・販売概要・権利のこだわりポイント
- 所有権
- 瑕疵担保付き
- 耐震・制震・免震構造
- 設計住宅性能評価書
0037-618-18754
無料
取扱い不動産会社
株式会社アバンティア不動産 緑営業所の会社情報
お電話でのお問合せは「LIFULL HOME'S(ライフルホームズ)を見て」とお伝えください
株式会社アバンティア不動産 緑営業所
0037-618-18754
無料
- ※携帯電話はご利用いただけます
- ※光IP電話、及びIP電話をご利用のお客様はTEL:0120-00-2734へご連絡ください
- ※携帯電話からお問合せいただいた方には、ショートメッセージ(SMS)またはLINE通知メッセージによるお問合せ内容に関する通知をお届けする場合があり、お客様の電話番号は株式会社LIFULLで一定期間保管されます
- ※株式会社LIFULLの個人情報の取扱い方針に同意のうえ、お電話ください
| 会社名 |
株式会社アバンティア不動産 緑営業所 |
|---|---|
| 免許番号 | 国土交通大臣 (1) 第 10419 号 |
| 所在地 | 愛知県名古屋市緑区潮見が丘二丁目3番地 |
| 所属団体 |
東海不動産公正取引協議会 |
この物件にお問合せする
実際に物件・周辺環境を見て検討したい!
近隣建物や接道の状況など資料で分からない部分も一目瞭然。 まずはWEBで事前予約、スムーズに見学しましょう
ご予約無しに直接ご来場された場合、担当者不在であったり、
他のお客様のご案内の都合上、お待たせしてしまうことがございます。
不動産会社に電話で相談したい!
株式会社アバンティア不動産 緑営業所
0037-618-18754
無料
電話でのお問合せは「LIFULL HOME'S(ライフルホームズ)を見て」とお伝えください
- ※携帯電話はご利用いただけます
- ※光IP電話、及びIP電話をご利用のお客様はTEL:0120-00-2734へご連絡ください
- ※携帯電話からお問合せいただいた方には、ショートメッセージ(SMS)またはLINE通知メッセージによるお問合せ内容に関する通知をお届けする場合があり、お客様の電話番号は株式会社LIFULLで一定期間保管されます
- ※株式会社LIFULLの個人情報の取扱い方針に同意のうえ、お電話ください
LIFULL HOME'Sは物件鮮度No.1を目指していきます 物件情報に誤りがある場合はコチラからご連絡ください
- 【物件番号】
- 1706910-0000480
- ※完成後1年未満で未入居の物件を「新築」と表示しております。
- ※完成予想図やCG合成画像は、門塀・植栽・庭・外観等、実際とは多少異なる場合があります。
物件を再検索する
名古屋市の人気エリアから新築一戸建てを探す
