新築一戸建て (一)飯田グループホールディングス リーブルガーデン 武蔵村山残堀第13期
- 価格
- 3580万円~3880万円
- 所在地
- 東京都武蔵村山市残堀1
- 交通
- JR青梅線「昭島」駅 バス16分「残堀」バス停 徒歩3分JR中央線「立川」駅 バス33分「三ツ藤」バス停 徒歩5分西武拝島線「西武立川」駅 車3km
乗り換え案内
- 土地面積
- 117.57m2~125.32m2
- 建物面積
- 90.72m2~98m2
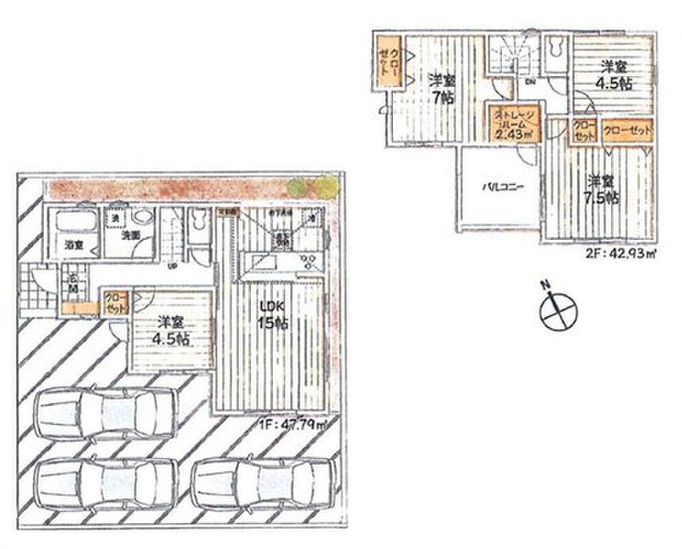
- 間取り
- 4LDK・4LDK+S(納戸)
□本日ご見学できます□ZEH水準&長期優良住宅!カースペース充実!
(1)交通アクセス
・JR青梅線「昭島」駅までバス16分、「残堀」バス停 徒歩3分
・JR中央線「立川」駅までバス33分、「三ツ藤」バス停 徒歩5分
(2)魅力の設備&間取り
・浄水器付きシステムキッチン
・WIC、ストレージルーム、ルーフバルコニーなど、各棟異なる魅力の間取り
・全居室に収納を完備!
0037-618-40181
無料
魅力1 長く安心して暮らせる、性能と健康に配慮した住まい
【長期優良住宅】
長期優良住宅とは、設備や広さなどの条件を満たし、将来にわたって長く住み続けられると国から認められた住宅のことです。減税や保険料、住宅ローン金利の優遇など嬉しいメリットもたくさん♪
【耐震性能最高等級3】
消防署や警察署など防災拠点となる建物に求められる最も高い耐震性能を持つ住宅基準で、震度7ほどの地震にも耐えられる安心の設計です♪
【24時間換気システム】
新鮮な空気を取り込むことはもちろん、ハウスダストやダニ、カビ、アレルゲン、湿気も排気できるため、健康な暮らしを保てます。
魅力2 学校と買物が身近に揃う、安心の住環境
【学校】
武蔵村山市立第八小学校:徒歩8分(600m)
武蔵村山市立第五中学校:徒歩13分(1000m)
【幼稚園・保育園】
まどか保育園分園:徒歩3分(193m)
村山中藤保育園白樺:徒歩10分(736m)
【買い物】
いなげや武蔵村山残堀店:徒歩5分(400m)
ドラッグセイムス武蔵村山三ツ藤店:徒歩8分(600m)
セブンイレブン武蔵村山残堀1丁目店:徒歩5分(350m)
【その他】
武蔵村山病院:徒歩18分(1400m)
JR青梅線「昭島」駅:徒歩57分(4500m)
残堀・伊奈平地区図書館:徒歩7分(512m)
三ツ藤児童遊園:徒歩10分(750m)
魅力3 【ホームトレードセンター】による一括サポート!お気軽にお問い合わせください!
☆ホームトレードセンターは日本一の分譲実績を誇る飯田グループホールディングス株式会社唯一の不動産販売専門会社です。
専門知識の高い販売専門のプロがアフターケアまでしっかりとサポート致します!
マイホーム探しや住宅購入、お住まいの住み替えご相談ください♪
当社買い取り保証サービスもご好評いただいております。もちろん住宅ローンのシミュレーション、資金計画等も承っております。
0037-618-40181
無料
間取り図
0037-618-40181
無料
内観・室内
間取り・内観のこだわりポイント
- LDK15帖以上
- 4LDK以上
- バリアフリー
- 屋上・ルーフバルコニー
- ワイドバルコニー
- 南面バルコニー
- 全室2面採光
- 全室フローリング
0037-618-40181
無料
設備・仕様
-
【省エネ性能ラベル】
こちらの物件はZEH水準を満たした、省エ...
-
【エコジョーズ】
少ないガス量で効率よくお湯を沸かす省エネ...
-
【オートバス】
自動でお風呂の準備が整うため準備時間の短...
-
【ウォークインクローゼット】
(5・6・8号棟)お子様との思い出もたっ...
-
【Low-e複層ガラス】
ペアガラスに挟まれた中空層のどちらか一方...
-
【TVモニター付きインターホン】
録画機能もあり、どのような人が何時に来訪...
-
日本の風土に調和する伝統的な「木造軸組工...
常に呼吸し、気候の変化に合わせて微妙に伸...
-
安心を支える「鉄筋入りコンクリートベタ基...
ベタ基礎は地面全体を基礎で覆うため、建物...
-
見えない部分で耐震・耐久性を高める「耐震...
基礎・土台・柱など接合部ごとに適材適所な...
設備・仕様のこだわりポイント
- キッチン
-
- カウンターキッチン
- 浄水器・活水器
- 収納
-
- 床下収納
- ウォークインクローゼット
- 全居室収納
- その他設備
-
- マイホーム発電システム
- シャワー付洗面化粧台
- 温水洗浄便座
- トイレ2ヶ所以上
- 節水型トイレ
- 複層ガラス採用(二重サッシ・防犯サッシ等)
- 省エネ給湯器
- TVモニタ付インターホン
省エネ性能
- エネルギー消費性能:★★★(削減率20%達成)
- 断熱性能:5段階/7段階 ※「省エネ性能ラベル」は特定の住戸の性能を示し、全ての住戸の性能を示していない場合があります。
0037-618-40181
無料
外観・分譲地
外観・分譲地のこだわりポイント
- 駐車場あり
- 低層住宅地
- 地盤調査済
- 角地
- 南道路
- 整形地
- 平坦地
0037-618-40181
無料
周辺環境・地図
周辺環境のこだわりポイント
- スーパー 800m以内
- コンビニ 400m以内
- 小学校 800m以内
- 保育園・幼稚園 400m以内
- 複数路線
0037-618-40181
無料
物件概要
| 所在地 | 東京都武蔵村山市残堀1 | ||
|---|---|---|---|
| 交通 |
JR青梅線「昭島」駅 バス16分「残堀」バス停 徒歩3分 JR中央線「立川」駅 バス33分「三ツ藤」バス停 徒歩5分 西武拝島線「西武立川」駅 車3km |
||
| 販売価格 | 3580万円~3880万円 | 最多価格帯 | - |
| 建物面積 | 90.72m2~98m2 | 土地面積 | 117.57m2~125.32m2 |
| 間取り | 4LDK・4LDK+S(納戸) | 建物構造 | 木造在来軸組工法2階建(900モジュール) |
| 販売スケジュール | 販売中 | ||
| 販売戸数 / 総戸数 | 3戸 / 4戸 | ||
| 完成予定日 | 2026年2月中旬予定 | 引き渡し可能年月 | 相談 |
| 駐車場 | 2台 ~ 3台 | 道路の幅員 | 道路幅:5m、アスファルト舗装、南側約5.0m公道(8号棟)、西側約5.0m公道(全棟) |
| 用途地域 | 第一種低層住居専用地域 | 都市計画 | - |
| 地目 | 宅地 | 国土法 | - |
| 土地の権利 | 所有権 | 借地権の種類・期間 | - |
| その他費用 | - | ||
| 主たる設備の概要 | 公営水道、本下水、個別LPG、東京電力 | 建築確認番号 | 第25UDI1W建07571号他 |
| 施工会社 | - | 機構融資 | - |
| 売主 | 取引態様 | 飯田グループホールディングス ホームトレードセンター(株)立川営業所<仲介> | |
| 備考 |
【その他制限事項】高度地区、準防火地域 【イベント情報】 ◇◆◇飯田グループホールディングス唯一の販売専門会社の社員が当物件をご案内させて頂きます◆◇◆ ▽貴重なお時間の中でご希望の情報をご提供します▽ 【 内容(所要時間) 】 (1) さくっと見学コース (30分~) (2) じっくり見学コース (60分~) (3) 納得見学コース (90分~) (4) まずは住宅ローン相談 (20分~) 上記(1)~(4)の中でお好きな番号をお教え下さい! 最寄り駅へのお迎えなど、ご要望に応じて送迎も可能でございます♪ ■現地見学のご予約について 鍵の手配が必要な場合がありますので、お早目にご連絡をいただけるとご案内がスムーズです。 当日はデジカメやスマホでの写真撮影ももちろん可能です。ご自宅でのご検討の際にお役立てください。 【資料請求(無料)】【電話で問い合わせ(無料)】から、お日にち・時間帯のご指定が可能です! 【ネットで見学予約】の欄からご希望の日時で直接ご見学予約も可能です! 平日やお仕事前・後のご見学もお待ちしております♪ 初めての住宅購入で、何から始めればいいか分からない! そんなお客様に、経験豊富なスタッフがわかりやすく丁寧にご案内致します! お探しのご希望をお聞かせ下さい! |
||
| 情報更新日 | 2026/05/28 | 次回更新予定日 | 2026/06/11 |
| 取引条件有効期限 | 2026/12/25 | ||
住宅性能・販売概要・権利のこだわりポイント
- 所有権
- 瑕疵担保付き
- 耐震・制震・免震構造
- 長期優良住宅
- 設計住宅性能評価書
- フラット35・S適合証明書
0037-618-40181
無料
取扱い不動産会社
スタッフからのコメント
- テレビCMでおなじみ【飯田グループHD販売専門スタッフ】
- 飯田グループホールディングス唯一の販売専門会社のホームトレードセンターの社員が直接、当物件をご案内させていただきます。
【この物件について】 JR青梅線「昭島」駅までバス16分♪全棟カースペース2~3台分完備◎ウォークインクローゼットやストレージルーム、ルーフバルコニーなど、各棟異なる魅力の邸宅です!ぜひお気軽にお問い合わせください♪
【得意エリア】 西多摩全域おまかせください!
岩田 朗
ホームトレードセンター株式会社 立川営業所の会社情報
お電話でのお問合せは「LIFULL HOME'S(ライフルホームズ)を見て」とお伝えください
飯田グループホールディングス ホームトレードセンター(株)立川営業所
0037-618-40181
無料
- ※携帯電話はご利用いただけます
- ※光IP電話、及びIP電話をご利用のお客様はTEL:042-847-8610へご連絡ください
- ※携帯電話からお問合せいただいた方には、ショートメッセージ(SMS)またはLINE通知メッセージによるお問合せ内容に関する通知をお届けする場合があり、お客様の電話番号は株式会社LIFULLで一定期間保管されます
- ※株式会社LIFULLの個人情報の取扱い方針に同意のうえ、お電話ください
| 会社名 |
ホームトレードセンター株式会社 立川営業所 |
|---|---|
| 免許番号 | 国土交通大臣 (3) 第 8044 号 |
| 所在地 | 東京都立川市錦町1-8-13 シンテイタマビル101号室 |
| 所属団体 |
(公社)全日本不動産協会東京都本部 |
この物件にお問合せする
実際に物件・周辺環境を見て検討したい!
近隣建物や接道の状況など資料で分からない部分も一目瞭然。 まずはWEBで事前予約、スムーズに見学しましょう
ご予約無しに直接ご来場された場合、担当者不在であったり、
他のお客様のご案内の都合上、お待たせしてしまうことがございます。
不動産会社に電話で相談したい!
飯田グループホールディングス ホームトレードセンター(株)立川営業所
0037-618-40181
無料
電話でのお問合せは「LIFULL HOME'S(ライフルホームズ)を見て」とお伝えください
- ※携帯電話はご利用いただけます
- ※光IP電話、及びIP電話をご利用のお客様はTEL:042-847-8610へご連絡ください
- ※携帯電話からお問合せいただいた方には、ショートメッセージ(SMS)またはLINE通知メッセージによるお問合せ内容に関する通知をお届けする場合があり、お客様の電話番号は株式会社LIFULLで一定期間保管されます
- ※株式会社LIFULLの個人情報の取扱い方針に同意のうえ、お電話ください
LIFULL HOME'Sは物件鮮度No.1を目指していきます 物件情報に誤りがある場合はコチラからご連絡ください
- 【物件番号】
- 1706845-0001817
- ※完成後1年未満で未入居の物件を「新築」と表示しております。
- ※完成予想図やCG合成画像は、門塀・植栽・庭・外観等、実際とは多少異なる場合があります。














