新築一戸建て 飯田の分譲住宅 Livele Garden 三郷市早稲田7丁目2期
- 価格
- 3980万円
- 所在地
- 埼玉県三郷市早稲田7
- 交通
- JR武蔵野線「三郷」駅 徒歩18分JR武蔵野線「新三郷」駅 車2.8km流鉄流山線「平和台」駅 車2.7km
乗り換え案内
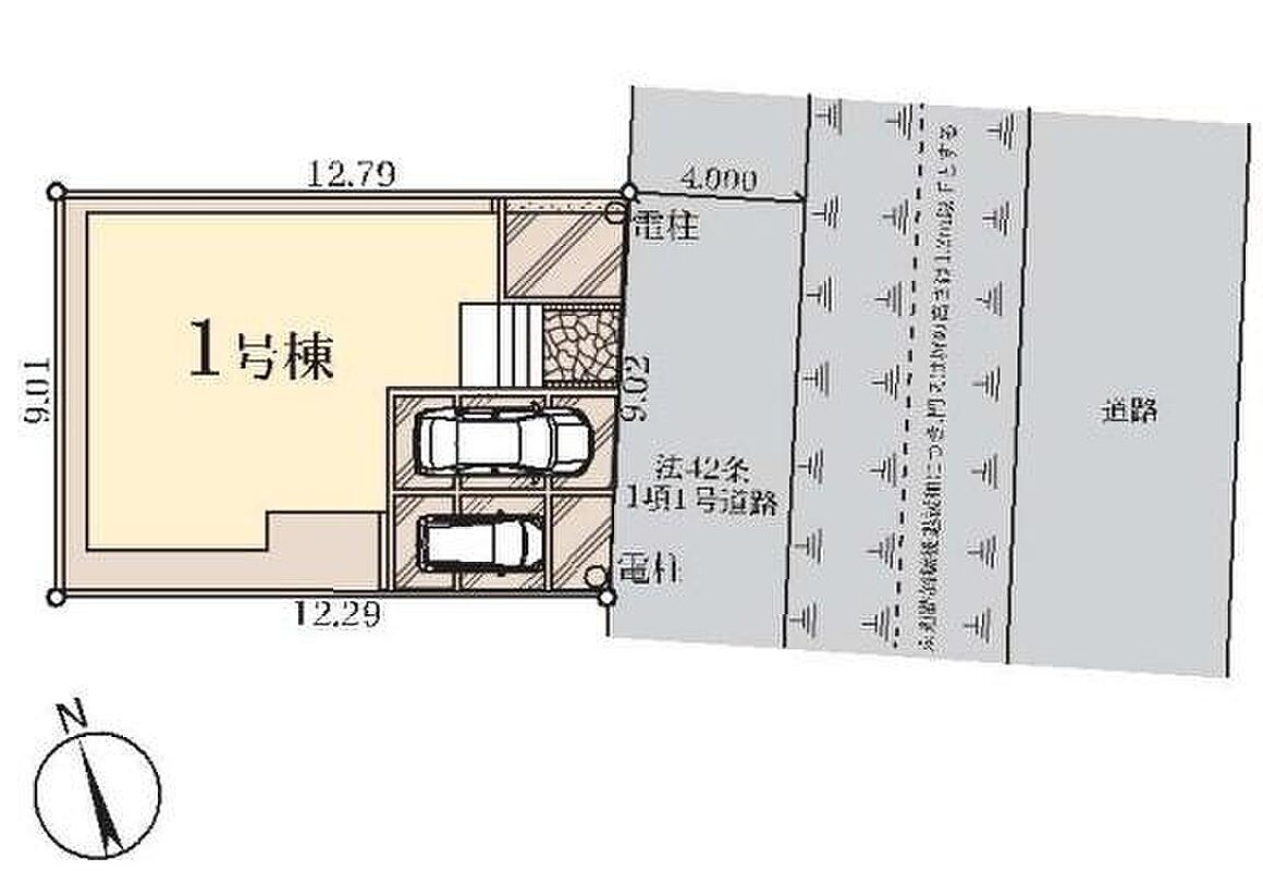
- 土地面積
- 113.05m2(34.19坪)
- 建物面積
- 96.88m2(29.30坪)
- 間取り
- 4LDK
【飯田GHDホームトレードセンター】本日ご見学できます!駐車場2台分完備
○アクセス
・JR武蔵野線「三郷」駅徒歩18分
○仕様設備
・南向きの広々バルコニー!日当たり良好
・洋服やバッグ、スーツケースや季節家電も収納できるWIC付
・雨の日のお洗濯も安心!浴室乾燥機完備
■住宅性能評価の6項目で最高等級を取得!■
耐震等級(倒壊・損傷等防止)・耐風等級・劣化対策等級
ホルムアルデヒド対策等級・維持管理対策等級
0037-618-81855
無料
魅力1 ~飯田グループ施工の地震に強い家!【住宅性能評価】全棟耐震最高等級取得!~
住宅性能評価の7項目で最高等級を取得しています!
~耐震等級(倒壊・損傷等防止)・耐風等級・劣化対策等級
ホルムアルデヒド対策等級・維持管理対策等級
一次エネルギー消費量等級~
魅力2 毎日の暮らしに便利が揃う、快適な住環境♪
【学校】
三郷市立前間小学校:徒歩13分(1000m)
三郷市立早稲田中学校:徒歩22分(1700m)
【幼稚園・保育園】
認定こども園いなほ幼稚園:徒歩4分(279m)
早稲田保育所:徒歩8分(624m)
【買い物】
おっ母さん食品館三郷店:徒歩7分(500m)
業務スーパー三郷店:徒歩14分(1084m)
ファミリーマート三郷早稲田七丁目店:徒歩8分(586m)
マツモトキヨシ早稲田団地店:徒歩8分(572m)
【病院】
三郷中央総合病院:徒歩40分(3200m)
【その他】
三郷丹後郵便局:徒歩9分(709m)
三郷市立早稲田図書館:徒歩12分(906m)
魅力3 成約頂いた方の新生活をサポートするサイト『すまいーだPLUS』をご用意
■住宅情報サイト『すまいーだ』
全国の最新物件情報を、いつでも、どこでも閲覧していただけます。
住まいへのこだわりを発見する『自分軸診断』や『住宅タイプ診断』、『住まい探しガイド』で理想の住まい探しをサポートいたします。
■新生活をサポートする『すまいーだPLUS』
アフターフォロー・メンテナンスやリフォームなど住まいに役立つ情報はもちろん、生活必需品・家電・家具・レジャーなど多彩な商品をラインナップしています。
■ホームトレードセンター株式会社
飯田グループホールディングス6社の新着物件情報をスピーディにご提供可能です。取扱物件数が多いため、お客様の選択肢を豊富に取り揃えています。
0037-618-81855
無料
間取り図
0037-618-81855
無料
内観・室内
間取り・内観のこだわりポイント
- LDK15帖以上
- 4LDK以上
- バリアフリー
- 和室
- 屋上・ルーフバルコニー
- ワイドバルコニー
- 南面バルコニー
- 全室2面採光
0037-618-81855
無料
設備・仕様
-
【省エネ性能ラベル】
こちらの物件はZEH水準を満たした、省エ...
-
【カースペース2台】
カースペースが2台分ございますので、家族...
-
【人感センサー付きライト】
人を感知するとパッと明るく点灯します。自...
-
【ルーフバルコニー】
下の階の屋根部分に作られたバルコニーです...
-
【ウォークインクローゼット】
お子様との思い出もたっぷりしまえるウォー...
-
【浴室換気乾燥機】
雨の日や冬場のお洗濯に嬉しい装備。洗濯物...
-
日本の風土に調和する伝統的な「木造軸組工...
常に呼吸し、気候の変化に合わせて微妙に伸...
-
横揺れに強い「剛床工法」を採用
構造用面材を土台と梁に直接留めつける工法...
-
最新技術「基礎パッキン工法」で床下の湿気...
従来の1.5~2倍の換気性能を発揮。さら...
設備・仕様のこだわりポイント
- キッチン
-
- カウンターキッチン
- 浄水器・活水器
- 収納
-
- 床下収納
- ウォークインクローゼット
- 全居室収納
- その他設備
-
- 都市ガス
- シャワー付洗面化粧台
- 温水洗浄便座
- 浴室乾燥機
- トイレ2ヶ所以上
- 節水型トイレ
- 複層ガラス採用(二重サッシ・防犯サッシ等)
- 省エネ給湯器
- TVモニタ付インターホン
省エネ性能
- エネルギー消費性能:★★★(削減率20%達成)
- 断熱性能:5段階/7段階 ※「省エネ性能ラベル」は特定の住戸の性能を示し、全ての住戸の性能を示していない場合があります。
0037-618-81855
無料
外観・分譲地
外観・分譲地のこだわりポイント
- 駐車場あり
- 地盤調査済
- 整形地
- 平坦地
0037-618-81855
無料
周辺環境・地図
周辺環境のこだわりポイント
- スーパー 800m以内
- 保育園・幼稚園 400m以内
- 複数路線
0037-618-81855
無料
物件概要
| 所在地 | 埼玉県三郷市早稲田7 | ||
|---|---|---|---|
| 交通 |
JR武蔵野線「三郷」駅 徒歩18分 JR武蔵野線「新三郷」駅 車2.8km 流鉄流山線「平和台」駅 車2.7km |
||
| 販売価格 | 3980万円 | 最多価格帯 | - |
| 建物面積 | 96.88m2(29.30坪) | 土地面積 | 113.05m2(34.19坪) |
| 間取り | 4LDK | 建物構造 | 木造2階建 |
| 販売スケジュール | 販売中 | ||
| 販売戸数 / 総戸数 | 1戸 / 1戸 | ||
| 完成予定日 | 2026年2月 | 引き渡し可能年月 | 即引渡可 |
| 駐車場 | 2台 | 道路の幅員 | 道路幅:4m、アスファルト舗装、南東側4m公道 |
| 用途地域 | 第一種中高層住居専用地域 | 都市計画 | - |
| 地目 | 宅地 | 国土法 | - |
| 土地の権利 | 所有権 | 借地権の種類・期間 | - |
| 主たる設備の概要 | 東京電力・都市ガス・公営水道・本下水 | 建築確認番号 | 第25UDI1W建06333号 |
| 施工会社 | - | 機構融資 | - |
| 売主 | 取引態様 | 飯田グループホールディングス ホームトレードセンター(株)亀有店<仲介> | |
| 備考 |
【その他制限事項】 文化財保護法による規制有、景観法による規制有、河川法による規制有、宅地造成工事規制区域、法第22条区域、容積率:前面道路幅員制限 ~~~~~◇◆ 現地見学ツアー開催!◆◇~~~~~ (事前に必ずお問い合わせください) ▽貴重なお時間の中でご希望の情報をご提供します▽ 【内容(所要時間)】 (1) さくっと見学コース (30分~) (2) じっくり見学コース (60分~) (3) 納得見学コース (90分~) (4) まずは住宅ローン相談 (30分~) ※ファイナンシャルプランナーによる無料相談も開催 【資料請求(無料)】【電話で問い合わせ(無料)】から、 お日にち・時間帯のご指定が可能です! 平日やお仕事前・後のご見学もお待ちしております♪ ◇◆◇◆◇◆◇◆◇◆◇◆◇◆◇◆◇◆◇◆◇◆◇◆ |
||
| 情報更新日 | 2026/05/11 | 次回更新予定日 | 2026/05/25 |
| 取引条件有効期限 | 2027/03/31 | ||
住宅性能・販売概要・権利のこだわりポイント
- 所有権
- 瑕疵担保付き
- 耐震・制震・免震構造
- 長期優良住宅
- 設計住宅性能評価書
- フラット35・S適合証明書
- 即入居可
0037-618-81855
無料
取扱い不動産会社
スタッフからのコメント
- テレビCMでおなじみ【飯田グループHD販売専門スタッフ】
- 丁寧な接客を心掛け、小さなご要望・ご質問にも誠実にお応えします!お客様の身近な相談者になれるよう、心を込めてお手伝いさせていただきます!
【得意エリア】
東京23区、千葉県、埼玉県
【この物件について】
○●本日、ご見学可能です!●○南面に日当たりの良い広々バルコニーを設置☆収納力のあるWICも完備でお部屋をスッキリ保てます♪長期優良住宅&省エネに優れたBELS住宅♪是非お気軽にお問い合わせください!
杉浦 将義
ホームトレードセンター株式会社 亀有店の会社情報
お電話でのお問合せは「LIFULL HOME'S(ライフルホームズ)を見て」とお伝えください
飯田グループホールディングス ホームトレードセンター(株)亀有店
0037-618-81855
無料
- ※携帯電話はご利用いただけます
- ※光IP電話、及びIP電話をご利用のお客様はTEL:03-3602-7888へご連絡ください
- ※携帯電話からお問合せいただいた方には、ショートメッセージ(SMS)またはLINE通知メッセージによるお問合せ内容に関する通知をお届けする場合があり、お客様の電話番号は株式会社LIFULLで一定期間保管されます
- ※株式会社LIFULLの個人情報の取扱い方針に同意のうえ、お電話ください
| 会社名 |
ホームトレードセンター株式会社 亀有店 |
|---|---|
| 免許番号 | 国土交通大臣 (2) 第 8044 号 |
| 所在地 | 東京都葛飾区亀有1-28-8 |
| 所属団体 |
(公社)東京都宅地建物取引業協会 |
この物件にお問合せする
実際に物件・周辺環境を見て検討したい!
近隣建物や接道の状況など資料で分からない部分も一目瞭然。 まずはWEBで事前予約、スムーズに見学しましょう
ご予約無しに直接ご来場された場合、担当者不在であったり、
他のお客様のご案内の都合上、お待たせしてしまうことがございます。
不動産会社に電話で相談したい!
飯田グループホールディングス ホームトレードセンター(株)亀有店
0037-618-81855
無料
電話でのお問合せは「LIFULL HOME'S(ライフルホームズ)を見て」とお伝えください
- ※携帯電話はご利用いただけます
- ※光IP電話、及びIP電話をご利用のお客様はTEL:03-3602-7888へご連絡ください
- ※携帯電話からお問合せいただいた方には、ショートメッセージ(SMS)またはLINE通知メッセージによるお問合せ内容に関する通知をお届けする場合があり、お客様の電話番号は株式会社LIFULLで一定期間保管されます
- ※株式会社LIFULLの個人情報の取扱い方針に同意のうえ、お電話ください
LIFULL HOME'Sは物件鮮度No.1を目指していきます 物件情報に誤りがある場合はコチラからご連絡ください
- 【物件番号】
- 1706710-0001927
- ※完成後1年未満で未入居の物件を「新築」と表示しております。
- ※完成予想図やCG合成画像は、門塀・植栽・庭・外観等、実際とは多少異なる場合があります。
物件を再検索する
埼玉県の人気エリアから新築一戸建てを探す
- 川越市
- 熊谷市
- 川口市
- 行田市
- 秩父市
- 所沢市
- 飯能市
- 加須市
- 本庄市
- 東松山市
- 春日部市
- 狭山市
- 羽生市
- 鴻巣市
- 深谷市
- 上尾市
- 草加市
- 越谷市
- 蕨市
- 戸田市
- 入間市
- 朝霞市
- 志木市
- 和光市
- 新座市
- 桶川市
- 久喜市
- 北本市
- 八潮市
- 富士見市
- 蓮田市
- 坂戸市
- 幸手市
- 鶴ヶ島市
- 日高市
- 吉川市
- ふじみ野市
- 白岡市
- 北足立郡伊奈町
- 入間郡三芳町
- 入間郡毛呂山町
- 入間郡越生町
- 比企郡滑川町
- 比企郡嵐山町
- 比企郡小川町
- 比企郡川島町
- 比企郡吉見町
- 比企郡鳩山町
- 比企郡ときがわ町
- 秩父郡横瀬町
- 秩父郡皆野町
- 秩父郡小鹿野町
- 児玉郡美里町
- 児玉郡神川町
- 児玉郡上里町
- 大里郡寄居町
- 南埼玉郡宮代町
- 北葛飾郡杉戸町
- 北葛飾郡松伏町














