新築一戸建て アールギャラリー天白区梅が丘の家6期
●完成済
●長期優良住宅●ZEH水準●3台駐車可能●IOT対応スマートハウス●EVコンセント●宅配BOX
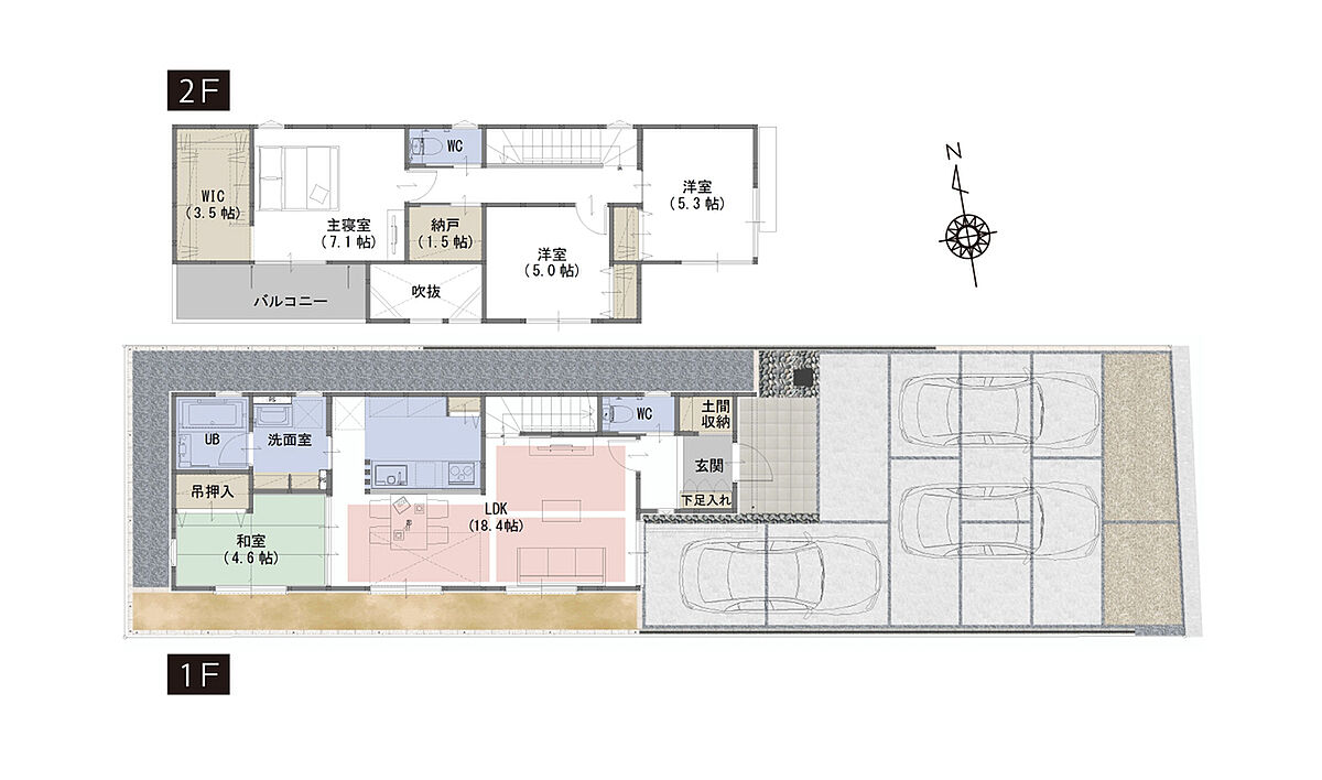
■豊富な収納
WIC、納戸、土間収納など生活スタイルに合わせて住空間を確保
■コミュニケーションがとりやすい空間設計
リビングを見渡せる対面式キッチンだからお子様がいても安心
■耐震等級3
地震に強く安心して住める耐震等級最高レベル
■吹付断熱
夏は冷気を逃がさず、冬は室温を逃さない省エネ快適な家
■アフターメンテナンス
無料定期点検(1年、2年、5年、10年) 最長60年保証
0037-618-05622
無料
間取り図
0037-618-05622
無料
内観・室内
間取り・内観のこだわりポイント
- LDK15帖以上
- 4LDK以上
- 吹き抜け
- 和室
- ワイドバルコニー
- 南面バルコニー
0037-618-05622
無料
設備・仕様
-
キッチン C号棟現地写真
■リクシル システムキッチン「ES」洗練...
-
浴室 C号棟現地写真
■リクシル システムバスルーム「AX」。...
-
トイレ C号棟現地写真
■INAX 「ベーシアピタ フチレス」。...
-
洗面 C号棟現地写真
■リクシル 「EV」。洗面器一体型カウン...
-
集成材軸組工法
集成材軸組工法とは、強度の高い集成材を使...
-
玄関電子キー
スマホを持っていればドアハンドルのボタン...
-
アルミ樹脂サッシ・複層ガラス
アルミと樹脂の複合構造を採用し、高い断熱...
-
吹き付け断熱
住宅の隅から隅まで家全体をスッポリと覆っ...
-
ガス温水式床暖房
ふく射熱効果で床からお部屋全体を温めます...
設備・仕様のこだわりポイント
- キッチン
-
- 食器洗い乾燥機
- 収納
-
- ウォークインクローゼット
- シューズクローク
- 全居室収納
- その他設備
-
- 都市ガス
- シャワー付洗面化粧台
- 温水洗浄便座
- 浴室乾燥機
- 浴室暖房
- トイレ2ヶ所以上
- 節水型トイレ
- 床暖房
- 複層ガラス採用(二重サッシ・防犯サッシ等)
- スマートキー
- 省エネ給湯器
- TVモニタ付インターホン
- 宅配ボックス
省エネ性能
- エネルギー消費性能:★★★(削減率20%達成)
- 断熱性能:5段階/7段階 ※「省エネ性能ラベル」は特定の住戸の性能を示し、全ての住戸の性能を示していない場合があります。
0037-618-05622
無料
外観・分譲地
外観・分譲地のこだわりポイント
- 駐車場あり
- 低層住宅地
- 地盤調査済
- 整形地
0037-618-05622
無料
周辺環境・地図
周辺情報
※半径4kmを超えると、周辺情報のアイコンは表示されません。
- ※不動産会社が入力した情報を基に物件の位置を表示しています。
- ※詳しくは不動産会社までお問合せください。
- ※地図上に表示される各種アイコンなどの情報は、おおよその所在地を表すものであり、物件・施設などの地点を保証するものではありません。
- ※地図の表示領域が広域になると周辺のお店・施設は表示できなくなります。
- ※地図、航空写真情報および地形ならびに周辺のお店・施設は、必ずしも現況を表すものではありません。
- ※物件から周辺のお店・施設までの距離は、利用が想定される道路を通行した場合の距離です。なお、必ずしも最短距離を保証するものではありません。
周辺環境のこだわりポイント
- 公園 400m以内
- 複数路線
0037-618-05622
無料
物件概要
| 所在地 | 愛知県名古屋市天白区梅が丘2丁目508番3 | ||
|---|---|---|---|
| 交通 |
名古屋市営鶴舞線「平針」駅 徒歩28分 名古屋市営鶴舞線「赤池」駅 くるりんバス「梅森台中」停 徒歩5分 乗車18分 |
||
| 販売価格 | 4,280万円 | 最多価格帯 | - |
| 建物面積 | 104.35m2 | 土地面積 | 169.29m2 |
| 間取り | 4LDK+S | 建物構造 | 木造2階建 |
| 販売スケジュール | 販売中 | ||
| 販売戸数 / 総戸数 | 1戸 / 2戸 | ||
| 完成予定日 | 2025年6月 | 引き渡し可能年月 | 即引渡可 |
| 駐車場 | 3台 | 道路の幅員 | 東側4.0m |
| 用途地域 | 第一種低層住居専用地域 | 都市計画 | 市街化区域 |
| 地目 | 宅地 | 国土法 | - |
| 土地の権利 | 所有権 | 借地権の種類・期間 | - |
| 主たる設備の概要 | 電気、公営水道、都市ガス | 建築確認番号 | 第R06確認建築愛建住セ24564号 |
| 施工会社 | - | 機構融資 | - |
| 売主 | 取引態様 | (株)アールプランナー不動産/仲介 | |
| 備考 | - | ||
| 情報更新日 | 2026/05/15 | 次回更新予定日 | 2026/05/29 |
| 取引条件有効期限 | 2026/12/31 | ||
住宅性能・販売概要・権利のこだわりポイント
- 所有権
- 瑕疵担保付き
- 長期優良住宅
- 即入居可
0037-618-05622
無料
取扱い不動産会社
スタッフからのコメント
- お気軽にご連絡下さい。
- 平日・土日問わず、お客様のご予定に合わせて、ご案内致します!
お気軽に「0120-316-772」へご連絡下さい!
24時間お電話受付中です!!
柳瀬 由宏
株式会社アールプランナー不動産の会社情報
お電話でのお問合せは「LIFULL HOME'S(ライフルホームズ)を見て」とお伝えください
(株)アールプランナー不動産 天白営業所
0037-618-05622
無料
- ※携帯電話はご利用いただけます
- ※光IP電話、及びIP電話をご利用のお客様はTEL:0120-316-772へご連絡ください
- ※携帯電話からお問合せいただいた方には、ショートメッセージ(SMS)またはLINE通知メッセージによるお問合せ内容に関する通知をお届けする場合があり、お客様の電話番号は株式会社LIFULLで一定期間保管されます
- ※株式会社LIFULLの個人情報の取扱い方針に同意のうえ、お電話ください
| 会社名 |
株式会社アールプランナー不動産 |
|---|---|
| 免許番号 | 国土交通大臣 (2) 第 9836 号 |
| 所在地 | 愛知県名古屋市東区東桜1-10-24 |
| 所属団体 |
東海不動産公正取引協議会 |
この物件にお問合せする
実際に物件・周辺環境を見て検討したい!
近隣建物や接道の状況など資料で分からない部分も一目瞭然。 まずはWEBで事前予約、スムーズに見学しましょう
ご予約無しに直接ご来場された場合、担当者不在であったり、
他のお客様のご案内の都合上、お待たせしてしまうことがございます。
不動産会社に電話で相談したい!
(株)アールプランナー不動産 天白営業所
0037-618-05622
無料
電話でのお問合せは「LIFULL HOME'S(ライフルホームズ)を見て」とお伝えください
- ※携帯電話はご利用いただけます
- ※光IP電話、及びIP電話をご利用のお客様はTEL:0120-316-772へご連絡ください
- ※携帯電話からお問合せいただいた方には、ショートメッセージ(SMS)またはLINE通知メッセージによるお問合せ内容に関する通知をお届けする場合があり、お客様の電話番号は株式会社LIFULLで一定期間保管されます
- ※株式会社LIFULLの個人情報の取扱い方針に同意のうえ、お電話ください
LIFULL HOME'Sは物件鮮度No.1を目指していきます 物件情報に誤りがある場合はコチラからご連絡ください
- 【物件番号】
- 1706699-0000616
- ※完成後1年未満で未入居の物件を「新築」と表示しております。
- ※完成予想図やCG合成画像は、門塀・植栽・庭・外観等、実際とは多少異なる場合があります。
物件を再検索する
名古屋市の人気エリアから新築一戸建てを探す





