新築一戸建て 【サーラ住宅】サーラタウンプレステージ知多半田駅南
この物件は未完成のため、掲載写真(外観、内観、設備等)には、施工例が含まれている場合があります。物件詳細については、掲載の不動産会社宛にお問合せください。
3次建売スタート。名鉄河和線「知多半田駅(特急停車)」徒歩11分 「成岩駅(急行停車)」徒歩7分・JR武豊線「半田駅」まで自転車5分
\公園・保育施設・小学校・中学校が近い!教育応援エリア/・半田同胞園みらいテラス(0歳児保育)徒歩3分 ・半田同胞園(私立保育園)徒歩3分・成岩小学校へ徒歩8分・成岩中学校へ徒歩6分
駅、学校、スーパー、ドラッグストア、クリニック、公園、チェーン系飲食店が徒歩圏に充実!車を持たない選択ができる好立地です。
0037-618-96493
無料
魅力1 3次分譲スタート
0037-618-96493
無料
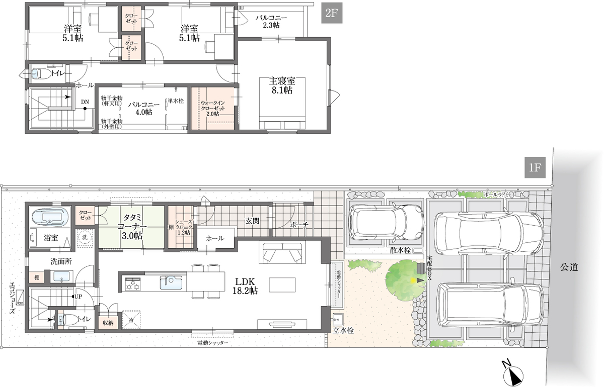
間取り図
0037-618-96493
無料
内観・室内
間取り・内観のこだわりポイント
- LDK15帖以上
- 吹き抜け
- 全室フローリング
0037-618-96493
無料
設備・仕様
-
システムキッチン「ステディア」
タッチレス水栓、ビルトイン深型食洗器、ガ...
-
システムバス
バスルームの入口は段差のないバリアフリー...
-
シャワー付き洗面台
ワイドなミラー付き洗面台。出水ノズルが上...
-
多機能トイレ
1階と2階にトイレを設置。1階トイレはタ...
-
50年点検・50年保証
最大50年に渡り13回の訪問点検(無料)...
-
長期優良住宅認定取得
耐震等級3(最高等級)、劣化対策等級3(...
-
太陽光発電「サーラのゼロソーラー」搭載
太陽光発電「サーラのゼロソーラーサービス...
-
電動シャッター CPガラス
1階の主要な窓には電動シャッターを標準装...
-
24時間受付対応 緊急ダイヤル
24時間体制で担当者とつながる「緊急ダイ...
設備・仕様のこだわりポイント
- キッチン
-
- 食器洗い乾燥機
- 浄水器・活水器
- ガスコンロ
- 収納
-
- シューズクローク
- パントリー
- その他設備
-
- 都市ガス
- シャワー付洗面化粧台
- 温水洗浄便座
- 浴室乾燥機
- 浴室暖房
- トイレ2ヶ所以上
- 節水型トイレ
- 床暖房
- 複層ガラス採用(二重サッシ・防犯サッシ等)
- スマートキー
- 省エネ給湯器
- 電動シャッター
- TVモニタ付インターホン
- 宅配ボックス
- EV充電設備
- 外断熱
0037-618-96493
無料
外観・分譲地
外観・分譲地のこだわりポイント
- 駐車場あり
- 総戸数・総区画数が10以上〜30未満
- 地盤調査済
- 前面道路6m以上
0037-618-96493
無料
周辺環境・地図
周辺情報
※半径4kmを超えると、周辺情報のアイコンは表示されません。
- ※不動産会社が入力した情報を基に物件の位置を表示しています。
- ※詳しくは不動産会社までお問合せください。
- ※地図上に表示される各種アイコンなどの情報は、おおよその所在地を表すものであり、物件・施設などの地点を保証するものではありません。
- ※地図の表示領域が広域になると周辺のお店・施設は表示できなくなります。
- ※地図、航空写真情報および地形ならびに周辺のお店・施設は、必ずしも現況を表すものではありません。
- ※物件から周辺のお店・施設までの距離は、利用が想定される道路を通行した場合の距離です。なお、必ずしも最短距離を保証するものではありません。
-
【車・交通】
知多半田駅 (820m 徒歩11分)
知多半田駅か名古屋駅まで30~40分
-
【レジャー】
こうせい公園 (540m 徒歩7分)
散歩やお子様を連れてゆったりとした休日を過ごしていただくのに便...
-
【買い物】
クスリのアオキ 成岩店 (390m 徒歩5分)
お仕事終わりに寄っていただきやすい立地
-
【学校】
成岩小学校 (590m 徒歩8分)
小学生のお子様が通学していただくのに安心の距離
-
【その他】
協和保育園 (850m 徒歩11分)
ちょっとした家事の間にお子様の送り迎えができます
-
【買い物】
クラシティ半田 (810m 徒歩11分)
買い物にも便利 フリーマーケットなどのイベントが開催される商業...
-
案内図
-
交通図
周辺環境のこだわりポイント
- 小学校 800m以内
- 公園 400m以内
- 中学校 800m以内
- 保育園・幼稚園 400m以内
- 複数路線
0037-618-96493
無料
物件概要
| 所在地 | 愛知県半田市栄町1丁目2、8 | ||
|---|---|---|---|
| 交通 |
名鉄河和線「知多半田」駅 徒歩10分~11分 /特急停車/名古屋駅まで直通34~38分 名鉄河和線「成岩」駅 徒歩6分~7分 /急行停車/無料駐輪所あり/駅横にスーパー JR武豊線「半田」駅 /無料駐輪場有り/駅舎新築中/高架工事中 |
||
| 販売価格 | 3,988万円~4,467万円(税・外構工事費込み) | 最多価格帯 | - |
| 建物面積 | 103.52m2(31.31坪)~106.83m2(32.31坪) | 土地面積 | 143.32m2(43.35坪)~148.23m2(44.83坪) |
| 間取り | 3LDK+2S | 建物構造 | 木造軸組み工法二階建て |
| 販売スケジュール | 販売中 | ||
| 販売戸数 / 総戸数 | 4戸 / 15戸 | ||
| 完成予定日 | 2026年6月(No2) 2026年11月(No3 No4) | 引き渡し可能年月 | 即入居可 No12 |
| 駐車場 | 2台 | 道路の幅員 | 東側6.3m 西側5.0m |
| 用途地域 | 第一種住居地域 | 都市計画 | - |
| 地目 | 宅地 | 国土法 | - |
| 土地の権利 | 所有権 | 借地権の種類・期間 | - |
| 主たる設備の概要 | 電気(中部電力パワーグリッド)、都市ガス(東邦ガスネットワーク)、公共上水道、公営下水道 | 建築確認番号 | 確認サービス第KS124-0410-56914号(No,7号棟)他 |
| 施工会社 | - | 機構融資 | - |
| 売主 | サーラ住宅株式会社 [国土交通大臣(12)第2744号] | 取引態様 | サーラ住宅株式会社(売主) |
| 備考 | - | ||
| 情報更新日 | 2026/05/11 | 次回更新予定日 | 2026/05/25 |
| 取引条件有効期限 | 2026/06/30 | ||
住宅性能・販売概要・権利のこだわりポイント
- 所有権
- 瑕疵担保付き
- 仲介手数料不要
- 売主・代理
- 耐震・制震・免震構造
- 長期優良住宅
- 即入居可
0037-618-96493
無料
取扱い不動産会社
サーラ住宅株式会社 知立営業所の会社情報
お電話でのお問合せは「LIFULL HOME'S(ライフルホームズ)を見て」とお伝えください
サーラ住宅知立営業所
0037-618-96493
無料
- ※携帯電話はご利用いただけます
- ※光IP電話、及びIP電話をご利用のお客様はTEL:0120-571-702へご連絡ください
- ※携帯電話からお問合せいただいた方には、ショートメッセージ(SMS)またはLINE通知メッセージによるお問合せ内容に関する通知をお届けする場合があり、お客様の電話番号は株式会社LIFULLで一定期間保管されます
- ※株式会社LIFULLの個人情報の取扱い方針に同意のうえ、お電話ください
| 会社名 |
サーラ住宅株式会社 知立営業所 |
|---|---|
| 免許番号 | 国土交通大臣 (12) 第 2744 号 |
| 所在地 | 愛知県知立市鳥居1-1-17 サーラプラザ知立3階 |
| 所属団体 |
東海不動産公正取引協議会 |
この物件にお問合せする
実際に物件・周辺環境を見て検討したい!
近隣建物や接道の状況など資料で分からない部分も一目瞭然。 まずはWEBで事前予約、スムーズに見学しましょう
ご予約無しに直接ご来場された場合、担当者不在であったり、
他のお客様のご案内の都合上、お待たせしてしまうことがございます。
不動産会社に電話で相談したい!
サーラ住宅知立営業所
0037-618-96493
無料
電話でのお問合せは「LIFULL HOME'S(ライフルホームズ)を見て」とお伝えください
- ※携帯電話はご利用いただけます
- ※光IP電話、及びIP電話をご利用のお客様はTEL:0120-571-702へご連絡ください
- ※携帯電話からお問合せいただいた方には、ショートメッセージ(SMS)またはLINE通知メッセージによるお問合せ内容に関する通知をお届けする場合があり、お客様の電話番号は株式会社LIFULLで一定期間保管されます
- ※株式会社LIFULLの個人情報の取扱い方針に同意のうえ、お電話ください
LIFULL HOME'Sは物件鮮度No.1を目指していきます 物件情報に誤りがある場合はコチラからご連絡ください
- 【物件番号】
- 1706647-0000083
- ※完成後1年未満で未入居の物件を「新築」と表示しております。
- ※完成予想図やCG合成画像は、門塀・植栽・庭・外観等、実際とは多少異なる場合があります。
物件を再検索する
愛知県の人気エリアから新築一戸建てを探す






