新築一戸建て サーラガーデン三ツ相町II
● 通勤・生活に便利な立地
国道・主要道路へのアクセスが良く、通勤やお出かけもスムーズ。周辺には買い物施設や生活利便施設が揃い、毎日の暮らしやすさを実感できる分譲地です。
● 家族にうれしいゆとりの住まい
全棟3LDKの使いやすい間取り。LDKを中心に家族が自然と集まり、収納や動線にも配慮した、子育て世帯にも暮らしやすい住まいです。
● 安心・快適を支える充実仕様
長期優良住宅認定、断熱性に配慮した仕様、防犯ガラスなどを採用。毎日の快適さはもちろん、将来を見据えた安心の住まいを実現しています。
0037-618-51386
無料
魅力1 家族が心地よく過ごせる、明るいLDK
○家族が自然と集まるLDKは、
リビング・ダイニング・キッチンがゆるやかにつながる開放的な空間。
○対面キッチンからリビングやダイニングを見渡せるため、
料理中も家族との会話を楽しめます。
○家具を置いてもゆとりを感じられる広さで、
くつろぎの時間も、家事の時間も心地よく過ごせます。
○No.1号棟・No.2号棟ともに、
それぞれ異なる内装テイストを楽しめる住まいです。
魅力2 家事をスムーズにする水回りと収納計画
○洗面・脱衣・浴室がまとまった水回りは、
毎日の身支度や洗濯がしやすい配置。
○室内干しに便利なスペースもあり、
雨の日や花粉の時期にも重宝します。
○ウォークインクローゼットやLDK収納など、
使う場所に合わせた収納を確保。
○日用品や衣類、季節物をすっきり片付けられるため、
住まい全体をきれいに保ちやすい設計です。
魅力3 落ち着いた街並みに映える2邸の住まい
○白×ブラックのすっきりとしたNo.1号棟、
グレーを基調とした落ち着きあるNo.2号棟。
○それぞれ異なる外観デザインながら、
街並みに調和する統一感のある佇まいです。
○宅配BOXを備え、不在時の荷物受け取りにも便利。
○駐車スペースにもゆとりがあり、
日々の車移動や来客時にも使いやすい住まいです。
0037-618-51386
無料
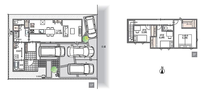
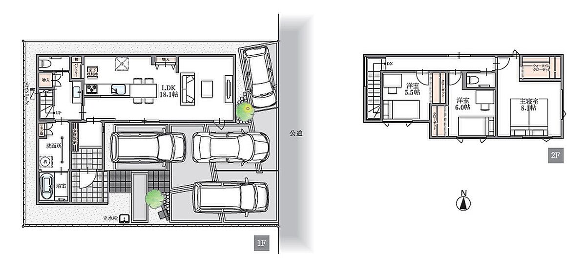
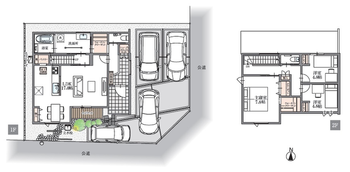
間取り図
0037-618-51386
無料
内観・室内
-
【No.1号棟 ダイニング】
明るい窓辺にダイニングを配置。
キッチンと近く、食事の準備や片...
-
【No.1号棟 ダイニング・パントリー】
キッチン奥には、食品や日用品の収納に便利なパントリーを配置。
...
-
【No.1号棟 キッチン】
木目調のキッチンが空間にあたたかみを添えます。
リビング・ダイ...
-
【No.2号棟 キッチン・LDK収納】
キッチン横に収納を備えた、使い勝手のよいLDK。
食品ストック...
-
【No.1号棟 主寝室】
グレーのアクセントクロスが落ち着いた印象の主寝室。
ゆとりある...
-
【No.1号棟 ウォークインクローゼット】
衣類や季節物をまとめて収納できるウォークインクローゼット。
居...
間取り・内観のこだわりポイント
- LDK15帖以上
- バリアフリー
- 全室フローリング
0037-618-51386
無料
設備・仕様
-
クリナップ STEDIA キッチン
上質なマット扉と美しい人工大理石シンクが...
-
LIXIL AXシリーズ バスルーム(1...
浴び心地と節水性を兼ね備えたシャワーや、...
-
LIXIL EVシリーズ 洗面化粧台(W...
水ハネを防ぐキレイアップカウンターと、汚...
-
LIXIL ベーシア ハーモL(1F)/...
1階は清掃性と快適性に優れた「ベーシア ...
-
耐震等級3(最高ランク)
耐震等級3は建築基準法(等級1)の1.5...
-
長期優良住宅
国が定めた厳しい基準をクリアした快適な住...
-
断熱等級5 ZEH基準
高い断熱性能で光熱費を抑え、一年中快適な...
-
設備10年保証
毎日使う設備機器も安心の10年保証。出張...
-
24時間受付対応
アフターサービス専任チームと24時間緊急...
設備・仕様のこだわりポイント
- キッチン
-
- カウンターキッチン
- 食器洗い乾燥機
- 浄水器・活水器
- ガスコンロ
- 収納
-
- ウォークインクローゼット
- シューズクローク
- パントリー
- 全居室収納
- その他設備
-
- 都市ガス
- マイホーム発電システム
- シャワー付洗面化粧台
- 温水洗浄便座
- 浴室乾燥機
- 浴室暖房
- トイレ2ヶ所以上
- タンクレストイレ
- 節水型トイレ
- 複層ガラス採用(二重サッシ・防犯サッシ等)
- スマートキー
- 省エネ給湯器
- TVモニタ付インターホン
- 宅配ボックス
- EV充電設備
- 外断熱
省エネ性能
- エネルギー消費性能:★★★★★★(削減率50%達成)
- 断熱性能:5段階/7段階
- 目安光熱費:約11.8〜12万円/年 ※「省エネ性能ラベル」は特定の住戸の性能を示し、全ての住戸の性能を示していない場合があります。
0037-618-51386
無料
外観・分譲地
外観・分譲地のこだわりポイント
- 駐車場あり
- 地盤調査済
- 平坦地
0037-618-51386
無料
周辺環境・地図
周辺情報
※半径4kmを超えると、周辺情報のアイコンは表示されません。
- ※不動産会社が入力した情報を基に物件の位置を表示しています。
- ※詳しくは不動産会社までお問合せください。
- ※地図上に表示される各種アイコンなどの情報は、おおよその所在地を表すものであり、物件・施設などの地点を保証するものではありません。
- ※地図の表示領域が広域になると周辺のお店・施設は表示できなくなります。
- ※地図、航空写真情報および地形ならびに周辺のお店・施設は、必ずしも現況を表すものではありません。
- ※物件から周辺のお店・施設までの距離は、利用が想定される道路を通行した場合の距離です。なお、必ずしも最短距離を保証するものではありません。
周辺環境のこだわりポイント
- スーパー 800m以内
- 小学校 800m以内
- 公園 400m以内
- 保育園・幼稚園 400m以内
0037-618-51386
無料
物件概要
| 所在地 | 愛知県豊橋市三ツ相町249-7他 | ||
|---|---|---|---|
| 交通 |
JR飯田線「船町」駅 徒歩12分 豊鉄バス「吉川町」停 徒歩5分 |
||
| 販売価格 | 3,620万円・3,630万円 | 最多価格帯 | - |
| 建物面積 | 95.66m2・99.38m2 | 土地面積 | 145.28m2・145.73m2 |
| 間取り | 3LDK | 建物構造 | 木造軸組工法2階建 |
| 販売スケジュール | 販売中 | ||
| 販売戸数 / 総戸数 | 2戸 / 3戸 | ||
| 完成予定日 | 2026年4月 | 引き渡し可能年月 | 即引渡可 |
| 駐車場 | 3台 ~ 4台(3台(No.2号棟)、4台(No.1号棟)) | 道路の幅員 | 東側4m |
| 用途地域 | 準工業地域 | 都市計画 | 市街化区域 |
| 地目 | 宅地 | 国土法 | 日本 |
| 土地の権利 | 所有権 | 借地権の種類・期間 | - |
| 主たる設備の概要 | 電気(サーラeエナジー)、都市ガス(サーラE&L)、公共上下水道、雨水(側溝) | 建築確認番号 | 確認サービスKS125-0420-59568号他 |
| 施工会社 | サーラ住宅株式会社 | 機構融資 | - |
| 売主 | 取引態様 | 売主/サーラ住宅株式会社 | |
| 備考 | - | ||
| 情報更新日 | 2026/05/15 | 次回更新予定日 | 2026/05/29 |
| 取引条件有効期限 | 2026/06/30 | ||
住宅性能・販売概要・権利のこだわりポイント
- 所有権
- 瑕疵担保付き
- 仲介手数料不要
- 売主・代理
- 耐震・制震・免震構造
- 長期優良住宅
- 即入居可
0037-618-51386
無料
取扱い不動産会社
スタッフからのコメント
- 暮らしやすさにこだわった残り2邸
- ○サーラガーデン三ツ相町IIは、ご好評につき残り2邸となりました。
○家族が自然と集まるLDKを中心に、
対面キッチンや使いやすい水回り動線を採用。
○各所に収納を設け、日々の暮らしやすさにも配慮した住まいです。
○No.1号棟は白×ブラックのすっきりとした外観、
No.2号棟は落ち着いたグレー基調の外観が魅力。
○実際の広さや動線、内装の雰囲気をぜひ現地でご体感ください。
島岡 延広
サーラ住宅株式会社 豊川営業所の会社情報
お電話でのお問合せは「LIFULL HOME'S(ライフルホームズ)を見て」とお伝えください
サーラ住宅株式会社 豊川営業所
0037-618-51386
無料
- ※携帯電話はご利用いただけます
- ※光IP電話、及びIP電話をご利用のお客様はTEL:0120-845-734へご連絡ください
- ※携帯電話からお問合せいただいた方には、ショートメッセージ(SMS)またはLINE通知メッセージによるお問合せ内容に関する通知をお届けする場合があり、お客様の電話番号は株式会社LIFULLで一定期間保管されます
- ※株式会社LIFULLの個人情報の取扱い方針に同意のうえ、お電話ください
| 会社名 |
サーラ住宅株式会社 豊川営業所 |
|---|---|
| 免許番号 | 国土交通大臣 (12) 第 2744 号 |
| 所在地 | 愛知県豊川市豊川町知通63-1 サーラプラザ豊川内 |
| 所属団体 |
東海不動産公正取引協議会 |
この物件にお問合せする
実際に物件・周辺環境を見て検討したい!
近隣建物や接道の状況など資料で分からない部分も一目瞭然。 まずはWEBで事前予約、スムーズに見学しましょう
ご予約無しに直接ご来場された場合、担当者不在であったり、
他のお客様のご案内の都合上、お待たせしてしまうことがございます。
不動産会社に電話で相談したい!
サーラ住宅株式会社 豊川営業所
0037-618-51386
無料
電話でのお問合せは「LIFULL HOME'S(ライフルホームズ)を見て」とお伝えください
- ※携帯電話はご利用いただけます
- ※光IP電話、及びIP電話をご利用のお客様はTEL:0120-845-734へご連絡ください
- ※携帯電話からお問合せいただいた方には、ショートメッセージ(SMS)またはLINE通知メッセージによるお問合せ内容に関する通知をお届けする場合があり、お客様の電話番号は株式会社LIFULLで一定期間保管されます
- ※株式会社LIFULLの個人情報の取扱い方針に同意のうえ、お電話ください
LIFULL HOME'Sは物件鮮度No.1を目指していきます 物件情報に誤りがある場合はコチラからご連絡ください
- 【物件番号】
- 1706642-0000089
- ※完成後1年未満で未入居の物件を「新築」と表示しております。
- ※完成予想図やCG合成画像は、門塀・植栽・庭・外観等、実際とは多少異なる場合があります。
物件を再検索する
愛知県の人気エリアから新築一戸建てを探す
豊橋市の詳細町域から新築一戸建てを探す
- 曙町
- 旭本町
- 旭町
- 芦原町
- 東田中郷町
- 東田町
- 吾妻町
- 池見町
- 石巻西川町
- 飯村町
- 上地町
- 上野町
- 牛川町
- 牛川通
- 雲谷町
- 駅前大通
- 大岩町
- 大崎町
- 王ケ崎町
- 北側町
- 北山町
- 草間町
- 小池町
- 菰口町
- 三本木町
- 下地町
- 神野新田町
- 高師町
- 高洲町
- 忠興
- 立花町
- 伝馬町
- 東光町
- 豊岡町
- 中岩田
- 西岩田
- 錦町
- 西高師町
- 西七根町
- 西橋良町
- 西羽田町
- 西幸町
- 仁連木町
- 柱一番町
- 柱二番町
- 柱六番町
- 八町通
- 花田二番町
- 花田町
- 花中町
- 羽根井本町
- 羽根井町
- 東岩田
- 東小鷹野
- 東松山町
- 東幸町
- 東脇
- 日色野町
- 二川町
- 船渡町
- 船町
- 前田町
- 前畑町
- 牧野町
- 松井町
- 馬見塚町
- 三ツ相町
- 南牛川
- 南大清水町
- 三ノ輪町
- 向山台町
- 向山西町
- 牟呂町
- 弥生町
- 吉川町
- 多米西町
- 富士見台
- 飯村北
- 佐藤
- つつじが丘
- 牟呂公文町
- 牟呂外神町
- 東田町








