新築一戸建て 【セキスイハイム】スマートハイムプレイス八戸尻内町III
この物件は未完成のため、掲載写真(外観、内観、設備等)には、施工例が含まれている場合があります。物件詳細については、掲載の不動産会社宛にお問合せください。
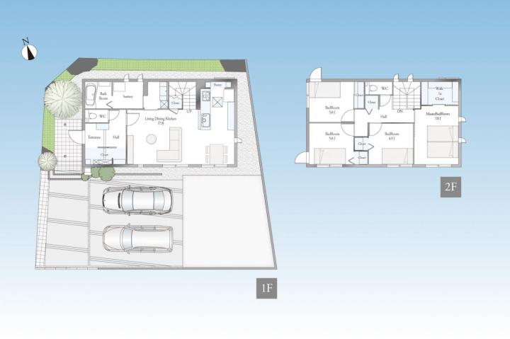
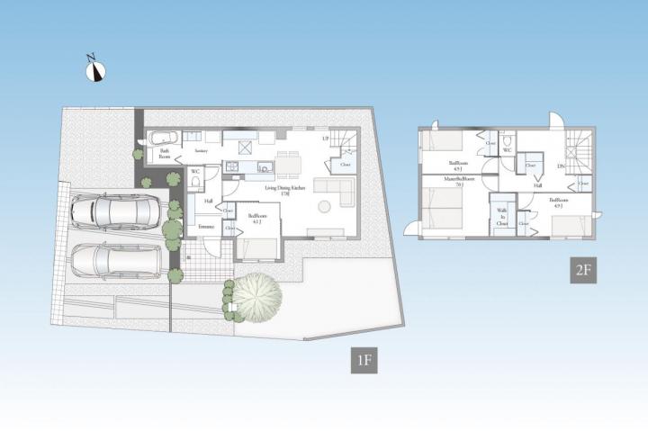
■鉄骨系住宅2棟 見どころポイント! 【A棟】4LDK+WIC ・来客用と家族用玄関は整理整頓しやすい空間。 ・洗面と脱衣室が分かれているのでご家族が入浴中でも気兼ねく洗面を使えます。
・2階の洋室3部屋は子供部屋や趣味部屋、書斎としても。 【B棟】4LDK+WIC ・水回りを回遊できるプラン。 ・1階洋室は客間だけでなく将来の主寝室にも◎
・2階ホールは共有スペースやサンルームとしても活用可能です。 資料請求受付中です!お気軽にお問合せください♪
0037-618-59533
無料
間取り図
0037-618-59533
無料
内観・室内
間取り・内観のこだわりポイント
- 4LDK以上
- 全室フローリング
0037-618-59533
無料
設備・仕様
設備・仕様のこだわりポイント
- キッチン
-
- IHコンロ
- カウンターキッチン
- 収納
-
- 床下収納
- ウォークインクローゼット
- その他設備
-
- オール電化
- マイホーム発電システム
- トイレ2ヶ所以上
- 複層ガラス採用(二重サッシ・防犯サッシ等)
- スマートキー
- TVモニタ付インターホン
- 宅配ボックス
- EV充電設備
- マイホーム発電システム
- 太陽光発電システム、蓄電池
省エネ性能
-
※「省エネ性能ラベル」は特定の住戸の性能を示し、全ての住戸の性能を示していない場合があります。
0037-618-59533
無料
外観・分譲地
外観・分譲地のこだわりポイント
- 駐車場あり
- 角地
- 整形地
- 前面道路6m以上
- 平坦地
0037-618-59533
無料
周辺環境・地図
周辺情報
※半径4kmを超えると、周辺情報のアイコンは表示されません。
- ※不動産会社が入力した情報を基に物件の位置を表示しています。
- ※詳しくは不動産会社までお問合せください。
- ※地図上に表示される各種アイコンなどの情報は、おおよその所在地を表すものであり、物件・施設などの地点を保証するものではありません。
- ※地図の表示領域が広域になると周辺のお店・施設は表示できなくなります。
- ※地図、航空写真情報および地形ならびに周辺のお店・施設は、必ずしも現況を表すものではありません。
- ※物件から周辺のお店・施設までの距離は、利用が想定される道路を通行した場合の距離です。なお、必ずしも最短距離を保証するものではありません。
-
【その他】
三条保育園 (約1640~1670m 徒歩21分)
定員75名(乳児から就学前児童を対象)
-
【学校】
三条小学校 (約1490~1520m 徒歩19分)
創立149年目の市立小学校。児童数約396名(2025年4月時...
-
【学校】
三条中学校 (約1090~1120m 徒歩14分)
生徒数約267名の公立中学校。(2025年度時点)
-
【車・交通】
JR八戸駅 (約1160~1190m 徒歩15分)
市営バス乗り場もある通勤通学に便利な最寄り駅。東北新幹線の停車...
-
【買い物】
マエダストア三条店 (約1580~1610m 徒歩20~21分)
普段の買い出しに便利なショッピング施設。営業時間/9:00~2...
-
【買い物】
薬王堂八戸市尻内町店 (約1700~1730m 徒歩22分)
医療品や日用品の買い出しに。営業時間/8:00~22:00
-
案内図
周辺環境のこだわりポイント
- 複数路線
0037-618-59533
無料
物件概要
| 所在地 | 青森県八戸市大字尻内町字中根市 | ||
|---|---|---|---|
| 交通 |
JR八戸線「八戸」駅 徒歩15分 |
||
| 販売価格 | 4998~5110万円 | 最多価格帯 | 4998万円(1戸)、5110万円(1戸) |
| 建物面積 | 101.75m2~107.94m2 | 土地面積 | 188.00m2 |
| 間取り | 4LDK~4LDK | 建物構造 | 2階建て 構造:軽量鉄骨 工法:ユニット工法 |
| 販売スケジュール | - | ||
| 販売戸数 / 総戸数 | 2戸 / 4戸 | ||
| 完成予定日 | 2026/05 | 引き渡し可能年月 | 相談 |
| 駐車場 | 2台 | 道路の幅員 | 6.00m ~ 20.00m |
| 用途地域 | 第1種住居地域 | 都市計画 | 市街化区域 |
| 地目 | 地目:宅地 | 国土法 | - |
| 土地の権利 | 所有権 | 借地権の種類・期間 | - |
| 主たる設備の概要 | 無、公営水道、公共下水、東北電力・八戸市営上下水道・オール電化(建物・敷地へのガス管の引き込みはありません。) | 建築確認番号 | 第ERI-25038747号他 |
| 施工会社 | - | 機構融資 | - |
| 売主 | セキスイハイム東北株式会社 | 取引態様 | セキスイハイム東北株式会社(売主) |
| 備考 |
○総区画数:4区画(内分譲住宅2棟、条件付き宅地2区画) ○所在地:青森県八戸市大字尻内町字中根市1番9他(仮換地 八戸都市計画事業八戸駅西土地区画整理事業施行地区内 街区番号117街区1-2符号他) ○引渡時期:農地転用届出受理後 ○備考:備考:記載の販売価格には、土地、建物価格、外構(駐車場、門柱、植栽等)を含みます。建物価格には消費税10%を含みます。自動車・その他の備品は含まれません。記載の建物面積は未登記のため建築確認申請の面積に依ります。記載の間取図・パース図は概略図のため、実際と異なる場合があります。建築にあたり、当販売団地におけるガイドラインに沿った建築をしております。間取図に記載の家具は現状と異なります。 |
||
| 情報更新日 | 2026/05/25 | 次回更新予定日 | 2026/06/01 |
| 取引条件有効期限 | 2026/06/08 | ||
住宅性能・販売概要・権利のこだわりポイント
- 所有権
- 仲介手数料不要
- 売主・代理
0037-618-59533
無料
取扱い不動産会社
セキスイハイム東北株式会社の会社情報
お電話でのお問合せは「LIFULL HOME'S(ライフルホームズ)を見て」とお伝えください
セキスイハイム東北株式会社 北東北支店 青森営業所
0037-618-59533
無料
- ※携帯電話はご利用いただけます
- ※光IP電話、及びIP電話をご利用のお客様はTEL:017-729-2816へご連絡ください
- ※携帯電話からお問合せいただいた方には、ショートメッセージ(SMS)またはLINE通知メッセージによるお問合せ内容に関する通知をお届けする場合があり、お客様の電話番号は株式会社LIFULLで一定期間保管されます
- ※株式会社LIFULLの個人情報の取扱い方針に同意のうえ、お電話ください
| 会社名 |
セキスイハイム東北株式会社 |
|---|---|
| 免許番号 | 国土交通大臣 (9) 第 3749 号 |
| 所在地 | 宮城県仙台市宮城野区榴岡3丁目4番1号アゼリアヒルズ14F |
| 所属団体 |
東北地区不動産公正取引協議会 |
この物件にお問合せする
実際に物件・周辺環境を見て検討したい!
近隣建物や接道の状況など資料で分からない部分も一目瞭然。 まずはWEBで事前予約、スムーズに見学しましょう
ご予約無しに直接ご来場された場合、担当者不在であったり、
他のお客様のご案内の都合上、お待たせしてしまうことがございます。
不動産会社に電話で相談したい!
セキスイハイム東北株式会社 北東北支店 青森営業所
0037-618-59533
無料
電話でのお問合せは「LIFULL HOME'S(ライフルホームズ)を見て」とお伝えください
- ※携帯電話はご利用いただけます
- ※光IP電話、及びIP電話をご利用のお客様はTEL:017-729-2816へご連絡ください
- ※携帯電話からお問合せいただいた方には、ショートメッセージ(SMS)またはLINE通知メッセージによるお問合せ内容に関する通知をお届けする場合があり、お客様の電話番号は株式会社LIFULLで一定期間保管されます
- ※株式会社LIFULLの個人情報の取扱い方針に同意のうえ、お電話ください
LIFULL HOME'Sは物件鮮度No.1を目指していきます 物件情報に誤りがある場合はコチラからご連絡ください
- 【物件番号】
- 1706340-0000370
- ※完成後1年未満で未入居の物件を「新築」と表示しております。
- ※完成予想図やCG合成画像は、門塀・植栽・庭・外観等、実際とは多少異なる場合があります。
物件を再検索する
青森県の人気エリアから新築一戸建てを探す






