新築一戸建て 【セキスイハイム】スマートハイムプレイス巳六段
のびのび子育てができる街で、住まいの品質にもこだわる。
吹き抜けのある開放的な住まいを含む、異なるプランを一度にご覧いただけます。 寒い季節にこそ体感したい、セキスイハイムの住まい。 足元から暖める「快適エアリー」を搭載した2棟。
太陽光発電・蓄電池を搭載し、家計にも災害時にも配慮した住まい。 駐車場は並列3台分を確保しています。 ご家族皆さまで、住まいの快適さをぜひ現地でご体感ください。
0037-618-87973
無料
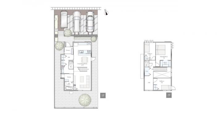
魅力1 21.7帖のLDK、オープン階段を採用する事でダイニングとリビングをおしゃれ
魅力2 太陽光や快適エアリーなど、充実の設備を完備
魅力3 周辺には普段の買い物に便利な商業施設が充実!
0037-618-87973
無料
間取り図
0037-618-87973
無料
内観・室内
間取り・内観のこだわりポイント
- 吹き抜け
- 全室フローリング
0037-618-87973
無料
設備・仕様
設備・仕様のこだわりポイント
- キッチン
-
- IHコンロ
- カウンターキッチン
- 食器洗い乾燥機
- 収納
-
- ウォークインクローゼット
- パントリー
- 全居室収納
- その他設備
-
- オール電化
- マイホーム発電システム
- スマートハウス
- 浴室1.6×1.8m以上
- トイレ2ヶ所以上
- スマートキー
- 省エネ給湯器
- 宅配ボックス
- EV充電設備
省エネ性能
-
※「省エネ性能ラベル」は特定の住戸の性能を示し、全ての住戸の性能を示していない場合があります。
0037-618-87973
無料
外観・分譲地
外観・分譲地のこだわりポイント
- 駐車場あり
- 前面道路6m以上
0037-618-87973
無料
周辺環境・地図
周辺情報
※半径4kmを超えると、周辺情報のアイコンは表示されません。
- ※不動産会社が入力した情報を基に物件の位置を表示しています。
- ※詳しくは不動産会社までお問合せください。
- ※地図上に表示される各種アイコンなどの情報は、おおよその所在地を表すものであり、物件・施設などの地点を保証するものではありません。
- ※地図の表示領域が広域になると周辺のお店・施設は表示できなくなります。
- ※地図、航空写真情報および地形ならびに周辺のお店・施設は、必ずしも現況を表すものではありません。
- ※物件から周辺のお店・施設までの距離は、利用が想定される道路を通行した場合の距離です。なお、必ずしも最短距離を保証するものではありません。
0037-618-87973
無料
物件概要
| 所在地 | 福島県郡山市巳六段 | ||
|---|---|---|---|
| 交通 |
福島交通バス「鎗ケ池団地入口」バス停 徒歩4分~5分 |
||
| 販売価格 | 5220万円 | 最多価格帯 | 5220万円(1戸) |
| 建物面積 | 103.79m2 | 土地面積 | 177.94m2 |
| 間取り | 3LDK | 建物構造 | 2階建て 構造:軽量鉄骨 工法:ユニット工法 |
| 販売スケジュール | - | ||
| 販売戸数 / 総戸数 | 1戸 / 5戸 | ||
| 完成予定日 | 2025/12 | 引き渡し可能年月 | 即時 |
| 駐車場 | 3台 | 道路の幅員 | 6.00m |
| 用途地域 | 第1種低層住居専用地域 | 都市計画 | 市街化区域 |
| 地目 | 地目:宅地 | 国土法 | - |
| 土地の権利 | 所有権 | 借地権の種類・期間 | - |
| 主たる設備の概要 | 公営水道、公共下水、東北電力、郡山市上下水道、オール電化(建物・敷地へガス管の引き込みはありません) | 建築確認番号 | 完成済み |
| 施工会社 | - | 機構融資 | - |
| 売主 | セキスイハイム東北株式会社 | 取引態様 | セキスイハイム東北株式会社(売主) |
| 備考 |
○総区画数:5区画(建築条件付き宅地3区画・分譲住宅2区画) ○設備:東北電力、郡山市上下水道、オール電化(建物・敷地へガス管の引き込みはありません) ○建築ガイドライン:建築にあたり、当販売団地におけるガイドラインに沿った建築をしております。 ○その他備考:記載の販売価格には土地・建物価格、外構(駐車場・門柱・境界フェンス・植栽等)、消費税10%を含みます。 家具・自転車・その他の備品は含まれません。 記載の建物面積は未登記のため、建築確認申請の面積に依ります。 記載の間取図は概略図の為、実際と異なる場合があります。 |
||
| 情報更新日 | 2026/05/30 | 次回更新予定日 | 2026/06/06 |
| 取引条件有効期限 | 2026/06/13 | ||
住宅性能・販売概要・権利のこだわりポイント
- 所有権
- 売主・代理
- 即入居可
0037-618-87973
無料
取扱い不動産会社
セキスイハイム東北株式会社の会社情報
お電話でのお問合せは「LIFULL HOME'S(ライフルホームズ)を見て」とお伝えください
セキスイハイム東北株式会社 福島支店
0037-618-87973
無料
- ※携帯電話はご利用いただけます
- ※光IP電話、及びIP電話をご利用のお客様はTEL:024-932-8160へご連絡ください
- ※携帯電話からお問合せいただいた方には、ショートメッセージ(SMS)またはLINE通知メッセージによるお問合せ内容に関する通知をお届けする場合があり、お客様の電話番号は株式会社LIFULLで一定期間保管されます
- ※株式会社LIFULLの個人情報の取扱い方針に同意のうえ、お電話ください
| 会社名 |
セキスイハイム東北株式会社 |
|---|---|
| 免許番号 | 国土交通大臣 (9) 第 3749 号 |
| 所在地 | 宮城県仙台市宮城野区榴岡3丁目4番1号アゼリアヒルズ14F |
| 所属団体 |
東北地区不動産公正取引協議会 |
この物件にお問合せする
実際に物件・周辺環境を見て検討したい!
近隣建物や接道の状況など資料で分からない部分も一目瞭然。 まずはWEBで事前予約、スムーズに見学しましょう
ご予約無しに直接ご来場された場合、担当者不在であったり、
他のお客様のご案内の都合上、お待たせしてしまうことがございます。
不動産会社に電話で相談したい!
セキスイハイム東北株式会社 福島支店
0037-618-87973
無料
電話でのお問合せは「LIFULL HOME'S(ライフルホームズ)を見て」とお伝えください
- ※携帯電話はご利用いただけます
- ※光IP電話、及びIP電話をご利用のお客様はTEL:024-932-8160へご連絡ください
- ※携帯電話からお問合せいただいた方には、ショートメッセージ(SMS)またはLINE通知メッセージによるお問合せ内容に関する通知をお届けする場合があり、お客様の電話番号は株式会社LIFULLで一定期間保管されます
- ※株式会社LIFULLの個人情報の取扱い方針に同意のうえ、お電話ください
LIFULL HOME'Sは物件鮮度No.1を目指していきます 物件情報に誤りがある場合はコチラからご連絡ください
- 【物件番号】
- 1706340-0000349
- ※完成後1年未満で未入居の物件を「新築」と表示しております。
- ※完成予想図やCG合成画像は、門塀・植栽・庭・外観等、実際とは多少異なる場合があります。
物件を再検索する
福島県の人気エリアから新築一戸建てを探す















