一戸建て 【セキスイハイム】スマートハイムプレイス東大沼
生活シーンがイメージしやすい家具付きの分譲住宅。資料請求・ご見学予約受付中! 皆様のご来場お待ちしております。
太陽光発電3.60kW、蓄電池12.0kWh、スマートハイムナビ搭載のオール電化住宅。
◇長く住むことを前提とした、安心のアフターサポート◇ ご入居後も安心が続く、充実したサポートや保証制度をご用意。60年以上住み続けられる住まいだからできるアフターサポートです。
0037-618-66996
無料
魅力1 ショッピング・教育・医療施設に恵まれたロケーション ゆとりある暮らしを実現
~周辺施設~
・メガステージ白河 約1380~1410m
・ベイシア白河モール店(白河モール内)約1010~1040m
・南湖公園 約560~590m(徒歩7~8分)
魅力2 セキスイハイムが作る平屋の分譲住宅
平屋でない平屋?1.5階スタイルで生活をもっと楽しく!
魅力3 ★インテリアスペシャリストが空間づくりをご提供★
年間に手がけさせていただく、セキスイハイムのインテリアコーディネートは1000件以上。
その経験と、セキスイハイムのデザイン、性能を知り尽くしている私たちだからこそ、建物の性能を100%いかしつつ、住まいに彩りを加えるインテリアのコーディネートができます。
0037-618-66996
無料
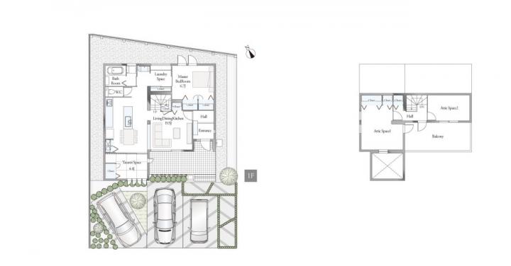
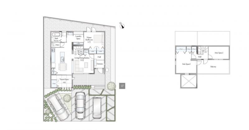
間取り図
0037-618-66996
無料
内観・室内
間取り・内観のこだわりポイント
- LDK15帖以上
- 吹き抜け
- 南面バルコニー
0037-618-66996
無料
設備・仕様
-
太陽光発電システム
自宅で電気を作って暮らすエコな暮らしをサ...
-
蓄電池
太陽光発電の余った電気を貯めて夜に使うエ...
-
スマートハイムナビ(HEMS)
スマートハイムナビ(HEMS)/ 電力状...
-
快適エアリー(通年型空気調節システム)
家中の温度差を減らし、夏爽やか冬あった...
-
エアファクトリー(熱交換型第一種換気シス...
微粒子を除去してキレイな空気を取込む。※...
-
玄関スマートキー(電子錠)
リモコンをカバンに入れたままドアを施解錠...
-
工場生産
設計どおりの強さ・品質を約束する家づくり...
-
高強度ユニット
数百年に一度の地震※にも備えるユニット。...
-
ボックスラーメン構造
ユニットを連結し強靭な構造に。
設備・仕様のこだわりポイント
- キッチン
-
- IHコンロ
- 食器洗い乾燥機
- 収納
-
- 床下収納
- ウォークインクローゼット
- 屋根裏収納
- パントリー
- 全居室収納
- その他設備
-
- オール電化
- マイホーム発電システム
- スマートハウス
- 浴室乾燥機
- 浴室1.6×1.8m以上
- 節水型トイレ
- 複層ガラス採用(二重サッシ・防犯サッシ等)
- スマートキー
- 省エネ給湯器
- TVモニタ付インターホン
- 宅配ボックス
- EV充電設備
- マイホーム発電システム
- 太陽光発電システム、蓄電池
省エネ性能
-
※「省エネ性能ラベル」は特定の住戸の性能を示し、全ての住戸の性能を示していない場合があります。
0037-618-66996
無料
外観・分譲地
外観・分譲地のこだわりポイント
- 駐車場あり
- 総戸数・総区画数が10以上〜30未満
- 地盤調査済
- 南道路
- 整形地
- 前面道路6m以上
- 平坦地
0037-618-66996
無料
周辺環境・地図
周辺情報
※半径4kmを超えると、周辺情報のアイコンは表示されません。
- ※不動産会社が入力した情報を基に物件の位置を表示しています。
- ※詳しくは不動産会社までお問合せください。
- ※地図上に表示される各種アイコンなどの情報は、おおよその所在地を表すものであり、物件・施設などの地点を保証するものではありません。
- ※地図の表示領域が広域になると周辺のお店・施設は表示できなくなります。
- ※地図、航空写真情報および地形ならびに周辺のお店・施設は、必ずしも現況を表すものではありません。
- ※物件から周辺のお店・施設までの距離は、利用が想定される道路を通行した場合の距離です。なお、必ずしも最短距離を保証するものではありません。
周辺環境のこだわりポイント
- 公園 400m以内
- 複数路線
0037-618-66996
無料
物件概要
| 所在地 | 福島県白河市東大沼 | ||
|---|---|---|---|
| 交通 |
JR東北本線「白河」駅 徒歩29分 JR東北本線「新白河」駅 徒歩30分 JR東北本線「白坂」駅 徒歩53分 |
||
| 販売価格 | 4790万円 | 最多価格帯 | 4790万円(1戸) |
| 建物面積 | 106.66m2 | 土地面積 | 218.72m2 |
| 間取り | 2LDK+2S | 建物構造 | 2階建て 構造:軽量鉄骨 工法:ユニット工法 |
| 販売スケジュール | - | ||
| 販売戸数 / 総戸数 | 1戸 / 21戸 | ||
| 完成予定日 | 2024/11 | 引き渡し可能年月 | 即時 |
| 駐車場 | 3台 | 道路の幅員 | - |
| 用途地域 | 第1種住居地域 | 都市計画 | 市街化区域 |
| 地目 | 地目:宅地 | 国土法 | - |
| 土地の権利 | 所有権 | 借地権の種類・期間 | - |
| 主たる設備の概要 | LPG、公営水道、白河市上下水道、東北電力、個別プロパンガス ※別途水道加入金の負担20ミリの場合121,000円(税込み)があります。 | 建築確認番号 | 完成済み |
| 施工会社 | - | 機構融資 | - |
| 売主 | セキスイハイム東北株式会社 | 取引態様 | セキスイハイム東北株式会社(売主) |
| 備考 |
21区画(当社区画5区画:建築条件付き宅地3区画・分譲住宅2区画) ○道路幅員 公道約6.0m(アスファルト舗装) ○その他の費用負担 公共施設(公園、ゴミ集積所)維持管理共益費の負担(500円/月)があります。 ○備考 当分譲地入居にあたっては、「白河市東大沼宅地分譲地公共施設維持管理組合」に加入し、当分譲地内の公園、ごみ集積所の維持管理を行って頂きます。 ○設備 東北電力、白河市市上下水道、オール電化(建物へのガス管の引き込みはありません) 太陽光発電3.60kW、蓄電池12.0kWh、スマートハイムナビ、1階快適エアリー、トリプルガラス、オール電化(エコキュート・IH)、エアコン2台、照明、レースカーテン、家具(LDKセット) ○備考 記載の販売価格には土地・建物価格、家具、外構(駐車場・門柱・フェンス・植栽等)、消費税10%を含みます。 自動車・その他の備品は含まれません。 記載の建物面積は未登記のため、建築確認申請の面積に依ります。 記載の間取図は概略図の為、実際と異なる場合があります。 間取図に記載の家具は現状と異なります。 |
||
| 情報更新日 | 2026/05/05 | 次回更新予定日 | 2026/05/12 |
| 取引条件有効期限 | 2026/05/19 | ||
住宅性能・販売概要・権利のこだわりポイント
- 所有権
- 瑕疵担保付き
- 仲介手数料不要
- 売主・代理
- 耐震・制震・免震構造
- 長期優良住宅
- 設計住宅性能評価書
- 建設住宅性能評価書(新築時)
- 即入居可
0037-618-66996
無料
取扱い不動産会社
セキスイハイム東北株式会社の会社情報
お電話でのお問合せは「LIFULL HOME'S(ライフルホームズ)を見て」とお伝えください
セキスイハイム東北株式会社 福島支店
0037-618-66996
無料
- ※携帯電話はご利用いただけます
- ※光IP電話、及びIP電話をご利用のお客様はTEL:024-900-2835へご連絡ください
- ※携帯電話からお問合せいただいた方には、ショートメッセージ(SMS)またはLINE通知メッセージによるお問合せ内容に関する通知をお届けする場合があり、お客様の電話番号は株式会社LIFULLで一定期間保管されます
- ※株式会社LIFULLの個人情報の取扱い方針に同意のうえ、お電話ください
| 会社名 |
セキスイハイム東北株式会社 |
|---|---|
| 免許番号 | 国土交通大臣 (9) 第 3749 号 |
| 所在地 | 宮城県仙台市宮城野区榴岡3丁目4番1号アゼリアヒルズ14F |
| 所属団体 |
東北地区不動産公正取引協議会 |
この物件にお問合せする
実際に物件・周辺環境を見て検討したい!
近隣建物や接道の状況など資料で分からない部分も一目瞭然。 まずはWEBで事前予約、スムーズに見学しましょう
ご予約無しに直接ご来場された場合、担当者不在であったり、
他のお客様のご案内の都合上、お待たせしてしまうことがございます。
不動産会社に電話で相談したい!
セキスイハイム東北株式会社 福島支店
0037-618-66996
無料
電話でのお問合せは「LIFULL HOME'S(ライフルホームズ)を見て」とお伝えください
- ※携帯電話はご利用いただけます
- ※光IP電話、及びIP電話をご利用のお客様はTEL:024-900-2835へご連絡ください
- ※携帯電話からお問合せいただいた方には、ショートメッセージ(SMS)またはLINE通知メッセージによるお問合せ内容に関する通知をお届けする場合があり、お客様の電話番号は株式会社LIFULLで一定期間保管されます
- ※株式会社LIFULLの個人情報の取扱い方針に同意のうえ、お電話ください
LIFULL HOME'Sは物件鮮度No.1を目指していきます 物件情報に誤りがある場合はコチラからご連絡ください
- 【物件番号】
- 1706340-0000346
- ※完成後1年未満で未入居の物件を「新築」と表示しております。
- ※完成予想図やCG合成画像は、門塀・植栽・庭・外観等、実際とは多少異なる場合があります。















