一戸建て 【セキスイハイム】スマートハイムプレイス森宿III
毎日の買い物や通学、通勤…「ちょっとそこまで」の距離感が、暮らしの快適さを左右するもの。この住まいは、スーパーや学校、バス停が身近に揃っていて、忙しい日々でも無理なくこなせる立地が魅力です。
さらに、太陽光発電・蓄電池・オール電化など、将来の暮らしを見据えた設備も標準搭載。セキスイハイムならではの品質と安心感も兼ね備えています。
「家の中」だけでなく、「家のまわり」も暮らしの質を高めてくれる――そんな住まいを、ぜひ現地で体感してください。
0037-618-78209
無料
魅力1 開けるたびに気持ちいい、ゆとりある収納。
パントリーやWICなど、見せたくなる収納空間。整理が“楽しくなる”家です。
魅力2 開放感のある吹き抜けが特徴のプランです。
吹き抜けから入る自然な光でいつも明るいリビング。家族の笑顔も増えそうですね♪
魅力3 ★太陽光発電・蓄電池・スマートハイムナビで自給自足型を目指す暮らし★
大容量のソーラーでエネルギーを創り出し、蓄電システムに蓄エネ。さらにスマートハイムナビにより電力を効率よく使うセキスイハイムならではのスマートハウスです。
※すべての電力を賄えるわけではありません。電力会社から電気を購入する必要があります。
0037-618-78209
無料
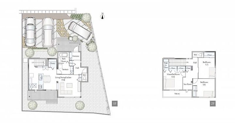
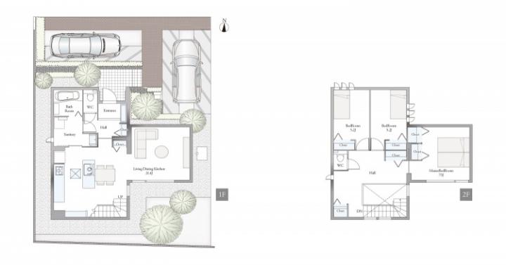
間取り図
-
B棟 間取り 3LDK 価格 5250万円 建物面積 104.80m2 土地面積 202.57m2 -
C棟 間取り 2SLDK 価格 4970万円 建物面積 89.42m2 土地面積 166.39m2 -
D棟 間取り 3LDK 価格 5220万円 建物面積 101.08m2 土地面積 166.36m2 -
F棟 間取り 3LDK 価格 4890万円 建物面積 100.65m2 土地面積 162.40m2 -
G棟 間取り 3LDK 価格 5030万円 建物面積 109.26m2 土地面積 165.60m2 -
H棟 間取り 3LDK 価格 5270万円 建物面積 103.19m2 土地面積 165.62m2 -
I棟 間取り 3LDK 価格 5180万円 建物面積 104.85m2 土地面積 165.70m2
0037-618-78209
無料
内観・室内
間取り・内観のこだわりポイント
- LDK15帖以上
- 南面バルコニー
- 全室フローリング
0037-618-78209
無料
設備・仕様
設備・仕様のこだわりポイント
- キッチン
-
- IHコンロ
- カウンターキッチン
- 食器洗い乾燥機
- 収納
-
- ウォークインクローゼット
- パントリー
- 全居室収納
- その他設備
-
- オール電化
- マイホーム発電システム
- スマートハウス
- 温水洗浄便座
- 浴室乾燥機
- トイレ2ヶ所以上
- 複層ガラス採用(二重サッシ・防犯サッシ等)
- スマートキー
- 省エネ給湯器
- TVモニタ付インターホン
- 宅配ボックス
- EV充電設備
- マイホーム発電システム
- 太陽光発電システム、蓄電池
省エネ性能
- エネルギー消費性能:★★★★★(削減率40%達成)〜 ★★★★★★(削減率50%達成)
- 断熱性能:5段階/7段階 ※「省エネ性能ラベル」は特定の住戸の性能を示し、全ての住戸の性能を示していない場合があります。
0037-618-78209
無料
外観・分譲地
外観・分譲地のこだわりポイント
- 駐車場あり
- 前面道路6m以上
- 平坦地
0037-618-78209
無料
周辺環境・地図
周辺情報
※半径4kmを超えると、周辺情報のアイコンは表示されません。
- ※不動産会社が入力した情報を基に物件の位置を表示しています。
- ※詳しくは不動産会社までお問合せください。
- ※地図上に表示される各種アイコンなどの情報は、おおよその所在地を表すものであり、物件・施設などの地点を保証するものではありません。
- ※地図の表示領域が広域になると周辺のお店・施設は表示できなくなります。
- ※地図、航空写真情報および地形ならびに周辺のお店・施設は、必ずしも現況を表すものではありません。
- ※物件から周辺のお店・施設までの距離は、利用が想定される道路を通行した場合の距離です。なお、必ずしも最短距離を保証するものではありません。
周辺環境のこだわりポイント
- 総合病院 800m以内
0037-618-78209
無料
物件概要
| 所在地 | 福島県須賀川市森宿字狐石 | ||
|---|---|---|---|
| 交通 |
JR東北本線「須賀川」駅 徒歩24分 JR東北本線「須賀川」駅 福島交通バス乗車19分、西山寺町バス停 徒歩7分 |
||
| 販売価格 | 4890~5270万円 | 最多価格帯 | 5180万円(1戸)、5270万円(1戸)、5030万円(1戸)、4890万円(1戸)、5220万円(1戸)、4970万円(1戸)、5250万円(1戸) |
| 建物面積 | 89.42m2~109.26m2 | 土地面積 | 162.40m2~202.57m2 |
| 間取り | 2LDK+S~3LDK | 建物構造 | 2階建て 構造:軽量鉄骨、木造 工法:ユニット工法、その他/2×6ユニット工法 |
| 販売スケジュール | - | ||
| 販売戸数 / 総戸数 | 7戸 / 9戸 | ||
| 完成予定日 | 2024/09 | 引き渡し可能年月 | 即時 |
| 駐車場 | 2台 | 道路の幅員 | 6.00m |
| 用途地域 | 第1種住居地域 | 都市計画 | 市街化区域 |
| 地目 | 地目:宅地 | 国土法 | - |
| 土地の権利 | 所有権 | 借地権の種類・期間 | - |
| 主たる設備の概要 | 無、公営水道、公共下水、東北電力、須賀川市上下水道、オール電化(建物・敷地へガス管の引き込みはありません) | 建築確認番号 | 完成済み |
| 施工会社 | - | 機構融資 | - |
| 売主 | セキスイハイム東北株式会社 | 取引態様 | セキスイハイム東北株式会社(売主) |
| 備考 |
〇設備:東北電力、須賀川市上下水道、オール電化(建物・敷地へガス管の引き込みはありません) 太陽光発電8.88kW、蓄電池9.9kWh、スマートハイムナビ、1階快適エアリー、トリプルガラス、オール電化(エコキュート・IH)、エアコン1台、照明、レースカーテン、家具(LDKセット) 〇建築ガイドライン:建築にあたり、当販売団地におけるガイドラインに沿った建築をしております。 〇その他備考:ごみ置場3.83m2のうち持分9分の1の負担あり。 分譲地内道路の維持管理は居住者皆さまで行っていただきます。 記載の販売価格には土地・建物価格、家具、外構(駐車場・門柱・境界フェンス・植栽等)、消費税10%を含みます。 自動車・その他の備品は含まれません。 記載の建物面積は未登記のため、建築確認申請の面積に依ります。 記載の間取図は概略図の為、実際と異なる場合があります。 間取図に記載の家具は現状と異なります。 東北電力、須賀川市上下水道、オール電化(建物・敷地へガス管の引き込みはありません) |
||
| 情報更新日 | 2026/05/17 | 次回更新予定日 | 2026/05/24 |
| 取引条件有効期限 | 2026/05/31 | ||
住宅性能・販売概要・権利のこだわりポイント
- 所有権
- 瑕疵担保付き
- 仲介手数料不要
- 売主・代理
- 耐震・制震・免震構造
- 長期優良住宅
- 設計住宅性能評価書
- フラット35・S適合証明書
- 建設住宅性能評価書(新築時)
- 即入居可
0037-618-78209
無料
取扱い不動産会社
セキスイハイム東北株式会社の会社情報
お電話でのお問合せは「LIFULL HOME'S(ライフルホームズ)を見て」とお伝えください
セキスイハイム東北株式会社 福島支店
0037-618-78209
無料
- ※携帯電話はご利用いただけます
- ※光IP電話、及びIP電話をご利用のお客様はTEL:024-900-2835へご連絡ください
- ※携帯電話からお問合せいただいた方には、ショートメッセージ(SMS)またはLINE通知メッセージによるお問合せ内容に関する通知をお届けする場合があり、お客様の電話番号は株式会社LIFULLで一定期間保管されます
- ※株式会社LIFULLの個人情報の取扱い方針に同意のうえ、お電話ください
| 会社名 |
セキスイハイム東北株式会社 |
|---|---|
| 免許番号 | 国土交通大臣 (9) 第 3749 号 |
| 所在地 | 宮城県仙台市宮城野区榴岡3丁目4番1号アゼリアヒルズ14F |
| 所属団体 |
東北地区不動産公正取引協議会 |
この物件にお問合せする
実際に物件・周辺環境を見て検討したい!
近隣建物や接道の状況など資料で分からない部分も一目瞭然。 まずはWEBで事前予約、スムーズに見学しましょう
ご予約無しに直接ご来場された場合、担当者不在であったり、
他のお客様のご案内の都合上、お待たせしてしまうことがございます。
不動産会社に電話で相談したい!
セキスイハイム東北株式会社 福島支店
0037-618-78209
無料
電話でのお問合せは「LIFULL HOME'S(ライフルホームズ)を見て」とお伝えください
- ※携帯電話はご利用いただけます
- ※光IP電話、及びIP電話をご利用のお客様はTEL:024-900-2835へご連絡ください
- ※携帯電話からお問合せいただいた方には、ショートメッセージ(SMS)またはLINE通知メッセージによるお問合せ内容に関する通知をお届けする場合があり、お客様の電話番号は株式会社LIFULLで一定期間保管されます
- ※株式会社LIFULLの個人情報の取扱い方針に同意のうえ、お電話ください
LIFULL HOME'Sは物件鮮度No.1を目指していきます 物件情報に誤りがある場合はコチラからご連絡ください
- 【物件番号】
- 1706340-0000320
- ※完成後1年未満で未入居の物件を「新築」と表示しております。
- ※完成予想図やCG合成画像は、門塀・植栽・庭・外観等、実際とは多少異なる場合があります。















