一戸建て スマートハイムシティ矢巾町高田
コンセプトの違う4棟公開中♪平屋やペット向け物件も!☆A棟は無人内見できます☆詳細はコチラ→https://www.heim-tohoku.co.jp/lp/mujin-kengaku
【コンセプト】 ◎A棟 毎朝好きな服を選ぶ喜びが続く家 ◎B棟 自分たちらしくペットと一緒に暮らす家 ◎C棟 ハンドメイド作家の夢が叶う家 ◎D棟 週末はキャンプ、休日はお家キャンプができる家
【分譲住宅 4棟 公開中!】 4棟同時見学も可能です!それぞれの間取りを見比べることができます。 建物の間取や設備の資料もご用意しております。 お気軽にお問い合わせください♪
0037-618-97546
無料
魅力1 【B棟】愛犬も家族もストレスフリー、ホテルライクなペット共生住宅。
ペットと暮らしたい方向けの家族みんながストレスなく毎日をリラックスして過ごせるプラン。
外装も内装もグレーとホワイトを基調としたお洒落な印象で、陽光と間接照明が空間を際立たせてくれます。
ペット用のベット・ケージ、インテリア用品とも調和しやすいカラーにまとまっています。
ダイニングすぐそばのお庭はドッグランとしても。近くには立水栓がありペットの足を洗ったり庭の掃除もしやすい配置です。
魅力2 【C棟】ハンドメイド作家の夢が叶う家。
ハンドメイド雑貨やプラモデルなどクリエイティブな作業が好きな方が自分時間と家族時間を両立できる、3LDK+αのホール空間で日々の暮らしも趣味も楽しめるプラン。
家事動線と収納量が両立。用途別収納とスムーズに家事が行えて、忙しい日々の生活効率をアップしてくれる間取りです。
5.6帖の洋室は、机やミシン・アイロン台を置いて作業部屋としても。
2階ホールは室内干しだけでなく、梱包作業や作品の仮置き場、イベントの準備スペースとしても重宝します。
魅力3 【D棟】週末はキャンプ、平日はおうちキャンプができる家。
庭とのつながりが強い平屋は外と中を行き来しやすい生活動線が魅力。タイルデッキで手軽におうちキャンプやホームパーティーが実現できるプラン。
平屋で常に家族の気配を感じることができるので、自然とコミュニケーションが生まれやすい間取り。
外の出入りがしやすく、ガーデニングやおうちキャンプ中でもご家族を見守りやすい配置です。
バルコニー付きロフトは、シアタールームや天体観測など生活空間と離れていることでよりプライベートな空間に。
0037-618-97546
無料
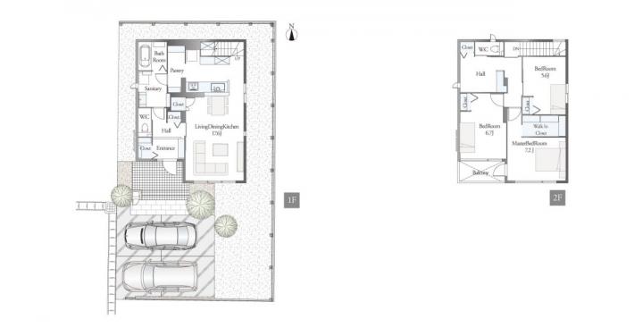
間取り図
0037-618-97546
無料
内観・室内
間取り・内観のこだわりポイント
- LDK15帖以上
- 全室フローリング
0037-618-97546
無料
設備・仕様
設備・仕様のこだわりポイント
- キッチン
-
- IHコンロ
- カウンターキッチン
- 食器洗い乾燥機
- 収納
-
- ウォークインクローゼット
- パントリー
- 全居室収納
- その他設備
-
- オール電化
- マイホーム発電システム
- スマートハウス
- シャワー付洗面化粧台
- 温水洗浄便座
- 浴室乾燥機
- トイレ2ヶ所以上
- 複層ガラス採用(二重サッシ・防犯サッシ等)
- 省エネ給湯器
- TVモニタ付インターホン
- 宅配ボックス
- EV充電設備
- マイホーム発電システム
- 太陽光発電システム、蓄電池
- スマートハウス
- HEMS
0037-618-97546
無料
外観・分譲地
外観・分譲地のこだわりポイント
- 駐車場あり
- 整形地
- 前面道路6m以上
0037-618-97546
無料
周辺環境・地図
周辺情報
※半径4kmを超えると、周辺情報のアイコンは表示されません。
- ※不動産会社が入力した情報を基に物件の位置を表示しています。
- ※詳しくは不動産会社までお問合せください。
- ※地図上に表示される各種アイコンなどの情報は、おおよその所在地を表すものであり、物件・施設などの地点を保証するものではありません。
- ※地図の表示領域が広域になると周辺のお店・施設は表示できなくなります。
- ※地図、航空写真情報および地形ならびに周辺のお店・施設は、必ずしも現況を表すものではありません。
- ※物件から周辺のお店・施設までの距離は、利用が想定される道路を通行した場合の距離です。なお、必ずしも最短距離を保証するものではありません。
-
【その他】
北高田こども園 (約560~600m 徒歩7~8分)
「想像力の豊かな子ども」「意欲的に物事を取り組む子ども」「優し...
-
【学校】
矢巾東小学校 (約1960~2000m 徒歩25分)
「かしこく 心豊かで たくましい子」
-
【学校】
矢巾北中学校 (約4200~4240m -)
「友愛:自他を尊重し、正義を愛する生徒」「躍動:礼儀正しく、溌...
-
【買い物】
セブンイレブン矢巾高田店 (約1420~1460m -)
ちょっとした買い物に便利な24時間営業のコンビニ。
-
【買い物】
ジョイス見前店 (約1660~1700m -)
日々のお料理の買い出しに。クリーニング店や歯科医院も併設されて...
-
【病院・役所】
岩手医大附属病院 (約2480~2520m -)
地域を支える総合病院。受付時間/午前8時30分から。
-
案内図
周辺環境のこだわりポイント
- 総合病院 800m以内
0037-618-97546
無料
物件概要
| 所在地 | 岩手県紫波郡矢巾町大字高田第13地割 | ||
|---|---|---|---|
| 交通 |
JR東北本線「矢幅」駅 岩手県交通乗車13分、北高田バス停バス停 徒歩3分~4分 |
||
| 販売価格 | 3990~4860万円 | 最多価格帯 | 4860万円(1戸)、3990万円(1戸)、4650万円(1戸)、4690万円(1戸) |
| 建物面積 | 93.87m2~107.14m2 | 土地面積 | 165.74m2~209.31m2 |
| 間取り | 2LDK~3LDK | 建物構造 | 1~2階建て 構造:軽量鉄骨 工法:ユニット工法 |
| 販売スケジュール | - | ||
| 販売戸数 / 総戸数 | 4戸 / 4戸 | ||
| 完成予定日 | 2024/01 | 引き渡し可能年月 | 即時 |
| 駐車場 | 2台 | 道路の幅員 | 6.00m ~ 6.10m |
| 用途地域 | 第1種低層住居専用地域 | 都市計画 | 市街化区域 |
| 地目 | 地目:宅地 | 国土法 | - |
| 土地の権利 | 所有権 | 借地権の種類・期間 | - |
| 主たる設備の概要 | LPG、公営水道、公共下水、公共下水、ユニットバス、水洗、IH、三口、エアコン、東北電力、矢巾町営上下水道、A棟・B棟・C棟:オール電化(建物・敷地へのガス管の引き込みはありません。)、D棟:プロパンガス | 建築確認番号 | 完成済み |
| 施工会社 | - | 機構融資 | - |
| 売主 | セキスイハイム東北株式会社 | 取引態様 | セキスイハイム東北株式会社(売主) |
| 備考 |
○設備:東北電力・矢巾町営上下水道・オール電化(建物・敷地へのガス管の引き込みはありません。) ○建築にあたり、当販売団地におけるガイドラインに沿った建築をしております。 ○記載の外観パース・間取図は図面をもとに描き起こしたもので実際とは多少異なります。間取図に記載の家具は現状と異なります。記載の販売価格には土地・建物価格、外構(駐車場・門柱・境界フェンス・植栽(芝を除く)等)、消費税10%を含みます。自動車・その他の備品は含まれません 。 |
||
| 情報更新日 | 2026/05/05 | 次回更新予定日 | 2026/05/12 |
| 取引条件有効期限 | 2026/05/19 | ||
住宅性能・販売概要・権利のこだわりポイント
- 所有権
- 瑕疵担保付き
- 仲介手数料不要
- 売主・代理
- 耐震・制震・免震構造
- 長期優良住宅
- 即入居可
0037-618-97546
無料
取扱い不動産会社
セキスイハイム東北株式会社の会社情報
お電話でのお問合せは「LIFULL HOME'S(ライフルホームズ)を見て」とお伝えください
セキスイハイム東北株式会社北東北支店
0037-618-97546
無料
- ※携帯電話はご利用いただけます
- ※光IP電話、及びIP電話をご利用のお客様はTEL:019-632-1020へご連絡ください
- ※携帯電話からお問合せいただいた方には、ショートメッセージ(SMS)またはLINE通知メッセージによるお問合せ内容に関する通知をお届けする場合があり、お客様の電話番号は株式会社LIFULLで一定期間保管されます
- ※株式会社LIFULLの個人情報の取扱い方針に同意のうえ、お電話ください
| 会社名 |
セキスイハイム東北株式会社 |
|---|---|
| 免許番号 | 国土交通大臣 (9) 第 3749 号 |
| 所在地 | 宮城県仙台市宮城野区榴岡3丁目4番1号アゼリアヒルズ14F |
| 所属団体 |
東北地区不動産公正取引協議会 |
この物件にお問合せする
実際に物件・周辺環境を見て検討したい!
近隣建物や接道の状況など資料で分からない部分も一目瞭然。 まずはWEBで事前予約、スムーズに見学しましょう
ご予約無しに直接ご来場された場合、担当者不在であったり、
他のお客様のご案内の都合上、お待たせしてしまうことがございます。
不動産会社に電話で相談したい!
セキスイハイム東北株式会社北東北支店
0037-618-97546
無料
電話でのお問合せは「LIFULL HOME'S(ライフルホームズ)を見て」とお伝えください
- ※携帯電話はご利用いただけます
- ※光IP電話、及びIP電話をご利用のお客様はTEL:019-632-1020へご連絡ください
- ※携帯電話からお問合せいただいた方には、ショートメッセージ(SMS)またはLINE通知メッセージによるお問合せ内容に関する通知をお届けする場合があり、お客様の電話番号は株式会社LIFULLで一定期間保管されます
- ※株式会社LIFULLの個人情報の取扱い方針に同意のうえ、お電話ください
LIFULL HOME'Sは物件鮮度No.1を目指していきます 物件情報に誤りがある場合はコチラからご連絡ください
- 【物件番号】
- 1706340-0000310
- ※完成後1年未満で未入居の物件を「新築」と表示しております。
- ※完成予想図やCG合成画像は、門塀・植栽・庭・外観等、実際とは多少異なる場合があります。















