一戸建て 【セキスイハイム】ハーモニータウンしあわせの杜
【セキスイハイム東北】 【鉄骨系分譲住宅】全棟に太陽光・蓄電池搭載のオール電化住宅です。
【分譲地】安心・安全で子育て世代にうれしい街♪
0037-618-84131
無料
魅力1 ★周辺には買い物施設が充実★
まとめ買いに便利な「コストコホールセール富谷倉庫店」までは約1020m~1050m(徒歩13~14分)
魅力2 ★太陽光発電・蓄電池・スマートハイムナビで自給自足型を目指す暮らし★
大容量のソーラーでエネルギーを創り出し、蓄電システムに蓄エネ。さらにスマートハイムナビにより電力を効率よく使うセキスイハイムならではのスマートハウスです。
※すべての電力を賄えるわけではありません。電力会社から電気を購入する必要があります。
魅力3 ★インテリアスペシャリストが空間づくりをご提供★
年間に手がけさせていただく、セキスイハイムのインテリアコーディネートは1000件以上。
その経験と、セキスイハイムのデザイン、性能を知り尽くしている私たちだからこそ、建物の性能を100%いかしつつ、住まいに彩りを加えるインテリアのコーディネートができます。
0037-618-84131
無料
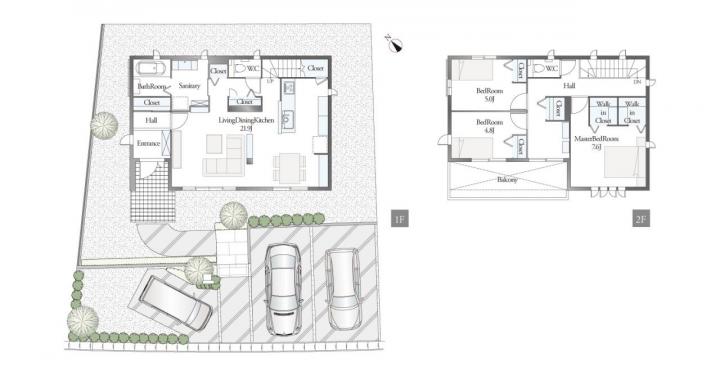
間取り図
0037-618-84131
無料
内観・室内
間取り・内観のこだわりポイント
- LDK15帖以上
- 南面バルコニー
- 全室フローリング
0037-618-84131
無料
設備・仕様
設備・仕様のこだわりポイント
- キッチン
-
- IHコンロ
- カウンターキッチン
- 食器洗い乾燥機
- 収納
-
- ウォークインクローゼット
- シューズクローク
- パントリー
- 全居室収納
- その他設備
-
- オール電化
- マイホーム発電システム
- スマートハウス
- 温水洗浄便座
- トイレ2ヶ所以上
- 複層ガラス採用(二重サッシ・防犯サッシ等)
- スマートキー
- TVモニタ付インターホン
- 宅配ボックス
- EV充電設備
- マイホーム発電システム
- 太陽光発電システム、蓄電池
0037-618-84131
無料
外観・分譲地
外観・分譲地のこだわりポイント
- 駐車場あり
- 総戸数・総区画数30以上
- 角地
- 南道路
- 整形地
- 前面道路6m以上
- 平坦地
0037-618-84131
無料
周辺環境・地図
周辺情報
※半径4kmを超えると、周辺情報のアイコンは表示されません。
- ※不動産会社が入力した情報を基に物件の位置を表示しています。
- ※詳しくは不動産会社までお問合せください。
- ※地図上に表示される各種アイコンなどの情報は、おおよその所在地を表すものであり、物件・施設などの地点を保証するものではありません。
- ※地図の表示領域が広域になると周辺のお店・施設は表示できなくなります。
- ※地図、航空写真情報および地形ならびに周辺のお店・施設は、必ずしも現況を表すものではありません。
- ※物件から周辺のお店・施設までの距離は、利用が想定される道路を通行した場合の距離です。なお、必ずしも最短距離を保証するものではありません。
0037-618-84131
無料
物件概要
| 所在地 | 宮城県黒川郡大和町しあわせの杜 | ||
|---|---|---|---|
| 交通 |
仙台市営南北線「泉中央」駅 宮城交通乗車25分、ハーモニータウン中央バス停 徒歩9分~10分 |
||
| 販売価格 | 4890~4990万円 | 最多価格帯 | 4990万円(1戸)、4890万円(1戸) |
| 建物面積 | 86.30m2~104.20m2 | 土地面積 | 217.99m2~222.81m2 |
| 間取り | 2LDK~3LDK | 建物構造 | 1~2階建て 構造:鉄骨造 工法:ユニット工法 |
| 販売スケジュール | - | ||
| 販売戸数 / 総戸数 | 2戸 / 302戸 | ||
| 完成予定日 | 2024/01 | 引き渡し可能年月 | 即時 |
| 駐車場 | 2台 | 道路の幅員 | 6.00m |
| 用途地域 | 第1種低層住居専用地域 | 都市計画 | 市街化区域 |
| 地目 | 地目:宅地 | 国土法 | - |
| 土地の権利 | 所有権 | 借地権の種類・期間 | - |
| 主たる設備の概要 | 公営水道、公共下水、ユニットバス、水洗、IH、東北電力・大和町上下水道・オール電化(建物・敷地へのガス配管はありません) | 建築確認番号 | 完成済み |
| 施工会社 | - | 機構融資 | - |
| 売主 | セキスイハイム東北株式会社 | 取引態様 | セキスイハイム東北株式会社(売主) |
| 備考 |
○建築ガイドライン/建築にあたり、当販売団地におけるガイドラインに沿った建築をしております。 ○記載の販売価格には土地・建物価格、外構(駐車場・門柱・境界フェンス・植栽等)、消費税10%を含みます。 ○自動車その他の備品は含まれません 。 ○記載の建物面積は未登記のため、建築確認申請の面積に依ります。 ○記載のパース図・間取図は概略図のため、実際と異なる場合があります。 |
||
| 情報更新日 | 2026/05/24 | 次回更新予定日 | 2026/05/31 |
| 取引条件有効期限 | 2026/06/07 | ||
住宅性能・販売概要・権利のこだわりポイント
- 所有権
- 瑕疵担保付き
- 仲介手数料不要
- 売主・代理
- 耐震・制震・免震構造
- 長期優良住宅
- 設計住宅性能評価書
- 建設住宅性能評価書(新築時)
- 即入居可
0037-618-84131
無料
取扱い不動産会社
セキスイハイム東北株式会社の会社情報
お電話でのお問合せは「LIFULL HOME'S(ライフルホームズ)を見て」とお伝えください
セキスイハイム東北株式会社 宮城支店
0037-618-84131
無料
- ※携帯電話はご利用いただけます
- ※光IP電話、及びIP電話をご利用のお客様はTEL:022-341-1831へご連絡ください
- ※携帯電話からお問合せいただいた方には、ショートメッセージ(SMS)またはLINE通知メッセージによるお問合せ内容に関する通知をお届けする場合があり、お客様の電話番号は株式会社LIFULLで一定期間保管されます
- ※株式会社LIFULLの個人情報の取扱い方針に同意のうえ、お電話ください
| 会社名 |
セキスイハイム東北株式会社 |
|---|---|
| 免許番号 | 国土交通大臣 (9) 第 3749 号 |
| 所在地 | 宮城県仙台市宮城野区榴岡3丁目4番1号アゼリアヒルズ14F |
| 所属団体 |
東北地区不動産公正取引協議会 |
この物件にお問合せする
実際に物件・周辺環境を見て検討したい!
近隣建物や接道の状況など資料で分からない部分も一目瞭然。 まずはWEBで事前予約、スムーズに見学しましょう
ご予約無しに直接ご来場された場合、担当者不在であったり、
他のお客様のご案内の都合上、お待たせしてしまうことがございます。
不動産会社に電話で相談したい!
セキスイハイム東北株式会社 宮城支店
0037-618-84131
無料
電話でのお問合せは「LIFULL HOME'S(ライフルホームズ)を見て」とお伝えください
- ※携帯電話はご利用いただけます
- ※光IP電話、及びIP電話をご利用のお客様はTEL:022-341-1831へご連絡ください
- ※携帯電話からお問合せいただいた方には、ショートメッセージ(SMS)またはLINE通知メッセージによるお問合せ内容に関する通知をお届けする場合があり、お客様の電話番号は株式会社LIFULLで一定期間保管されます
- ※株式会社LIFULLの個人情報の取扱い方針に同意のうえ、お電話ください
LIFULL HOME'Sは物件鮮度No.1を目指していきます 物件情報に誤りがある場合はコチラからご連絡ください
- 【物件番号】
- 1706340-0000274
- ※完成後1年未満で未入居の物件を「新築」と表示しております。
- ※完成予想図やCG合成画像は、門塀・植栽・庭・外観等、実際とは多少異なる場合があります。













