一戸建て 【セキスイハイム】スマートハイムシティ上田市上田原
<徒歩圏内に豊富な医療機関>・池田クリニック:徒歩11分(870m)・善美歯科:徒歩12分(910m)・半田循環器科内科医院:徒歩14分(1120m)他
<2km圏内に買い物施設充実>・ホームセンタームサシ上田店:徒歩14分(1070m)・ダイレックス中之条店:徒歩17分(1320m)・ツルヤ神畑店:徒歩23分(1820m)他
<ゆとりある区画面積の全25区画の大規模分譲地>・分譲地全体の景観・環境づくりで統一感のある街並み・死角ができにくいオープン外構推奨で子供の見守りや防犯性を高め、子育て世帯にもおすすめの環境
0037-618-73503
無料
間取り図
-
3号地 間取り 4LDK+ウォークインクローゼット 価格 3980万円 建物面積 103.69m2(約31.36坪) 土地面積 195.10m2(約59.01坪) -
4号地 間取り 3LDK+タタミコーナー+ウォークインクローゼット 価格 3980万円 建物面積 103.69m2(約31.36坪) 土地面積 196.10m2(約59.32坪) -
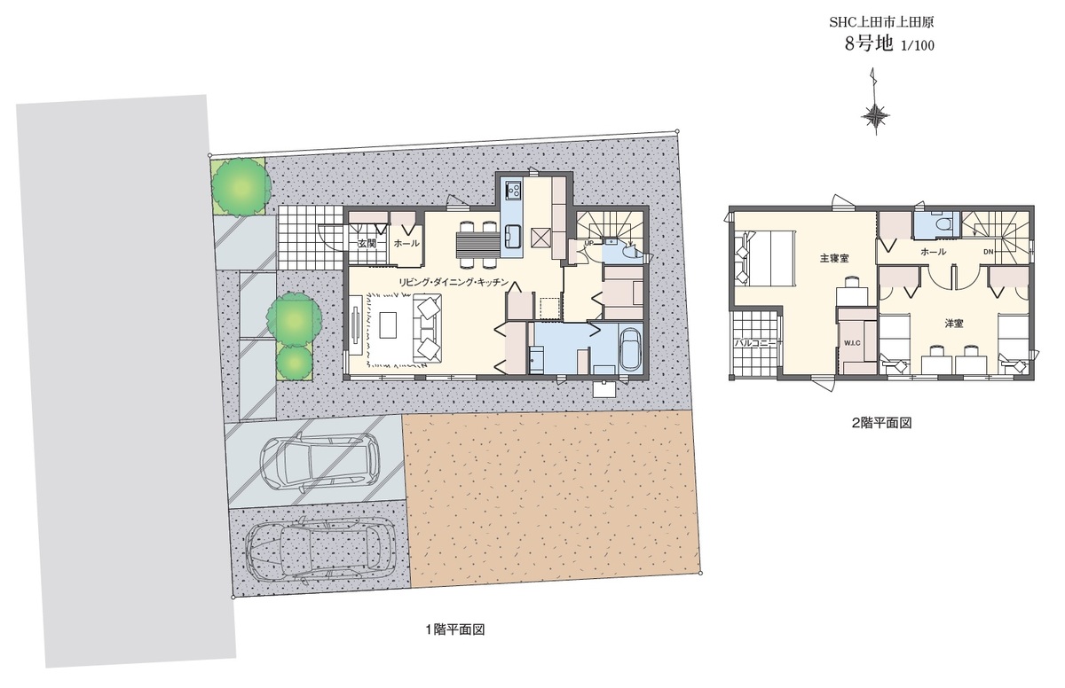
8号地 間取り 2LDK+ウォークインクローゼット 価格 4030万円 建物面積 107.02m2(約32.37坪) 土地面積 220.28m2(約66.63坪) -
15号地 間取り 2LDK+タタミコーナー+ウォークインクローゼット 価格 3920万円 建物面積 100.33m2(約30.34坪) 土地面積 220.32m2(約66.64坪) -
20号地 間取り 3LDK+書斎+納戸+ウォークインクローゼット 価格 4098万円 建物面積 98.16m2(約29.69坪) 土地面積 219.02m2(約66.25坪)
0037-618-73503
無料
内観・室内
間取り・内観のこだわりポイント
- 4LDK以上
- バリアフリー
- 和室
- 南面バルコニー
- 全室2面採光
- 全室フローリング
0037-618-73503
無料
設備・仕様
設備・仕様のこだわりポイント
- キッチン
-
- IHコンロ
- カウンターキッチン
- 食器洗い乾燥機
- 収納
-
- 床下収納
- ウォークインクローゼット
- シューズクローク
- パントリー
- 全居室収納
- その他設備
-
- オール電化
- マイホーム発電システム
- スマートハウス
- シャワー付洗面化粧台
- 温水洗浄便座
- 浴室乾燥機
- トイレ2ヶ所以上
- 節水型トイレ
- 複層ガラス採用(二重サッシ・防犯サッシ等)
- スマートキー
- 省エネ給湯器
- TVモニタ付インターホン
- EV充電設備
0037-618-73503
無料
外観・分譲地
外観・分譲地のこだわりポイント
- 駐車場あり
- 総戸数・総区画数が10以上〜30未満
- 地盤調査済
- 角地
- 整形地
- 前面道路6m以上
- 平坦地
0037-618-73503
無料
周辺環境・地図
周辺情報
※半径4kmを超えると、周辺情報のアイコンは表示されません。
- ※不動産会社が入力した情報を基に物件の位置を表示しています。
- ※詳しくは不動産会社までお問合せください。
- ※地図上に表示される各種アイコンなどの情報は、おおよその所在地を表すものであり、物件・施設などの地点を保証するものではありません。
- ※地図の表示領域が広域になると周辺のお店・施設は表示できなくなります。
- ※地図、航空写真情報および地形ならびに周辺のお店・施設は、必ずしも現況を表すものではありません。
- ※物件から周辺のお店・施設までの距離は、利用が想定される道路を通行した場合の距離です。なお、必ずしも最短距離を保証するものではありません。
周辺環境のこだわりポイント
- 小学校 800m以内
- 保育園・幼稚園 400m以内
0037-618-73503
無料
物件概要
| 所在地 | 長野県上田市上田原字丁田641番19他 | ||
|---|---|---|---|
| 交通 |
上田電鉄別所線「上田原」駅 徒歩9分~11分 分譲地入口から約700~830m |
||
| 販売価格 | 3,920~4,098万円 | 最多価格帯 | 3,900万円台(3区画) |
| 建物面積 | 【20号】98.16m2(約29.69坪)~【8号】107.02m2(約32.37坪) | 土地面積 | 【3号】195.10m2(約59.01坪)~【15号】220.32m2(約66.64坪) |
| 間取り | 2LDK~4LDK | 建物構造 | 3号地・4号地・8号地・15号地・20号地:軽量鉄骨造・2階建て |
| 販売スケジュール | 販売中 | ||
| 販売戸数 / 総戸数 | 6戸 / 25戸 | ||
| 完成予定日 | 2023年6月~2025年4月竣工済 | 引き渡し可能年月 | 即引渡可 |
| 駐車場 | 2台 ~ 3台 | 道路の幅員 | 6.2m・6.5m(アスファルト舗装) |
| 用途地域 | 指定なし | 都市計画 | 非線引区域 |
| 地目 | 宅地 | 国土法 | - |
| 土地の権利 | 所有権 | 借地権の種類・期間 | - |
| その他費用 | 上田原自治会:入会費2000円、年会費9000円、自治会館建設負担金:10000円/3年(計30000円) | ||
| 主たる設備の概要 | 上水道:上田市市営水道、下水道:上田市公共下水道、電気:中部電力、雨水:浸透式 | 建築確認番号 | 完成済みのため省略 |
| 施工会社 | セキスイハイム信越株式会社 | 機構融資 | - |
| 売主 | セキスイハイム信越株式会社 | 取引態様 | セキスイハイム信越株式会社/売主 |
| 備考 |
質感や広さ、色合いなど、現地に来ないと分からないことは沢山! まずはお気軽に、ご見学予約・お問合せ下さい。 【お問合せ・ご予約】 電話/0268-21-0816 セキスイハイム信越東信営業部(火曜・水曜定休/祝日営業) ※間取り図の中の、家具、調度品、自動車等は販売価格に含まれません。 |
||
| 情報更新日 | 2026/04/24 | 次回更新予定日 | 随時 |
| 取引条件有効期限 | 2026/08/31 | ||
住宅性能・販売概要・権利のこだわりポイント
- 所有権
- 瑕疵担保付き
- 仲介手数料不要
- 売主・代理
- 長期優良住宅
- 即入居可
0037-618-73503
無料
取扱い不動産会社
セキスイハイム信越株式会社 東北信支店 東信営業部の会社情報
お電話でのお問合せは「LIFULL HOME'S(ライフルホームズ)を見て」とお伝えください
セキスイハイム信越株式会社 東信営業部
0037-618-73503
無料
- ※携帯電話はご利用いただけます
- ※光IP電話、及びIP電話をご利用のお客様はTEL:0268-21-0816へご連絡ください
- ※携帯電話からお問合せいただいた方には、ショートメッセージ(SMS)またはLINE通知メッセージによるお問合せ内容に関する通知をお届けする場合があり、お客様の電話番号は株式会社LIFULLで一定期間保管されます
- ※株式会社LIFULLの個人情報の取扱い方針に同意のうえ、お電話ください
| 会社名 |
セキスイハイム信越株式会社 東北信支店 東信営業部 |
|---|---|
| 免許番号 | 国土交通大臣 (6) 第 6275 号 |
| 所在地 | 長野県東御市常田502-1 |
| 所属団体 |
(公社)首都圏不動産公正取引協議会 |
この物件にお問合せする
実際に物件・周辺環境を見て検討したい!
近隣建物や接道の状況など資料で分からない部分も一目瞭然。 まずはWEBで事前予約、スムーズに見学しましょう
ご予約無しに直接ご来場された場合、担当者不在であったり、
他のお客様のご案内の都合上、お待たせしてしまうことがございます。
不動産会社に電話で相談したい!
セキスイハイム信越株式会社 東信営業部
0037-618-73503
無料
電話でのお問合せは「LIFULL HOME'S(ライフルホームズ)を見て」とお伝えください
- ※携帯電話はご利用いただけます
- ※光IP電話、及びIP電話をご利用のお客様はTEL:0268-21-0816へご連絡ください
- ※携帯電話からお問合せいただいた方には、ショートメッセージ(SMS)またはLINE通知メッセージによるお問合せ内容に関する通知をお届けする場合があり、お客様の電話番号は株式会社LIFULLで一定期間保管されます
- ※株式会社LIFULLの個人情報の取扱い方針に同意のうえ、お電話ください
LIFULL HOME'Sは物件鮮度No.1を目指していきます 物件情報に誤りがある場合はコチラからご連絡ください
- 【物件番号】
- 1706336-0000026
- ※完成後1年未満で未入居の物件を「新築」と表示しております。
- ※完成予想図やCG合成画像は、門塀・植栽・庭・外観等、実際とは多少異なる場合があります。
物件を再検索する
長野県の人気エリアから新築一戸建てを探す


