一戸建て \春日井市高山町_3号棟/
【18帖の広々LDK】並列駐車2台可能!嬉しい広々洗面室!
食洗機付きの広々キッチン!全居室明るい南向き設計!WIC完備!
即日案内可能!お問い合わせお待ちしております!
当日のご来店・ご見学、大歓迎!
【充実】オール電化、WIC、食洗器、宅配BOX
■名鉄小牧線「春日井」駅 徒歩25分(約2000m)
■春日井小学校:徒歩20分(約1600m)
■西部中学校 :徒歩13分(約1040m)
0037-618-21006
無料
魅力1 ◆来店相談でイオン商品券5000円分プレゼント◆
【来店相談でイオン商品券5000円プレゼント】
・来店時にコチラの画面をご提示ください(スクリーンショット可)
・担当者からの折り返しの電話にて来店日時を確定させていただきます。
・アイデムホームHPからもご予約可能です併せてご覧ください。
・当社全店舗を通して初回来店限定のプレゼントとなります。
・受領書ご記入の際ご本人様確認をさせていただきます。
・アンケートご記入をお願い致します。
【資料請求→物件レポートを見てみよう】
・物件選びの際に役立つアイデムホームのレポート資料を見てみよう!
・周辺環境・統計調査など、「へぇ~!」となる資料が届きます♪
→今すぐ資料請求☆
0037-618-21006
無料
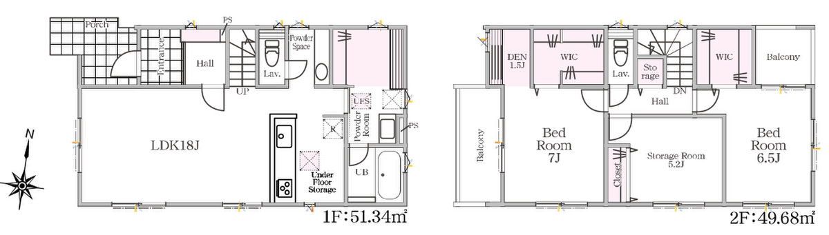
間取り図
0037-618-21006
無料
内観・室内
間取り・内観のこだわりポイント
- LDK15帖以上
- バリアフリー
- 全室フローリング
0037-618-21006
無料
設備・仕様
設備・仕様のこだわりポイント
- キッチン
-
- IHコンロ
- 食器洗い乾燥機
- 浄水器・活水器
- 収納
-
- 床下収納
- ウォークインクローゼット
- 全居室収納
- その他設備
-
- オール電化
- シャワー付洗面化粧台
- 温水洗浄便座
- 浴室乾燥機
- 浴室暖房
- トイレ2ヶ所以上
- 節水型トイレ
- 複層ガラス採用(二重サッシ・防犯サッシ等)
- スマートキー
- 省エネ給湯器
- TVモニタ付インターホン
- 宅配ボックス
0037-618-21006
無料
外観・分譲地
外観・分譲地のこだわりポイント
- 駐車場あり
- 地盤調査済
- 整形地
- 前面道路6m以上
0037-618-21006
無料
周辺環境・地図
周辺情報
※半径4kmを超えると、周辺情報のアイコンは表示されません。
- ※不動産会社が入力した情報を基に物件の位置を表示しています。
- ※詳しくは不動産会社までお問合せください。
- ※地図上に表示される各種アイコンなどの情報は、おおよその所在地を表すものであり、物件・施設などの地点を保証するものではありません。
- ※地図の表示領域が広域になると周辺のお店・施設は表示できなくなります。
- ※地図、航空写真情報および地形ならびに周辺のお店・施設は、必ずしも現況を表すものではありません。
- ※物件から周辺のお店・施設までの距離は、利用が想定される道路を通行した場合の距離です。なお、必ずしも最短距離を保証するものではありません。
周辺環境のこだわりポイント
- コンビニ 400m以内
- 公園 400m以内
0037-618-21006
無料
物件概要
| 所在地 | 愛知県春日井市高山町3丁目21番1 | ||
|---|---|---|---|
| 交通 |
名鉄小牧線「春日井」駅 徒歩25分 |
||
| 販売価格 | 3,780万円 | 最多価格帯 | - |
| 建物面積 | 101.02m2 | 土地面積 | 115.86m2 |
| 間取り | 2SLDK | 建物構造 | 木造2階建 |
| 販売スケジュール | 販売中 | ||
| 販売戸数 / 総戸数 | 3戸 / 3戸 | ||
| 完成予定日 | 2024年4月 | 引き渡し可能年月 | 即可 |
| 駐車場 | 2台 | 道路の幅員 | 西側6.0m(公道) |
| 用途地域 | 第一種中高層住居専用地域 | 都市計画 | 市街化区域 |
| 地目 | 宅地 | 国土法 | - |
| 土地の権利 | 所有権 | 借地権の種類・期間 | - |
| 主たる設備の概要 | 公営水道、本下水、中部電力 | 建築確認番号 | 完成済みのため省略 |
| 施工会社 | - | 機構融資 | - |
| 売主 | 取引態様 | アイデムホーム名古屋東店<仲介> | |
| イベント情報 |
|
||
| 備考 |
<自己資金0円でも大丈夫!> *水曜日も営業しております! *今から見たい!聞きたい!にスピード対応! *自己資金なしでも購入出来ます! *自営業の方・買い替えの方など資金計画でご不安な方もおまかせください! ◆ご来店のメリット ・ネット掲載以外の発売予定や未公開物件の情報の提供 ・現に売り出し中物件の商談などの販売状況や工事進捗状況の提供 ・豊富な物件情報の中からお客様のご要望に合わせて物件をご紹介 ◆住宅ローンについて 豊富な販売実績により、お客様のご希望や条件に合う最適な住宅ローン商品のご提案をさせて頂きます。 ・勤続年数が短い方、自営業者の方 ・車のローンやクレジット、キャッシングの借入がある方 ・自己資金がない、支払いに不安のある方 など他にもご不安、心配な事がある方は何でもご相談下さい。 ◆弊社店舗について 駐車場5台完備、キッズコーナーも併設しておりますのでお子様連れでもご安心下さい。 落ち着いた空間でお菓子やドリンクサービスもございますので快適にお過ごし頂けます。 毎朝、店内の消毒をしており、消毒用アルコールも設置しております。 ご来店時には、手の消毒にご協力お願い致します。 完全個室もご用意しております数に限りがございますのでご予約をお願いいたします。 ◆ご案内について 現地でのお待ち合わせやお客様のご希望によりご自宅までの送迎や最寄り駅までの送迎も行います。 又、弊社までご来店して頂きご案内も可能です。 ◆その他各種ご相談もお気軽にご相談下さい 弊社では「ワンストップサービス」を取り入れております。 専門部署によるリフォーム、オプション工事や火災保険の販売など住宅購入に関する事はすべてアイデムホームで対応可能です。 また、安心できるファイナンシャルプランナーによる資金計画(要予約)も実施しております。 アイデムホームではお客様第一での営業を心掛けております。 スタッフ一同全力でお客様のサポートをさせて頂きますのでお気軽にお問合せ下さい。 |
||
| 情報更新日 | 2026/04/22 | 次回更新予定日 | 随時 |
| 取引条件有効期限 | 2027/01/28 | ||
住宅性能・販売概要・権利のこだわりポイント
- 所有権
- 即入居可
0037-618-21006
無料
現地・イベント情報
★来店相談でイオン商品券5000円分プレゼント★
| 開催日時 |
2025年01月01日〜2030年12月31日
|
|---|---|
| 開催場所 | 愛知県名古屋市名東区藤見が丘100パラダイム東光1階 |
| 交通 |
名古屋市営東山線「藤が丘」駅 徒歩4分 |
\予約来店相談で5000円分イオン商品券プレゼント/ ●来店時にコチラの画面をご提示ください(スクリーンショット可) ●担当者からの折り返しの電話にて来店日時を確定させていただきます ●アイデムホームHPからもご予約可能です併せてご覧ください ●当社全店舗を通して初回来店相談限定プレゼントとなります ●受領書ご記入の際ご本人様確認をさせていただきます ●アンケートご記入をお願い致します ●予告なく終了する場合がございます
取扱い不動産会社
スタッフからのコメント
- 私にお任せください!
- 今のお住まいの不満や悩み、希望条件やご要望など、お客様の“本音”をじっくりお聞かせください。
豊富な知識、経験、実績を最大限に活かし、お客様のご希望に合った最適な物件をご提案、無理のない資金計画をご提供させて頂きます。
「この人に任せて良かった」と思われるようなアドバイザーを目指し、 誠心誠意ご対応致します。
内田 光彦
株式会社アイデムホーム 名古屋東店の会社情報
お電話でのお問合せは「LIFULL HOME'S(ライフルホームズ)を見て」とお伝えください
アイデムホーム名古屋東店
0037-618-21006
無料
- ※携帯電話はご利用いただけます
- ※光IP電話、及びIP電話をご利用のお客様はTEL:052-769-4330へご連絡ください
- ※携帯電話からお問合せいただいた方には、ショートメッセージ(SMS)またはLINE通知メッセージによるお問合せ内容に関する通知をお届けする場合があり、お客様の電話番号は株式会社LIFULLで一定期間保管されます
- ※株式会社LIFULLの個人情報の取扱い方針に同意のうえ、お電話ください
| 会社名 |
株式会社アイデムホーム 名古屋東店 |
|---|---|
| 免許番号 | 国土交通大臣 (1) 第 9915 号 |
| 所在地 | 愛知県名古屋市名東区藤見が丘100 パラダイム東光 |
| 所属団体 |
(公社)愛知県宅地建物取引業協会 |
この物件にお問合せする
実際に物件・周辺環境を見て検討したい!
近隣建物や接道の状況など資料で分からない部分も一目瞭然。 まずはWEBで事前予約、スムーズに見学しましょう
ご予約無しに直接ご来場された場合、担当者不在であったり、
他のお客様のご案内の都合上、お待たせしてしまうことがございます。
不動産会社に電話で相談したい!
アイデムホーム名古屋東店
0037-618-21006
無料
電話でのお問合せは「LIFULL HOME'S(ライフルホームズ)を見て」とお伝えください
- ※携帯電話はご利用いただけます
- ※光IP電話、及びIP電話をご利用のお客様はTEL:052-769-4330へご連絡ください
- ※携帯電話からお問合せいただいた方には、ショートメッセージ(SMS)またはLINE通知メッセージによるお問合せ内容に関する通知をお届けする場合があり、お客様の電話番号は株式会社LIFULLで一定期間保管されます
- ※株式会社LIFULLの個人情報の取扱い方針に同意のうえ、お電話ください
LIFULL HOME'Sは物件鮮度No.1を目指していきます 物件情報に誤りがある場合はコチラからご連絡ください
- 【物件番号】
- 1706326-0000150
- ※完成後1年未満で未入居の物件を「新築」と表示しております。
- ※完成予想図やCG合成画像は、門塀・植栽・庭・外観等、実際とは多少異なる場合があります。
物件を再検索する
愛知県の人気エリアから新築一戸建てを探す







