一戸建て 上谷口建売(3)
JR上伊集院駅まで徒歩10分の閑静な住宅地に5LDKのお手頃物件新築!ぜひ一度ご覧ください!
上伊集院園まで車で1分、JR乗車にて鹿児島中央駅まで12分と通勤や通学に適した立地です。
広々リビング、各部屋収納あり、明るく風通しの良い新築です。
スーパー、コンビニ、郵便局と車で3分圏内と生活しやすい立地。
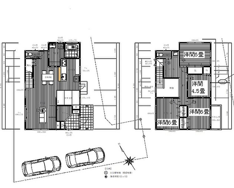
4畳半の和室もあります。
駐車も2台可能で、子育て世代向けのお値打ち物件(諸経費別途)です。
0037-618-52840
無料
内観・室内
間取り・内観のこだわりポイント
- LDK15帖以上
- 4LDK以上
- 吹き抜け
0037-618-52840
無料
設備・仕様
設備・仕様のこだわりポイント
- キッチン
-
- IHコンロ
- 食器洗い乾燥機
- 収納
-
- ウォークインクローゼット
- 全居室収納
- その他設備
-
- シャワー付洗面化粧台
- 温水洗浄便座
- トイレ2ヶ所以上
- 複層ガラス採用(二重サッシ・防犯サッシ等)
- TVモニタ付インターホン
0037-618-52840
無料
外観・分譲地
外観・分譲地のこだわりポイント
- 駐車場あり
- 地盤調査済
0037-618-52840
無料
周辺環境・地図
周辺情報
※半径4kmを超えると、周辺情報のアイコンは表示されません。
- ※不動産会社が入力した情報を基に物件の位置を表示しています。
- ※詳しくは不動産会社までお問合せください。
- ※地図上に表示される各種アイコンなどの情報は、おおよその所在地を表すものであり、物件・施設などの地点を保証するものではありません。
- ※地図の表示領域が広域になると周辺のお店・施設は表示できなくなります。
- ※地図、航空写真情報および地形ならびに周辺のお店・施設は、必ずしも現況を表すものではありません。
- ※物件から周辺のお店・施設までの距離は、利用が想定される道路を通行した場合の距離です。なお、必ずしも最短距離を保証するものではありません。
0037-618-52840
無料
物件概要
| 所在地 | 鹿児島県鹿児島市上谷口町1712-39 | ||
|---|---|---|---|
| 交通 |
JR鹿児島本線「上伊集院」駅 徒歩10分 |
||
| 販売価格 | 2380万円 | 最多価格帯 | - |
| 建物面積 | 116.05m2 | 土地面積 | 189.35m2 |
| 間取り | 5LDK | 建物構造 | 木造2階建 |
| 販売スケジュール | 販売中 | ||
| 販売戸数 / 総戸数 | 1戸 / 1戸 | ||
| 完成予定日 | 完成済 | 引き渡し可能年月 | 即引渡可 |
| 駐車場 | 2台 | 道路の幅員 | 東側5m位置指定あり |
| 用途地域 | 無指定 | 都市計画 | 都市計画区域外 |
| 地目 | 宅地 | 国土法 | 日本 |
| 土地の権利 | 所有権 | 借地権の種類・期間 | - |
| 主たる設備の概要 | 電気、水道 | 建築確認番号 | 完成済みのため省略 |
| 施工会社 | 有限会社有馬住宅 | 機構融資 | - |
| 売主 | 有限会社有馬住宅 [鹿児島県知事免許(12)第2213号] | 取引態様 | 有限会社有馬住宅 売主 |
| 備考 |
自社で土地造成まで行うからこそ、土地代を抑え、提供できる価格です。 地元で40年以上の分譲や建売、団地造成の実績があります。 ぜひ、ご覧ください。 |
||
| 情報更新日 | 2025/10/24 | 次回更新予定日 | 随時 |
| 取引条件有効期限 | 2025/03/31 | ||
住宅性能・販売概要・権利のこだわりポイント
- 所有権
- 瑕疵担保付き
- 売主・代理
- 即入居可
0037-618-52840
無料
取扱い不動産会社
有限会社有馬住宅の会社情報
お電話でのお問合せは「LIFULL HOME'S(ライフルホームズ)を見て」とお伝えください
有限会社有馬住宅
0037-618-52840
無料
- ※携帯電話はご利用いただけます
- ※光IP電話、及びIP電話をご利用のお客様はTEL:099-278-7185へご連絡ください
- ※携帯電話からお問合せいただいた方には、ショートメッセージ(SMS)またはLINE通知メッセージによるお問合せ内容に関する通知をお届けする場合があり、お客様の電話番号は株式会社LIFULLで一定期間保管されます
- ※株式会社LIFULLの個人情報の取扱い方針に同意のうえ、お電話ください
| 会社名 |
有限会社有馬住宅 |
|---|---|
| 免許番号 | 鹿児島県知事 (10) 第 2213 号 |
| 所在地 | 鹿児島県鹿児島市上谷口町1699-64 |
| 所属団体 |
(一社)九州不動産公正取引協議会 |
この物件にお問合せする
実際に物件・周辺環境を見て検討したい!
近隣建物や接道の状況など資料で分からない部分も一目瞭然。 まずはWEBで事前予約、スムーズに見学しましょう
ご予約無しに直接ご来場された場合、担当者不在であったり、
他のお客様のご案内の都合上、お待たせしてしまうことがございます。
不動産会社に電話で相談したい!
有限会社有馬住宅
0037-618-52840
無料
電話でのお問合せは「LIFULL HOME'S(ライフルホームズ)を見て」とお伝えください
- ※携帯電話はご利用いただけます
- ※光IP電話、及びIP電話をご利用のお客様はTEL:099-278-7185へご連絡ください
- ※携帯電話からお問合せいただいた方には、ショートメッセージ(SMS)またはLINE通知メッセージによるお問合せ内容に関する通知をお届けする場合があり、お客様の電話番号は株式会社LIFULLで一定期間保管されます
- ※株式会社LIFULLの個人情報の取扱い方針に同意のうえ、お電話ください
LIFULL HOME'Sは物件鮮度No.1を目指していきます 物件情報に誤りがある場合はコチラからご連絡ください
- 【物件番号】
- 1706280-0000003
- ※完成後1年未満で未入居の物件を「新築」と表示しております。
- ※完成予想図やCG合成画像は、門塀・植栽・庭・外観等、実際とは多少異なる場合があります。
物件を再検索する
鹿児島県の人気エリアから新築一戸建てを探す






