一戸建て 【セキスイハイム】小倉南葛原
【セキスイハイム】葛原小徒歩3分でお子様の通学も安心。買い物施設も充実。
【9号地の設備】■蓄電池システム■磁器タイル外壁■太陽光発電システム■第一種換気&床下利用冷暖房システム(鉄骨系)■HEMS(ホームエネルギーマネジメントシステム)
【アクセス】JR日豊本線「安部山公園」駅より徒歩18分、西鉄バス「葛原小学校前」バス停より徒歩7分
0037-618-85964
無料
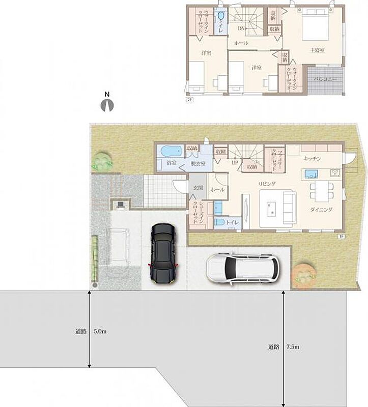
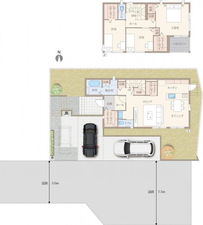
間取り図
0037-618-85964
無料
内観・室内
間取り・内観のこだわりポイント
- LDK15帖以上
- 南面バルコニー
- 全室フローリング
0037-618-85964
無料
設備・仕様
設備・仕様のこだわりポイント
- キッチン
-
- IHコンロ
- 食器洗い乾燥機
- 収納
-
- ウォークインクローゼット
- シューズクローク
- 全居室収納
- その他設備
-
- 都市ガス
- マイホーム発電システム
- スマートハウス
- シャワー付洗面化粧台
- 温水洗浄便座
- 浴室乾燥機
- トイレ2ヶ所以上
- タンクレストイレ
- 節水型トイレ
- 複層ガラス採用(二重サッシ・防犯サッシ等)
- スマートキー
- 省エネ給湯器
- TVモニタ付インターホン
- 宅配ボックス
0037-618-85964
無料
外観・分譲地
外観・分譲地のこだわりポイント
- 総戸数・総区画数が10以上〜30未満
- 地盤調査済
- 南道路
0037-618-85964
無料
周辺環境・地図
周辺情報
※半径4kmを超えると、周辺情報のアイコンは表示されません。
- ※不動産会社が入力した情報を基に物件の位置を表示しています。
- ※詳しくは不動産会社までお問合せください。
- ※地図上に表示される各種アイコンなどの情報は、おおよその所在地を表すものであり、物件・施設などの地点を保証するものではありません。
- ※地図の表示領域が広域になると周辺のお店・施設は表示できなくなります。
- ※地図、航空写真情報および地形ならびに周辺のお店・施設は、必ずしも現況を表すものではありません。
- ※物件から周辺のお店・施設までの距離は、利用が想定される道路を通行した場合の距離です。なお、必ずしも最短距離を保証するものではありません。
周辺環境のこだわりポイント
- 小学校 800m以内
0037-618-85964
無料
物件概要
| 所在地 | 福岡県北九州市小倉南区葛原4丁目 | ||
|---|---|---|---|
| 交通 |
JR日豊本線「安部山公園」駅 徒歩18分 西鉄バス「葛原小学校前」バス停 徒歩7分 |
||
| 販売価格 | 5880万円 | 最多価格帯 | 5880万円(1戸) |
| 建物面積 | 107.57m2 | 土地面積 | 180.63m2 |
| 間取り | 3LDK | 建物構造 | 2階建て 構造:鉄骨造 工法:ユニット工法 |
| 販売スケジュール | - | ||
| 販売戸数 / 総戸数 | 1戸 / 11戸 | ||
| 完成予定日 | 2024/03 | 引き渡し可能年月 | 即時 |
| 駐車場 | - | 道路の幅員 | 5.00m ~ 8.50m |
| 用途地域 | 第1種低層住居専用地域 | 都市計画 | 市街化区域 |
| 地目 | 地目:宅地 | 国土法 | - |
| 土地の権利 | 所有権 | 借地権の種類・期間 | - |
| 主たる設備の概要 | 【電気】九州電力(他の小売電気事業者の選択も可能)【ガス】都市ガス【水道】公営【汚水排水】公共下水【雨水】側溝 | 建築確認番号 | 完成済み |
| 施工会社 | - | 機構融資 | - |
| 売主 | セキスイハイム九州株式会社 | 取引態様 | セキスイハイム九州株式会社(売主) |
| 備考 |
最後までご覧頂き誠にありがとうございます。 【小倉南葛原】 ☆☆☆☆☆☆☆☆☆☆☆☆☆☆☆☆☆☆☆☆☆☆☆☆☆☆☆☆☆☆☆☆☆☆☆☆☆☆☆☆ 『本物件は、建物価格に消費税10%相当額を含んでおります。』 ☆☆☆☆☆☆☆☆☆☆☆☆☆☆☆☆☆☆☆☆☆☆☆☆☆☆☆☆☆☆☆☆☆☆☆☆☆☆☆☆ 《分譲地概要》【総面積】開発面積:2,937.32m2【総区画数】11区画(内セキスイハイム持分5区画)【開発行為】検査済証:第504416号(令和4年11月10日)【都市計画】市街化区域【高さ制限】10m【壁面後退】1m【地区計画】無【街区・地区等】土砂災害警戒区域、宅地造成等工事規制区域、景観計画区域、建築基準法第22条区域【造成工事】完了済【開発負担金】無【共有地施設負担金等】ゴミ置場4.98m2、持分1/11【組合費】町内会費2,400円/年【CATV加入条件】JCOM標準プラン利用料金4,325円/月、初期費用:事務手数料3,080円、ブースター料金7,150円【管理組合】無【ガイドライン】無■プラン中の外構及び植栽、屋外の給排水工事費、特殊基礎、水道加入金及び下水道受益者負担金、屋外の電気工事費は価格に含まれております。■ローン手数料・登記料及びその他の諸費用は別途となります。■プラン掲載の車両及び応接セット、ダイニングセット、ベッド、座卓などの家具調度類はイメージです。記載の価格には含まれておりません。 ※物件の見学・対面でのご相談、物件の資料請求をご希望の方 見学予約・資料請求フォームからお問合せ下さい。 :+:-:+:-:来場予約特典:-:+:-:+:-:+:-:+:-:+:-:+:-:+:-:+:-:+:-:+::-:+:-:+:-: 弊社ホームページからWEB予約で分譲地or建売住宅いずれかご見学の方に 「デジタルギフト3000円分」をプレゼント!! ※それぞれ見学された場合でも、3000円分が上限となります。 ※ギフト券のプレゼントは一家族につき一回限りとさせていただきます。ご了承ください。 :-:+:-:+:-:+:-:+:-:+:-:+:-:+:-:+:-:+:-:+::-:+:-:+:-: |
||
| 情報更新日 | 2026/05/08 | 次回更新予定日 | 随時 |
| 取引条件有効期限 | 2026/05/22 | ||
住宅性能・販売概要・権利のこだわりポイント
- 所有権
- 瑕疵担保付き
- 仲介手数料不要
- 売主・代理
- 耐震・制震・免震構造
- 長期優良住宅
- 設計住宅性能評価書
- 建設住宅性能評価書(新築時)
- 即入居可
0037-618-85964
無料
取扱い不動産会社
セキスイハイム九州株式会社の会社情報
お電話でのお問合せは「LIFULL HOME'S(ライフルホームズ)を見て」とお伝えください
セキスイハイム九州株式会社 北九州支店
0037-618-85964
無料
- ※携帯電話はご利用いただけます
- ※光IP電話、及びIP電話をご利用のお客様はTEL:0120-540-816へご連絡ください
- ※携帯電話からお問合せいただいた方には、ショートメッセージ(SMS)またはLINE通知メッセージによるお問合せ内容に関する通知をお届けする場合があり、お客様の電話番号は株式会社LIFULLで一定期間保管されます
- ※株式会社LIFULLの個人情報の取扱い方針に同意のうえ、お電話ください
| 会社名 |
セキスイハイム九州株式会社 |
|---|---|
| 免許番号 | 国土交通大臣 (5) 第 7094 号 |
| 所在地 | 福岡県福岡市中央区2丁目8-1オヌキ高砂ビル6階 |
| 所属団体 |
(一社)九州不動産公正取引協議会 |
この物件にお問合せする
実際に物件・周辺環境を見て検討したい!
近隣建物や接道の状況など資料で分からない部分も一目瞭然。 まずはWEBで事前予約、スムーズに見学しましょう
ご予約無しに直接ご来場された場合、担当者不在であったり、
他のお客様のご案内の都合上、お待たせしてしまうことがございます。
不動産会社に電話で相談したい!
セキスイハイム九州株式会社 北九州支店
0037-618-85964
無料
電話でのお問合せは「LIFULL HOME'S(ライフルホームズ)を見て」とお伝えください
- ※携帯電話はご利用いただけます
- ※光IP電話、及びIP電話をご利用のお客様はTEL:0120-540-816へご連絡ください
- ※携帯電話からお問合せいただいた方には、ショートメッセージ(SMS)またはLINE通知メッセージによるお問合せ内容に関する通知をお届けする場合があり、お客様の電話番号は株式会社LIFULLで一定期間保管されます
- ※株式会社LIFULLの個人情報の取扱い方針に同意のうえ、お電話ください
LIFULL HOME'Sは物件鮮度No.1を目指していきます 物件情報に誤りがある場合はコチラからご連絡ください
- 【物件番号】
- 1705991-0000643
- ※完成後1年未満で未入居の物件を「新築」と表示しております。
- ※完成予想図やCG合成画像は、門塀・植栽・庭・外観等、実際とは多少異なる場合があります。






