新築一戸建て 【飯田の分譲住宅】飯田グループホールディングス Heartful Town 和光市白子3丁目全1棟
- 価格
- 5190万円
- 所在地
- 埼玉県和光市白子3
- 交通
- 東武東上線「成増」駅 徒歩15分東京メトロ有楽町線「地下鉄成増」駅 徒歩17分都営三田線「西高島平」駅 徒歩22分
乗り換え案内
- 土地面積
- 52.86m2(実測)
- 建物面積
- 91.74m2(実測)
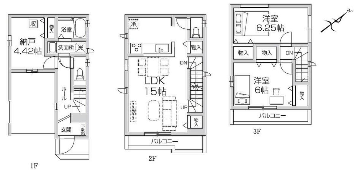
- 間取り
- 2LDK+S(納戸)
この物件は未完成のため、掲載写真(外観、内観、設備等)には、施工例が含まれている場合があります。物件詳細については、掲載の不動産会社宛にお問合せください。
~人気の成増駅歩15分!15帖LDK・収納豊富【本日見学可能】地震に強い家~
○東武東上線「成増」歩15分
小学校 徒歩10分、中学校 徒歩20分、保育園 徒歩2分
スーパー 徒歩6分、コンビニ 徒歩4分、ドラッグストア 徒歩6分
■ビルトインガレージ
■ご家族のコミュニケーションを育む対面式キッチン
■全室収納完備
■こちらの物件はZEH水準を満たした、省エネ性能に優れた物件です。
0037-618-54749
無料
魅力1 ~充実の設備!安心快適な暮らし~
【1坪タイプバスルーム】
足を伸ばして毎日の疲れを癒せる広々1坪タイプです。半身浴もでき、ゆっくりと寛げます。お子様と一緒でも快適に入浴が出来ますね。
【TVモニター付きインターホン】
録画機能もあり、どのような人が何時に来訪されたのかが分かります。防犯上はもちろん、お届け物などの把握にも便利です。ライトが付いているので、夜間でも安心です。
【複層ガラス】
2枚のガラスを組み合わせて作った窓ガラスです。断熱性、防犯性、結露予防、紫外線予防があり、省エネ効果も期待できます。
魅力2 学校やスーパー、病院が揃う生活に便利な周辺環境◎
【買い物】
ザ・マーケットプレイス和光:徒歩19分(1480m)
ベルク和光白子店:徒歩6分(480m)
マルエツ成増団地店:徒歩8分(620m)
セブンイレブン和光白子3丁目店:徒歩4分(320m)
ドラッグセイムス白子店:徒歩6分(470m)
【学校】
和光市立白子小学校:徒歩10分(790m)
和光市立大和中学校:徒歩20分(1600m)
【幼稚園・保育園】
しらこ保育園:徒歩2分(130m)
成増幼稚園:徒歩9分(710m)
【その他】
医療法人社団翠会成増厚生病院:徒歩14分(1110m)
和光市役所白子吹上出張所:徒歩8分(640m)
成増北第一公園:徒歩10分(740m)
魅力3 【ホームトレードセンター】による一括サポート!お気軽にお問い合わせください!
☆ホームトレードセンターは日本一の分譲実績を誇る飯田グループホールディングス株式会社唯一の不動産販売専門会社です。
専門知識の高い販売専門のプロがアフターケアまでしっかりとサポート致します!
マイホーム探しや住宅購入、お住まいの住み替えご相談ください♪
当社買い取り保証サービスもご好評いただいております。もちろん住宅ローンのシミュレーション、資金計画等も承っております。
0037-618-54749
無料
間取り図
0037-618-54749
無料
内観・室内
間取り・内観のこだわりポイント
- LDK15帖以上
- 全居室6帖以上
- バリアフリー
- 南面バルコニー
- 全室2面採光
- 全室フローリング
- 3階建て
0037-618-54749
無料
設備・仕様
-
【省エネ性能ラベル】
こちらの物件はZEH水準を満たした、省エ...
-
【システムキッチン】
見栄えもよくお手入れもスムーズに出来ます...
-
【1坪タイプバスルーム】
足を伸ばして毎日の疲れを癒せる広々1坪タ...
-
【浴室換気乾燥機】
雨の日や冬場のお洗濯に嬉しい装備。洗濯物...
-
【TVモニター付きインターホン】
録画機能もあり、どのような人が何時に来訪...
-
【複層ガラス】
2枚のガラスを組み合わせて作った窓ガラス...
-
ベタ基礎は「鉄筋コンクリート造」
耐震性を発揮する鉄筋入りスラブー体基礎を...
-
防湿措置「基礎パッキン」
基礎と土台の間に基礎パッキン(20mm厚...
-
オリジナル柱脚・柱頭固定金物「TロックI...
「TロックII」は、ホールダウン金物の約...
設備・仕様のこだわりポイント
- キッチン
-
- カウンターキッチン
- 浄水器・活水器
- 収納
-
- 床下収納
- 全居室収納
- その他設備
-
- 都市ガス
- シャワー付洗面化粧台
- 温水洗浄便座
- 浴室乾燥機
- トイレ2ヶ所以上
- 節水型トイレ
- 複層ガラス採用(二重サッシ・防犯サッシ等)
- スマートキー
- 省エネ給湯器
- TVモニタ付インターホン
- ガレージ
省エネ性能
- エネルギー消費性能:★★★(削減率20%達成)
- 断熱性能:5段階/7段階 ※「省エネ性能ラベル」は特定の住戸の性能を示し、全ての住戸の性能を示していない場合があります。
0037-618-54749
無料
外観・分譲地
外観・分譲地のこだわりポイント
- 駐車場あり
- 地盤調査済
- 南道路
- 整形地
- 平坦地
0037-618-54749
無料
周辺環境・地図
周辺環境のこだわりポイント
- スーパー 800m以内
- コンビニ 400m以内
- 小学校 800m以内
- 保育園・幼稚園 400m以内
- 複数路線
- 最寄り駅が始発駅
0037-618-54749
無料
物件概要
| 所在地 | 埼玉県和光市白子3 | ||
|---|---|---|---|
| 交通 |
東武東上線「成増」駅 徒歩15分 東京メトロ有楽町線「地下鉄成増」駅 徒歩17分 都営三田線「西高島平」駅 徒歩22分 |
||
| 販売価格 | 5190万円 | 最多価格帯 | - |
| 建物面積 | 91.74m2(実測) | 土地面積 | 52.86m2(実測) |
| 間取り | 2LDK+S(納戸) | 建物構造 | 木造サイディング貼ルーフィング葺3階建 |
| 販売スケジュール | 販売中 | ||
| 販売戸数 / 総戸数 | 1戸 / 1戸 | ||
| 完成予定日 | 2026年6月末予定 | 引き渡し可能年月 | 2026年6月末予定 |
| 駐車場 | 1台 | 道路の幅員 | 道路幅:4m、アスファルト舗装、南側私道 私道負担9.59m2×58/100 |
| 用途地域 | 第一種中高層住居専用地域 | 都市計画 | - |
| 地目 | 宅地、公衆用道路 | 国土法 | - |
| 土地の権利 | 所有権 | 借地権の種類・期間 | - |
| 主たる設備の概要 | 公営水道、都市ガス、公共下水、東京電力 | 建築確認番号 | HPA-26-00907-1 |
| 施工会社 | - | 機構融資 | - |
| 売主 | 取引態様 | 飯田グループホールディングス ホームトレードセンター(株)ときわ台営業所<仲介> | |
| 備考 |
【その他制限事項】 防火指定無 【イベント情報】 (事前に必ず予約してください) ◎飯田グループホールディングス唯一の販売専門会社の ホームトレードセンターの社員が直接、当物件をご案内いたします! ▽貴重なお時間の中でご希望の情報をご提供します▽ 【内容(所要時間)】 (1) さくっと見学コース (30分~) (2) じっくり見学コース (60分~) (3) 納得見学コース (90分~) (4) まずは住宅ローン相談 (30分~) 日程/毎日(土日祝日だけではなく、平日も可能です) 時間/10:00~20:00 案内員が常駐しておりませんので、見学の際は 必ず事前にお問い合わせいただけますと幸いです。 鍵の手配が必要な場合がありますので、 お早めにご連絡をいただけると案内がスムーズです。 【資料請求(無料)】【電話で問い合わせ(無料)】から、 お日にち・時間帯のご指定が可能です! 平日やお仕事前・後のご見学もお待ちしております♪ ◆◇◆◇◆◇◆◇◆◇◆◇◆◇◆◇◆◇◆◇◆◇ |
||
| 情報更新日 | 2026/05/14 | 次回更新予定日 | 2026/05/26 |
| 取引条件有効期限 | 2027/03/31 | ||
住宅性能・販売概要・権利のこだわりポイント
- 所有権
- 瑕疵担保付き
- 設計住宅性能評価書
- フラット35・S適合証明書
0037-618-54749
無料
取扱い不動産会社
スタッフからのコメント
- テレビCMでおなじみ【飯田グループHD販売専門スタッフ】
- お客様の目線に立って、お客様にとってベストなご提案をさせていただきます。住宅ローンのご相談など、お気軽にお申し付けください。
【この物件について】 ビルトインガレージ有♪15帖LDKに対面キッチンを配したプラン♪全室収納付の暮らしやすい家♪飯田グループホールディングス唯一の販売専門会社のホームトレードセンターの社員が直接、当物件をご案内いたします
【得意エリア】 志木市 和光市
黒田 彪
ホームトレードセンター株式会社 ときわ台営業所の会社情報
お電話でのお問合せは「LIFULL HOME'S(ライフルホームズ)を見て」とお伝えください
飯田グループホールディングス ホームトレードセンター(株)ときわ台営業所
0037-618-54749
無料
- ※携帯電話はご利用いただけます
- ※光IP電話、及びIP電話をご利用のお客様はTEL:03-5916-0688へご連絡ください
- ※携帯電話からお問合せいただいた方には、ショートメッセージ(SMS)またはLINE通知メッセージによるお問合せ内容に関する通知をお届けする場合があり、お客様の電話番号は株式会社LIFULLで一定期間保管されます
- ※株式会社LIFULLの個人情報の取扱い方針に同意のうえ、お電話ください
| 会社名 |
ホームトレードセンター株式会社 ときわ台営業所 |
|---|---|
| 免許番号 | 国土交通大臣 (3) 第 8044 号 |
| 所在地 | 東京都板橋区常盤台1-2-1 常盤台IGビル1階 |
| 所属団体 |
(公社)全日本不動産協会東京都本部 |
この物件にお問合せする
実際に物件・周辺環境を見て検討したい!
近隣建物や接道の状況など資料で分からない部分も一目瞭然。 まずはWEBで事前予約、スムーズに見学しましょう
ご予約無しに直接ご来場された場合、担当者不在であったり、
他のお客様のご案内の都合上、お待たせしてしまうことがございます。
不動産会社に電話で相談したい!
飯田グループホールディングス ホームトレードセンター(株)ときわ台営業所
0037-618-54749
無料
電話でのお問合せは「LIFULL HOME'S(ライフルホームズ)を見て」とお伝えください
- ※携帯電話はご利用いただけます
- ※光IP電話、及びIP電話をご利用のお客様はTEL:03-5916-0688へご連絡ください
- ※携帯電話からお問合せいただいた方には、ショートメッセージ(SMS)またはLINE通知メッセージによるお問合せ内容に関する通知をお届けする場合があり、お客様の電話番号は株式会社LIFULLで一定期間保管されます
- ※株式会社LIFULLの個人情報の取扱い方針に同意のうえ、お電話ください
LIFULL HOME'Sは物件鮮度No.1を目指していきます 物件情報に誤りがある場合はコチラからご連絡ください
- 【物件番号】
- 1705472-0001161
- ※完成後1年未満で未入居の物件を「新築」と表示しております。
- ※完成予想図やCG合成画像は、門塀・植栽・庭・外観等、実際とは多少異なる場合があります。
物件を再検索する
埼玉県の人気エリアから新築一戸建てを探す
- 川越市
- 熊谷市
- 川口市
- 行田市
- 秩父市
- 所沢市
- 飯能市
- 加須市
- 本庄市
- 東松山市
- 春日部市
- 狭山市
- 羽生市
- 鴻巣市
- 深谷市
- 上尾市
- 草加市
- 越谷市
- 蕨市
- 戸田市
- 入間市
- 朝霞市
- 志木市
- 新座市
- 桶川市
- 久喜市
- 北本市
- 八潮市
- 富士見市
- 三郷市
- 蓮田市
- 坂戸市
- 幸手市
- 鶴ヶ島市
- 日高市
- 吉川市
- ふじみ野市
- 白岡市
- 北足立郡伊奈町
- 入間郡三芳町
- 入間郡毛呂山町
- 入間郡越生町
- 比企郡滑川町
- 比企郡嵐山町
- 比企郡小川町
- 比企郡川島町
- 比企郡吉見町
- 比企郡鳩山町
- 比企郡ときがわ町
- 秩父郡横瀬町
- 秩父郡皆野町
- 秩父郡小鹿野町
- 児玉郡美里町
- 児玉郡神川町
- 児玉郡上里町
- 大里郡寄居町
- 南埼玉郡宮代町
- 北葛飾郡杉戸町
- 北葛飾郡松伏町








