一戸建て 【セキスイハイム】芦野2丁目分譲住宅
- 価格
- 3990万円
- 所在地
-
北海道釧路市芦野2丁目3-5、3-32
地図を見る
- 交通
- くしろバス「芦野2丁目」停まで 徒歩2分 バス乗車22分、JR根室本線「釧路」駅
- 土地面積
- 150.17m2(45.42坪)
- 建物面積
- 100.81m2(30.49坪)
- 間取り
- 4LDK
■新価格!即入居可能&外構完成済み&家具・エアコン付き
■イオン釧路店まで自転車利用で5分!
■災害時・停電時も安心のスマートハイム仕様!
0037-633-58681
無料
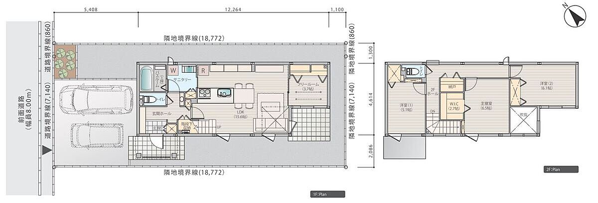
魅力1 【見学予約受付中】4LDKの即入居可能物件!【家具&エアコン付】
【フリールーム】約3.7帖のフリールームは、お子様の遊び場や客間としてフレキシブルにご利用いただけます!
【サニタリー】窓があり明るく清潔なサニタリー!収納も備え付けです♪
【WIC】2.7帖のWIC付き!衣類の他にキャリーケース等も収納できるゆとりの広さです!
【充実の建物仕様・設備】
・電気の自給自足を目指した3点セット
『創る』~太陽光発電システム3.12kW
『貯める』~蓄電池(ニチコン製)4.0kWh
『コントロールする』~スマートハイム・ナビ(HEMS)
・家具付
・照明器具(全室LED)
・カーテン類
・エアコン(リビング1台)
魅力2 【外構完成済み】2台分の駐車スペース付き!
エクステリア:アスファルト舗装、民地石、化粧砂利、植栽
アスファルト舗装も施工済みですので、冬のお引っ越しも安心です!
※全て2026年3月撮影
魅力3 セキスイハイムは、60年以上、安心して住み続けられる住まいを提供致します。
0037-633-58681
無料
間取り図
0037-633-58681
無料
内観・室内
間取り・内観のこだわりポイント
- LDK15帖以上
- 4LDK以上
- 吹き抜け
0037-633-58681
無料
設備・仕様
設備・仕様のこだわりポイント
- キッチン
-
- カウンターキッチン
- 食器洗い乾燥機
- ガスコンロ
- 収納
-
- ウォークインクローゼット
- シューズクローク
- 全居室収納
- その他設備
-
- 都市ガス
- スマートハウス
- シャワー付洗面化粧台
- 温水洗浄便座
- 浴室1.6×1.8m以上
- トイレ2ヶ所以上
- タンクレストイレ
- 節水型トイレ
- 複層ガラス採用(二重サッシ・防犯サッシ等)
- スマートキー
- TVモニタ付インターホン
- スマートハウス
- 太陽光発電システム3.12kW・蓄電池(ニチコン製)4.0kWh・HEMS搭載
0037-633-58681
無料
外観・分譲地
外観・分譲地のこだわりポイント
- 駐車場あり
- 低層住宅地
- 地盤調査済
- 整形地
- 前面道路6m以上
- 平坦地
0037-633-58681
無料
周辺環境・地図
周辺情報
※半径4kmを超えると、周辺情報のアイコンは表示されません。
- ※不動産会社が入力した情報を基に物件の位置を表示しています。
- ※詳しくは不動産会社までお問合せください。
- ※地図上に表示される各種アイコンなどの情報は、おおよその所在地を表すものであり、物件・施設などの地点を保証するものではありません。
- ※地図の表示領域が広域になると周辺のお店・施設は表示できなくなります。
- ※地図、航空写真情報および地形ならびに周辺のお店・施設は、必ずしも現況を表すものではありません。
- ※物件から周辺のお店・施設までの距離は、利用が想定される道路を通行した場合の距離です。なお、必ずしも最短距離を保証するものではありません。
周辺環境のこだわりポイント
- スーパー 800m以内
- コンビニ 400m以内
- 小学校 800m以内
0037-633-58681
無料
物件概要
| 所在地 | 北海道釧路市芦野2丁目3-5、3-32 | ||
|---|---|---|---|
| 交通 |
くしろバス「芦野2丁目」停まで 徒歩2分 バス乗車22分、JR根室本線「釧路」駅 |
||
| 販売価格 | 3990万円 | 最多価格帯 | - |
| 建物面積 | 100.81m2(30.49坪) | 土地面積 | 150.17m2(45.42坪) |
| 間取り | 4LDK | 建物構造 | 軽量鉄骨造2階建て |
| 販売スケジュール | 販売中 | ||
| 販売戸数 / 総戸数 | 1戸 / 1戸 | ||
| 完成予定日 | 2023年11月 | 引き渡し可能年月 | 即入居可 |
| 駐車場 | - | 道路の幅員 | 公道 8m、に接する、アスファルト舗装 |
| 用途地域 | 第一種低層住居専用地域 | 都市計画 | - |
| 地目 | - | 国土法 | - |
| 土地の権利 | 所有権 | 借地権の種類・期間 | - |
| その他費用 | なし | ||
| 主たる設備の概要 | 電気/電力供給有、上水道/公営上水道、下水道/公共下水道、ガス/都市ガス | 建築確認番号 | 第ERI-23030649号【3-5、3-32】 |
| 施工会社 | - | 機構融資 | - |
| 売主 | 北海道セキスイハイム株式会社 帯広支店 釧路営業所 | 取引態様 | 【売主】北海道セキスイハイム株式会社 帯広支店 釧路営業所 |
| 備考 |
【新価格】 旧価格4250万円(税込) 旧価格公表日2024年3月19日 新価格3990万円(税込) 新価格公表日2026年2月13日 |
||
| 情報更新日 | 2026/05/14 | 次回更新予定日 | 2026/05/28 |
| 取引条件有効期限 | 2030/04/30 | ||
住宅性能・販売概要・権利のこだわりポイント
- 所有権
- 瑕疵担保付き
- 仲介手数料不要
- 売主・代理
- 長期優良住宅
- 即入居可
0037-633-58681
無料
取扱い不動産会社
北海道セキスイハイム株式会社の会社情報
お電話でのお問合せは「LIFULL HOME'S(ライフルホームズ)を見て」とお伝えください
北海道セキスイハイム株式会社 帯広支店 釧路営業所
0037-633-58681
無料
- ※携帯電話はご利用いただけます
- ※光IP電話、及びIP電話をご利用のお客様はTEL:0154-64-1218へご連絡ください
- ※携帯電話からお問合せいただいた方には、ショートメッセージ(SMS)またはLINE通知メッセージによるお問合せ内容に関する通知をお届けする場合があり、お客様の電話番号は株式会社LIFULLで一定期間保管されます
- ※株式会社LIFULLの個人情報の取扱い方針に同意のうえ、お電話ください
| 会社名 |
北海道セキスイハイム株式会社 |
|---|---|
| 免許番号 | 北海道知事石狩 (13) 第 2509 号 |
| 所在地 | 北海道札幌市北区北14条西4丁目2-1 ハーモネートビル |
| 所属団体 |
(一社)北海道不動産公正取引協議会 |
この物件にお問合せする
実際に物件・周辺環境を見て検討したい!
近隣建物や接道の状況など資料で分からない部分も一目瞭然。 まずはWEBで事前予約、スムーズに見学しましょう
ご予約無しに直接ご来場された場合、担当者不在であったり、
他のお客様のご案内の都合上、お待たせしてしまうことがございます。
不動産会社に電話で相談したい!
北海道セキスイハイム株式会社 帯広支店 釧路営業所
0037-633-58681
無料
電話でのお問合せは「LIFULL HOME'S(ライフルホームズ)を見て」とお伝えください
- ※携帯電話はご利用いただけます
- ※光IP電話、及びIP電話をご利用のお客様はTEL:0154-64-1218へご連絡ください
- ※携帯電話からお問合せいただいた方には、ショートメッセージ(SMS)またはLINE通知メッセージによるお問合せ内容に関する通知をお届けする場合があり、お客様の電話番号は株式会社LIFULLで一定期間保管されます
- ※株式会社LIFULLの個人情報の取扱い方針に同意のうえ、お電話ください
LIFULL HOME'Sは物件鮮度No.1を目指していきます 物件情報に誤りがある場合はコチラからご連絡ください
- 【物件番号】
- 1705470-0000204
- ※完成後1年未満で未入居の物件を「新築」と表示しております。
- ※完成予想図やCG合成画像は、門塀・植栽・庭・外観等、実際とは多少異なる場合があります。
物件を再検索する
北海道の人気エリアから新築一戸建てを探す
- 函館市
- 小樽市
- 旭川市
- 室蘭市
- 帯広市
- 北見市
- 夕張市
- 岩見沢市
- 網走市
- 留萌市
- 苫小牧市
- 稚内市
- 美唄市
- 芦別市
- 江別市
- 赤平市
- 紋別市
- 士別市
- 名寄市
- 三笠市
- 根室市
- 千歳市
- 滝川市
- 砂川市
- 深川市
- 富良野市
- 登別市
- 恵庭市
- 伊達市
- 北広島市
- 石狩市
- 北斗市
- 石狩郡当別町
- 亀田郡七飯町
- 茅部郡森町
- 余市郡余市町
- 空知郡南幌町
- 空知郡奈井江町
- 夕張郡長沼町
- 夕張郡栗山町
- 樺戸郡新十津川町
- 上川郡鷹栖町
- 上川郡東神楽町
- 上川郡当麻町
- 上川郡比布町
- 上川郡東川町
- 上川郡美瑛町
- 空知郡上富良野町
- 網走郡美幌町
- 網走郡津別町
- 常呂郡訓子府町
- 紋別郡遠軽町
- 白老郡白老町
- 勇払郡厚真町
- 勇払郡安平町
- 勇払郡むかわ町
- 河東郡音更町
- 河東郡士幌町
- 河東郡上士幌町
- 河東郡鹿追町
- 上川郡清水町
- 河西郡芽室町
- 河西郡中札内村
- 広尾郡大樹町
- 中川郡幕別町
- 中川郡池田町
- 中川郡本別町
- 足寄郡足寄町
- 十勝郡浦幌町
- 釧路郡釧路町
- 厚岸郡厚岸町
- 白糠郡白糠町
- 目梨郡羅臼町













