一戸建て 【セキスイハイム】菊水元町8条1丁目分譲住宅No.1・2
- 価格
- 5,090万円・ 5,450万円
- 所在地
-
北海道札幌市白石区菊水元町8条1丁目94-5他
地図を見る
- 交通
- ジェイ・アール北海道バス「菊水元町9条2丁目」停 徒歩9分 バス乗車14分、地下鉄東西線「菊水」駅
- 土地面積
- 137.62m2(41.63坪) ・ 171.77m2(51.96坪)
- 建物面積
- 97.12m2(29.37坪) ・ 102.99m2(31.15坪)
- 間取り
- 3LDK・4LDK
■即入居可能&外構完成済み&家具・エアコン付き
■札幌新道・環状通に近く、交通アクセス良好!
■イオンモール札幌苗穂店まで車で5分!お買い物施設充実
0037-633-93630
無料
魅力1 【見学予約受付中】即入居可能物件!【家具&エアコン付】
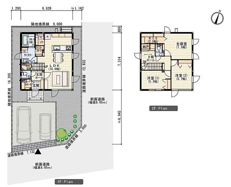
【No.1】1階にファミリークロークを備えた4LDK+書斎のあるすまい
【No.2】キッチン横にパントリーがある3LDKのすまい
【充実の建物仕様・設備】
・電気の自給自足を目指した3点セット
『創る』~太陽光発電システム3.12kW
『貯める』~蓄電池(ニチコン製)4.9kWh
『コントロールする』~スマートハイム・ナビ(HEMS)
・家具付
・照明器具(全室LED)
・カーテン類
・エアコン(リビング1台)
・TVアンテナ(地デジ・BS)
魅力2 【外構完成済み】2台分の駐車スペース付き!
エクステリア:アスファルト舗装・植栽・ビリ砂利・民地石・防草シート・黒土・インターロッキング・ポールライト
アスファルト舗装も施工済みですので、冬のお引っ越しも安心です
※全て2023年9月撮影
魅力3 セキスイハイムは、60年以上、安心して住み続けられる住まいを提供致します。
0037-633-93630
無料
間取り図
0037-633-93630
無料
内観・室内
間取り・内観のこだわりポイント
- LDK15帖以上
- 4LDK以上
- 吹き抜け
- 全室フローリング
0037-633-93630
無料
設備・仕様
-
【No.1】キッチン
背面のアクセントクロスが可愛らしいキッチ...
-
【No.1】サニタリー
窓があり明るく清潔なサニタリー。収納も備...
-
【No.1】バスルーム
足をのばしてゆっくりおくつろぎいただける...
-
【No.2】キッチン
大容量の収納を備えたキッチン。家事の時短...
-
【No.2】サニタリー
窓があり明るく清潔なサニタリー。階段下を...
-
【No.2】バスルーム
足をのばしてゆっくりおくつろぎいただける...
-
【No.2】1階トイレ
手洗い器別の1階トイレ。窓があり、日中は...
-
【No.2】2階トイレ
ネイビーのアクセントクロスを採用した2階...
-
【No.2】WIC
姿見付きのWIC。ご夫婦2人分の衣類をこ...
設備・仕様のこだわりポイント
- キッチン
-
- IHコンロ
- カウンターキッチン
- 食器洗い乾燥機
- 収納
-
- ウォークインクローゼット
- シューズクローク
- 全居室収納
- その他設備
-
- スマートハウス
- シャワー付洗面化粧台
- 温水洗浄便座
- 浴室乾燥機
- 浴室1.6×1.8m以上
- 浴室暖房
- トイレ2ヶ所以上
- タンクレストイレ
- 節水型トイレ
- 複層ガラス採用(二重サッシ・防犯サッシ等)
- スマートキー
- TVモニタ付インターホン
- スマートハウス
- 太陽光発電システム3.12kW・蓄電池(ニチコン製)4.9kWh・HEMS
0037-633-93630
無料
外観・分譲地
外観・分譲地のこだわりポイント
- 駐車場あり
- 地盤調査済
- 角地
- 整形地
- 前面道路6m以上
- 平坦地
0037-633-93630
無料
周辺環境・地図
周辺情報
※半径4kmを超えると、周辺情報のアイコンは表示されません。
- ※不動産会社が入力した情報を基に物件の位置を表示しています。
- ※詳しくは不動産会社までお問合せください。
- ※地図上に表示される各種アイコンなどの情報は、おおよその所在地を表すものであり、物件・施設などの地点を保証するものではありません。
- ※地図の表示領域が広域になると周辺のお店・施設は表示できなくなります。
- ※地図、航空写真情報および地形ならびに周辺のお店・施設は、必ずしも現況を表すものではありません。
- ※物件から周辺のお店・施設までの距離は、利用が想定される道路を通行した場合の距離です。なお、必ずしも最短距離を保証するものではありません。
0037-633-93630
無料
物件概要
| 所在地 | 北海道札幌市白石区菊水元町8条1丁目94-5他 | ||
|---|---|---|---|
| 交通 |
ジェイ・アール北海道バス「菊水元町9条2丁目」停 徒歩9分 バス乗車14分、地下鉄東西線「菊水」駅 |
||
| 販売価格 | 5,090万円・ 5,450万円 | 最多価格帯 | - |
| 建物面積 | 97.12m2(29.37坪) ・ 102.99m2(31.15坪) | 土地面積 | 137.62m2(41.63坪) ・ 171.77m2(51.96坪) |
| 間取り | 3LDK・4LDK | 建物構造 | 軽量鉄骨造2階建て |
| 販売スケジュール | 販売中 | ||
| 販売戸数 / 総戸数 | 3戸 / 3戸 | ||
| 完成予定日 | 2023年5月 | 引き渡し可能年月 | 即入居可 |
| 駐車場 | - | 道路の幅員 | 公道 8m、に接する、アスファルト舗装 |
| 用途地域 | 第二種中高層住居専用地域 | 都市計画 | - |
| 地目 | - | 国土法 | - |
| 土地の権利 | 所有権 | 借地権の種類・期間 | - |
| その他費用 | なし | ||
| 主たる設備の概要 | 電気/電力供給有、上水道/札幌市営水道、下水道/公共下水道、ガス/個別プロパン | 建築確認番号 | 第ERI-23004608号【94-5】他 |
| 施工会社 | - | 機構融資 | - |
| 売主 | 北海道セキスイハイム株式会社 | 取引態様 | 【売主】北海道セキスイハイム株式会社 |
| 備考 | 総区画数:3区画 | ||
| 情報更新日 | 2025/12/25 | 次回更新予定日 | 2026/01/08 |
| 取引条件有効期限 | 2030/04/30 | ||
住宅性能・販売概要・権利のこだわりポイント
- 所有権
- 瑕疵担保付き
- 仲介手数料不要
- 売主・代理
- 長期優良住宅
- 即入居可
0037-633-93630
無料
取扱い不動産会社
北海道セキスイハイム株式会社の会社情報
お電話でのお問合せは「LIFULL HOME'S(ライフルホームズ)を見て」とお伝えください
北海道セキスイハイム株式会社
0037-633-93630
無料
- ※携帯電話はご利用いただけます
- ※光IP電話、及びIP電話をご利用のお客様はTEL:011-709-8520へご連絡ください
- ※携帯電話からお問合せいただいた方には、ショートメッセージ(SMS)またはLINE通知メッセージによるお問合せ内容に関する通知をお届けする場合があり、お客様の電話番号は株式会社LIFULLで一定期間保管されます
- ※株式会社LIFULLの個人情報の取扱い方針に同意のうえ、お電話ください
| 会社名 |
北海道セキスイハイム株式会社 |
|---|---|
| 免許番号 | 北海道知事石狩 (13) 第 2509 号 |
| 所在地 | 北海道札幌市北区北14条西4丁目2-1 ハーモネートビル |
| 所属団体 |
(一社)北海道不動産公正取引協議会 |
この物件にお問合せする
実際に物件・周辺環境を見て検討したい!
近隣建物や接道の状況など資料で分からない部分も一目瞭然。 まずはWEBで事前予約、スムーズに見学しましょう
ご予約無しに直接ご来場された場合、担当者不在であったり、
他のお客様のご案内の都合上、お待たせしてしまうことがございます。
不動産会社に電話で相談したい!
北海道セキスイハイム株式会社
0037-633-93630
無料
電話でのお問合せは「LIFULL HOME'S(ライフルホームズ)を見て」とお伝えください
- ※携帯電話はご利用いただけます
- ※光IP電話、及びIP電話をご利用のお客様はTEL:011-709-8520へご連絡ください
- ※携帯電話からお問合せいただいた方には、ショートメッセージ(SMS)またはLINE通知メッセージによるお問合せ内容に関する通知をお届けする場合があり、お客様の電話番号は株式会社LIFULLで一定期間保管されます
- ※株式会社LIFULLの個人情報の取扱い方針に同意のうえ、お電話ください
LIFULL HOME'Sは物件鮮度No.1を目指していきます 物件情報に誤りがある場合はコチラからご連絡ください
- 【物件番号】
- 1705470-0000042
- ※完成後1年未満で未入居の物件を「新築」と表示しております。
- ※完成予想図やCG合成画像は、門塀・植栽・庭・外観等、実際とは多少異なる場合があります。















