新築一戸建て 【アネシス】アクアガーデン富合1号地
- 価格
- 4,358万円
- 所在地
-
熊本県熊本市南区富合町廻江691番地16
地図を見る
- 交通
- 産交バス「南区役所」バス停 徒歩9分
- 土地面積
- 202.31m2(61.19坪)
- 建物面積
- 202.31m2(61.19坪)
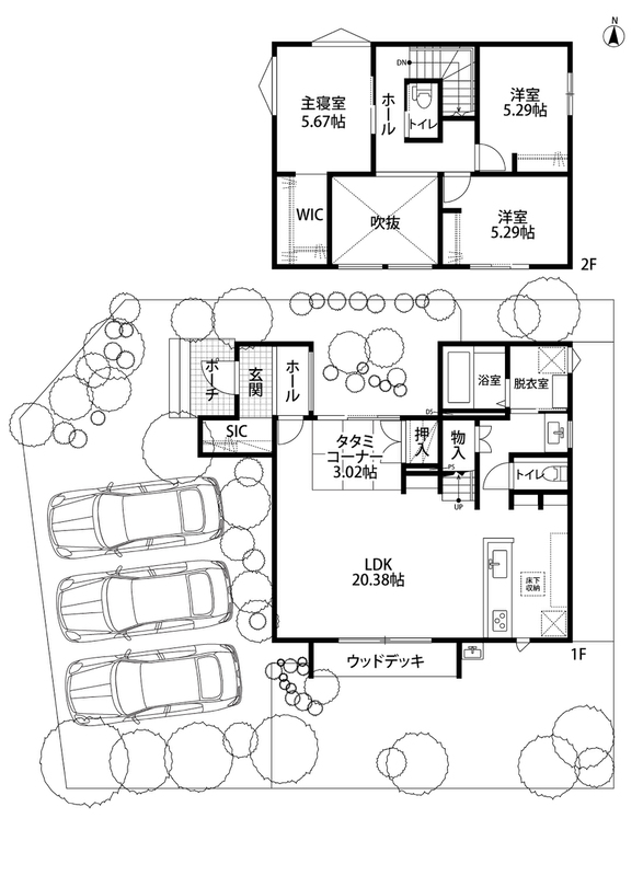
- 間取り
- 3LDK
【春の新生活応援 PREMIUM PRICE】展示期間終了につき価格改定。【素材感と街並みが調和する”つながり”のある住まい】視線がスムーズに抜ける開放的な空間設計
【自然と共に心地よく暮らせる環境づくり】水源涵養(かんよう)を導く「雨庭」や、植物が健やかに成長する土中環境を整える構造を採用しています。
【富合小・富合中校区】小学校までは1km圏内。
0037-618-49978
無料
間取り図
0037-618-49978
無料
内観・室内
間取り・内観のこだわりポイント
- LDK15帖以上
- 吹き抜け
0037-618-49978
無料
設備・仕様
設備・仕様のこだわりポイント
- キッチン
-
- IHコンロ
- カウンターキッチン
- 食器洗い乾燥機
- 浄水器・活水器
- 収納
-
- 床下収納
- ウォークインクローゼット
- シューズクローク
- その他設備
-
- トイレ2ヶ所以上
- タンクレストイレ
- 節水型トイレ
- 複層ガラス採用(二重サッシ・防犯サッシ等)
- 省エネ給湯器
- ウッドデッキ
- TVモニタ付インターホン
- EV充電設備
0037-618-49978
無料
外観・分譲地
外観・分譲地のこだわりポイント
- 駐車場あり
- 角地
0037-618-49978
無料
周辺環境・地図
周辺情報
※半径4kmを超えると、周辺情報のアイコンは表示されません。
- ※不動産会社が入力した情報を基に物件の位置を表示しています。
- ※詳しくは不動産会社までお問合せください。
- ※地図上に表示される各種アイコンなどの情報は、おおよその所在地を表すものであり、物件・施設などの地点を保証するものではありません。
- ※地図の表示領域が広域になると周辺のお店・施設は表示できなくなります。
- ※地図、航空写真情報および地形ならびに周辺のお店・施設は、必ずしも現況を表すものではありません。
- ※物件から周辺のお店・施設までの距離は、利用が想定される道路を通行した場合の距離です。なお、必ずしも最短距離を保証するものではありません。
0037-618-49978
無料
物件概要
| 所在地 | 熊本県熊本市南区富合町廻江691番地16 | ||
|---|---|---|---|
| 交通 |
産交バス「南区役所」バス停 徒歩9分 |
||
| 販売価格 | 4,358万円 | 最多価格帯 | - |
| 建物面積 | 202.31m2(61.19坪) | 土地面積 | 202.31m2(61.19坪) |
| 間取り | 3LDK | 建物構造 | 木造2階建て |
| 販売スケジュール | 販売中 | ||
| 販売戸数 / 総戸数 | 1戸 / 1戸 | ||
| 完成予定日 | 2025年8月 | 引き渡し可能年月 | 相談 |
| 駐車場 | 3台 | 道路の幅員 | 西側市道約6.0m、団地内道路 約5.0m |
| 用途地域 | 市街化調整区域(集落内開発指定区域) | 都市計画 | 市街化調整区域 |
| 地目 | 宅地 | 国土法 | - |
| 土地の権利 | 所有権 | 借地権の種類・期間 | - |
| その他費用 | 水道加入金 ( 設計審査料・検査料含む ): 73,000 円 (13mm メーターの場合 )、下水道受益者負担金:200 円 (1 m2 ) | ||
| 主たる設備の概要 | 九州電力、公営水道、側溝、オール電化 | 建築確認番号 | 完成済みのため省略 |
| 施工会社 | 株式会社アネシス | 機構融資 | - |
| 売主 | 取引態様 | 株式会社アネシス(売主) | |
| 備考 |
毎日ご見学できます! 見学ご予約受付中です! 10:00~17:00(その他の時間帯もお問い合わせください。) |
||
| 情報更新日 | 2026/04/24 | 次回更新予定日 | 随時 |
| 取引条件有効期限 | 2026/11/10 | ||
住宅性能・販売概要・権利のこだわりポイント
- 所有権
- 売主・代理
- 長期優良住宅
0037-618-49978
無料
取扱い不動産会社
株式会社アネシスの会社情報
お電話でのお問合せは「LIFULL HOME'S(ライフルホームズ)を見て」とお伝えください
株式会社アネシス [営業時間]9:00~17:30 水曜定休日
0037-618-49978
無料
- ※携帯電話はご利用いただけます
- ※光IP電話、及びIP電話をご利用のお客様はTEL:096-388-1822へご連絡ください
- ※携帯電話からお問合せいただいた方には、ショートメッセージ(SMS)またはLINE通知メッセージによるお問合せ内容に関する通知をお届けする場合があり、お客様の電話番号は株式会社LIFULLで一定期間保管されます
- ※株式会社LIFULLの個人情報の取扱い方針に同意のうえ、お電話ください
| 会社名 |
株式会社アネシス |
|---|---|
| 免許番号 | 国土交通大臣 (2) 第 8981 号 |
| 所在地 | 熊本県熊本市東区長嶺南8丁目8-55 |
| 所属団体 |
(公社)熊本県宅地建物取引業協会 |
この物件にお問合せする
実際に物件・周辺環境を見て検討したい!
近隣建物や接道の状況など資料で分からない部分も一目瞭然。 まずはWEBで事前予約、スムーズに見学しましょう
ご予約無しに直接ご来場された場合、担当者不在であったり、
他のお客様のご案内の都合上、お待たせしてしまうことがございます。
不動産会社に電話で相談したい!
株式会社アネシス [営業時間]9:00~17:30 水曜定休日
0037-618-49978
無料
電話でのお問合せは「LIFULL HOME'S(ライフルホームズ)を見て」とお伝えください
- ※携帯電話はご利用いただけます
- ※光IP電話、及びIP電話をご利用のお客様はTEL:096-388-1822へご連絡ください
- ※携帯電話からお問合せいただいた方には、ショートメッセージ(SMS)またはLINE通知メッセージによるお問合せ内容に関する通知をお届けする場合があり、お客様の電話番号は株式会社LIFULLで一定期間保管されます
- ※株式会社LIFULLの個人情報の取扱い方針に同意のうえ、お電話ください
LIFULL HOME'Sは物件鮮度No.1を目指していきます 物件情報に誤りがある場合はコチラからご連絡ください
- 【物件番号】
- 1705250-0000050
- ※完成後1年未満で未入居の物件を「新築」と表示しております。
- ※完成予想図やCG合成画像は、門塀・植栽・庭・外観等、実際とは多少異なる場合があります。






