新築一戸建て 所沢市荒幡 第22 新築一戸建て 全1棟
◆セカンドカーにも便利な駐車2台可◆集中して作業ができるテレワークルームを設置◆家族のコミュニケーションを重視したリビングイン階段を配置
◆浴室暖房乾燥機が標準装備で、湿気やカビを抑えて掃除の負担も軽減◆防犯カメラ&人感センサー付きで防犯面も安心◆冷暖房効率を高める全居室ペアガラス採用
◆ご来店後にアンケートにお答え頂くと3,000円のQUOカードをプレゼント(1組様1回限り、後日郵送)
0037-618-86170
無料
魅力1 ◆3つの安心サポート
1.弊社営業担当が自信を持ってご案内させていただきます。
2.マイホーム購入の資金計画・購入から老後までの人生設計を実施することで暮らしに安心を提案します。
3.どんなに信用のある建築会社でもご自分の目で確認することが重要ですよね。弊社の特殊機材を使って一緒に確認しましょう。
魅力2 ◆ご来店特典
1.ご見学、ご来店後にアンケートにお答え頂くと、もれなく3,000円のQUOカードプレゼント(1組様1回限り、後日郵送)
2.他社に無い未公開物件情報をお見せします
3.不動産ご購入、ご売却、太陽光発電システムご検討中のお客様ご紹介でもれなく、QUOカード3,000円分プレゼント。更にご紹介のお客様が弊社仲介にてご契約頂くと、1万円から最大10万円のご紹介料をお支払いさせていただきます!詳しくはスタッフまで
魅力3 ◆県内有数の大型店舗
1.店舗敷地内に大型駐車場完備、マイカーでも安心! 2.チャイルドスペース、授乳室、ベビーベッド完備 3.他にもファミリーに優しい、『あったら良いな』がここにある! ミルク用浄水サーバー、紙おむつ、アメニティ、大型個室2部屋、各ブースモニター、プラズマクラスター
0037-618-86170
無料
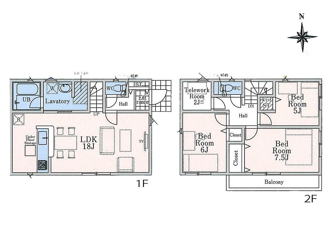
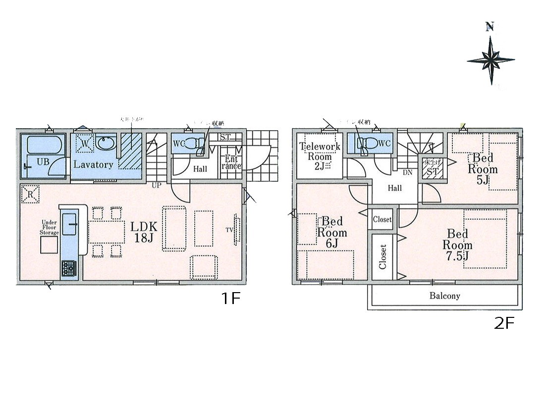
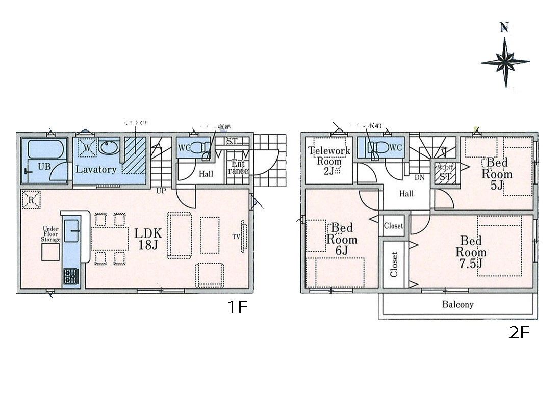
間取り図
0037-618-86170
無料
内観・室内
間取り・内観のこだわりポイント
- LDK15帖以上
- 南面バルコニー
- 全室2面採光
- 全室フローリング
0037-618-86170
無料
設備・仕様
-
その他設備(スライド収納)
使いやすさを優先したスライド式収納タイプ...
-
その他設備(リネンスペース)
便利なリネン庫で、スッキリした使いやすい...
-
その他設備(テレワークルーム)
使い方自在のテレワークルームが便利な住ま...
-
その他設備(シューズボックス)
たっぷり収納できるシューズボックスで家族...
-
冷暖房・空調設備(浴室換気乾燥機リモコン...
浴室涼風暖房換気乾燥機付きなので、お天気...
-
その他設備(レンジフード)
基本的なお手入れはフィルターのみ!お手入...
-
その他設備(Siセンサーコンロ)
ガスコンロはSiセンサー搭載。火力調節や...
-
その他設備(浄水器)
いつでも清潔なおいしいお水を。一つの水栓...
-
その他設備(三面鏡裏収納)
三面鏡の裏に、化粧品や衛生用品などを収納...
設備・仕様のこだわりポイント
- キッチン
-
- カウンターキッチン
- 浄水器・活水器
- 収納
-
- 床下収納
- 全居室収納
- その他設備
-
- 都市ガス
- シャワー付洗面化粧台
- 温水洗浄便座
- 浴室乾燥機
- 浴室暖房
- トイレ2ヶ所以上
- 複層ガラス採用(二重サッシ・防犯サッシ等)
- TVモニタ付インターホン
0037-618-86170
無料
外観・分譲地
外観・分譲地のこだわりポイント
- 駐車場あり
- 低層住宅地
- 地盤調査済
0037-618-86170
無料
周辺環境・地図
周辺情報
※半径4kmを超えると、周辺情報のアイコンは表示されません。
- ※不動産会社が入力した情報を基に物件の位置を表示しています。
- ※詳しくは不動産会社までお問合せください。
- ※地図上に表示される各種アイコンなどの情報は、おおよその所在地を表すものであり、物件・施設などの地点を保証するものではありません。
- ※地図の表示領域が広域になると周辺のお店・施設は表示できなくなります。
- ※地図、航空写真情報および地形ならびに周辺のお店・施設は、必ずしも現況を表すものではありません。
- ※物件から周辺のお店・施設までの距離は、利用が想定される道路を通行した場合の距離です。なお、必ずしも最短距離を保証するものではありません。
周辺環境のこだわりポイント
- スーパー 800m以内
- 小学校 800m以内
- 複数路線
0037-618-86170
無料
物件概要
| 所在地 | 埼玉県所沢市大字荒幡 | ||
|---|---|---|---|
| 交通 |
西武池袋線「西所沢」駅 徒歩16分 西武狭山線「西所沢」駅 徒歩16分 西武狭山線「下山口」駅 徒歩12分 |
||
| 販売価格 | 3180万円 | 最多価格帯 | 万円台 |
| 建物面積 | 87.48m2 | 土地面積 | 114.17m2 |
| 間取り | 3LDK | 建物構造 | 木造 2階建 |
| 販売スケジュール | 販売中 | ||
| 販売戸数 / 総戸数 | 1戸 / 1戸 | ||
| 完成予定日 | 2026年02月 | 引き渡し可能年月 | 即入居可 |
| 駐車場 | 2台 | 道路の幅員 | 東2.9m 公道 |
| 用途地域 | 第一種低層住居専用地域 | 都市計画 | 市街化区域 |
| 地目 | 宅地 | 国土法 | 届出不要 |
| 土地の権利 | 所有権 | 借地権の種類・期間 | - |
| 主たる設備の概要 | 都市ガス/公営水道/公共下水 | 建築確認番号 | 第25UDI1W建06760号 |
| 施工会社 | - | 機構融資 | - |
| 売主 | - | 取引態様 | ME不動産埼京株式会社 (仲介) |
| 備考 |
現地案内会(事前に必ずお問い合わせください) 日程/公開中 時間/9:00~18:30 ■■■現地案内会のお知らせ■■■ 1、現地案内会は特別時間は問いません。担当者にご相談ください。 2、合わせて物件の周辺住環境、小・中学校やスーパー、ドラックストア等もご案内致します。 3、ご希望条件等を教えていただければ、ネットに載っていない物件情報などもご紹介可能です。 ■■■住宅ローン相談会■■■ 住宅ローンでお悩みの方に、ビッグニュースです!転職して間もないけど…?頭金がほとんどないけど…?保証料って何のこと…?住宅の購入はまだまだ先なんだけど…?等など、どんな内容でもご相談ください。あなたにピッタリのご提案をさせていただきます! ■■■FP相談会■■■ 住宅の購入のほかにも、お金がかかるイベントがたくさんあります。出産費用、教育資金、老後の生活費、介護費用、緊急資金、お子様の就職活動費、 結婚費用など、限られた資金をどのように振り分ければいいのか、専用ソフトによる『ライフプラン相談』が大人気です!もちろん無料ですので、お気軽にお問い合わせください。 ※ご予約 物件によって事前に鍵の手配が必要な場合がございます。ご予約はお早めに! ※お約束当日は 1、当社の送迎車にて、ご自宅、ご自宅周辺、ご指定の駅までお迎えにあがり現地へ向かいます。(無料) 2、マイカーにて当社へご来店いただき、周辺物件検索後、現地へ向かいます。 ※資料請求 左下の青色【資料をもらう】よりお問い合わせください。 ご案内予約は「048-799-2991」までお電話下さい。 |
||
| 情報更新日 | 2026/05/22 | 次回更新予定日 | 2026/06/05 |
| 取引条件有効期限 | 2026/05/25 | ||
住宅性能・販売概要・権利のこだわりポイント
- 所有権
- フラット35・S適合証明書
- 即入居可
0037-618-86170
無料
取扱い不動産会社
スタッフからのコメント
- ME Group PR
- 首都圏に広がるME Group/不動産購入は人生最大の投資であり大切な資産になります。ご購入からご売却、自社買取を含めトータルサポート致します。
小橋亮太
ME不動産埼京株式会社の会社情報
お電話でのお問合せは「LIFULL HOME'S(ライフルホームズ)を見て」とお伝えください
ME不動産埼京株式会社
0037-618-86170
無料
- ※携帯電話はご利用いただけます
- ※光IP電話、及びIP電話をご利用のお客様はTEL:048-799-2991へご連絡ください
- ※携帯電話からお問合せいただいた方には、ショートメッセージ(SMS)またはLINE通知メッセージによるお問合せ内容に関する通知をお届けする場合があり、お客様の電話番号は株式会社LIFULLで一定期間保管されます
- ※株式会社LIFULLの個人情報の取扱い方針に同意のうえ、お電話ください
| 会社名 |
ME不動産埼京株式会社 |
|---|---|
| 免許番号 | 埼玉県知事 (4) 第 21116 号 |
| 所在地 | 埼玉県さいたま市浦和区神明2-12-10 |
| 所属団体 |
(公社)全日本不動産協会埼玉県本部 |
この物件にお問合せする
実際に物件・周辺環境を見て検討したい!
近隣建物や接道の状況など資料で分からない部分も一目瞭然。 まずはWEBで事前予約、スムーズに見学しましょう
ご予約無しに直接ご来場された場合、担当者不在であったり、
他のお客様のご案内の都合上、お待たせしてしまうことがございます。
不動産会社に電話で相談したい!
ME不動産埼京株式会社
0037-618-86170
無料
電話でのお問合せは「LIFULL HOME'S(ライフルホームズ)を見て」とお伝えください
- ※携帯電話はご利用いただけます
- ※光IP電話、及びIP電話をご利用のお客様はTEL:048-799-2991へご連絡ください
- ※携帯電話からお問合せいただいた方には、ショートメッセージ(SMS)またはLINE通知メッセージによるお問合せ内容に関する通知をお届けする場合があり、お客様の電話番号は株式会社LIFULLで一定期間保管されます
- ※株式会社LIFULLの個人情報の取扱い方針に同意のうえ、お電話ください
LIFULL HOME'Sは物件鮮度No.1を目指していきます 物件情報に誤りがある場合はコチラからご連絡ください
- 【物件番号】
- 1703800-0009053
- ※完成後1年未満で未入居の物件を「新築」と表示しております。
- ※完成予想図やCG合成画像は、門塀・植栽・庭・外観等、実際とは多少異なる場合があります。
物件を再検索する
埼玉県の人気エリアから新築一戸建てを探す
- 川越市
- 熊谷市
- 川口市
- 行田市
- 秩父市
- 飯能市
- 加須市
- 本庄市
- 東松山市
- 春日部市
- 狭山市
- 羽生市
- 鴻巣市
- 深谷市
- 上尾市
- 草加市
- 越谷市
- 蕨市
- 戸田市
- 入間市
- 朝霞市
- 志木市
- 和光市
- 新座市
- 桶川市
- 久喜市
- 北本市
- 八潮市
- 富士見市
- 三郷市
- 蓮田市
- 坂戸市
- 幸手市
- 鶴ヶ島市
- 日高市
- 吉川市
- ふじみ野市
- 白岡市
- 北足立郡伊奈町
- 入間郡三芳町
- 入間郡毛呂山町
- 入間郡越生町
- 比企郡滑川町
- 比企郡嵐山町
- 比企郡小川町
- 比企郡川島町
- 比企郡吉見町
- 比企郡鳩山町
- 比企郡ときがわ町
- 秩父郡横瀬町
- 秩父郡皆野町
- 秩父郡小鹿野町
- 児玉郡美里町
- 児玉郡神川町
- 児玉郡上里町
- 大里郡寄居町
- 南埼玉郡宮代町
- 北葛飾郡杉戸町
- 北葛飾郡松伏町














