新築一戸建て 家族で楽しむ贅沢な屋上空間【屋上庭園のある家】~インフィニガーデン藤塚Q~
この物件は未完成のため、掲載写真(外観、内観、設備等)には、施工例が含まれている場合があります。物件詳細については、掲載の不動産会社宛にお問合せください。
■木造戸建で手に入る、開放的でプライベート感あふれる屋上時間
■家族や友人、ペットと共に特別なひとときを過ごせる場所
■地上の庭とは一味違う、心地よい空間でリラックス&気分転換
【立地の特徴】
■南西角地で日当たり良好、開放感抜群
■交通量が少なく、子育てにも最適な環境
■藤塚幼稚園徒歩3分、子育て安心
【周辺環境】
■便利な買物環境、カスミまで徒歩5分、セブンイレブン徒歩6分
■家族全員が快適に暮らせる、便利で落ち着いた街
0037-618-03223
無料
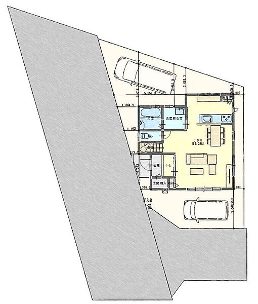
間取り図
0037-618-03223
無料
内観・室内
0037-618-03223
無料
設備・仕様
-
【LIXIL】システムキッチン
キッチンが楽しくなる人造大理石シンク!ワ...
-
【LIXIL】システムバス
最新技術で毎日のお掃除をラクに!汚れの原...
-
【LIXIL】洗面化粧台
新しいカタチ、賢い収納、お手入れ簡単で使...
-
【LIXIL】システムキッチン-施工例-
落ち着いたカラーのライトウォルナットをチ...
-
【LIXIL】システムバスルーム-施工例...
一日の疲れを癒すバス。アクセントパネルも...
-
【LIXIL】洗面化粧台-施工例-
鏡の裏が全て収納の3面鏡タイプ
-
【LIXIL】ベーシアシャワートイレ(フ...
便器も便座もお掃除ラクラクの一体型シャワ...
-
【LIXIL】ベーシアシャワートイレ(フ...
便器も便座もお掃除ラクラクの一体型シャワ...
-
【洋風和室】施工例
半畳縁なしのモダンな和空間。「和紙」づく...
設備・仕様のこだわりポイント
- その他設備
-
- 都市ガス
0037-618-03223
無料
外観・分譲地
外観・分譲地のこだわりポイント
- 駐車場あり
- 低層住宅地
0037-618-03223
無料
周辺環境・地図
0037-618-03223
無料
物件概要
| 所在地 | 埼玉県春日部市藤塚 | ||
|---|---|---|---|
| 交通 |
東武野田線「藤の牛島」駅 徒歩17分 |
||
| 販売価格 | 3480万円 | 最多価格帯 | - |
| 建物面積 | 88.80m2 | 土地面積 | 111.23m2 |
| 間取り | 3LDK+屋上庭園 | 建物構造 | 木造2階建て |
| 販売スケジュール | 販売中 | ||
| 販売戸数 / 総戸数 | 1戸 / 1戸 | ||
| 完成予定日 | 令和8年8月上旬完成 予定 | 引き渡し可能年月 | 相談 |
| 駐車場 | 2台 | 道路の幅員 | 西側約6m公道、南側約4.0m私道 |
| 用途地域 | 第一種低層住居専用地域 | 都市計画 | 市街化区域 |
| 地目 | 宅地 | 国土法 | - |
| 土地の権利 | 所有権 | 借地権の種類・期間 | - |
| 主たる設備の概要 | 東京電力、公営水道、都市ガス、本下水 | 建築確認番号 | 第SJK-KX255634560号 |
| 施工会社 | - | 機構融資 | - |
| 売主 | 株式会社I.P.C.コーポレーション | 取引態様 | 売主/株式会社I.P.C.コーポレーション |
| 備考 |
●○ライフインフォメーション○● ・藤塚小学校・・・・・・・・・徒歩14分(約1100m) ・豊野中学校・・・・・・・・・徒歩17分(約1300m) ・藤塚幼稚園・・・・・・・・・徒歩3分(約170m) ・カスミ春日部藤塚店・・・・・徒歩5分(約350m) ・春日部中央総合病院・・・・・徒歩14分(約1100m) ◇◆◇屋上ライフはじめてみませんか◇◆◇ ご見学のお申し込み・資料請求につきましては、気軽にお問合せ下さい。 住宅ローンや資金計画のお手伝いもさせていただきます。 売主物件につき、仲介手数料不要も魅力です! □■ 弊社facebookもご覧ください↓ ■□ https://www.facebook.com/ipc5900/ |
||
| 情報更新日 | 2026/05/21 | 次回更新予定日 | 随時 |
| 取引条件有効期限 | - | ||
住宅性能・販売概要・権利のこだわりポイント
- 所有権
- 売主・代理
0037-618-03223
無料
取扱い不動産会社
株式会社I.P.C.コーポレーションの会社情報
お電話でのお問合せは「LIFULL HOME'S(ライフルホームズ)を見て」とお伝えください
株式会社I.P.C.コーポレーション
0037-618-03223
無料
- ※携帯電話はご利用いただけます
- ※光IP電話、及びIP電話をご利用のお客様はTEL:048-731-5900へご連絡ください
- ※携帯電話からお問合せいただいた方には、ショートメッセージ(SMS)またはLINE通知メッセージによるお問合せ内容に関する通知をお届けする場合があり、お客様の電話番号は株式会社LIFULLで一定期間保管されます
- ※株式会社LIFULLの個人情報の取扱い方針に同意のうえ、お電話ください
| 会社名 |
株式会社I.P.C.コーポレーション |
|---|---|
| 免許番号 | 埼玉県知事 (13) 第 6373 号 |
| 所在地 | 埼玉県春日部市中央1丁目56-9 1F |
| 所属団体 |
(公社)首都圏不動産公正取引協議会 |
この物件にお問合せする
不動産会社に電話で相談したい!
株式会社I.P.C.コーポレーション
0037-618-03223
無料
電話でのお問合せは「LIFULL HOME'S(ライフルホームズ)を見て」とお伝えください
- ※携帯電話はご利用いただけます
- ※光IP電話、及びIP電話をご利用のお客様はTEL:048-731-5900へご連絡ください
- ※携帯電話からお問合せいただいた方には、ショートメッセージ(SMS)またはLINE通知メッセージによるお問合せ内容に関する通知をお届けする場合があり、お客様の電話番号は株式会社LIFULLで一定期間保管されます
- ※株式会社LIFULLの個人情報の取扱い方針に同意のうえ、お電話ください
LIFULL HOME'Sは物件鮮度No.1を目指していきます 物件情報に誤りがある場合はコチラからご連絡ください
- 【物件番号】
- 1702566-0000117
- ※完成後1年未満で未入居の物件を「新築」と表示しております。
- ※完成予想図やCG合成画像は、門塀・植栽・庭・外観等、実際とは多少異なる場合があります。
物件を再検索する
埼玉県の人気エリアから新築一戸建てを探す
- 川越市
- 熊谷市
- 川口市
- 行田市
- 秩父市
- 所沢市
- 飯能市
- 加須市
- 本庄市
- 東松山市
- 狭山市
- 羽生市
- 鴻巣市
- 深谷市
- 上尾市
- 草加市
- 越谷市
- 蕨市
- 戸田市
- 入間市
- 朝霞市
- 志木市
- 和光市
- 新座市
- 桶川市
- 久喜市
- 北本市
- 八潮市
- 富士見市
- 三郷市
- 蓮田市
- 坂戸市
- 幸手市
- 鶴ヶ島市
- 日高市
- 吉川市
- ふじみ野市
- 白岡市
- 北足立郡伊奈町
- 入間郡三芳町
- 入間郡毛呂山町
- 入間郡越生町
- 比企郡滑川町
- 比企郡嵐山町
- 比企郡小川町
- 比企郡川島町
- 比企郡吉見町
- 比企郡鳩山町
- 比企郡ときがわ町
- 秩父郡横瀬町
- 秩父郡皆野町
- 秩父郡小鹿野町
- 児玉郡美里町
- 児玉郡神川町
- 児玉郡上里町
- 大里郡寄居町
- 南埼玉郡宮代町
- 北葛飾郡杉戸町
- 北葛飾郡松伏町



