新築一戸建て トヨタウッドユーホーム【小山城北2丁目】太陽光搭載分譲住宅
- 価格
- 3640万円
- 所在地
- 栃木県小山市城北2丁目6番3外
- 交通
- JR東北本線「小山」駅 徒歩35分~36分おーバス「小山市コミュニティ/喜沢南」バス停 徒歩8分~9分
乗り換え案内
- 土地面積
- 227.81m2(68.91坪)
- 建物面積
- 106.84m2(32.31坪)
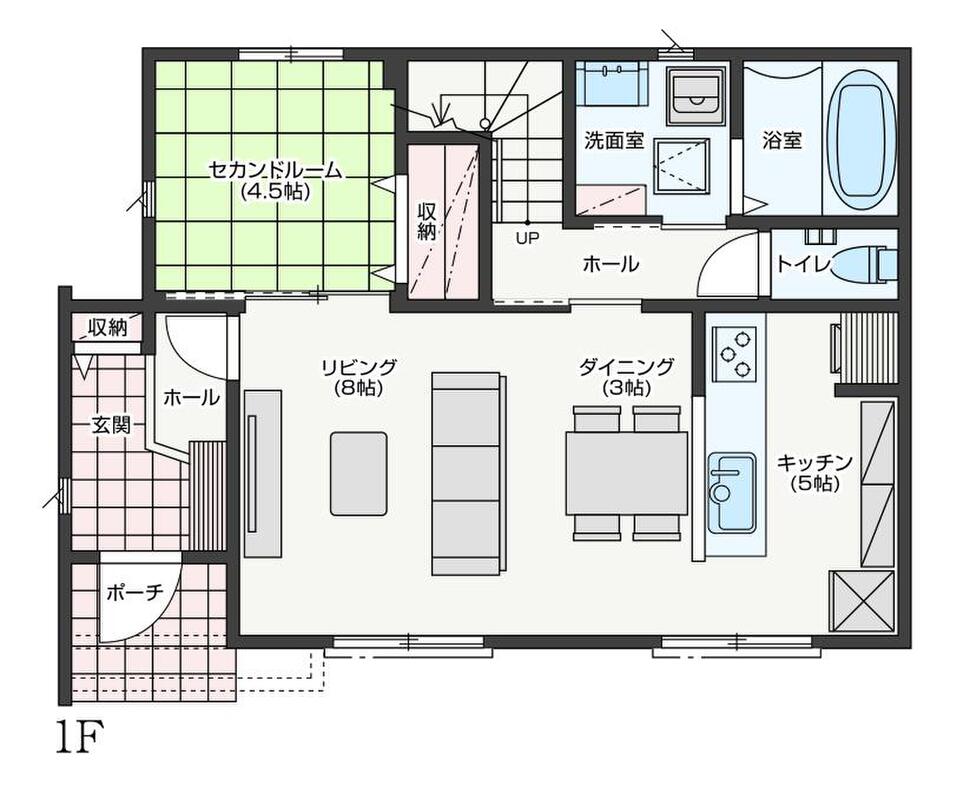
- 間取り
- 4LDK
【2026年3月完成予定】商業施設充実!太陽光搭載分譲住宅誕生!
■小学校まで約1km
■スーパーやコンビニ、商業施設も近く、生活に便利なエリア
■国道4号線へのアクセスも近く通勤・お出かけにも便利
玄関―シューズクローク―パントリー―LDKが回遊できる時短動線で家事効率アップ!セカンドルーム付きで、対面式キッチンで料理をしながらお子さまの様子を見守れる安心設計。
0037-618-95715
無料
魅力1 【No.3】多用途に使えるセカンドルームのある住まい
16帖LDK+4.5帖セカンドルームで広々とした生活空間!対面式キッチンで、料理をしながらお子さまの様子を見守れる安心設計。
お子さまの遊びスペースや家族のくつろぎスペースに最適なセカンドルームは、多用途で活用できる便利なスペースです!
クルマde給電、おひさまエコキュート、太陽光発電システム、ビルトイン食器洗い乾燥機とエコで便利な設備がたくさん!
魅力2 2区画の宅地分譲もご用意しています。
実際の建物をご見学いただきながら、宅地分譲区画もご案内可能です。
空間の雰囲気やつながり、動線などをご体感いただき、理想の暮らしをイメージしましょう!
ご要望を是非お聞かせください。
魅力3 公園やドラッグストア、スーパーが徒歩10分圏内です!
【学校】
小山市立城北小学校:徒歩12分(920m)
小山市立桑中学校:徒歩29分(2300m)
【幼稚園・保育園】
静林保育園:徒歩13分(980m)
【公園】
喜沢公園:徒歩3分(190m)
【買い物】
業務スーパー小山店:徒歩19分(1480m)
ヨークベニマル小山ゆうえんち店:徒歩12分(940m)
ウエルシア小山城北店:徒歩5分(390m)
セブンイレブン小山城北店:徒歩6分(450m)
おやまゆうえんハーヴェストウォーク:徒歩14分(1100m)
【駅】
小山駅:徒歩32分(2500m)
0037-618-95715
無料
間取り図
0037-618-95715
無料
内観・室内
間取り・内観のこだわりポイント
- LDK15帖以上
- 4LDK以上
- 和室
- ワイドバルコニー
- 南面バルコニー
0037-618-95715
無料
設備・仕様
-
クルマde 給電
「クルマde 給電」は、クルマ※を住まい...
-
おひさまエコキュート
おひさまエコキュートは太陽光の余剰電力を...
-
太陽光発電システム
明るい昼間に発電し、余った電力は電力会社...
-
ビルトイン食器洗い乾燥機
家族が多いと大変な食事後の食器洗いを肩代...
-
電動シャッター
1階掃き出し窓には電動シャッターを設置。...
-
2×4(ツーバイフォー)工法とは
トヨタウッドユーホームの建てる家は、「2...
-
断熱性能
2×4工法は、熱伝導率の低い木材を使用し...
-
耐火性能
火災は一般に壁の内部や天井裏を伝わって燃...
-
高性能基礎構造(ベタ基礎)
鉄筋コンクリート造ベタ基礎を標準採用し、...
設備・仕様のこだわりポイント
- キッチン
-
- IHコンロ
- カウンターキッチン
- 食器洗い乾燥機
- 浄水器・活水器
- 収納
-
- ウォークインクローゼット
- シューズクローク
- パントリー
- その他設備
-
- オール電化
- マイホーム発電システム
- 温水洗浄便座
- 浴室乾燥機
- トイレ2ヶ所以上
- スマートキー
- 省エネ給湯器
- 電動シャッター
- TVモニタ付インターホン
- EV充電設備
0037-618-95715
無料
外観・分譲地
外観・分譲地のこだわりポイント
- 庭が広い
- 駐車場あり
- 角地
- 南道路
- 整形地
- 前面道路6m以上
0037-618-95715
無料
周辺環境・地図
-
【学校】
小山市立城北小学校 (920m 徒歩約12分)
周りはに商業地、工場・住宅・田園と、いくつもの風景がある学校で...
-
【学校】
小山市立桑中学校 (2300m 徒歩約29分)
小学校より距離が遠くなりますが、友達とお話しながら歩くとあっと...
-
【レジャー】
喜沢公園 (190m 徒歩約3分)
芝生が広がる緑に囲まれた公園です。滑り台など遊具もあります。
-
【買い物】
ヨークベニマル小山ゆうえんち店 (940m 徒歩約12分)
営業時間:9時30分~21時30分 自転車や車だとあっという間...
-
【買い物】
ウエルシア小山城北店 (390m 徒歩約5分)
営業時間:9時00分~0時00分 ドラッグストアが近いと何かと...
-
【買い物】
セブンイレブン小山城北店 (450m 徒歩約5分)
コンビニも徒歩圏内で、買いすぎ注意です。
-
案内図
周辺環境のこだわりポイント
- 公園 400m以内
- 複数路線
0037-618-95715
無料
物件概要
| 所在地 | 栃木県小山市城北2丁目6番3外 | ||
|---|---|---|---|
| 交通 |
JR東北本線「小山」駅 徒歩35分~36分 おーバス「小山市コミュニティ/喜沢南」バス停 徒歩8分~9分 |
||
| 販売価格 | 3640万円 | 最多価格帯 | - |
| 建物面積 | 106.84m2(32.31坪) | 土地面積 | 227.81m2(68.91坪) |
| 間取り | 4LDK | 建物構造 | 木造(2×4工法) |
| 販売スケジュール | 販売中 | ||
| 販売戸数 / 総戸数 | 1戸 / 4戸 | ||
| 完成予定日 | 2026年3月 | 引き渡し可能年月 | 相談 |
| 駐車場 | 2台 | 道路の幅員 | 道路幅:4m・6m、アスファルト舗装 |
| 用途地域 | 準工業地域 | 都市計画 | 市街化区域 |
| 地目 | 宅地 | 国土法 | - |
| 土地の権利 | 所有権 | 借地権の種類・期間 | - |
| その他費用 | 管理組合:無、自治会費:4800円/年 | ||
| 主たる設備の概要 | 電気:自由化、上水道:公営水道、し尿・雑排水:公共下水道、ガス:各戸プロパン他備考欄参照 | 建築確認番号 | 第R07SHC120958号他 |
| 施工会社 | トヨタウッドユーホーム株式会社 | 機構融資 | - |
| 売主 | 取引態様 | トヨタウッドユーホーム(株)小山支店<売主> | |
| 備考 |
主たる設備の概要: 雨水:自然放流、雨水桝:無、宅地内雨水浸透槽区画:無 イベント情報: 現地見学会(事前に必ず予約してください) 日程/公開中 時間/10:00~18:00 ただ今建築中の物件2棟をご見学いただけます。 現地に常駐しているスタッフはおりませんので ご希望の日にちをお電話又は問い合わせフォームよりご連絡下さい。 【イベント詳細】 ・所要時間:1棟15分程度~ ・予約:要予約 ・駐車場:分譲地内にお停めいただけます ・公共交通機関:最寄り駅は「小山駅」になります。 車での送迎をご希望の方は事前にご連絡下さい。 ・内容:現地の内覧及び資金相談 実際にトヨタの木の住まいをご覧ください。 皆様のご来場を心よりお待ちしております! |
||
| 情報更新日 | 2026/04/07 | 次回更新予定日 | 随時 |
| 取引条件有効期限 | 2026/06/30 | ||
住宅性能・販売概要・権利のこだわりポイント
- 所有権
- 瑕疵担保付き
- 売主・代理
- 長期優良住宅
- 設計住宅性能評価書
- 建設住宅性能評価書(新築時)
0037-618-95715
無料
取扱い不動産会社
トヨタウッドユーホーム株式会社 小山支店の会社情報
お電話でのお問合せは「LIFULL HOME'S(ライフルホームズ)を見て」とお伝えください
トヨタウッドユーホーム(株)小山支店
0037-618-95715
無料
- ※携帯電話はご利用いただけます
- ※光IP電話、及びIP電話をご利用のお客様はTEL:0285-21-1711へご連絡ください
- ※携帯電話からお問合せいただいた方には、ショートメッセージ(SMS)またはLINE通知メッセージによるお問合せ内容に関する通知をお届けする場合があり、お客様の電話番号は株式会社LIFULLで一定期間保管されます
- ※株式会社LIFULLの個人情報の取扱い方針に同意のうえ、お電話ください
| 会社名 |
トヨタウッドユーホーム株式会社 小山支店 |
|---|---|
| 免許番号 | 国土交通大臣 (7) 第 5168 号 |
| 所在地 | 栃木県小山市犬塚1丁目23番地5 |
| 所属団体 |
(公社)首都圏不動産公正取引協議会 |
この物件にお問合せする
実際に物件・周辺環境を見て検討したい!
近隣建物や接道の状況など資料で分からない部分も一目瞭然。 まずはWEBで事前予約、スムーズに見学しましょう
ご予約無しに直接ご来場された場合、担当者不在であったり、
他のお客様のご案内の都合上、お待たせしてしまうことがございます。
不動産会社に電話で相談したい!
トヨタウッドユーホーム(株)小山支店
0037-618-95715
無料
電話でのお問合せは「LIFULL HOME'S(ライフルホームズ)を見て」とお伝えください
- ※携帯電話はご利用いただけます
- ※光IP電話、及びIP電話をご利用のお客様はTEL:0285-21-1711へご連絡ください
- ※携帯電話からお問合せいただいた方には、ショートメッセージ(SMS)またはLINE通知メッセージによるお問合せ内容に関する通知をお届けする場合があり、お客様の電話番号は株式会社LIFULLで一定期間保管されます
- ※株式会社LIFULLの個人情報の取扱い方針に同意のうえ、お電話ください
LIFULL HOME'Sは物件鮮度No.1を目指していきます 物件情報に誤りがある場合はコチラからご連絡ください
- 【物件番号】
- 1701973-0000061
- ※完成後1年未満で未入居の物件を「新築」と表示しております。
- ※完成予想図やCG合成画像は、門塀・植栽・庭・外観等、実際とは多少異なる場合があります。
物件を再検索する
栃木県の人気エリアから新築一戸建てを探す












