一戸建て 【offを楽しむ充実した暮らし】ブリリアンコート東浦和
大栄不動産×コタエルハウスが手掛ける共同プロジェクト【ブリリアンコートシリーズ】としてブリリアンコート東浦和を公開いたしました。駐車場も2台確保。
夫婦共に忙しい毎日、仕事も家事も切り替えながら効率よく快適に。東浦和駅(約1000m)徒歩13分。学校やショッピング施設もすぐ近くの豊富なアクセス。自然とフットワークが軽くなる好立地。
カスタマイズ自由な庭やワークルーム、WIC、等々ライフスタイルが変化し求められる住宅像が変わった「今」だからこそ、譲れない充実した暮しの条件を多彩に詰め込んだプラン。
0037-618-26428
無料
魅力1 ☆充実プラン☆
キッチンからリビング全体を見渡せる作りで、小さなお子様がいる家庭でも安心♪
リビングから2階にあがる設計で家族のコミュニケーションも自然と増えます。収納もあり掃除用具やおもちゃの収納に便利です。
居室にオープン収納を設け収納も魅せるインテリアのひとつに。こだわりの自分の部屋に仕上げられます。
ルーフバルコニーがありハンモックを置いたり、お酒を飲んだり、食事を楽しんだり…
壁の高さがあるので目線を遮りプライベートな時間を過ごせる居心地の良い空間に。
※イメージの為実際と異なる場合があります。
魅力2 ☆充実の水廻り設備☆
洗面化粧台は三面鏡で収納も充実です。カウンターも一体型でつけ置き洗いにも重宝します。
浴室は浴室暖房換気乾燥機付きで暖房、衣類乾燥、涼風、換気の機能を備えた浴室。入浴を快適にするほか、雨の日や花粉の時期には洗濯乾燥に重宝します。
対面キッチンで小さなお子様にも目が届き安心してお料理が出来ます。
※イメージの為実際と異なる場合があります。
魅力3 コタエルハウスがあなたの想いに応えます☆彡
住宅を長期にわたって良好な状態で使用するために必要な基準を満たした住宅として、国が認定した長期優良住宅。一般的な住宅とは別に様々な税制優遇や住宅ローンの供給支援をうけることが出来ます。
コタエルハウスは、大正12年の創業時から蓮田・白岡・大宮周辺を中心に神社や仏閣を建築し、現在まで住まいの新しいカタチを常に追求しながら、地域に密着した住まいづくりをしております。
信頼と実績のコタエルハウスが安心とともにあなただけの1棟をお届け致します。
0037-618-26428
無料
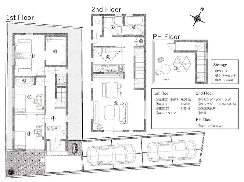
間取り図
0037-618-26428
無料
内観・室内
間取り・内観のこだわりポイント
- LDK15帖以上
- バリアフリー
- 屋上・ルーフバルコニー
- 南面バルコニー
- 全室フローリング
0037-618-26428
無料
設備・仕様
-
浴室(イメージ画像)
浴室暖房換気乾燥機で快適な入浴をサポート...
-
浴室換気暖房乾燥機(当社施工例)
暖房、衣類乾燥、涼風、換気の機能を備えた...
-
洗面化粧台(イメージ画像)
三面鏡の洗面化粧台で収納も抜群。※イメー...
-
サイレントレール(当社施工例)
閉まる直前に引き出しをゆっくり引き込み、...
-
キッチン(2号棟)
食器洗い乾燥機を装備しました。環境にもマ...
-
食器洗浄乾燥機 (当社施工例)
お料理後の後片付けをサポートするビルトイ...
-
2階トイレ(当社施工例)
埋め込み収納付き。さらに壁付手洗い器付き...
-
1階トイレ(当社施工例)
フチなし形状でお掃除もラクラク。※イメー...
-
シャッター(仕様)
室内からサッシを閉めたままワンタッチ操作...
設備・仕様のこだわりポイント
- キッチン
-
- カウンターキッチン
- 食器洗い乾燥機
- 浄水器・活水器
- ガスコンロ
- 収納
-
- ウォークインクローゼット
- パントリー
- 全居室収納
- その他設備
-
- 都市ガス
- シャワー付洗面化粧台
- 温水洗浄便座
- 浴室乾燥機
- 浴室暖房
- トイレ2ヶ所以上
- タンクレストイレ
- 節水型トイレ
- 複層ガラス採用(二重サッシ・防犯サッシ等)
- スマートキー
- 省エネ給湯器
- 電動シャッター
- TVモニタ付インターホン
省エネ性能
- エネルギー消費性能:★★★(削減率20%達成)
- 断熱性能:5段階/7段階
- 目安光熱費:約20万円/年 ※「省エネ性能ラベル」は特定の住戸の性能を示し、全ての住戸の性能を示していない場合があります。
0037-618-26428
無料
外観・分譲地
外観・分譲地のこだわりポイント
- 駐車場あり
- 地盤調査済
- 敷地延長・変形地
- 前面道路6m以上
- 平坦地
0037-618-26428
無料
周辺環境・地図
周辺情報
※半径4kmを超えると、周辺情報のアイコンは表示されません。
- ※不動産会社が入力した情報を基に物件の位置を表示しています。
- ※詳しくは不動産会社までお問合せください。
- ※地図上に表示される各種アイコンなどの情報は、おおよその所在地を表すものであり、物件・施設などの地点を保証するものではありません。
- ※地図の表示領域が広域になると周辺のお店・施設は表示できなくなります。
- ※地図、航空写真情報および地形ならびに周辺のお店・施設は、必ずしも現況を表すものではありません。
- ※物件から周辺のお店・施設までの距離は、利用が想定される道路を通行した場合の距離です。なお、必ずしも最短距離を保証するものではありません。
周辺環境のこだわりポイント
- スーパー 800m以内
- コンビニ 400m以内
- 小学校 800m以内
- 公園 400m以内
- 中学校 800m以内
- 保育園・幼稚園 400m以内
0037-618-26428
無料
物件概要
| 所在地 | 埼玉県さいたま市緑区東浦和7丁目12-41 | ||
|---|---|---|---|
| 交通 |
JR武蔵野線「東浦和」駅 徒歩13分 |
||
| 販売価格 | 4,980万円 | 最多価格帯 | - |
| 建物面積 | 94.38m2※PH階バルコニー床面積算入部分約4.96m2を含む | 土地面積 | 115.24m2 |
| 間取り | 2LDK(3LDK対応可) | 建物構造 | 木造2階建て |
| 販売スケジュール | 販売中 | ||
| 販売戸数 / 総戸数 | 1戸 / 2戸 | ||
| 完成予定日 | 2025年2月完成(2号棟) | 引き渡し可能年月 | 即可(2号棟) |
| 駐車場 | 1台 | 道路の幅員 | 東側13m |
| 用途地域 | 第一種中高層住居専用地域 | 都市計画 | 市街化区域 |
| 地目 | 宅地 | 国土法 | - |
| 土地の権利 | 所有権 | 借地権の種類・期間 | - |
| 主たる設備の概要 | 東京電力、公営水道、本下水・都市ガス | 建築確認番号 | 第SJK-KX245111420号(2号棟) |
| 施工会社 | コタエルハウス 山岸工業株式会社 | 機構融資 | - |
| 売主 | 大栄不動産株式会社 [国土交通大臣(15)第461号] | 取引態様 | 代理:コタエルハウス 山岸工業株式会社 |
| イベント情報 |
|
||
| 備考 |
※高度地区(15M) ※土地区画整理法 ※管理組合加入(共有地の持分1/259あり) ※自治会加入(月額420円) ※東浦和土地区画整理事業(S42.9.26) ■コタエルハウスでは、【基本的な感染防止対策の徹底】として引き続き従業員のマスク着用での接客や室内の換気、アルコールの消毒を行っております。 ■建物見学会(事前に必ずお問合せ下さい) 日程/今週土日祝 時間/10:00~18:00 事前にお問い合わせいただくと、スムーズなご案内が可能です。 平日の見学も受け付けております。お子様の保育園のお迎え前の1時間だけ、仕事帰りにちょっとだけ…といったご要望にも対応させていただきます。 当日の見学をご希望の場合はお電話にてお問い合わせください。 ■住宅ローンについて 弊社提携の金融機関多数ございます。 「住宅ローンが借りられるか心配…」「住宅ローンの仕組みを教えてほしい」「頭金が無くても購入出来るのか」といった住宅ローンに関する悩みや不安は、まず一度弊社にご相談下さい。 コタエルハウス 山岸工業は、【創業大正12年】お客様と共に歩んできた歴史です。 地場である埼玉県内で【信頼・実績・ノウハウ】を活かして、お客様の様々なニーズや生活シーンに合わせてのご提案を心がけております。 |
||
| 情報更新日 | 2026/05/19 | 次回更新予定日 | 2026/05/31 |
| 取引条件有効期限 | 2026/05/31 | ||
住宅性能・販売概要・権利のこだわりポイント
- 所有権
- 瑕疵担保付き
- 仲介手数料不要
- 売主・代理
- 間取り変更可能
- 耐震・制震・免震構造
- 長期優良住宅
- 設計住宅性能評価書
- 即入居可
0037-618-26428
無料
現地・イベント情報
【ブリリアンコート東浦和 建物見学会開催中!】
| 開催日時 |
2026年05月23日〜2026年05月24日
|
|---|---|
| 開催場所 | 埼玉県さいたま市緑区東浦和7丁目12-41 |
| 交通 |
JR武蔵野線「東浦和」駅 徒歩13分 |
事前にご予約頂ければ、夜間・平日・土日祝問わずご案内させて頂きます。
取扱い不動産会社
スタッフからのコメント
- ベテランスタッフがご来店お待ちしております(^^♪
- コタエルハウスの分譲住宅は蓮田市・白岡市・久喜市・加須市・さいたま市・上尾市・桶川市・北本市・鴻巣市等のエリアにて様々な分譲地を展開しております。
全てのスタッフが自社物件販売エリアならどこでもご案内可能!
キッズスペースもあるので小さなお子様がいるご家庭でも安心してご来店頂けます。
当社ではアフターサービスや点検・保証が充実しているのでお引き渡し後も安心してお住まい頂けます!
コタエルハウス 大宮店
コタエルハウスの山岸工業株式会社の会社情報
お電話でのお問合せは「LIFULL HOME'S(ライフルホームズ)を見て」とお伝えください
山岸工業株式会社 大宮店
0037-618-26428
無料
- ※携帯電話はご利用いただけます
- ※光IP電話、及びIP電話をご利用のお客様はTEL:0120-194-620へご連絡ください
- ※携帯電話からお問合せいただいた方には、ショートメッセージ(SMS)またはLINE通知メッセージによるお問合せ内容に関する通知をお届けする場合があり、お客様の電話番号は株式会社LIFULLで一定期間保管されます
- ※株式会社LIFULLの個人情報の取扱い方針に同意のうえ、お電話ください
| 会社名 |
コタエルハウスの山岸工業株式会社 |
|---|---|
| 免許番号 | 埼玉県知事 (14) 第 4459 号 |
| 所在地 | 埼玉県蓮田市本町8-11 |
| 所属団体 |
(公社)埼玉県宅地建物取引業協会 |
この物件にお問合せする
実際に物件・周辺環境を見て検討したい!
近隣建物や接道の状況など資料で分からない部分も一目瞭然。 まずはWEBで事前予約、スムーズに見学しましょう
ご予約無しに直接ご来場された場合、担当者不在であったり、
他のお客様のご案内の都合上、お待たせしてしまうことがございます。
不動産会社に電話で相談したい!
山岸工業株式会社 大宮店
0037-618-26428
無料
電話でのお問合せは「LIFULL HOME'S(ライフルホームズ)を見て」とお伝えください
- ※携帯電話はご利用いただけます
- ※光IP電話、及びIP電話をご利用のお客様はTEL:0120-194-620へご連絡ください
- ※携帯電話からお問合せいただいた方には、ショートメッセージ(SMS)またはLINE通知メッセージによるお問合せ内容に関する通知をお届けする場合があり、お客様の電話番号は株式会社LIFULLで一定期間保管されます
- ※株式会社LIFULLの個人情報の取扱い方針に同意のうえ、お電話ください
LIFULL HOME'Sは物件鮮度No.1を目指していきます 物件情報に誤りがある場合はコチラからご連絡ください
- 【物件番号】
- 1701658-0000214
- ※完成後1年未満で未入居の物件を「新築」と表示しております。
- ※完成予想図やCG合成画像は、門塀・植栽・庭・外観等、実際とは多少異なる場合があります。














