新築一戸建て 階段のない暮らし…平屋という選択~LovEingTown上山口1903<省エネ・長期優良住宅>
この物件は未完成のため、掲載写真(外観、内観、設備等)には、施工例が含まれている場合があります。物件詳細については、掲載の不動産会社宛にお問合せください。
【未来を見据えた安心・快適・経済性】
●国の認定を受けた「長期優良住宅」
●ローン減税・光熱費の負担の軽減
●耐震等級3と省令準耐火構造で地震・火災に強い
【ゆったりと過ごす空間づくり】
●広々空間の平屋住宅
●収納豊富でゆったり過ごす3LDK
●勾配天井と天窓で明るく開放的なLDK
●ロフト2か所、収納や趣味のスペース、お子様の秘密基地に!
【恵まれた住環境】
●周辺に緑が多く残る住環境
●敷地はゆったり59坪超、駐車スペース2台可能
●狭山自然公園が程よい距離で散歩やジョギングなど気軽に楽しめます
0037-618-54612
無料
魅力1 20.5帖LDK×ウッドデッキ。リビングが外まで続く【平屋】の開放感
20.5帖のLDKから外へ広がる視界。勾配天井が空へと導く開放感。
階段をなくしたフラットな心地よさに、デッキという「広がり」とロフトという「奥行き」をプラス。
これからの暮らしの正解を…この平屋で見つけてください。
0037-618-54612
無料
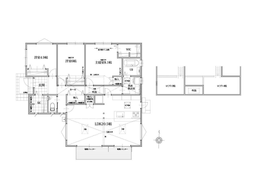
間取り図
0037-618-54612
無料
内観・室内
間取り・内観のこだわりポイント
- LDK15帖以上
- バリアフリー
- ロフト付き
- 天井高2.5m以上
0037-618-54612
無料
設備・仕様
-
建物標準仕様 親水コーティング外壁材
【同仕様】外壁の汚れを雨でセルフクリーニ...
-
建物標準仕様 高機能で便利なシステムキッ...
【同仕様】オープンでリビングと一体感を生...
-
建物標準仕様 システムバス
【同仕様】少ない水でたっぷりシャワーの「...
-
建物標準仕様 シャワートイレ
【同仕様】超節水トイレ。パワーストリーム...
-
建物標準仕様 ハイブリッド給湯器「エコワ...
電気とガスを賢く使い分けることで、従来の...
-
建物標準仕様 スマート宅配ボックス
【同仕様】宅配ボックス、ポスト、インター...
-
建物標準仕様 発泡ウレタンフォーム断熱材
発泡された断熱素材が構造材(柱・土台)に...
-
建物標準仕様 フロア下地材
防音・断熱・クッション効果の高い下地材「...
-
建物標準仕様 EV・PHEVコンセント
EV・PHEVコンセントを設置。最近多く...
設備・仕様のこだわりポイント
- キッチン
-
- カウンターキッチン
- 食器洗い乾燥機
- 浄水器・活水器
- ガスコンロ
- 収納
-
- 床下収納
- ウォークインクローゼット
- シューズクローク
- 全居室収納
- その他設備
-
- シャワー付洗面化粧台
- 温水洗浄便座
- 浴室乾燥機
- 浴室暖房
- トイレ2ヶ所以上
- 節水型トイレ
- 複層ガラス採用(二重サッシ・防犯サッシ等)
- 省エネ給湯器
- ウッドデッキ
- 電動シャッター
- TVモニタ付インターホン
- 宅配ボックス
- EV充電設備
省エネ性能
- エネルギー消費性能:★★★★(削減率30%達成)
- 断熱性能:5段階/7段階
- 目安光熱費:約17.8万円/年 ※「省エネ性能ラベル」は特定の住戸の性能を示し、全ての住戸の性能を示していない場合があります。
0037-618-54612
無料
外観・分譲地
外観・分譲地のこだわりポイント
- 駐車場あり
- 低層住宅地
- 地盤調査済
- 平坦地
0037-618-54612
無料
周辺環境・地図
周辺情報
※半径4kmを超えると、周辺情報のアイコンは表示されません。
- ※不動産会社が入力した情報を基に物件の位置を表示しています。
- ※詳しくは不動産会社までお問合せください。
- ※地図上に表示される各種アイコンなどの情報は、おおよその所在地を表すものであり、物件・施設などの地点を保証するものではありません。
- ※地図の表示領域が広域になると周辺のお店・施設は表示できなくなります。
- ※地図、航空写真情報および地形ならびに周辺のお店・施設は、必ずしも現況を表すものではありません。
- ※物件から周辺のお店・施設までの距離は、利用が想定される道路を通行した場合の距離です。なお、必ずしも最短距離を保証するものではありません。
周辺環境のこだわりポイント
- 保育園・幼稚園 400m以内
- 複数路線
- 最寄り駅が始発駅
0037-618-54612
無料
物件概要
| 所在地 | 埼玉県所沢市大字上山口1903-22 | ||
|---|---|---|---|
| 交通 |
西武狭山線「西武球場前」駅 徒歩14分 |
||
| 販売価格 | 4,680万円 | 最多価格帯 | - |
| 建物面積 | 97.87m2 | 土地面積 | 196.70m2 |
| 間取り | 3LDK+WIC+SIC+ロフト2か所 | 建物構造 | 木造平屋建て |
| 販売スケジュール | 販売中 | ||
| 販売戸数 / 総戸数 | 1戸 / 1戸 | ||
| 完成予定日 | 2026年5月下旬 ※世界情勢等の影響により一部住宅設備の納期が不安定となっておりますが建築は進行中 | 引き渡し可能年月 | 相談 |
| 駐車場 | 1台 ~ 2台 | 道路の幅員 | 西側 公道約4.1m |
| 用途地域 | 第一種低層住居専用地域 | 都市計画 | 市街化区域 |
| 地目 | 宅地 | 国土法 | - |
| 土地の権利 | 所有権 | 借地権の種類・期間 | - |
| 主たる設備の概要 | 東京電力、公営水道、本下水、集中PG | 建築確認番号 | 第SJK-KX25550760号 |
| 施工会社 | - | 機構融資 | フラット35SAプラン利用可 |
| 売主 | 取引態様 | 売主/株式会社山口企画設計 | |
| 備考 |
※航空法、景観法、自然公園法、都市再生特別措置法、ユネスコホームランド建築協定 注)世界情勢等の影響により一部住宅設備の納期が不安定となっております。建築は進行しておりますが、お引渡し時期が変更となる場合がございます。 ≪ライフインフォメーション≫ ◆所沢第三文化幼稚園・・・・・・・・約1.7km(徒歩22分) ◆山口保育園・・・・・・・・・・・・約350m(徒歩5分) ◆山口小学校・・・・・・・・・・・・約1.2km(徒歩15分) ◆上山口中学校・・・・・・・・・・・約850m(徒歩11分) ◆業務スーパー所沢下山口店・・・・・約1.1km(徒歩14分) ◆ベルク山口店・・・・・・・・・・・約1.4km(徒歩18分) ◆ファミリーマート西武球場駅前店・・約1.0km(徒歩13分) ◆米島医院・・・・・・・・・・・・・約2.2km(徒歩28分) ◆横田医院・・・・・・・・・・・・・約1.7km(徒歩22分) ◆所沢山口郵便局・・・・・・・・・・約1.1km(徒歩14分) 所沢市くらしの情報(所沢市役所ホームページ) http://www.city.tokorozawa.saitama.jp/ 西武線の時刻表(西武線ホームページ) https://www.seiburailway.jp/ |
||
| 情報更新日 | 2026/05/01 | 次回更新予定日 | 2026/05/15 |
| 取引条件有効期限 | 2027/02/10 | ||
住宅性能・販売概要・権利のこだわりポイント
- 所有権
- 瑕疵担保付き
- 仲介手数料不要
- 売主・代理
- 耐震・制震・免震構造
- 長期優良住宅
- フラット35・S適合証明書
- 耐震・制震・免震構造
- 耐震等級3取得※フラット35による
0037-618-54612
無料
取扱い不動産会社
株式会社山口企画設計 本社の会社情報
お電話でのお問合せは「LIFULL HOME'S(ライフルホームズ)を見て」とお伝えください
株式会社山口企画設計 本社
0037-618-54612
無料
- ※携帯電話はご利用いただけます
- ※光IP電話、及びIP電話をご利用のお客様はTEL:0120-778-772へご連絡ください
- ※携帯電話からお問合せいただいた方には、ショートメッセージ(SMS)またはLINE通知メッセージによるお問合せ内容に関する通知をお届けする場合があり、お客様の電話番号は株式会社LIFULLで一定期間保管されます
- ※株式会社LIFULLの個人情報の取扱い方針に同意のうえ、お電話ください
| 会社名 |
株式会社山口企画設計 本社 |
|---|---|
| 免許番号 | 国土交通大臣 (2) 第 9221 号 |
| 所在地 | 埼玉県所沢市喜多町9-5 |
| 所属団体 |
(公社)首都圏不動産公正取引協議会 |
この物件にお問合せする
実際に物件・周辺環境を見て検討したい!
近隣建物や接道の状況など資料で分からない部分も一目瞭然。 まずはWEBで事前予約、スムーズに見学しましょう
ご予約無しに直接ご来場された場合、担当者不在であったり、
他のお客様のご案内の都合上、お待たせしてしまうことがございます。
不動産会社に電話で相談したい!
株式会社山口企画設計 本社
0037-618-54612
無料
電話でのお問合せは「LIFULL HOME'S(ライフルホームズ)を見て」とお伝えください
- ※携帯電話はご利用いただけます
- ※光IP電話、及びIP電話をご利用のお客様はTEL:0120-778-772へご連絡ください
- ※携帯電話からお問合せいただいた方には、ショートメッセージ(SMS)またはLINE通知メッセージによるお問合せ内容に関する通知をお届けする場合があり、お客様の電話番号は株式会社LIFULLで一定期間保管されます
- ※株式会社LIFULLの個人情報の取扱い方針に同意のうえ、お電話ください
LIFULL HOME'Sは物件鮮度No.1を目指していきます 物件情報に誤りがある場合はコチラからご連絡ください
- 【物件番号】
- 1701473-0000439
- ※完成後1年未満で未入居の物件を「新築」と表示しております。
- ※完成予想図やCG合成画像は、門塀・植栽・庭・外観等、実際とは多少異なる場合があります。
物件を再検索する
埼玉県の人気エリアから新築一戸建てを探す
- 川越市
- 熊谷市
- 川口市
- 行田市
- 秩父市
- 飯能市
- 加須市
- 本庄市
- 東松山市
- 春日部市
- 狭山市
- 羽生市
- 鴻巣市
- 深谷市
- 上尾市
- 草加市
- 越谷市
- 蕨市
- 戸田市
- 入間市
- 朝霞市
- 志木市
- 和光市
- 新座市
- 桶川市
- 久喜市
- 北本市
- 八潮市
- 富士見市
- 三郷市
- 蓮田市
- 坂戸市
- 幸手市
- 鶴ヶ島市
- 日高市
- 吉川市
- ふじみ野市
- 白岡市
- 北足立郡伊奈町
- 入間郡三芳町
- 入間郡毛呂山町
- 入間郡越生町
- 比企郡滑川町
- 比企郡嵐山町
- 比企郡小川町
- 比企郡川島町
- 比企郡吉見町
- 比企郡鳩山町
- 比企郡ときがわ町
- 秩父郡横瀬町
- 秩父郡長瀞町
- 児玉郡美里町
- 児玉郡神川町
- 児玉郡上里町
- 大里郡寄居町
- 南埼玉郡宮代町
- 北葛飾郡杉戸町
- 北葛飾郡松伏町






