新築一戸建て 【総桧で建築します】 JR取手 東 3400万円
この物件は未完成のため、掲載写真(外観、内観、設備等)には、施工例が含まれている場合があります。物件詳細については、掲載の不動産会社宛にお問合せください。
【総桧住宅】売主物件につき仲介手数料不要
区画整理地内のキレイな街並!スーパーマスダ(230m)もすぐそばで毎日の買い物にも便利!取手駅行のバス停も近く、通勤通学も便利!
当社桧はすべて、JAS日本農林規格の木材を使用!
【土佐材 桧】 使用する桧(ヒノキ)は、選び抜かれた土佐産材にこだわり、山から製材所まで当社スタッフが現地調査しています。〈出荷証明、産地証明添付〉
0037-618-26331
無料
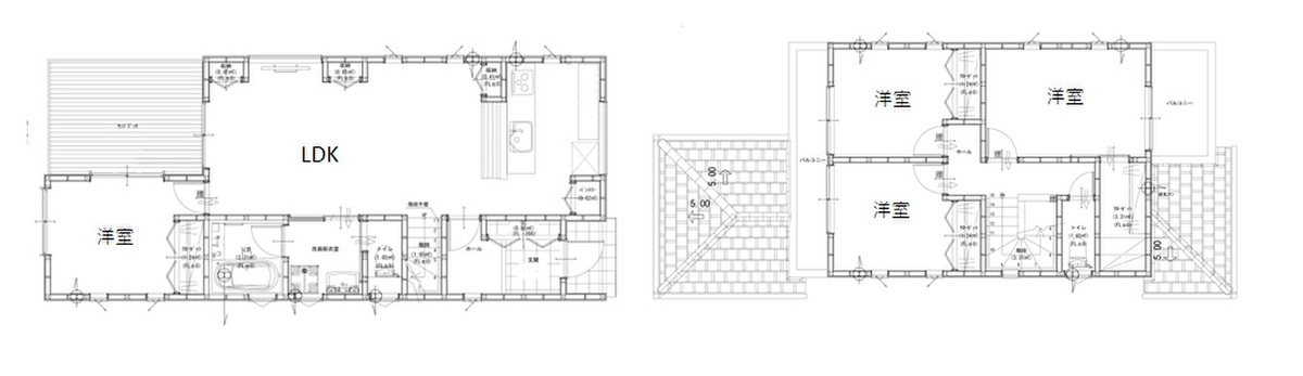
間取り図
0037-618-26331
無料
内観・室内
間取り・内観のこだわりポイント
- 4LDK以上
- バリアフリー
0037-618-26331
無料
設備・仕様
設備・仕様のこだわりポイント
- キッチン
-
- カウンターキッチン
- ガスコンロ
- その他設備
-
- 都市ガス
- 浴室乾燥機
- 複層ガラス採用(二重サッシ・防犯サッシ等)
- TVモニタ付インターホン
0037-618-26331
無料
外観・分譲地
外観・分譲地のこだわりポイント
- 駐車場あり
0037-618-26331
無料
周辺環境・地図
周辺情報
※半径4kmを超えると、周辺情報のアイコンは表示されません。
- ※不動産会社が入力した情報を基に物件の位置を表示しています。
- ※詳しくは不動産会社までお問合せください。
- ※地図上に表示される各種アイコンなどの情報は、おおよその所在地を表すものであり、物件・施設などの地点を保証するものではありません。
- ※地図の表示領域が広域になると周辺のお店・施設は表示できなくなります。
- ※地図、航空写真情報および地形ならびに周辺のお店・施設は、必ずしも現況を表すものではありません。
- ※物件から周辺のお店・施設までの距離は、利用が想定される道路を通行した場合の距離です。なお、必ずしも最短距離を保証するものではありません。
周辺環境のこだわりポイント
- スーパー 800m以内
- コンビニ 400m以内
- 小学校 800m以内
- 複数路線
0037-618-26331
無料
物件概要
| 所在地 | 茨城県取手市東6丁目 | ||
|---|---|---|---|
| 交通 |
JR常磐線「取手」駅 徒歩17分 |
||
| 販売価格 | 3,400万円 | 最多価格帯 | - |
| 建物面積 | 99.36m2 | 土地面積 | 179.49m2 |
| 間取り | 4LDK | 建物構造 | 木造JAS規格桧構造材瓦葺2階建 |
| 販売スケジュール | 販売中 | ||
| 販売戸数 / 総戸数 | 1戸 / 1戸 | ||
| 完成予定日 | 2026年12月 | 引き渡し可能年月 | 2026年12月 |
| 駐車場 | 2台 | 道路の幅員 | 東4.9m公道 |
| 用途地域 | 第一種中高層住居専用地域 | 都市計画 | 市街化区域 |
| 地目 | 雑種地 | 国土法 | - |
| 土地の権利 | 所有権 | 借地権の種類・期間 | - |
| 主たる設備の概要 | 公営水道、公共下水、都市ガス | 建築確認番号 | 第2024CA-0131S号 |
| 施工会社 | 日栄ホーム株式会社 | 機構融資 | - |
| 売主 | 日栄商事株式会社 | 取引態様 | 日栄商事株式会社(売主) |
| 備考 |
※ゴミ置場 持分有(5分の1) ◎日栄商事の住まい ☆全棟総桧で建築します。隅柱、菅柱、土台すべてに桧を使用 ☆厳選された土佐桧(JAS農林水産省、大臣官房長賞を受賞) ☆茨城エリア安心できる住宅メーカー第1位獲得(日本マーケティングリサーチ調べ) 地域に根ざして創業83年。設計、施工、アフターメンテナンス迄一貫体制で行っております。又TX沿線情報に自信があり、どんな事でもご相談下さい。 日栄商事 おススメ POINT!! 日栄商事は高知県と「土佐材パートナー企業」を結んでいます。 【総桧住宅】 すべての建物を総桧で建築します。隅柱・管柱・土台すべてに使用。使用する桧(ヒノキ)は、厳選した土佐産材にこだわり、山から製材所まで当社スタッフが現地調査しています。〈出荷証明、産地証明添付〉 【三州三河の瓦を使用】 当社の屋根材は三州三河産「鶴弥」で生産された瓦を使用しています。 全国シェア約20%を誇る業界最大の瓦メーカーです。地震や台風など自然災害にも強く、耐久性能は100年以上と言われています。 【全棟剛床】 剛床工法とは、根太を設けず床下地合板の厚みを厚くして、直接梁材に留め付ける床組みで、根太工法に比べ地震や台風時に発生する水平力に対して強く、火打ち梁を省く事が出来ます。 【マイクロガード】 外壁の汚れ防止、耐久性がUP。親水性の効果で空気中の水分子を取り込んで外壁表面に薄い水分子膜を作り、汚れを浮かせて雨で洗い落します。 【地盤20年保証】 地耐力を試験により確認し、必要な場合は柱状改良や表層改良などにより十分な強度を確保してから基礎工事に入ります。 【耐震等級3仕様】 耐震等級3とは、消防署や警察署等の防災拠点となる「絶対に倒れてはいけない建物」に採用されている基準です。 【プラチナシール】 雨、湿気に負けない接着性!紫外線による色褪せや亀裂劣化に強く、汚れが付着しにくい特性、目地が目立ちにくい特性があるので長期間美しい外観を維持できます。 |
||
| 情報更新日 | 2026/05/31 | 次回更新予定日 | 2026/06/14 |
| 取引条件有効期限 | 2027/05/31 | ||
住宅性能・販売概要・権利のこだわりポイント
- 所有権
- 瑕疵担保付き
- 仲介手数料不要
- 売主・代理
- 間取り変更可能
0037-618-26331
無料
取扱い不動産会社
日栄商事株式会社の会社情報
お電話でのお問合せは「LIFULL HOME'S(ライフルホームズ)を見て」とお伝えください
日栄商事株式会社
0037-618-26331
無料
- ※携帯電話はご利用いただけます
- ※光IP電話、及びIP電話をご利用のお客様はTEL:0297-22-1511へご連絡ください
- ※携帯電話からお問合せいただいた方には、ショートメッセージ(SMS)またはLINE通知メッセージによるお問合せ内容に関する通知をお届けする場合があり、お客様の電話番号は株式会社LIFULLで一定期間保管されます
- ※株式会社LIFULLの個人情報の取扱い方針に同意のうえ、お電話ください
| 会社名 |
日栄商事株式会社 |
|---|---|
| 免許番号 | 国土交通大臣 (1) 第 10350 号 |
| 所在地 | 茨城県常総市水海道山田町4663 |
| 所属団体 |
(公社)茨城県宅地建物取引業協会 |
この物件にお問合せする
実際に物件・周辺環境を見て検討したい!
近隣建物や接道の状況など資料で分からない部分も一目瞭然。 まずはWEBで事前予約、スムーズに見学しましょう
ご予約無しに直接ご来場された場合、担当者不在であったり、
他のお客様のご案内の都合上、お待たせしてしまうことがございます。
不動産会社に電話で相談したい!
日栄商事株式会社
0037-618-26331
無料
電話でのお問合せは「LIFULL HOME'S(ライフルホームズ)を見て」とお伝えください
- ※携帯電話はご利用いただけます
- ※光IP電話、及びIP電話をご利用のお客様はTEL:0297-22-1511へご連絡ください
- ※携帯電話からお問合せいただいた方には、ショートメッセージ(SMS)またはLINE通知メッセージによるお問合せ内容に関する通知をお届けする場合があり、お客様の電話番号は株式会社LIFULLで一定期間保管されます
- ※株式会社LIFULLの個人情報の取扱い方針に同意のうえ、お電話ください
LIFULL HOME'Sは物件鮮度No.1を目指していきます 物件情報に誤りがある場合はコチラからご連絡ください
- 【物件番号】
- 1701014-0001244
- ※完成後1年未満で未入居の物件を「新築」と表示しております。
- ※完成予想図やCG合成画像は、門塀・植栽・庭・外観等、実際とは多少異なる場合があります。
物件を再検索する
茨城県の人気エリアから新築一戸建てを探す






